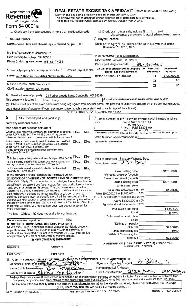
Property
Account |
| Property ID: | 504635 | Abbreviated Legal Description: | N330' OF W/2 SW SE SW TGW SUB EZ FR 040-1490 (TR A SP 79-238 AF#364330) |
| Geographic ID: | R23334-055-1500 | Agent Code: | |
| Type: | Real | | |
| Tax Area: | 112 - APPRAISER-OH Schl Dist, outside OH, improved, greater than 1 acre | Land Use Code | 11 |
| Open Space: | N | DFL | N |
| Historic Property: | N | Remodel Property: | N |
| Multi-Family Redevelopment: | N | | |
| Township: | 33 | Section: | 34 |
| Range: | R2 |
Location |
| Address: | 1320 EAGLE RIDGE RD OAK HARBOR, WA 98277 | Mapsco: | |
| Neighborhood: | Cycle 6 | Map ID: | 655 |
| Neighborhood CD: | 6 |
Owner |
| Name: | FISHER SR TTEE, DAVID LAMAR | Owner ID: | 296558 |
| Mailing Address: | MELODY LEA FISHER, TTEE 1320 EAGLE RIDGE RD OAK HARBOR, WA 98277 | % Ownership: | 100.0000000000% |
| | | Exemptions: | |
Taxes and Assessment Details
Values
| (+) Improvement Homesite Value: | + | $0 | |
| (+) Improvement Non-Homesite Value: | + | $446,607 | |
| (+) Land Homesite Value: | + | $0 | |
| (+) Land Non-Homesite Value: | + | $250,000 | |
| (+) Curr Use (HS): | + | $0 | $0 |
| (+) Curr Use (NHS): | + | $0 | $0 |
| | | -------------------------- | |
| (=) Market Value: | = | $696,607 | |
| (–) Productivity Loss: | – | $0 | |
| | | -------------------------- | |
| (=) Subtotal: | = | $696,607 | |
| (+) Senior Appraised Value: | + | $0 | |
| (+) Non-Senior Appraised Value: | + | $696,607 | |
| | | -------------------------- | |
| (=) Total Appraised Value: | = | $696,607 | |
| (–) Senior Exemption Loss: | – | $0 | |
| (–) Exemption Loss: | – | $0 | |
| | | -------------------------- | |
| (=) Taxable Value: | = | $696,607 | |
Taxing Jurisdiction
| Owner: | FISHER SR TTEE, DAVID LAMAR | | |
| % Ownership: | 100.0000000000% | | |
| Total Value: | $696,607 | | |
| Tax Area: | 112 - APPRAISER-OH Schl Dist, outside OH, improved, greater than 1 acre |
| CF | Conservation Futures | 0.0316035091 | $696,607 | $696,607 | $22.02 | | |
| CEM1 | Cemetery #1 | 0.0040320932 | $696,607 | $696,607 | $2.81 | | |
| FIRE2 | Fire & Rescue Dist #2 N Whidbey GEN | 0.5475949600 | $696,607 | $696,607 | $381.46 | | |
| HOBOND | Hospital BOND | 0.1910887512 | $696,607 | $696,607 | $133.11 | | |
| HOGEN | Hospital GEN | 0.3902502903 | $696,607 | $696,607 | $271.85 | | |
| CE | County Current Expense | 0.3708482477 | $696,607 | $696,607 | $258.34 | | |
| CR | County Roads | 0.4584763726 | $696,607 | $696,607 | $319.38 | | |
| ISLANDEMS | Hospital GEN (EMS) | 0.5000000000 | $696,607 | $696,607 | $348.30 | | |
| LIB | Library Sno-Isle GEN | 0.3153421757 | $696,607 | $696,607 | $219.67 | | |
| NWHIDPRMT | P & R N Whidbey GEN | 0.2004466701 | $696,607 | $696,607 | $139.63 | | |
| SCH201MO | School 201 Enrichment | 1.8559231640 | $696,607 | $696,607 | $1,292.85 | | |
| ST | State School | 1.3035497053 | $696,607 | $696,607 | $908.06 | | |
| ST2 | State School Part 2 | 0.8169543533 | $696,607 | $696,607 | $569.10 | | |
| | Total Tax Rate: | 6.9861102925 | | | | | |
| | | | | Taxes w/Current Exemptions: | $4,866.58 | | |
| | | | | Taxes w/o Exemptions: | $4,866.58 | | |
Improvement / Building
| Improvement #1: | RESIDENTIAL | State Code: | Y | 2160.9 sqft | Value: | $446,607 |
| Bathrooms: | 3 | Bedrooms: | 4 | | Ceiling: | DRY WALL SPRAYED | Exterior Wall/Cover: | WOOD SIDING | | Floor Covering: | CERAMIC TILE/HWD 40/60 | Floor Structure: | WOOD W/SUBFLOOR | | Foundation: | CONCRETE | Heating: | FHA ELECTRIC | | Interior Finish: | DRYWALL PAINT | Plumbing Fixture Cnt: | 12 | | Roof Slope: | 4" IN 12" | Roof Structure/Cover: | CJ ASPHALT |
|
| | Type | Description | Class CD | Sub Class CD | Year Built | Area |
| | BAS | BASE/MAIN FLOOR | 4 | 0 | 1981 | 1248.9 |
| | OP2 | OPEN PORCH W/STEPS | 4 | 0 | 1981 | 28.0 |
| | BIG | BUILT IN GARAGE | 4 | 0 | 1981 | 440.0 |
| | OWP | OPEN WOOD PORCH W/STEPS | 4 | 0 | 1981 | 144.0 |
| | DWN | DOWNSTAIRS LIVING AREA | 4 | 0 | 1981 | 912.0 |
| | UTY | STORAGE/UTILITY | 4 | 0 | 1981 | 1296.0 |
| | OP1 | OPEN PORCH SLAB | 4 | 0 | 1981 | 576.0 |
Sketch
Property Image
Land
| 1 | 18 | AC (02.01-03.00) | 2.5000 | 108900.00 | 0.00 | 0.00 | 1.00 | $250,000 | $0 |
Roll Value History
| 2026 | N/A | N/A | N/A | N/A | N/A |
| 2025 | $446,607 | $250,000 | $0 | $696,607 | $696,607 |
| 2024 | $452,244 | $230,000 | $0 | $682,244 | $682,244 |
| 2023 | $457,878 | $220,000 | $0 | $677,878 | $677,878 |
| 2022 | $409,514 | $210,000 | $0 | $619,514 | $619,514 |
| 2021 | $360,556 | $160,000 | $0 | $520,556 | $520,556 |
| 2020 | $339,297 | $140,000 | $0 | $479,297 | $479,297 |
| 2019 | $253,033 | $200,000 | $0 | $453,033 | $453,033 |
| 2018 | $253,811 | $170,000 | $0 | $423,811 | $423,811 |
| 2017 | $255,368 | $150,000 | $0 | $405,368 | $405,368 |
| 2016 | $257,007 | $120,000 | $0 | $377,007 | $377,007 |
| 2015 | $164,374 | $100,000 | $0 | $264,374 | $264,374 |
| 2014 | $166,416 | $100,000 | $0 | $266,416 | $266,416 |
| 2013 | $168,457 | $90,000 | $0 | $258,457 | $258,457 |
| 2012 | $170,499 | $108,000 | $0 | $278,499 | $278,499 |
| 2011 | $163,680 | $120,000 | $0 | $283,680 | $283,680 |
| 2010 | $202,620 | $120,000 | $0 | $322,620 | $322,620 |
| 2009 | $210,411 | $155,000 | $0 | $365,411 | $365,411 |
| 2008 | $211,247 | $145,000 | $0 | $356,247 | $356,247 |
| 2007 | $195,058 | $145,000 | $0 | $340,058 | $340,058 |
Deed and Sales History
| 1 | 10/07/2020 | WD | Warranty Deed | JONES, BURTON | FISHER SR TTEE, DAVID LAMAR | | | $519,500.00 | 45139 | 4498858 |
| 2 | 09/21/2015 | WD | Warranty Deed | PATTON, JOANNA L | JONES, BURTON | | | $379,000.00 | 21533 | 4386712 |
| 3 | 12/03/2014 | ESTSEPPROP | Establish Separate Property | PATTON, JOANNA L & WAYNE E | PATTON, JOANNA L | | | $0.00 | 17857 | 4370016 |
| 4 | 09/01/1997 | WD | Warranty Deed | DEHART, WALLACE K | PATTON, JOANNA L | | | $167,000.00 | 73502 | 97016440 |
| 5 | 10/01/1990 | WD | Warranty Deed | DE, LOS S | DEHART, WALLACE K | | | $132,000.00 | 5904 | 90019988 |
| 6 | 10/01/1990 | WD | Warranty Deed | DEHART, WALLACE K | DEHART, WALLACE K | | | $0.00 | 6299 | 90021766 |
| 7 | 08/01/1984 | WD | Warranty Deed | GONZALES, GILBERTO | DE, LOS S | | | $92,000.00 | 42235 | 84001392 |
| 8 | 09/01/1981 | CD | DNU - Correction Deed | GONZALES, G & | GONZALES, GILBERTO | | | $0.00 | 13054 | 388513 |
| 9 | 08/01/1979 | REC | Real Estate Contract | Unknown | GONZALES, G & | | | $15,000.00 | 94121 | 357656 |
Payout Agreement
| No payout information available.. |