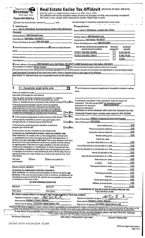
Property
Account |
| Property ID: | 50465 | Abbreviated Legal Description: | 133 - BG SW CR SEC 11 N660' (40 RODS) E759' (46 RODS) S250' TPB E100' S60' W100' N60' TPB |
| Geographic ID: | R22911-037-0840 | Agent Code: | |
| Type: | Real | | |
| Tax Area: | 760 - APPRAISER-S Whid Schl Dist, Special District, improved & less than 1 acre | Land Use Code | 69 |
| Open Space: | N | DFL | N |
| Historic Property: | N | Remodel Property: | N |
| Multi-Family Redevelopment: | N | | |
| Township: | 29 | Section: | 11 |
| Range: | R2 |
Location |
| Address: | 5571 LOTTO AVE FREELAND, WA 98249 | Mapsco: | |
| Neighborhood: | 34cFR-main st 2 | Map ID: | 313 |
| Neighborhood CD: | 34cFRmain2 |
Owner |
| Name: | BA & L INC | Owner ID: | 181862 |
| Mailing Address: | PO BOX 184 COUPEVILLE, WA 98239 | % Ownership: | 100.0000000000% |
| | | Exemptions: | |
Taxes and Assessment Details
Values
| (+) Improvement Homesite Value: | + | $0 | |
| (+) Improvement Non-Homesite Value: | + | $105,677 | |
| (+) Land Homesite Value: | + | $0 | |
| (+) Land Non-Homesite Value: | + | $56,628 | |
| (+) Curr Use (HS): | + | $0 | $0 |
| (+) Curr Use (NHS): | + | $0 | $0 |
| | | -------------------------- | |
| (=) Market Value: | = | $162,305 | |
| (–) Productivity Loss: | – | $0 | |
| | | -------------------------- | |
| (=) Subtotal: | = | $162,305 | |
| (+) Senior Appraised Value: | + | $0 | |
| (+) Non-Senior Appraised Value: | + | $162,305 | |
| | | -------------------------- | |
| (=) Total Appraised Value: | = | $162,305 | |
| (–) Senior Exemption Loss: | – | $0 | |
| (–) Exemption Loss: | – | $0 | |
| | | -------------------------- | |
| (=) Taxable Value: | = | $162,305 | |
Taxing Jurisdiction
| Owner: | BA & L INC | | |
| % Ownership: | 100.0000000000% | | |
| Total Value: | $162,305 | | |
| Tax Area: | 760 - APPRAISER-S Whid Schl Dist, Special District, improved & less than 1 acre |
| CF | Conservation Futures | 0.0316035091 | $162,305 | $162,305 | $5.13 | | |
| FIRE3 | Fire & Rescue Dist #3 S Whidbey GEN | 1.2004855531 | $162,305 | $162,305 | $194.84 | | |
| HOBOND | Hospital BOND | 0.1910887512 | $162,305 | $162,305 | $31.01 | | |
| HOGEN | Hospital GEN | 0.3902502903 | $162,305 | $162,305 | $63.34 | | |
| CE | County Current Expense | 0.3708482477 | $162,305 | $162,305 | $60.19 | | |
| CR | County Roads | 0.4584763726 | $162,305 | $162,305 | $74.41 | | |
| ISLANDEMS | Hospital GEN (EMS) | 0.5000000000 | $162,305 | $162,305 | $81.15 | | |
| LIB | Library Sno-Isle GEN | 0.3153421757 | $162,305 | $162,305 | $51.18 | | |
| PORTWHID | Port of S Whidbey GEN | 0.1094540357 | $162,305 | $162,305 | $17.76 | | |
| SCH206BOND | School 206 BOND | 0.3161759235 | $162,305 | $162,305 | $51.32 | | |
| SCH206MO | School 206 Enrichment | 0.4547169547 | $162,305 | $162,305 | $73.80 | | |
| ST | State School | 1.3035497053 | $162,305 | $162,305 | $211.57 | | |
| ST2 | State School Part 2 | 0.8169543533 | $162,305 | $162,305 | $132.60 | | |
| SWHIDPRBD | P & R S Whidbey BOND | 0.0152817568 | $162,305 | $162,305 | $2.48 | | |
| SWHIDPRBD2 | P & R S Whidbey BOND2 | 0.0138911264 | $162,305 | $162,305 | $2.25 | | |
| SWHIDPRMT | P & R S Whidbey GEN | 0.2053334452 | $162,305 | $162,305 | $33.33 | | |
| | Total Tax Rate: | 6.6934522006 | | | | | |
| | | | | Taxes w/Current Exemptions: | $1,086.36 | | |
| | | | | Taxes w/o Exemptions: | $1,086.36 | | |
Improvement / Building
| Improvement #1: | COMMERCIAL | State Code: | F1 | 2400.0 sqft | Value: | $105,677 |
| Bathrooms: | 0 | Bedrooms: | 0 | | Ceiling: | DRYWALL PAINTED | Exterior Wall/Cover: | PLYWD/WD OR ST STUDS | | Floor Covering: | CARPET 100% | Floor Structure: | WOOD ON WOOD JOIST | | Foundation: | CONCRETE | Heating: | WALL HEAT ELECTRIC | | Interior Finish: | OFFICE | Plumbing Fixture Cnt: | 1 | | Roof Structure/Cover: | COMP OPEN WOOD |   |   |
|
| | Type | Description | Class CD | Sub Class CD | Year Built | Area |
| | BAS | BASE/MAIN FLOOR | 3 | 0 | 1968 | 2400.0 |
| | OWP | OPEN WOOD PORCH W/STEPS | 3 | 0 | 1968 | 192.0 |
| | OWP | OPEN WOOD PORCH W/STEPS | 3 | 0 | 1968 | 89.0 |
Sketch
Property Image
Land
| 1 | 68 | COMMERCIAL RETAIL | 0.1300 | 5662.80 | 0.00 | 0.00 | 1.00 | $56,628 | $0 |
Roll Value History
| 2026 | N/A | N/A | N/A | N/A | N/A |
| 2025 | $105,677 | $56,628 | $0 | $162,305 | $162,305 |
| 2024 | $116,011 | $56,628 | $0 | $172,639 | $172,639 |
| 2023 | $126,342 | $56,628 | $0 | $182,970 | $182,970 |
| 2022 | $113,872 | $56,628 | $0 | $170,500 | $170,500 |
| 2021 | $113,113 | $56,628 | $0 | $169,741 | $169,741 |
| 2020 | $113,028 | $56,628 | $0 | $169,656 | $169,656 |
| 2019 | $47,455 | $56,628 | $0 | $104,083 | $104,083 |
| 2018 | $47,465 | $50,965 | $0 | $98,430 | $98,430 |
| 2017 | $47,488 | $42,471 | $0 | $89,959 | $89,959 |
| 2016 | $47,532 | $42,471 | $0 | $90,003 | $90,003 |
| 2015 | $47,576 | $42,471 | $0 | $90,047 | $90,047 |
| 2014 | $46,257 | $42,471 | $0 | $88,728 | $88,728 |
| 2013 | $43,545 | $120,480 | $0 | $164,025 | $164,025 |
| 2012 | $61,860 | $120,480 | $0 | $182,340 | $182,340 |
| 2011 | $61,860 | $120,480 | $0 | $182,340 | $182,340 |
| 2010 | $79,572 | $120,480 | $0 | $200,052 | $200,052 |
| 2009 | $83,993 | $59,400 | $0 | $143,393 | $143,393 |
| 2008 | $86,203 | $59,400 | $0 | $145,603 | $145,603 |
| 2007 | $97,313 | $59,400 | $0 | $156,713 | $156,713 |
Deed and Sales History
| 1 | 08/24/1999 | QCD | Quit Claim Deed | LOTTO, RAYMOND | BA & L INC | | | $0.00 | 59720 | 4571551 |
| 2 | 08/24/1999 | QCD | Quit Claim Deed | BANGSTON, ERLING F | INC, BA & L | | | $0.00 | 93961 | 99021970 |
| 3 | 08/24/1999 | ESTSEPPROP | Establish Separate Property | LOTTO, RAY W | BANGSTON, ERLING F | | | $0.00 | 93960 | 99021969 |
| 4 | 08/23/1999 | ESTSEPPROP | Establish Separate Property | LOTTO, RAYMOND & | LOTTO, RAY W | | | $0.00 | 93959 | 99021968 |
| 5 | 11/01/1987 | WD | Warranty Deed | LUNDGREN, FLOYD D | LOTTO, RAYMOND & | | | $50,000.00 | 73608 | 87015701 |
| 6 | 03/01/1979 | OTHER | Other - Misc. Documents | Unknown | LUNDGREN, FLOYD D | | | $45,000.00 | 91709 | 350867 |
Payout Agreement
| No payout information available.. |