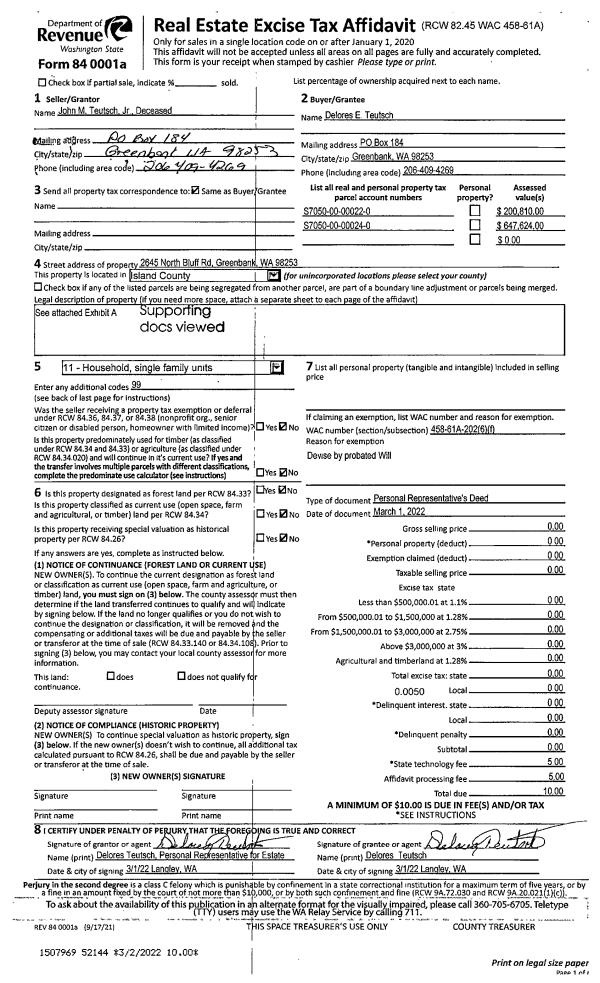
Property
Account |
| Property ID: | 504706 | Abbreviated Legal Description: | TR 16-B - SP 79-253 IN NE NW BG NW CR SEC 25 N88*E1310.55' S1*E35' S54*E 399.9' TPB S54*E405.34'S1* E103.04' S88*W546.8' N31* E410.68' TPB TGW SUB EZ FR 4971640 |
| Geographic ID: | R33025-480-1700 | Agent Code: | |
| Type: | Real | | |
| Tax Area: | 542 - APPRAISER-Stan/Cam Schl Dist, Special Dist, improved, greater than 1 acre | Land Use Code | 11 |
| Open Space: | N | DFL | N |
| Historic Property: | N | Remodel Property: | N |
| Multi-Family Redevelopment: | N | | |
| Township: | 30 | Section: | 25 |
| Range: | R3 |
Location |
| Address: | 4028 EAGLE RIDGE DR CAMANO ISLAND, WA 98282 | Mapsco: | |
| Neighborhood: | 58SofTamarackS | Map ID: | 890 |
| Neighborhood CD: | 58RstamS |
Owner |
| Name: | KROM, KENNETH F | Owner ID: | 5098 |
| Mailing Address: | MARY M KROM 4028 EAGLE RIDGE DR CAMANO ISLAND, WA 98282 | % Ownership: | 100.0000000000% |
| | | Exemptions: | |
Taxes and Assessment Details
Values
| (+) Improvement Homesite Value: | + | $0 | |
| (+) Improvement Non-Homesite Value: | + | $645,595 | |
| (+) Land Homesite Value: | + | $0 | |
| (+) Land Non-Homesite Value: | + | $270,000 | |
| (+) Curr Use (HS): | + | $0 | $0 |
| (+) Curr Use (NHS): | + | $0 | $0 |
| | | -------------------------- | |
| (=) Market Value: | = | $915,595 | |
| (–) Productivity Loss: | – | $0 | |
| | | -------------------------- | |
| (=) Subtotal: | = | $915,595 | |
| (+) Senior Appraised Value: | + | $0 | |
| (+) Non-Senior Appraised Value: | + | $915,595 | |
| | | -------------------------- | |
| (=) Total Appraised Value: | = | $915,595 | |
| (–) Senior Exemption Loss: | – | $0 | |
| (–) Exemption Loss: | – | $0 | |
| | | -------------------------- | |
| (=) Taxable Value: | = | $915,595 | |
Taxing Jurisdiction
| Owner: | KROM, KENNETH F | | |
| % Ownership: | 100.0000000000% | | |
| Total Value: | $915,595 | | |
| Tax Area: | 542 - APPRAISER-Stan/Cam Schl Dist, Special Dist, improved, greater than 1 acre |
| CF | Conservation Futures | 0.0316035091 | $915,595 | $915,595 | $28.94 | | |
| EMS1 | Fire & Rescue Dist #1 Camano GEN (EMS) | 0.3677864386 | $915,595 | $915,595 | $336.74 | | |
| FIRE1 | Fire & Rescue Dist #1 Camano GEN | 1.2502910536 | $915,595 | $915,595 | $1,144.76 | | |
| FIRE1BOND | Fire & Rescue Dist #1 Camano BOND | 0.1570001679 | $915,595 | $915,595 | $143.75 | | |
| CE | County Current Expense | 0.3708482477 | $915,595 | $915,595 | $339.55 | | |
| CR | County Roads | 0.4584763726 | $915,595 | $915,595 | $419.78 | | |
| LCIB | Library Sno-Isle BOND (Camano Island) | 0.0396325772 | $915,595 | $915,595 | $36.29 | | |
| LIB | Library Sno-Isle GEN | 0.3153421757 | $915,595 | $915,595 | $288.73 | | |
| SCH205_401 | School 205-401 Enrichment | 1.2698420524 | $915,595 | $915,595 | $1,162.66 | | |
| SCH205BOND | School 205-401 BOND | 0.9396497583 | $915,595 | $915,595 | $860.34 | | |
| ST | State School | 1.3035497053 | $915,595 | $915,595 | $1,193.52 | | |
| ST2 | State School Part 2 | 0.8169543533 | $915,595 | $915,595 | $748.00 | | |
| | Total Tax Rate: | 7.3209764117 | | | | | |
| | | | | Taxes w/Current Exemptions: | $6,703.06 | | |
| | | | | Taxes w/o Exemptions: | $6,703.06 | | |
Improvement / Building
| Improvement #1: | RESIDENTIAL | State Code: | Y | 2097.5 sqft | Value: | $645,595 |
| Bathrooms: | 2.5 | Bedrooms: | 2 | | Ceiling: | DRYWALL PAINTED | Cooling: | HEAT PUMP/CONV/V | | Exterior Wall/Cover: | CEMENT FIBER | Floor Covering: | CERAMIC TILE/HWD 40/60 | | Floor Structure: | WOOD W/SUBFLOOR | Foundation: | CONCRETE | | Interior Finish: | DRYWALL PAINT | Plumbing Fixture Cnt: | 12 | | Roof Slope: | 4" IN 12" | Roof Structure/Cover: | CJ ALUMINIUM HEAVY |
|
| | Type | Description | Class CD | Sub Class CD | Year Built | Area |
| | BAS | BASE/MAIN FLOOR | 4 | 0 | 2009 | 2097.5 |
| | OP4 | OPEN PORCH W/CEILING-ROOF | 4 | 0 | 2009 | 373.0 |
| | ENP | ENCLOSED PORCH | 4 | 0 | 2009 | 144.0 |
| | DGR | DETACHED GARAGE | 4 | 0 | 2009 | 864.0 |
| | UTY | STORAGE/UTILITY | 4 | 0 | 2009 | 128.0 |
Sketch
Property Image
Land
| 1 | 18 | AC (02.01-03.00) | 2.5500 | 111078.00 | 0.00 | 0.00 | 1.00 | $270,000 | $0 |
Roll Value History
| 2026 | N/A | N/A | N/A | N/A | N/A |
| 2025 | $645,595 | $270,000 | $0 | $915,595 | $915,595 |
| 2024 | $651,021 | $270,000 | $0 | $921,021 | $921,021 |
| 2023 | $656,806 | $240,000 | $0 | $896,806 | $896,806 |
| 2022 | $599,315 | $210,000 | $0 | $809,315 | $809,315 |
| 2021 | $431,157 | $150,000 | $0 | $581,157 | $581,157 |
| 2020 | $421,147 | $140,000 | $0 | $561,147 | $561,147 |
| 2019 | $334,730 | $170,000 | $0 | $504,730 | $504,730 |
| 2018 | $335,636 | $150,000 | $0 | $485,636 | $485,636 |
| 2017 | $337,413 | $135,000 | $0 | $472,413 | $472,413 |
| 2016 | $341,040 | $80,000 | $0 | $421,040 | $421,040 |
| 2015 | $330,509 | $50,000 | $0 | $380,509 | $380,509 |
| 2014 | $334,062 | $50,000 | $0 | $384,062 | $384,062 |
| 2013 | $337,616 | $50,000 | $0 | $387,616 | $387,616 |
| 2012 | $348,521 | $44,640 | $0 | $393,161 | $393,161 |
| 2011 | $352,075 | $55,800 | $0 | $407,875 | $407,875 |
| 2010 | $355,162 | $55,800 | $0 | $410,962 | $410,962 |
| 2009 | $368,001 | $98,400 | $0 | $466,401 | $466,401 |
| 2008 | $0 | $71,280 | $0 | $71,280 | $71,280 |
| 2007 | $0 | $114,000 | $0 | $114,000 | $114,000 |
Deed and Sales History
| 1 | 07/25/2005 | WD | Warranty Deed | LEHNHERR, ROBERT E | KROM, KENNETH F | | | $119,950.00 | 53718 | 4142702 |
| 2 | 10/01/1981 | TRUSTEED | Trustee's Deed | JASM, INC | LEHNHERR, ROBERT E | | | $35,000.00 | 13426 | 389815 |
| 3 | 01/01/1900 | OTHER | Other - Misc. Documents | Unknown | JASM, INC | | | $0.00 | 0 | 0 |
Payout Agreement
| No payout information available.. |