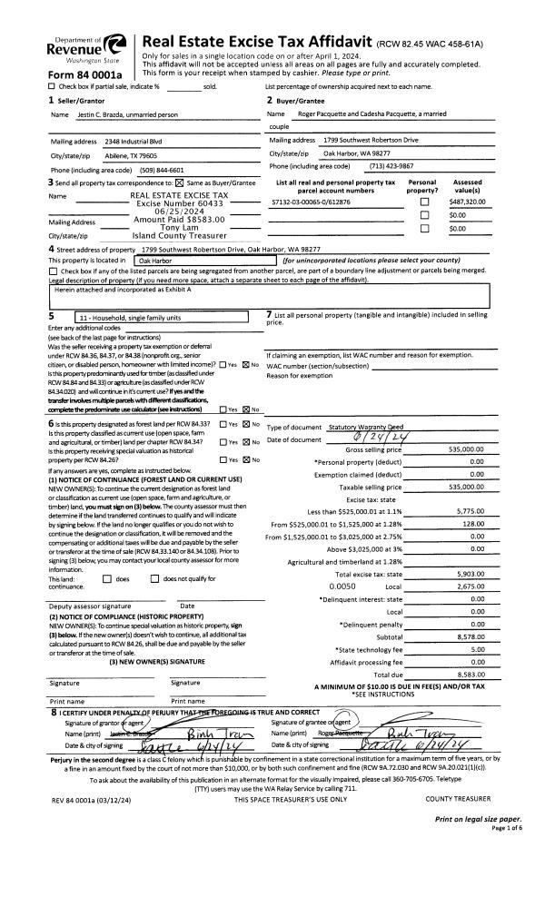
Property
Account |
| Property ID: | 505082 | Abbreviated Legal Description: | SEAVIEW #8 LOT 138 |
| Geographic ID: | S8135-08-00138-0 | Agent Code: | |
| Type: | Real | | |
| Tax Area: | 110 - APPRAISER-OH Schl Dist, outside OH, improved & 1 acre or less | Land Use Code | 11 |
| Open Space: | N | DFL | N |
| Historic Property: | N | Remodel Property: | N |
| Multi-Family Redevelopment: | N | | |
| Township: | | Section: | |
| Range: | |
Location |
| Address: | 1837 SCHOONER LN OAK HARBOR, WA 98277 | Mapsco: | |
| Neighborhood: | Cycle 1 | Map ID: | 106 |
| Neighborhood CD: | 1 |
Owner |
| Name: | HOWARD, MITCHELL GWILYM | Owner ID: | 80020 |
| Mailing Address: | GLADYS FERGER HOWARD 1837 SCHOONER LN OAK HARBOR, WA 98277-8515 | % Ownership: | 100.0000000000% |
| | | Exemptions: | |
Taxes and Assessment Details
Values
| (+) Improvement Homesite Value: | + | $0 | |
| (+) Improvement Non-Homesite Value: | + | $391,529 | |
| (+) Land Homesite Value: | + | $0 | |
| (+) Land Non-Homesite Value: | + | $230,000 | |
| (+) Curr Use (HS): | + | $0 | $0 |
| (+) Curr Use (NHS): | + | $0 | $0 |
| | | -------------------------- | |
| (=) Market Value: | = | $621,529 | |
| (–) Productivity Loss: | – | $0 | |
| | | -------------------------- | |
| (=) Subtotal: | = | $621,529 | |
| (+) Senior Appraised Value: | + | $0 | |
| (+) Non-Senior Appraised Value: | + | $621,529 | |
| | | -------------------------- | |
| (=) Total Appraised Value: | = | $621,529 | |
| (–) Senior Exemption Loss: | – | $0 | |
| (–) Exemption Loss: | – | $0 | |
| | | -------------------------- | |
| (=) Taxable Value: | = | $621,529 | |
Taxing Jurisdiction
| Owner: | HOWARD, MITCHELL GWILYM | | |
| % Ownership: | 100.0000000000% | | |
| Total Value: | $621,529 | | |
| Tax Area: | 110 - APPRAISER-OH Schl Dist, outside OH, improved & 1 acre or less |
| CF | Conservation Futures | 0.0316035091 | $621,529 | $621,529 | $19.64 | | |
| CEM1 | Cemetery #1 | 0.0040320932 | $621,529 | $621,529 | $2.51 | | |
| FIRE2 | Fire & Rescue Dist #2 N Whidbey GEN | 0.5475949600 | $621,529 | $621,529 | $340.35 | | |
| HOBOND | Hospital BOND | 0.1910887512 | $621,529 | $621,529 | $118.77 | | |
| HOGEN | Hospital GEN | 0.3902502903 | $621,529 | $621,529 | $242.55 | | |
| CE | County Current Expense | 0.3708482477 | $621,529 | $621,529 | $230.49 | | |
| CR | County Roads | 0.4584763726 | $621,529 | $621,529 | $284.96 | | |
| ISLANDEMS | Hospital GEN (EMS) | 0.5000000000 | $621,529 | $621,529 | $310.76 | | |
| LIB | Library Sno-Isle GEN | 0.3153421757 | $621,529 | $621,529 | $195.99 | | |
| NWHIDPRMT | P & R N Whidbey GEN | 0.2004466701 | $621,529 | $621,529 | $124.58 | | |
| SCH201MO | School 201 Enrichment | 1.8559231640 | $621,529 | $621,529 | $1,153.51 | | |
| ST | State School | 1.3035497053 | $621,529 | $621,529 | $810.19 | | |
| ST2 | State School Part 2 | 0.8169543533 | $621,529 | $621,529 | $507.76 | | |
| | Total Tax Rate: | 6.9861102925 | | | | | |
| | | | | Taxes w/Current Exemptions: | $4,342.06 | | |
| | | | | Taxes w/o Exemptions: | $4,342.06 | | |
Improvement / Building
| Improvement #1: | RESIDENTIAL | State Code: | Y | 3073.2 sqft | Value: | $391,529 |
| Bathrooms: | 2.75 | Bedrooms: | 3 | | Ceiling: | DRYWALL PAINTED | Exterior Wall/Cover: | VINYL | | Floor Covering: | CARPET/VINYL 80-20 | Floor Structure: | WOOD W/SUBFLOOR | | Foundation: | CONCRETE BLOCKS | Heating: | FHA ELECTRIC | | Interior Finish: | DRYWALL PAINT | Plumbing Fixture Cnt: | 13 | | Roof Slope: | 8" IN 12" | Roof Structure/Cover: | CJ ASPHALT |
|
| | Type | Description | Class CD | Sub Class CD | Year Built | Area |
| | BAS | BASE/MAIN FLOOR | 3 | 0 | 1990 | 1455.7 |
| | OP3 | OPEN PORCH W/ROOF | 3 | 0 | 1990 | 24.0 |
| | BIG | BUILT IN GARAGE | 3 | 0 | 1990 | 708.0 |
| | UPS | UPPER STORY | 3 | 0 | 1990 | 1322.5 |
| | UPH | HALF STORY | 3 | 0 | 1990 | 295.0 |
| | OWP | OPEN WOOD PORCH W/STEPS | 3 | 0 | 1990 | 365.9 |
Sketch
Property Image
Land
| 1 | 15 | SQ (12001-21780) | 0.0000 | 0.00 | 0.00 | 0.00 | 1.00 | $230,000 | $0 |
Roll Value History
| 2026 | N/A | N/A | N/A | N/A | N/A |
| 2025 | $391,529 | $230,000 | $0 | $621,529 | $621,529 |
| 2024 | $396,874 | $200,000 | $0 | $596,874 | $596,874 |
| 2023 | $396,874 | $200,000 | $0 | $596,874 | $596,874 |
| 2022 | $364,194 | $200,000 | $0 | $564,194 | $564,194 |
| 2021 | $320,893 | $150,000 | $0 | $470,893 | $470,893 |
| 2020 | $313,744 | $110,000 | $0 | $423,744 | $423,744 |
| 2019 | $252,553 | $150,000 | $0 | $402,553 | $402,553 |
| 2018 | $253,360 | $140,000 | $0 | $393,360 | $393,360 |
| 2017 | $243,050 | $120,000 | $0 | $363,050 | $363,050 |
| 2016 | $246,322 | $110,000 | $0 | $356,322 | $356,322 |
| 2015 | $249,594 | $75,000 | $0 | $324,594 | $324,594 |
| 2014 | $252,865 | $68,000 | $0 | $320,865 | $320,865 |
| 2013 | $256,136 | $68,000 | $0 | $324,136 | $324,136 |
| 2012 | $259,408 | $68,000 | $0 | $327,408 | $327,408 |
| 2011 | $269,788 | $80,000 | $0 | $349,788 | $349,788 |
| 2010 | $275,628 | $80,000 | $0 | $355,628 | $355,628 |
| 2009 | $287,427 | $87,000 | $0 | $374,427 | $374,427 |
| 2008 | $291,195 | $95,500 | $0 | $386,695 | $386,695 |
| 2007 | $294,914 | $95,500 | $0 | $390,414 | $390,414 |
Deed and Sales History
| 1 | 04/05/2007 | WD | Warranty Deed | CANN, MICHAL D | HOWARD, MITCHELL GWILYM | | | $443,000.00 | 71153 | 4198853 |
| 2 | 08/01/1994 | WD | Warranty Deed | TAYLOR, RICHARD R | CANN, MICHAL D | | | $220,000.00 | 43554 | 94018816 |
| 3 | 08/01/1990 | WD | Warranty Deed | BWB, CONSTRUCTION C | TAYLOR, RICHARD R | | | $28,000.00 | 5174 | 90017236 |
| 4 | 06/01/1984 | WD | Warranty Deed | GEPNER, H F | BWB, CONSTRUCTION C | | | $21,000.00 | 41543 | 425285 |
| 5 | 05/01/1978 | OTHER | Other - Misc. Documents | Unknown | GEPNER, H F | | | $0.00 | 82405 | 333462 |
Payout Agreement
| No payout information available.. |