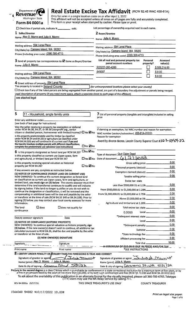
Property
Account |
| Property ID: | 505457 | Abbreviated Legal Description: | REPLACES 2264500 26 - IN BRUNN DC DESC: BG PT SWLN RD 418'W OF ELN SD DC & 77.9'S OF SECR MENLO BCH S1*W ON ELN PORTER TR 663.64'M/L TO SECR SD TR N41*W434.21' TPB N41*W56.54 N20*E150' S41*E56.54' S20*W 150' TPB TGW TIDES |
| Geographic ID: | R22915-226-1040 | Agent Code: | |
| Type: | Real | | |
| Tax Area: | 710 - APPRAISER-S Whid Schl Dist, outside Langley, improved & 1 acre or less | Land Use Code | 11 |
| Open Space: | N | DFL | N |
| Historic Property: | N | Remodel Property: | N |
| Multi-Family Redevelopment: | N | | |
| Township: | 29 | Section: | 15 |
| Range: | R2 |
Location |
| Address: | 5810 PALMER LN FREELAND, WA 98249 | Mapsco: | |
| Neighborhood: | Cycle 3 | Map ID: | 329 |
| Neighborhood CD: | 3 |
Owner |
| Name: | FERREIRA, MANUEL | Owner ID: | 301784 |
| Mailing Address: | ANDREANNA KAPOGIANNATOS 2133 38TH AVE E SEATTLE, WA 98112 | % Ownership: | 100.0000000000% |
| | | Exemptions: | |
Taxes and Assessment Details
Values
| (+) Improvement Homesite Value: | + | $0 | |
| (+) Improvement Non-Homesite Value: | + | $235,865 | |
| (+) Land Homesite Value: | + | $0 | |
| (+) Land Non-Homesite Value: | + | $2,250,500 | |
| (+) Curr Use (HS): | + | $0 | $0 |
| (+) Curr Use (NHS): | + | $0 | $0 |
| | | -------------------------- | |
| (=) Market Value: | = | $2,486,365 | |
| (–) Productivity Loss: | – | $0 | |
| | | -------------------------- | |
| (=) Subtotal: | = | $2,486,365 | |
| (+) Senior Appraised Value: | + | $0 | |
| (+) Non-Senior Appraised Value: | + | $2,486,365 | |
| | | -------------------------- | |
| (=) Total Appraised Value: | = | $2,486,365 | |
| (–) Senior Exemption Loss: | – | $0 | |
| (–) Exemption Loss: | – | $0 | |
| | | -------------------------- | |
| (=) Taxable Value: | = | $2,486,365 | |
Taxing Jurisdiction
| Owner: | FERREIRA, MANUEL | | |
| % Ownership: | 100.0000000000% | | |
| Total Value: | $2,486,365 | | |
| Tax Area: | 710 - APPRAISER-S Whid Schl Dist, outside Langley, improved & 1 acre or less |
| CF | Conservation Futures | 0.0316035091 | $2,486,365 | $2,486,365 | $78.58 | | |
| FIRE3 | Fire & Rescue Dist #3 S Whidbey GEN | 1.2004855531 | $2,486,365 | $2,486,365 | $2,984.85 | | |
| HOBOND | Hospital BOND | 0.1910887512 | $2,486,365 | $2,486,365 | $475.12 | | |
| HOGEN | Hospital GEN | 0.3902502903 | $2,486,365 | $2,486,365 | $970.30 | | |
| CE | County Current Expense | 0.3708482477 | $2,486,365 | $2,486,365 | $922.06 | | |
| CR | County Roads | 0.4584763726 | $2,486,365 | $2,486,365 | $1,139.94 | | |
| ISLANDEMS | Hospital GEN (EMS) | 0.5000000000 | $2,486,365 | $2,486,365 | $1,243.18 | | |
| LIB | Library Sno-Isle GEN | 0.3153421757 | $2,486,365 | $2,486,365 | $784.06 | | |
| PORTWHID | Port of S Whidbey GEN | 0.1094540357 | $2,486,365 | $2,486,365 | $272.14 | | |
| SCH206BOND | School 206 BOND | 0.3161759235 | $2,486,365 | $2,486,365 | $786.13 | | |
| SCH206MO | School 206 Enrichment | 0.4547169547 | $2,486,365 | $2,486,365 | $1,130.59 | | |
| ST | State School | 1.3035497053 | $2,486,365 | $2,486,365 | $3,241.10 | | |
| ST2 | State School Part 2 | 0.8169543533 | $2,486,365 | $2,486,365 | $2,031.25 | | |
| SWHIDPRBD | P & R S Whidbey BOND | 0.0152817568 | $2,486,365 | $2,486,365 | $38.00 | | |
| SWHIDPRBD2 | P & R S Whidbey BOND2 | 0.0138911264 | $2,486,365 | $2,486,365 | $34.54 | | |
| SWHIDPRMT | P & R S Whidbey GEN | 0.2053334452 | $2,486,365 | $2,486,365 | $510.53 | | |
| | Total Tax Rate: | 6.6934522006 | | | | | |
| | | | | Taxes w/Current Exemptions: | $16,642.37 | | |
| | | | | Taxes w/o Exemptions: | $16,642.37 | | |
Improvement / Building
| Improvement #1: | RESIDENTIAL | State Code: | Y | 1798.0 sqft | Value: | $235,865 |
| Bathrooms: | 2 | Bedrooms: | 3 | | Ceiling: | DRYWALL PAINTED | Exterior Wall/Cover: | WOOD SIDING | | Floor Covering: | CERAMIC TILE/HWD 40/60 | Floor Structure: | WOOD W/SUBFLOOR | | Foundation: | CONCRETE BLOCKS | Heating: | FHA ELECTRIC | | Interior Finish: | DRYWALL PAINT | Plumbing Fixture Cnt: | 10 | | Roof Slope: | 4" IN 12" | Roof Structure/Cover: | CJ ASPHALT |
|
| | Type | Description | Class CD | Sub Class CD | Year Built | Area |
| | BAS | BASE/MAIN FLOOR | 3 | 0 | 1957 | 875.0 |
| | OCP | OPEN CARPORT | 3 | 0 | 1957 | 606.0 |
| | UTY | STORAGE/UTILITY | 3 | 0 | 1957 | 54.0 |
| | OWP | OPEN WOOD PORCH W/STEPS | 3 | 0 | 1957 | 608.2 |
| | DWN | DOWNSTAIRS LIVING AREA | 3 | 0 | 1957 | 923.0 |
Sketch
Property Image
Land
| 1 | LB | LOW BANK | 0.2000 | 8712.00 | 50.00 | 0.00 | 1.00 | $2,250,000 | $0 |
| 2 | 55 | TIDES | 0.0000 | 0.00 | 50.00 | 0.00 | 1.00 | $500 | $0 |
Roll Value History
| 2026 | N/A | N/A | N/A | N/A | N/A |
| 2025 | $235,865 | $2,250,500 | $0 | $2,486,365 | $2,486,365 |
| 2024 | $239,372 | $2,250,500 | $0 | $2,489,872 | $2,489,872 |
| 2023 | $242,880 | $2,300,500 | $0 | $2,543,380 | $2,543,380 |
| 2022 | $223,101 | $2,000,500 | $0 | $2,223,601 | $2,223,601 |
| 2021 | $161,396 | $1,300,500 | $0 | $1,461,896 | $1,461,896 |
| 2020 | $157,993 | $1,050,500 | $0 | $1,208,493 | $1,208,493 |
| 2019 | $118,187 | $1,100,500 | $0 | $1,218,687 | $1,218,687 |
| 2018 | $118,632 | $950,500 | $0 | $1,069,132 | $1,069,132 |
| 2017 | $119,525 | $700,500 | $0 | $820,025 | $820,025 |
| 2016 | $121,308 | $700,500 | $0 | $821,808 | $821,808 |
| 2015 | $123,092 | $700,500 | $0 | $823,592 | $823,592 |
| 2014 | $124,877 | $700,500 | $0 | $825,377 | $825,377 |
| 2013 | $112,114 | $773,896 | $0 | $886,010 | $886,010 |
| 2012 | $113,948 | $773,896 | $0 | $887,844 | $887,844 |
| 2011 | $115,781 | $773,896 | $0 | $889,677 | $889,677 |
| 2010 | $128,529 | $773,896 | $0 | $902,425 | $902,425 |
| 2009 | $132,397 | $925,075 | $0 | $1,057,472 | $1,057,472 |
| 2008 | $107,875 | $1,058,748 | $0 | $1,166,623 | $1,166,623 |
| 2007 | $105,528 | $1,058,398 | $0 | $1,163,926 | $1,163,926 |
Deed and Sales History
| 1 | 10/19/2021 | WD | Warranty Deed | Z2 LLC | FERREIRA, MANUEL | | | $1,975,000.00 | 50674 | 4532611 |
| 2 | 03/26/2014 | WD | Warranty Deed | PEDEGANA, SHIRLEY W | Z2 LLC | | | $855,000.00 | 14825 | 4357585 |
| 3 | 07/01/1986 | QCD | Quit Claim Deed | PEDEGANA, WILLIAM J | PEDEGANA, SHIRLEY W | | | $0.00 | 61874 | 86008827 |
| 4 | 01/01/1900 | OTHER | Other - Misc. Documents | Unknown | PEDEGANA, WILLIAM J | | | $0.00 | 0 | 0 |
Payout Agreement
| No payout information available.. |