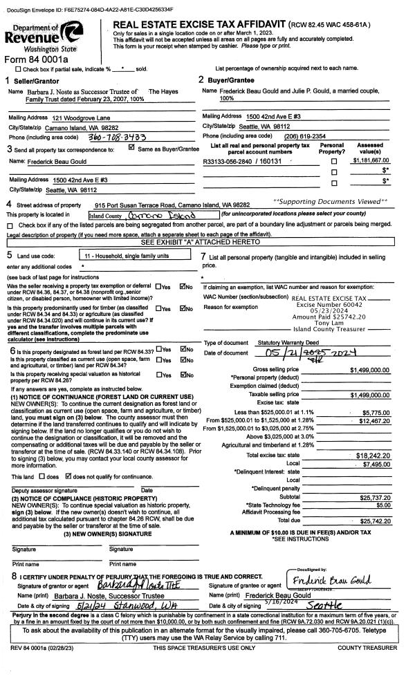
Property
Account |
| Property ID: | 505536 | Abbreviated Legal Description: | SOUTH SHORE CONDO APT D 22.47% INT IN BLDG |
| Geographic ID: | S8191-00-0000D-0 | Agent Code: | |
| Type: | Real | | |
| Tax Area: | 100 - APPRAISER-OH Schl Dist, in OH | Land Use Code | 14 |
| Open Space: | N | DFL | N |
| Historic Property: | N | Remodel Property: | N |
| Multi-Family Redevelopment: | N | | |
| Township: | | Section: | |
| Range: | |
Location |
| Address: | 886 SE BAYSHORE DR APT D OAK HARBOR, WA 98277 | Mapsco: | |
| Neighborhood: | 12*OH-southshore | Map ID: | 87 |
| Neighborhood CD: | 12*OHsouth |
Owner |
| Name: | MOUNTAIN WEST IRA INC | Owner ID: | 316398 |
| Mailing Address: | FBO DARIN COOK IRA 13905 W WAINWRIGHT BOISE, ID 83713 | % Ownership: | 100.0000000000% |
| | | Exemptions: | |
Taxes and Assessment Details
Values
| (+) Improvement Homesite Value: | + | $0 | |
| (+) Improvement Non-Homesite Value: | + | $231,050 | |
| (+) Land Homesite Value: | + | $0 | |
| (+) Land Non-Homesite Value: | + | $120,000 | |
| (+) Curr Use (HS): | + | $0 | $0 |
| (+) Curr Use (NHS): | + | $0 | $0 |
| | | -------------------------- | |
| (=) Market Value: | = | $351,050 | |
| (–) Productivity Loss: | – | $0 | |
| | | -------------------------- | |
| (=) Subtotal: | = | $351,050 | |
| (+) Senior Appraised Value: | + | $0 | |
| (+) Non-Senior Appraised Value: | + | $351,050 | |
| | | -------------------------- | |
| (=) Total Appraised Value: | = | $351,050 | |
| (–) Senior Exemption Loss: | – | $0 | |
| (–) Exemption Loss: | – | $0 | |
| | | -------------------------- | |
| (=) Taxable Value: | = | $351,050 | |
Taxing Jurisdiction
| Owner: | MOUNTAIN WEST IRA INC | | |
| % Ownership: | 100.0000000000% | | |
| Total Value: | $351,050 | | |
| Tax Area: | 100 - APPRAISER-OH Schl Dist, in OH |
| CF | Conservation Futures | 0.0316035091 | $351,050 | $351,050 | $11.09 | | |
| CEM1 | Cemetery #1 | 0.0040320932 | $351,050 | $351,050 | $1.42 | | |
| COH | City of Oak Harbor | 2.3001546061 | $351,050 | $351,050 | $807.47 | | |
| OAKBOND | City of Oak Harbor BOND | 0.1926904192 | $351,050 | $351,050 | $67.64 | | |
| HOBOND | Hospital BOND | 0.1910887512 | $351,050 | $351,050 | $67.08 | | |
| HOGEN | Hospital GEN | 0.3902502903 | $351,050 | $351,050 | $137.00 | | |
| CE | County Current Expense | 0.3708482477 | $351,050 | $351,050 | $130.19 | | |
| ISLANDEMS | Hospital GEN (EMS) | 0.5000000000 | $351,050 | $351,050 | $175.53 | | |
| LIB | Library Sno-Isle GEN | 0.3153421757 | $351,050 | $351,050 | $110.70 | | |
| NWHIDPRMT | P & R N Whidbey GEN | 0.2004466701 | $351,050 | $351,050 | $70.37 | | |
| SCH201MO | School 201 Enrichment | 1.8559231640 | $351,050 | $351,050 | $651.52 | | |
| ST | State School | 1.3035497053 | $351,050 | $351,050 | $457.61 | | |
| ST2 | State School Part 2 | 0.8169543533 | $351,050 | $351,050 | $286.79 | | |
| | Total Tax Rate: | 8.4728839852 | | | | | |
| | | | | Taxes w/Current Exemptions: | $2,974.41 | | |
| | | | | Taxes w/o Exemptions: | $2,974.41 | | |
Improvement / Building
| Improvement #1: | RESIDENTIAL | State Code: | Y | 1651.0 sqft | Value: | $231,050 |
| Bathrooms: | 2 | Bedrooms: | 2 | | Ceiling: | DRYWALL PAINTED | Exterior Wall/Cover: | WOOD SIDING | | Floor Covering: | CARPET/VINYL 80-20 | Floor Structure: | WOOD W/SUBFLOOR | | Foundation: | CONCRETE | Heating: | FHA ELECTRIC | | Interior Finish: | DRYWALL PAINT | Plumbing Fixture Cnt: | 9 | | Roof Slope: | FLAT | Roof Structure/Cover: | CJ BUILT-UP ROCK |
|
| | Type | Description | Class CD | Sub Class CD | Year Built | Area |
| | BAS | BASE/MAIN FLOOR | 3 | 0 | 1978 | 1651.0 |
| | BAW | BALCONY WOOD RAIL | 3 | 0 | 1978 | 208.0 |
| | UTY | STORAGE/UTILITY | 3 | 0 | 1978 | 0.0 |
| | oELV | ELEVATOR | 3 | 0 | 1978 | 0.0 |
| | oPV2 | PV/ASPH 3" | 3 | 0 | 1978 | 0.0 |
| | OWP | OPEN WOOD PORCH W/STEPS | 3 | 0 | 1978 | 0.0 |
| | BGR | BASEMENT GARAGE | 3 | 0 | 1978 | 458.0 |
Sketch
Property Image
Land
| 1 | 61 | MULTIPLE RESIDENCES | 0.0000 | 1506.00 | 0.00 | 0.00 | 1.00 | $120,000 | $0 |
Roll Value History
| 2026 | N/A | N/A | N/A | N/A | N/A |
| 2025 | $231,050 | $120,000 | $0 | $351,050 | $351,050 |
| 2024 | $234,016 | $120,000 | $0 | $354,016 | $354,016 |
| 2023 | $219,188 | $120,000 | $0 | $339,188 | $339,188 |
| 2022 | $202,475 | $120,000 | $0 | $322,475 | $322,475 |
| 2021 | $180,202 | $100,000 | $0 | $280,202 | $280,202 |
| 2020 | $176,355 | $100,000 | $0 | $276,355 | $276,355 |
| 2019 | $132,040 | $100,000 | $0 | $232,040 | $232,040 |
| 2018 | $132,444 | $65,000 | $0 | $197,444 | $197,444 |
| 2017 | $125,704 | $80,812 | $0 | $206,516 | $206,516 |
| 2016 | $127,360 | $80,812 | $0 | $208,172 | $208,172 |
| 2015 | $129,015 | $80,812 | $0 | $209,827 | $209,827 |
| 2014 | $130,670 | $80,812 | $0 | $211,482 | $211,482 |
| 2013 | $132,326 | $80,812 | $0 | $213,138 | $213,138 |
| 2012 | $128,484 | $80,812 | $0 | $209,296 | $209,296 |
| 2011 | $128,484 | $80,812 | $0 | $209,296 | $209,296 |
| 2010 | $135,580 | $80,812 | $0 | $216,392 | $216,392 |
| 2009 | $141,063 | $102,303 | $0 | $243,366 | $243,366 |
| 2008 | $142,754 | $102,303 | $0 | $245,057 | $245,057 |
| 2007 | $144,446 | $102,303 | $0 | $246,749 | $246,749 |
Deed and Sales History
| 1 | 05/03/2025 | WD | Warranty Deed | WALKER, DAVID P | MOUNTAIN WEST IRA INC | | | $400,000.00 | 63401 | 4585517 |
| 2 | 12/10/2013 | WD | Warranty Deed | FINE, JOHN D B | WALKER, DAVID P | | | $210,000.00 | 13728 | 4352696 |
| 3 | 04/11/2008 | QCD | Quit Claim Deed | FINE, JOHN D B | FINE, JOHN D B | | | $95,021.00 | 80961 | 4226738 |
| 4 | 05/17/2004 | WD | Warranty Deed | PALMER, PETER E | FINE, JOHN D B | | | $195,000.00 | 42112 | 4101170 |
| 5 | 05/20/1999 | WD | Warranty Deed | DYER, MARJORIE N | PALMER, PETER E | | | $127,500.00 | 92005 | 99012652 |
| 6 | 08/01/1986 | PRD | Personal Representatives Deed | DYER, C Y | DYER, MARJORIE N | | | $0.00 | 62056 | 86009638 |
| 7 | 06/01/1980 | WD | Warranty Deed | TIMBER, ISLAND, I | DYER, C Y | | | $97,500.00 | 2078 | 370198 |
| 8 | 01/01/1900 | OTHER | Other - Misc. Documents | Unknown | TIMBER, ISLAND, I | | | $0.00 | 0 | 0 |
Payout Agreement
| No payout information available.. |