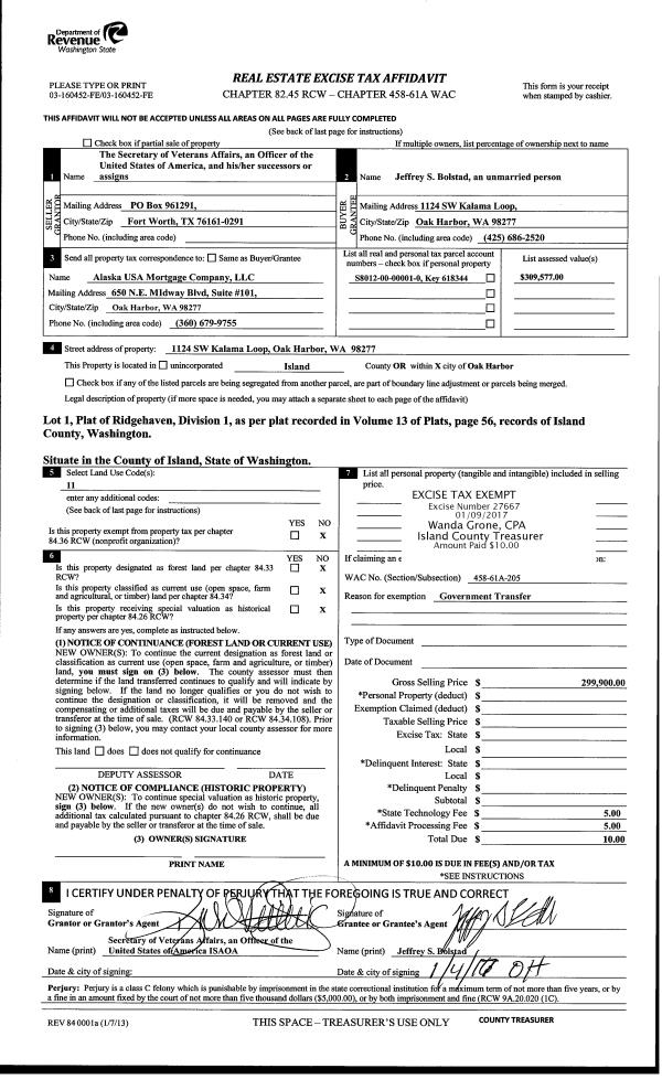
Property
Account |
| Property ID: | 505581 | Abbreviated Legal Description: | OAKRIDGE CONDO APT 912 8.58% INT IN BLDG |
| Geographic ID: | S7592-00-00912-0 | Agent Code: | |
| Type: | Real | | |
| Tax Area: | 100 - APPRAISER-OH Schl Dist, in OH | Land Use Code | 14 |
| Open Space: | N | DFL | N |
| Historic Property: | N | Remodel Property: | N |
| Multi-Family Redevelopment: | N | | |
| Township: | | Section: | |
| Range: | |
Location |
| Address: | 1101 SW HARRIER CIR APT 206 OAK HARBOR, WA 98277 | Mapsco: | |
| Neighborhood: | 3B*OH-oak ridge | Map ID: | 93 |
| Neighborhood CD: | 3B*OHokrdg |
Owner |
| Name: | SAUL, ALANA K | Owner ID: | 317130 |
| Mailing Address: | 1101 SW HARRIER CIR APT 206 OAK HARBOR, WA 98277 | % Ownership: | 100.0000000000% |
| | | Exemptions: | |
Taxes and Assessment Details
Values
| (+) Improvement Homesite Value: | + | $0 | |
| (+) Improvement Non-Homesite Value: | + | $112,641 | |
| (+) Land Homesite Value: | + | $0 | |
| (+) Land Non-Homesite Value: | + | $110,000 | |
| (+) Curr Use (HS): | + | $0 | $0 |
| (+) Curr Use (NHS): | + | $0 | $0 |
| | | -------------------------- | |
| (=) Market Value: | = | $222,641 | |
| (–) Productivity Loss: | – | $0 | |
| | | -------------------------- | |
| (=) Subtotal: | = | $222,641 | |
| (+) Senior Appraised Value: | + | $0 | |
| (+) Non-Senior Appraised Value: | + | $222,641 | |
| | | -------------------------- | |
| (=) Total Appraised Value: | = | $222,641 | |
| (–) Senior Exemption Loss: | – | $0 | |
| (–) Exemption Loss: | – | $0 | |
| | | -------------------------- | |
| (=) Taxable Value: | = | $222,641 | |
Taxing Jurisdiction
| Owner: | SAUL, ALANA K | | |
| % Ownership: | 100.0000000000% | | |
| Total Value: | $222,641 | | |
| Tax Area: | 100 - APPRAISER-OH Schl Dist, in OH |
| CF | Conservation Futures | 0.0316035091 | $222,641 | $222,641 | $7.04 | | |
| CEM1 | Cemetery #1 | 0.0040320932 | $222,641 | $222,641 | $0.90 | | |
| COH | City of Oak Harbor | 2.3001546061 | $222,641 | $222,641 | $512.11 | | |
| OAKBOND | City of Oak Harbor BOND | 0.1926904192 | $222,641 | $222,641 | $42.90 | | |
| HOBOND | Hospital BOND | 0.1910887512 | $222,641 | $222,641 | $42.54 | | |
| HOGEN | Hospital GEN | 0.3902502903 | $222,641 | $222,641 | $86.89 | | |
| CE | County Current Expense | 0.3708482477 | $222,641 | $222,641 | $82.57 | | |
| ISLANDEMS | Hospital GEN (EMS) | 0.5000000000 | $222,641 | $222,641 | $111.32 | | |
| LIB | Library Sno-Isle GEN | 0.3153421757 | $222,641 | $222,641 | $70.21 | | |
| NWHIDPRMT | P & R N Whidbey GEN | 0.2004466701 | $222,641 | $222,641 | $44.63 | | |
| SCH201MO | School 201 Enrichment | 1.8559231640 | $222,641 | $222,641 | $413.20 | | |
| ST | State School | 1.3035497053 | $222,641 | $222,641 | $290.22 | | |
| ST2 | State School Part 2 | 0.8169543533 | $222,641 | $222,641 | $181.89 | | |
| | Total Tax Rate: | 8.4728839852 | | | | | |
| | | | | Taxes w/Current Exemptions: | $1,886.42 | | |
| | | | | Taxes w/o Exemptions: | $1,886.42 | | |
Improvement / Building
| Improvement #1: | RESIDENTIAL | State Code: | A1 | 772.0 sqft | Value: | $112,641 |
| Bathrooms: | 1 | Bedrooms: | 2 | | Ceiling: | DRY WALL SPRAYED | Exterior Wall/Cover: | WOOD SIDING | | Floor Covering: | CARPET/VINYL 80-20 | Floor Structure: | WOOD W/SUBFLOOR | | Foundation: | CONCRETE | Heating: | BASEBOARD ELECTRIC | | Interior Finish: | DRYWALL PAINT | Plumbing Fixture Cnt: | 6 | | Roof Slope: | 4" IN 12" | Roof Structure/Cover: | CJ ASPHALT |
|
| | Type | Description | Class CD | Sub Class CD | Year Built | Area |
| | BAS | BASE/MAIN FLOOR | 3 | 0 | 1979 | 772.0 |
| | UTY | STORAGE/UTILITY | 3 | 0 | 1979 | 18.0 |
| | OWC | OPEN WOOD PORCH W/STEPS/ROOF/C | 3 | 0 | 1979 | 34.0 |
| | OWP | OPEN WOOD PORCH W/STEPS | 3 | 0 | 1979 | 84.0 |
| | COMA | Common Area Improvement | 3 | 0 | 1979 | 0.0 |
Sketch
Property Image
Land
| 1 | 61 | MULTIPLE RESIDENCES | 0.0000 | 2603.00 | 0.00 | 0.00 | 1.00 | $110,000 | $0 |
Roll Value History
| 2026 | N/A | N/A | N/A | N/A | N/A |
| 2025 | $112,641 | $110,000 | $0 | $222,641 | $222,641 |
| 2024 | $116,678 | $110,000 | $0 | $226,678 | $226,678 |
| 2023 | $118,432 | $100,000 | $0 | $218,432 | $218,432 |
| 2022 | $108,879 | $80,000 | $0 | $188,879 | $188,879 |
| 2021 | $96,126 | $65,000 | $0 | $161,126 | $161,126 |
| 2020 | $93,690 | $30,000 | $0 | $123,690 | $123,690 |
| 2019 | $58,158 | $55,000 | $0 | $113,158 | $113,158 |
| 2018 | $58,385 | $65,000 | $0 | $123,385 | $123,385 |
| 2017 | $58,842 | $10,000 | $0 | $68,842 | $68,842 |
| 2016 | $59,756 | $10,000 | $0 | $69,756 | $69,756 |
| 2015 | $48,536 | $10,000 | $0 | $58,536 | $58,536 |
| 2014 | $61,584 | $20,400 | $0 | $81,984 | $81,984 |
| 2013 | $62,125 | $20,356 | $0 | $82,481 | $82,481 |
| 2012 | $63,943 | $20,356 | $0 | $84,299 | $84,299 |
| 2011 | $63,943 | $20,356 | $0 | $84,299 | $84,299 |
| 2010 | $67,600 | $30,846 | $0 | $98,446 | $98,446 |
| 2009 | $70,572 | $39,045 | $0 | $109,617 | $109,617 |
| 2008 | $71,487 | $39,045 | $0 | $110,532 | $110,532 |
| 2007 | $72,868 | $39,045 | $0 | $111,913 | $111,913 |
Deed and Sales History
| 1 | 06/23/2025 | WD | Warranty Deed | GAMBLE, KORIE B | SAUL, ALANA K | | | $225,000.00 | 63943 | 4587432 |
| 2 | 08/28/2020 | WD | Warranty Deed | WIKERT, JODY L | GAMBLE, KORIE B | | | $160,000.00 | 44599 | 4495718 |
| 3 | 12/23/2016 | WD | Warranty Deed | JOHNSON JTWROS, CRAIG A | WIKERT, JODY L | | | $87,500.00 | 27578 | 4414450 |
| 4 | 11/04/2005 | WD | Warranty Deed | TASSIE, BETTY K | JOHNSON JTWROS, CRAIG A | | | $93,000.00 | 55854 | 4154632 |
| 5 | 12/01/1989 | WD | Warranty Deed | DECKER, JOHN C | TASSIE, H C | | | $38,500.00 | 95847 | 89018763 |
| 6 | 12/01/1989 | QCD | Quit Claim Deed | TASSIE, H C | TASSIE, BETTY K | | | $0.00 | 95848 | 89018764 |
| 7 | 08/01/1984 | WD | Warranty Deed | LITCHFIELD, STEPHEN J | DECKER, JOHN C | | | $39,500.00 | 42383 | 84001920 |
| 8 | 10/01/1979 | WD | Warranty Deed | ISLAND, SAVINGS & | LITCHFIELD, STEPHEN J | | | $32,500.00 | 95147 | 360663 |
Payout Agreement
| No payout information available.. |