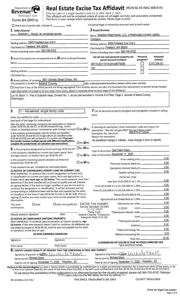
Property
Account |
| Property ID: | 505590 | Abbreviated Legal Description: | OAKRIDGE CONDO APT 902 8.58% INT IN BLDG |
| Geographic ID: | S7592-00-00902-0 | Agent Code: | |
| Type: | Real | | |
| Tax Area: | 100 - APPRAISER-OH Schl Dist, in OH | Land Use Code | 14 |
| Open Space: | N | DFL | N |
| Historic Property: | N | Remodel Property: | N |
| Multi-Family Redevelopment: | N | | |
| Township: | | Section: | |
| Range: | |
Location |
| Address: | 1101 SW HARRIER CIR APT 201 OAK HARBOR, WA 98277 | Mapsco: | |
| Neighborhood: | 3B*OH-oak ridge | Map ID: | 93 |
| Neighborhood CD: | 3B*OHokrdg |
Owner |
| Name: | WORTMANN, ELIAS | Owner ID: | 306521 |
| Mailing Address: | 1101 SW HARRIER CIRCLE #201 OAK HARBOR, WA 98277 | % Ownership: | 100.0000000000% |
| | | Exemptions: | |
Taxes and Assessment Details
Values
| (+) Improvement Homesite Value: | + | $0 | |
| (+) Improvement Non-Homesite Value: | + | $119,514 | |
| (+) Land Homesite Value: | + | $0 | |
| (+) Land Non-Homesite Value: | + | $110,000 | |
| (+) Curr Use (HS): | + | $0 | $0 |
| (+) Curr Use (NHS): | + | $0 | $0 |
| | | -------------------------- | |
| (=) Market Value: | = | $229,514 | |
| (–) Productivity Loss: | – | $0 | |
| | | -------------------------- | |
| (=) Subtotal: | = | $229,514 | |
| (+) Senior Appraised Value: | + | $0 | |
| (+) Non-Senior Appraised Value: | + | $229,514 | |
| | | -------------------------- | |
| (=) Total Appraised Value: | = | $229,514 | |
| (–) Senior Exemption Loss: | – | $0 | |
| (–) Exemption Loss: | – | $0 | |
| | | -------------------------- | |
| (=) Taxable Value: | = | $229,514 | |
Taxing Jurisdiction
| Owner: | WORTMANN, ELIAS | | |
| % Ownership: | 100.0000000000% | | |
| Total Value: | $229,514 | | |
| Tax Area: | 100 - APPRAISER-OH Schl Dist, in OH |
| CF | Conservation Futures | 0.0316035091 | $229,514 | $229,514 | $7.25 | | |
| CEM1 | Cemetery #1 | 0.0040320932 | $229,514 | $229,514 | $0.93 | | |
| COH | City of Oak Harbor | 2.3001546061 | $229,514 | $229,514 | $527.92 | | |
| OAKBOND | City of Oak Harbor BOND | 0.1926904192 | $229,514 | $229,514 | $44.23 | | |
| HOBOND | Hospital BOND | 0.1910887512 | $229,514 | $229,514 | $43.86 | | |
| HOGEN | Hospital GEN | 0.3902502903 | $229,514 | $229,514 | $89.57 | | |
| CE | County Current Expense | 0.3708482477 | $229,514 | $229,514 | $85.11 | | |
| ISLANDEMS | Hospital GEN (EMS) | 0.5000000000 | $229,514 | $229,514 | $114.76 | | |
| LIB | Library Sno-Isle GEN | 0.3153421757 | $229,514 | $229,514 | $72.38 | | |
| NWHIDPRMT | P & R N Whidbey GEN | 0.2004466701 | $229,514 | $229,514 | $46.01 | | |
| SCH201MO | School 201 Enrichment | 1.8559231640 | $229,514 | $229,514 | $425.96 | | |
| ST | State School | 1.3035497053 | $229,514 | $229,514 | $299.18 | | |
| ST2 | State School Part 2 | 0.8169543533 | $229,514 | $229,514 | $187.50 | | |
| | Total Tax Rate: | 8.4728839852 | | | | | |
| | | | | Taxes w/Current Exemptions: | $1,944.66 | | |
| | | | | Taxes w/o Exemptions: | $1,944.66 | | |
Improvement / Building
| Improvement #1: | RESIDENTIAL | State Code: | A1 | 772.0 sqft | Value: | $119,514 |
| Bathrooms: | 1 | Bedrooms: | 2 | | Ceiling: | DRY WALL SPRAYED | Exterior Wall/Cover: | WOOD SIDING | | Floor Covering: | CARPET/VINYL 80-20 | Floor Structure: | WOOD W/SUBFLOOR | | Foundation: | CONCRETE | Heating: | BASEBOARD ELECTRIC | | Interior Finish: | DRYWALL PAINT | Plumbing Fixture Cnt: | 6 | | Roof Slope: | 4" IN 12" | Roof Structure/Cover: | CJ ASPHALT |
|
| | Type | Description | Class CD | Sub Class CD | Year Built | Area |
| | BAS | BASE/MAIN FLOOR | 3 | 0 | 1979 | 772.0 |
| | UTY | STORAGE/UTILITY | 3 | 0 | 1979 | 18.0 |
| | OWP | OPEN WOOD PORCH W/STEPS | 3 | 0 | 1979 | 84.0 |
| | OWC | OPEN WOOD PORCH W/STEPS/ROOF/C | 3 | 0 | 1979 | 34.0 |
| | COMA | Common Area Improvement | 3 | 0 | 1979 | 0.0 |
Sketch
Property Image
Land
| 1 | 61 | MULTIPLE RESIDENCES | 0.0000 | 2603.00 | 0.00 | 0.00 | 1.00 | $110,000 | $0 |
Roll Value History
| 2026 | N/A | N/A | N/A | N/A | N/A |
| 2025 | $119,514 | $110,000 | $0 | $229,514 | $229,514 |
| 2024 | $123,692 | $110,000 | $0 | $233,692 | $233,692 |
| 2023 | $125,445 | $100,000 | $0 | $225,445 | $225,445 |
| 2022 | $108,879 | $80,000 | $0 | $188,879 | $188,879 |
| 2021 | $96,126 | $65,000 | $0 | $161,126 | $161,126 |
| 2020 | $93,690 | $30,000 | $0 | $123,690 | $123,690 |
| 2019 | $56,857 | $55,000 | $0 | $111,857 | $111,857 |
| 2018 | $57,081 | $65,000 | $0 | $122,081 | $122,081 |
| 2017 | $57,527 | $10,000 | $0 | $67,527 | $67,527 |
| 2016 | $58,420 | $10,000 | $0 | $68,420 | $68,420 |
| 2015 | $47,450 | $10,000 | $0 | $57,450 | $57,450 |
| 2014 | $60,205 | $20,400 | $0 | $80,605 | $80,605 |
| 2013 | $60,724 | $20,356 | $0 | $81,080 | $81,080 |
| 2012 | $62,499 | $20,356 | $0 | $82,855 | $82,855 |
| 2011 | $62,499 | $20,356 | $0 | $82,855 | $82,855 |
| 2010 | $65,410 | $30,846 | $0 | $96,256 | $96,256 |
| 2009 | $68,286 | $39,045 | $0 | $107,331 | $107,331 |
| 2008 | $69,171 | $39,045 | $0 | $108,216 | $108,216 |
| 2007 | $72,868 | $39,045 | $0 | $111,913 | $111,913 |
Deed and Sales History
| 1 | 10/19/2022 | WD | Warranty Deed | RABANAL NACARIO, GRACE ANN | WORTMANN, ELIAS | | | $245,000.00 | 55049 | 4553306 |
| 2 | 10/28/2020 | WD | Warranty Deed | STOFFER, VIVIAN K | RABANAL NACARIO, GRACE ANN | | | $167,500.00 | 45676 | 4502301 |
| 3 | 03/08/2018 | WD | Warranty Deed | MCDONALD, ELIZABETH | STOFFER, VIVIAN K | | | $110,000.00 | 33367 | 4441217 |
| 4 | 08/13/2001 | WD | Warranty Deed | WATSON, LEON | MCDONALD, ELIZABETH | | | $56,000.00 | 13132 | 20040635 |
| 5 | 07/01/1987 | WD | Warranty Deed | , | WATSON, LEON | | | $34,950.00 | 72257 | 87010270 |
| 6 | 01/01/1900 | OTHER | Other - Misc. Documents | Unknown | , | | | $0.00 | 0 | 0 |
Payout Agreement
| No payout information available.. |