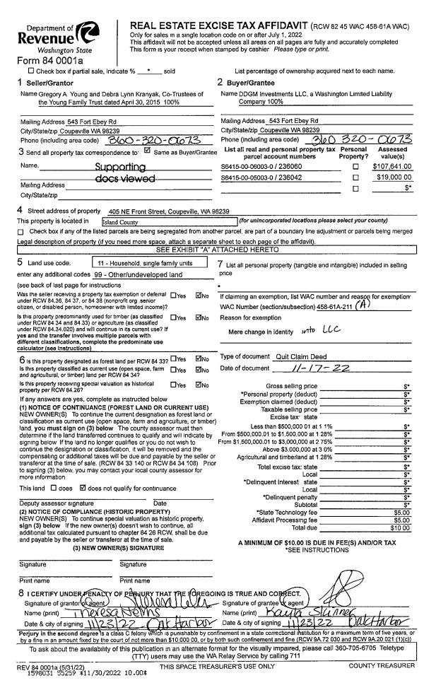
Property
Account |
| Property ID: | 505689 | Abbreviated Legal Description: | OAKRIDGE CONDO APT 911 8.44% INT IN BLDG |
| Geographic ID: | S7592-00-00911-0 | Agent Code: | |
| Type: | Real | | |
| Tax Area: | 100 - APPRAISER-OH Schl Dist, in OH | Land Use Code | 14 |
| Open Space: | N | DFL | N |
| Historic Property: | N | Remodel Property: | N |
| Multi-Family Redevelopment: | N | | |
| Township: | | Section: | |
| Range: | |
Location |
| Address: | 1101 SW HARRIER CIR APT 106 OAK HARBOR, WA 98277 | Mapsco: | |
| Neighborhood: | 3B*OH-oak ridge | Map ID: | 93 |
| Neighborhood CD: | 3B*OHokrdg |
Owner |
| Name: | LANGE, NICOLE | Owner ID: | 303889 |
| Mailing Address: | 8372 PINEVERDE LN JACKSONVILLE, FL 32244-5252 | % Ownership: | 100.0000000000% |
| | | Exemptions: | |
Taxes and Assessment Details
Values
| (+) Improvement Homesite Value: | + | $0 | |
| (+) Improvement Non-Homesite Value: | + | $110,942 | |
| (+) Land Homesite Value: | + | $0 | |
| (+) Land Non-Homesite Value: | + | $110,000 | |
| (+) Curr Use (HS): | + | $0 | $0 |
| (+) Curr Use (NHS): | + | $0 | $0 |
| | | -------------------------- | |
| (=) Market Value: | = | $220,942 | |
| (–) Productivity Loss: | – | $0 | |
| | | -------------------------- | |
| (=) Subtotal: | = | $220,942 | |
| (+) Senior Appraised Value: | + | $0 | |
| (+) Non-Senior Appraised Value: | + | $220,942 | |
| | | -------------------------- | |
| (=) Total Appraised Value: | = | $220,942 | |
| (–) Senior Exemption Loss: | – | $0 | |
| (–) Exemption Loss: | – | $0 | |
| | | -------------------------- | |
| (=) Taxable Value: | = | $220,942 | |
Taxing Jurisdiction
| Owner: | LANGE, NICOLE | | |
| % Ownership: | 100.0000000000% | | |
| Total Value: | $220,942 | | |
| Tax Area: | 100 - APPRAISER-OH Schl Dist, in OH |
| CF | Conservation Futures | 0.0316035091 | $220,942 | $220,942 | $6.98 | | |
| CEM1 | Cemetery #1 | 0.0040320932 | $220,942 | $220,942 | $0.89 | | |
| COH | City of Oak Harbor | 2.3001546061 | $220,942 | $220,942 | $508.20 | | |
| OAKBOND | City of Oak Harbor BOND | 0.1926904192 | $220,942 | $220,942 | $42.57 | | |
| HOBOND | Hospital BOND | 0.1910887512 | $220,942 | $220,942 | $42.22 | | |
| HOGEN | Hospital GEN | 0.3902502903 | $220,942 | $220,942 | $86.22 | | |
| CE | County Current Expense | 0.3708482477 | $220,942 | $220,942 | $81.94 | | |
| ISLANDEMS | Hospital GEN (EMS) | 0.5000000000 | $220,942 | $220,942 | $110.47 | | |
| LIB | Library Sno-Isle GEN | 0.3153421757 | $220,942 | $220,942 | $69.67 | | |
| NWHIDPRMT | P & R N Whidbey GEN | 0.2004466701 | $220,942 | $220,942 | $44.29 | | |
| SCH201MO | School 201 Enrichment | 1.8559231640 | $220,942 | $220,942 | $410.05 | | |
| ST | State School | 1.3035497053 | $220,942 | $220,942 | $288.01 | | |
| ST2 | State School Part 2 | 0.8169543533 | $220,942 | $220,942 | $180.50 | | |
| | Total Tax Rate: | 8.4728839852 | | | | | |
| | | | | Taxes w/Current Exemptions: | $1,872.01 | | |
| | | | | Taxes w/o Exemptions: | $1,872.01 | | |
Improvement / Building
| Improvement #1: | RESIDENTIAL | State Code: | A1 | 764.0 sqft | Value: | $110,942 |
| Bathrooms: | 1 | Bedrooms: | 2 | | Ceiling: | DRY WALL SPRAYED | Exterior Wall/Cover: | WOOD SIDING | | Floor Covering: | CARPET/VINYL 80-20 | Floor Structure: | WOOD W/SUBFLOOR | | Foundation: | CONCRETE | Heating: | BASEBOARD ELECTRIC | | Interior Finish: | DRYWALL PAINT | Plumbing Fixture Cnt: | 6 | | Roof Slope: | 4" IN 12" | Roof Structure/Cover: | CJ ASPHALT |
|
| | Type | Description | Class CD | Sub Class CD | Year Built | Area |
| | BAS | BASE/MAIN FLOOR | 3 | 0 | 1979 | 764.0 |
| | OP2 | OPEN PORCH W/STEPS | 3 | 0 | 1979 | 16.0 |
| | UTY | STORAGE/UTILITY | 3 | 0 | 1979 | 18.0 |
| | OWP | OPEN WOOD PORCH W/STEPS | 3 | 0 | 1979 | 84.0 |
| | COMA | Common Area Improvement | 3 | 0 | 1979 | 0.0 |
Sketch
Property Image
Land
| 1 | 61 | MULTIPLE RESIDENCES | 0.0000 | 2561.00 | 0.00 | 0.00 | 1.00 | $110,000 | $0 |
Roll Value History
| 2026 | N/A | N/A | N/A | N/A | N/A |
| 2025 | $110,942 | $110,000 | $0 | $220,942 | $220,942 |
| 2024 | $114,915 | $110,000 | $0 | $224,915 | $224,915 |
| 2023 | $116,642 | $100,000 | $0 | $216,642 | $216,642 |
| 2022 | $107,230 | $80,000 | $0 | $187,230 | $187,230 |
| 2021 | $94,671 | $65,000 | $0 | $159,671 | $159,671 |
| 2020 | $92,263 | $30,000 | $0 | $122,263 | $122,263 |
| 2019 | $57,224 | $55,000 | $0 | $112,224 | $112,224 |
| 2018 | $57,448 | $65,000 | $0 | $122,448 | $122,448 |
| 2017 | $57,898 | $10,000 | $0 | $67,898 | $67,898 |
| 2016 | $58,797 | $10,000 | $0 | $68,797 | $68,797 |
| 2015 | $47,758 | $10,000 | $0 | $57,758 | $57,758 |
| 2014 | $60,597 | $20,400 | $0 | $80,997 | $80,997 |
| 2013 | $61,494 | $20,027 | $0 | $81,521 | $81,521 |
| 2012 | $61,403 | $20,027 | $0 | $81,430 | $81,430 |
| 2011 | $61,403 | $20,027 | $0 | $81,430 | $81,430 |
| 2010 | $64,567 | $30,348 | $0 | $94,915 | $94,915 |
| 2009 | $67,401 | $38,415 | $0 | $105,816 | $105,816 |
| 2008 | $68,274 | $38,415 | $0 | $106,689 | $106,689 |
| 2007 | $71,009 | $38,415 | $0 | $109,424 | $109,424 |
Deed and Sales History
| 1 | 04/12/2022 | WD | Warranty Deed | DICKMAN, ELIZABETH L | LANGE, NICOLE | | | $220,000.00 | 52838 | 4543991 |
| 2 | 03/09/2022 | QCD | Quit Claim Deed | HIDAHL-PATTEN, TRAVIS M | DICKMAN, ELIZABETH L | | | $0.00 | 52837 | 4543990 |
| 3 | 10/30/2020 | WD | Warranty Deed | TAKAOKA, JOSHUA BEN | DICKMAN, ELIZABETH L | | | $164,500.00 | 45594 | 4501693 |
| 4 | 02/22/2016 | WD | Warranty Deed | TAKAOKA, JOSHUA BEN | TAKAOKA, JOSHUA BEN | | | $0.00 | 23570 | 4396028 |
| 5 | 02/22/2016 | WD | Warranty Deed | POTEETE, SAMANTHA JEAN | TAKAOKA, JOSHUA BEN | | | $85,000.00 | 23485 | 4395628 |
| 6 | 01/30/2006 | ESTSEPPROP | Establish Separate Property | POTEETE, SAMANTHA JEAN | POTEETE, SAMANTHA JEAN | | | $0.00 | 60442 | 4161313 |
| 7 | 01/27/2006 | WD | Warranty Deed | MARTIN, JAMES L | POTEETE, SAMANTHA JEAN | | | $92,000.00 | 60441 | 4161312 |
| 8 | 09/01/1993 | WD | Warranty Deed | HORNE, GEORGE M | MARTIN, JAMES L | | | $50,500.00 | 33640 | 93018893 |
| 9 | 11/01/1979 | WD | Warranty Deed | ISLAND, SAVINGS & | HORNE, GEORGE M | | | $33,000.00 | 95471 | 361738 |
| 10 | 01/01/1900 | OTHER | Other - Misc. Documents | Unknown | ISLAND, SAVINGS & | | | $0.00 | 0 | 0 |
Payout Agreement
| No payout information available.. |