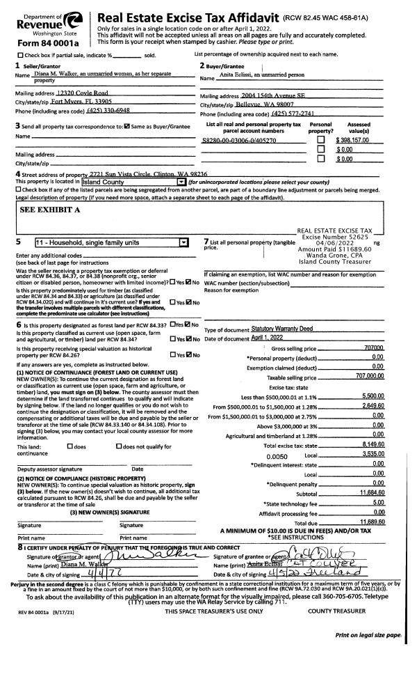
Property
Account |
| Property ID: | 505803 | Abbreviated Legal Description: | UTSALADY COVE CONDO APT 10 |
| Geographic ID: | S8352-00-00010-0 | Agent Code: | |
| Type: | Real | | |
| Tax Area: | 590 - APPRAISER-Stan/Cam Schl Dist, Special Dist, improved & less than 1 acre | Land Use Code | 14 |
| Open Space: | N | DFL | N |
| Historic Property: | N | Remodel Property: | N |
| Multi-Family Redevelopment: | N | | |
| Township: | | Section: | |
| Range: | |
Location |
| Address: | 130 E NORTH CAMANO DR UNIT 10 CAMANO ISLAND, WA 98282 | Mapsco: | |
| Neighborhood: | 52*RR-utsalady co | Map ID: | 962 |
| Neighborhood CD: | 52*RRutsco |
Owner |
| Name: | JOSEPHSEN, UTTE | Owner ID: | 278141 |
| Mailing Address: | 130 E NORTH CAMANO DR UNIT 10 CAMANO ISLAND, WA 98282 | % Ownership: | 100.0000000000% |
| | | Exemptions: | SNR/DSBL |
Taxes and Assessment Details
Values
| (+) Improvement Homesite Value: | + | $157,187 | |
| (+) Improvement Non-Homesite Value: | + | $0 | |
| (+) Land Homesite Value: | + | $130,000 | |
| (+) Land Non-Homesite Value: | + | $0 | |
| (+) Curr Use (HS): | + | $0 | $0 |
| (+) Curr Use (NHS): | + | $0 | $0 |
| | | -------------------------- | |
| (=) Market Value: | = | $287,187 | |
| (–) Productivity Loss: | – | $0 | |
| | | -------------------------- | |
| (=) Subtotal: | = | $287,187 | |
| (+) Senior Appraised Value: | + | $287,187 | |
| (+) Non-Senior Appraised Value: | + | $0 | |
| | | -------------------------- | |
| (=) Total Appraised Value: | = | $287,187 | |
| (–) Senior Exemption Loss: | – | $70,000 | |
| (–) Exemption Loss: | – | $0 | |
| | | -------------------------- | |
| (=) Taxable Value: | = | $217,187 | |
Taxing Jurisdiction
| Owner: | JOSEPHSEN, UTTE | | |
| % Ownership: | 100.0000000000% | | |
| Total Value: | $287,187 | | |
| Tax Area: | 590 - APPRAISER-Stan/Cam Schl Dist, Special Dist, improved & less than 1 acre |
| CF | Conservation Futures | 0.0316035091 | $287,187 | $217,187 | $6.86 | | |
| EMS1 | Fire & Rescue Dist #1 Camano GEN (EMS) | 0.3677864386 | $287,187 | $217,187 | $79.88 | | |
| FIRE1 | Fire & Rescue Dist #1 Camano GEN | 1.2502910536 | $287,187 | $217,187 | $271.55 | | |
| FIRE1BOND | Fire & Rescue Dist #1 Camano BOND | 0.0000000000 | $287,187 | $0 | $0.00 | | |
| CE | County Current Expense | 0.3708482477 | $287,187 | $217,187 | $80.54 | | |
| CR | County Roads | 0.4584763726 | $287,187 | $217,187 | $99.58 | | |
| LCIB | Library Sno-Isle BOND (Camano Island) | 0.0000000000 | $287,187 | $0 | $0.00 | | |
| LIB | Library Sno-Isle GEN | 0.3153421757 | $287,187 | $217,187 | $68.49 | | |
| SCH205_401 | School 205-401 Enrichment | 0.0000000000 | $287,187 | $0 | $0.00 | | |
| SCH205BOND | School 205-401 BOND | 0.0000000000 | $287,187 | $0 | $0.00 | | |
| ST | State School | 1.3035497053 | $287,187 | $217,187 | $283.11 | | |
| ST2 | State School Part 2 | 0.0000000000 | $287,187 | $0 | $0.00 | | |
| | Total Tax Rate: | 4.0978975026 | | | | | |
| | | | | Taxes w/Current Exemptions: | $890.01 | | |
| | | | | Taxes w/o Exemptions: | $2,102.49 | | |
Improvement / Building
| Improvement #1: | RESIDENTIAL | State Code: | A1 | 890.0 sqft | Value: | $157,187 |
| Bathrooms: | 1 | Bedrooms: | 2 | | Ceiling: | DRY WALL SPRAYED | Exterior Wall/Cover: | STUCCO | | Floor Covering: | CARPET/VINYL 80-20 | Floor Structure: | WOOD W/SUBFLOOR | | Foundation: | CONCRETE | Heating: | BASEBOARD ELECTRIC | | Interior Finish: | DRYWALL PAINT | Plumbing Fixture Cnt: | 6 | | Roof Slope: | 4" IN 12" | Roof Structure/Cover: | CJ CONCRETE TILE |
|
| | Type | Description | Class CD | Sub Class CD | Year Built | Area |
| | BAS | BASE/MAIN FLOOR | 3 | 0 | 1978 | 890.0 |
| | OWP | OPEN WOOD PORCH W/STEPS | 3 | 0 | 1978 | 112.0 |
| | COMA | Common Area Improvement | 3 | 0 | 1978 | 0.0 |
Sketch
Property Image
Land
| 1 | 61 | MULTIPLE RESIDENCES | 0.0000 | 4000.00 | 0.00 | 0.00 | 1.00 | $130,000 | $0 |
Roll Value History
| 2026 | N/A | N/A | N/A | N/A | N/A |
| 2025 | $157,187 | $130,000 | $0 | $287,187 | $217,187 |
| 2024 | $162,214 | $130,000 | $0 | $292,214 | $222,214 |
| 2023 | $164,282 | $130,000 | $0 | $294,282 | $224,282 |
| 2022 | $151,456 | $130,000 | $0 | $281,456 | $281,456 |
| 2021 | $93,566 | $130,000 | $0 | $223,566 | $223,566 |
| 2020 | $91,504 | $70,000 | $0 | $161,504 | $161,504 |
| 2019 | $65,395 | $80,000 | $0 | $145,395 | $145,395 |
| 2018 | $65,656 | $60,000 | $0 | $125,656 | $125,656 |
| 2017 | $66,179 | $22,120 | $0 | $88,299 | $88,299 |
| 2016 | $67,224 | $22,120 | $0 | $89,344 | $89,344 |
| 2015 | $68,269 | $22,120 | $0 | $90,389 | $90,389 |
| 2014 | $69,316 | $22,120 | $0 | $91,436 | $91,436 |
| 2013 | $70,361 | $22,120 | $0 | $92,481 | $92,481 |
| 2012 | $72,451 | $22,120 | $0 | $94,571 | $94,571 |
| 2011 | $72,451 | $22,120 | $0 | $94,571 | $94,571 |
| 2010 | $77,882 | $22,120 | $0 | $100,002 | $100,002 |
| 2009 | $90,254 | $60,800 | $0 | $151,054 | $151,054 |
| 2008 | $91,414 | $64,000 | $0 | $155,414 | $155,414 |
| 2007 | $92,574 | $64,000 | $0 | $156,574 | $156,574 |
Deed and Sales History
| 1 | 01/06/2017 | TOD | Transfer On Death Deed | JOSEPHSEN, EDGAR | JOSEPHSEN, UTTE | | | | 87486 | |
| 2 | 05/28/2014 | WD | Warranty Deed | TYLER, CAROL | JOSEPHSEN, EDGAR | | | $90,000.00 | 15507 | 4360311 |
| 3 | 08/20/2003 | WD | Warranty Deed | BOULANGER, SHARON P | TYLER, CAROL | | | $96,000.00 | 33756 | 4082602 |
| 4 | 07/09/2001 | WD | Warranty Deed | RICE, HOWARD A | BOULANGER, SHARON P | | | $86,000.00 | 12647 | 20037186 |
| 5 | 08/10/1999 | WD | Warranty Deed | GRAY, FRANCIS A | RICE, HOWARD A | | | $80,000.00 | 93303 | 99019034 |
| 6 | 11/01/1993 | WD | Warranty Deed | HARMON, PHILIP E | GRAY, FRANCIS A | | | $58,000.00 | 34507 | 93023486 |
| 7 | 10/01/1984 | QCD | Quit Claim Deed | BEEBE, TERRILL D | HARMON, PHILIP E | | | $0.00 | 23524 | 92017202 |
| 8 | 07/01/1979 | TRUSTEED | Trustee's Deed | PRESTON, MELVIN E | BEEBE, TERRILL D | | | $47,250.00 | 93577 | 355963 |
Payout Agreement
| No payout information available.. |