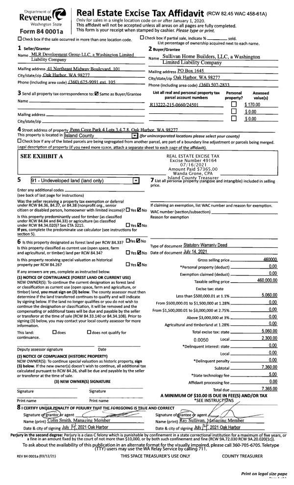
Property
Account |
| Property ID: | 505910 | Abbreviated Legal Description: | BG PT 20'S & 20'W OF SWCR NE NE NE S89*E264' TPB S89*E304.96' NWLY ALG CUR 19.94' N89*W539.68' N2*E165 .11' N89*W256.03' S2*W393 .29' N89*W2.34' S2*W170.99' S89*E244' N2*E172.65' S89*E 258.98' N2*E208.22' TPB TR A SP 79-164 (PT FR 415-4670) |
| Geographic ID: | R33031-450-5000 | Agent Code: | |
| Type: | Real | | |
| Tax Area: | 712 - APPRAISER-S Whid Schl Dist, outside Langley, improved, greater than 1 acre | Land Use Code | 11 |
| Open Space: | N | DFL | N |
| Historic Property: | N | Remodel Property: | N |
| Multi-Family Redevelopment: | N | | |
| Township: | 30 | Section: | 31 |
| Range: | R3 |
Location |
| Address: | 2747 PARKWOOD DR LANGLEY, WA 98260 | Mapsco: | |
| Neighborhood: | Cycle 4 | Map ID: | 903 |
| Neighborhood CD: | 4 |
Owner |
| Name: | SKADAN, BRENT | Owner ID: | 295335 |
| Mailing Address: | STEFANIE WILSON 2747 PARKWOOD DR LANGLEY, WA 98260 | % Ownership: | 100.0000000000% |
| | | Exemptions: | |
Taxes and Assessment Details
Values
| (+) Improvement Homesite Value: | + | $0 | |
| (+) Improvement Non-Homesite Value: | + | $538,266 | |
| (+) Land Homesite Value: | + | $0 | |
| (+) Land Non-Homesite Value: | + | $380,000 | |
| (+) Curr Use (HS): | + | $0 | $0 |
| (+) Curr Use (NHS): | + | $0 | $0 |
| | | -------------------------- | |
| (=) Market Value: | = | $918,266 | |
| (–) Productivity Loss: | – | $0 | |
| | | -------------------------- | |
| (=) Subtotal: | = | $918,266 | |
| (+) Senior Appraised Value: | + | $0 | |
| (+) Non-Senior Appraised Value: | + | $918,266 | |
| | | -------------------------- | |
| (=) Total Appraised Value: | = | $918,266 | |
| (–) Senior Exemption Loss: | – | $0 | |
| (–) Exemption Loss: | – | $0 | |
| | | -------------------------- | |
| (=) Taxable Value: | = | $918,266 | |
Taxing Jurisdiction
| Owner: | SKADAN, BRENT | | |
| % Ownership: | 100.0000000000% | | |
| Total Value: | $918,266 | | |
| Tax Area: | 712 - APPRAISER-S Whid Schl Dist, outside Langley, improved, greater than 1 acre |
| CF | Conservation Futures | 0.0316035091 | $918,266 | $918,266 | $29.02 | | |
| FIRE3 | Fire & Rescue Dist #3 S Whidbey GEN | 1.2004855531 | $918,266 | $918,266 | $1,102.37 | | |
| HOBOND | Hospital BOND | 0.1910887512 | $918,266 | $918,266 | $175.47 | | |
| HOGEN | Hospital GEN | 0.3902502903 | $918,266 | $918,266 | $358.35 | | |
| CE | County Current Expense | 0.3708482477 | $918,266 | $918,266 | $340.54 | | |
| CR | County Roads | 0.4584763726 | $918,266 | $918,266 | $421.00 | | |
| ISLANDEMS | Hospital GEN (EMS) | 0.5000000000 | $918,266 | $918,266 | $459.13 | | |
| LIB | Library Sno-Isle GEN | 0.3153421757 | $918,266 | $918,266 | $289.57 | | |
| PORTWHID | Port of S Whidbey GEN | 0.1094540357 | $918,266 | $918,266 | $100.51 | | |
| SCH206BOND | School 206 BOND | 0.3161759235 | $918,266 | $918,266 | $290.33 | | |
| SCH206MO | School 206 Enrichment | 0.4547169547 | $918,266 | $918,266 | $417.55 | | |
| ST | State School | 1.3035497053 | $918,266 | $918,266 | $1,197.01 | | |
| ST2 | State School Part 2 | 0.8169543533 | $918,266 | $918,266 | $750.18 | | |
| SWHIDPRBD | P & R S Whidbey BOND | 0.0152817568 | $918,266 | $918,266 | $14.03 | | |
| SWHIDPRBD2 | P & R S Whidbey BOND2 | 0.0138911264 | $918,266 | $918,266 | $12.76 | | |
| SWHIDPRMT | P & R S Whidbey GEN | 0.2053334452 | $918,266 | $918,266 | $188.55 | | |
| | Total Tax Rate: | 6.6934522006 | | | | | |
| | | | | Taxes w/Current Exemptions: | $6,146.37 | | |
| | | | | Taxes w/o Exemptions: | $6,146.37 | | |
Improvement / Building
| Improvement #1: | RESIDENTIAL | State Code: | Y | 2364.9 sqft | Value: | $538,266 |
| Bathrooms: | 3 | Bedrooms: | 3 | | Ceiling: | DRYWALL PAINTED | Cooling: | HEAT PUMP/CONV/V | | Exterior Wall/Cover: | CEMENT FIBER | Floor Covering: | HARDWOOD/CARP 80-20 | | Floor Structure: | WOOD W/SUBFLOOR | Foundation: | CONCRETE | | Interior Finish: | DRYWALL PAINT | Plumbing Fixture Cnt: | 14 | | Roof Slope: | 8" IN 12" | Roof Structure/Cover: | CJ ASPHALT |
|
| | Type | Description | Class CD | Sub Class CD | Year Built | Area |
| | BAS | BASE/MAIN FLOOR | 4 | 0 | 1979 | 1740.8 |
| | UPS | UPPER STORY | 4 | 0 | 1979 | 624.1 |
| | OWP | OPEN WOOD PORCH W/STEPS | 4 | 0 | 1979 | 141.8 |
| | OWP | OPEN WOOD PORCH W/STEPS | 4 | 0 | 1979 | 303.0 |
| | DGR | DETACHED GARAGE | 4 | 0 | 1979 | 864.0 |
Sketch
Property Image
Land
| 1 | 32 | AC (03.01-09.99) | 4.6800 | 0.00 | 0.00 | 0.00 | 1.00 | $380,000 | $0 |
Roll Value History
| 2026 | N/A | N/A | N/A | N/A | N/A |
| 2025 | $538,266 | $380,000 | $0 | $918,266 | $918,266 |
| 2024 | $544,891 | $350,000 | $0 | $894,891 | $894,891 |
| 2023 | $551,515 | $330,000 | $0 | $881,515 | $881,515 |
| 2022 | $505,410 | $290,000 | $0 | $795,410 | $795,410 |
| 2021 | $444,694 | $230,000 | $0 | $674,694 | $674,694 |
| 2020 | $398,270 | $190,000 | $0 | $588,270 | $588,270 |
| 2019 | $295,364 | $250,000 | $0 | $545,364 | $545,364 |
| 2018 | $178,481 | $210,000 | $0 | $388,481 | $388,481 |
| 2017 | $179,859 | $190,000 | $0 | $369,859 | $369,859 |
| 2016 | $182,585 | $135,000 | $0 | $317,585 | $317,585 |
| 2015 | $185,309 | $135,000 | $0 | $320,309 | $320,309 |
| 2014 | $185,721 | $126,360 | $0 | $312,081 | $312,081 |
| 2013 | $188,161 | $126,360 | $0 | $314,521 | $314,521 |
| 2012 | $190,603 | $126,360 | $0 | $316,963 | $316,963 |
| 2011 | $193,043 | $126,360 | $0 | $319,403 | $319,403 |
| 2010 | $201,135 | $126,360 | $0 | $327,495 | $327,495 |
| 2009 | $209,433 | $205,920 | $0 | $415,353 | $415,353 |
| 2008 | $201,949 | $185,328 | $0 | $387,277 | $387,277 |
| 2007 | $202,251 | $185,328 | $0 | $387,579 | $387,579 |
Deed and Sales History
| 1 | 07/13/2020 | WD | Warranty Deed | LIDDELL, RICHARD A | SKADAN, BRENT | | | $625,000.00 | 43939 | 4492105 |
| 2 | 03/01/1997 | BLA | DNU - Boundary Line Adjustment | LIDDELL, RICHARD A | LIDDELL, RICHARD A | | | $0.00 | 67272 | 96022139 |
| 3 | 12/01/1996 | WD | Warranty Deed | LIDDELL, RICHARD A | LIDDELL, RICHARD A | | | $15,000.00 | 64568 | 96022105 |
| 4 | 05/01/1979 | EXECUTORD | Executor Deed | Unknown | LIDDELL, RICHARD A | | | $30,600.00 | 92540 | 353016 |
Payout Agreement
| No payout information available.. |