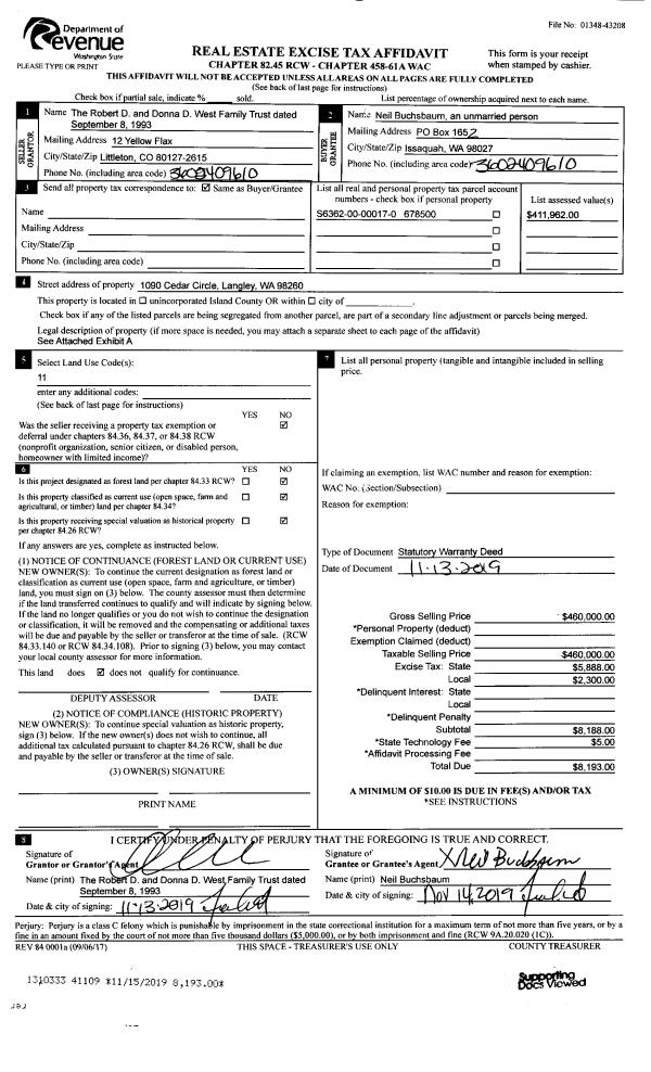
Property
Account |
| Property ID: | 50679 | Abbreviated Legal Description: | 119 - SE SW SE LY N OF ST HWY & W OF SCOTT RD |
| Geographic ID: | R22911-059-3420 | Agent Code: | |
| Type: | Real | | |
| Tax Area: | 760 - APPRAISER-S Whid Schl Dist, Special District, improved & less than 1 acre | Land Use Code | 61 |
| Open Space: | N | DFL | N |
| Historic Property: | N | Remodel Property: | N |
| Multi-Family Redevelopment: | N | | |
| Township: | 29 | Section: | 11 |
| Range: | R2 |
Location |
| Address: | 1860 SCOTT RD FREELAND, WA 98249 | Mapsco: | |
| Neighborhood: | 34cFR-main st 2 | Map ID: | 314 |
| Neighborhood CD: | 34cFRmain2 |
Owner |
| Name: | THELLIOTT WHIDBEY ISLAND, | Owner ID: | 280297 |
| Mailing Address: | 13503 NE 186TH ST WOODINVILLE, WA 98072 | % Ownership: | 100.0000000000% |
| | | Exemptions: | |
Taxes and Assessment Details
Values
| (+) Improvement Homesite Value: | + | $0 | |
| (+) Improvement Non-Homesite Value: | + | $183,475 | |
| (+) Land Homesite Value: | + | $0 | |
| (+) Land Non-Homesite Value: | + | $335,412 | |
| (+) Curr Use (HS): | + | $0 | $0 |
| (+) Curr Use (NHS): | + | $0 | $0 |
| | | -------------------------- | |
| (=) Market Value: | = | $518,887 | |
| (–) Productivity Loss: | – | $0 | |
| | | -------------------------- | |
| (=) Subtotal: | = | $518,887 | |
| (+) Senior Appraised Value: | + | $0 | |
| (+) Non-Senior Appraised Value: | + | $518,887 | |
| | | -------------------------- | |
| (=) Total Appraised Value: | = | $518,887 | |
| (–) Senior Exemption Loss: | – | $0 | |
| (–) Exemption Loss: | – | $0 | |
| | | -------------------------- | |
| (=) Taxable Value: | = | $518,887 | |
Taxing Jurisdiction
| Owner: | THELLIOTT WHIDBEY ISLAND, | | |
| % Ownership: | 100.0000000000% | | |
| Total Value: | $518,887 | | |
| Tax Area: | 760 - APPRAISER-S Whid Schl Dist, Special District, improved & less than 1 acre |
| CF | Conservation Futures | 0.0316035091 | $518,887 | $518,887 | $16.40 | | |
| FIRE3 | Fire & Rescue Dist #3 S Whidbey GEN | 1.2004855531 | $518,887 | $518,887 | $622.92 | | |
| HOBOND | Hospital BOND | 0.1910887512 | $518,887 | $518,887 | $99.15 | | |
| HOGEN | Hospital GEN | 0.3902502903 | $518,887 | $518,887 | $202.50 | | |
| CE | County Current Expense | 0.3708482477 | $518,887 | $518,887 | $192.43 | | |
| CR | County Roads | 0.4584763726 | $518,887 | $518,887 | $237.90 | | |
| ISLANDEMS | Hospital GEN (EMS) | 0.5000000000 | $518,887 | $518,887 | $259.44 | | |
| LIB | Library Sno-Isle GEN | 0.3153421757 | $518,887 | $518,887 | $163.63 | | |
| PORTWHID | Port of S Whidbey GEN | 0.1094540357 | $518,887 | $518,887 | $56.79 | | |
| SCH206BOND | School 206 BOND | 0.3161759235 | $518,887 | $518,887 | $164.06 | | |
| SCH206MO | School 206 Enrichment | 0.4547169547 | $518,887 | $518,887 | $235.95 | | |
| ST | State School | 1.3035497053 | $518,887 | $518,887 | $676.39 | | |
| ST2 | State School Part 2 | 0.8169543533 | $518,887 | $518,887 | $423.91 | | |
| SWHIDPRBD | P & R S Whidbey BOND | 0.0152817568 | $518,887 | $518,887 | $7.93 | | |
| SWHIDPRBD2 | P & R S Whidbey BOND2 | 0.0138911264 | $518,887 | $518,887 | $7.21 | | |
| SWHIDPRMT | P & R S Whidbey GEN | 0.2053334452 | $518,887 | $518,887 | $106.54 | | |
| | Total Tax Rate: | 6.6934522006 | | | | | |
| | | | | Taxes w/Current Exemptions: | $3,473.15 | | |
| | | | | Taxes w/o Exemptions: | $3,473.15 | | |
Improvement / Building
| Improvement #1: | COMMERCIAL | State Code: | F1 | 1300.0 sqft | Value: | $183,475 |
| Bathrooms: | 0 | Bedrooms: | 0 | | Ceiling: | SUSPENDED | Cooling: | HEAT PUMP/CONV/V | | Exterior Wall/Cover: | 6" CONC BLK/CON FRAM | Floor Covering: | CARPET 100% | | Floor Structure: | CONCRETE ON GROUND | Foundation: | SLAB | | Interior Finish: | OFFICE | Plumbing Fixture Cnt: | 1 | | Roof Structure/Cover: | COMP OPEN WOOD |   |   |
|
Sketch
Property Image
Land
| 1 | 64 | PERSONAL BUSINESS | 0.7700 | 33541.20 | 0.00 | 0.00 | 1.00 | $335,412 | $0 |
Roll Value History
| 2026 | N/A | N/A | N/A | N/A | N/A |
| 2025 | $183,475 | $335,412 | $0 | $518,887 | $518,887 |
| 2024 | $188,368 | $335,412 | $0 | $523,780 | $523,780 |
| 2023 | $193,261 | $335,412 | $0 | $528,673 | $528,673 |
| 2022 | $153,995 | $335,412 | $0 | $489,407 | $489,407 |
| 2021 | $153,995 | $335,412 | $0 | $489,407 | $489,407 |
| 2020 | $153,995 | $335,412 | $0 | $489,407 | $489,407 |
| 2019 | $89,462 | $335,412 | $0 | $424,874 | $424,874 |
| 2018 | $89,462 | $301,871 | $0 | $391,333 | $391,333 |
| 2017 | $89,462 | $201,247 | $0 | $290,709 | $290,709 |
| 2016 | $68,502 | $201,247 | $0 | $269,749 | $269,749 |
| 2015 | $73,174 | $103,872 | $0 | $177,046 | $177,046 |
| 2014 | $74,452 | $103,872 | $0 | $178,324 | $178,324 |
| 2013 | $41,407 | $127,444 | $0 | $168,851 | $168,851 |
| 2012 | $41,407 | $127,444 | $0 | $168,851 | $168,851 |
| 2011 | $41,407 | $127,444 | $0 | $168,851 | $168,851 |
| 2010 | $59,554 | $127,444 | $0 | $186,998 | $186,998 |
| 2009 | $62,088 | $140,156 | $0 | $202,244 | $202,244 |
| 2008 | $63,356 | $140,156 | $0 | $203,512 | $203,512 |
| 2007 | $61,356 | $140,156 | $0 | $201,512 | $201,512 |
Deed and Sales History
| 1 | 06/01/2017 | QCD | Quit Claim Deed | ELLIOTT PROPERTIES I LLC | THELLIOTT WHIDBEY ISLAND, | | | $0.00 | 29649 | 4423917 |
| 2 | 09/08/2016 | WD | Warranty Deed | LIND, ADAM | ELLIOTT PROPERTIES I LLC | | | $309,005.00 | 26036 | 4406836 |
| 3 | 05/12/2015 | WD | Warranty Deed | SAMUELSON, PAUL O | LIND, ADAM | | | $395,000.00 | 19555 | 4378425 |
| 4 | 03/01/1997 | WD | Warranty Deed | SAMUELSON, DENNIS O | SAMUELSON, PAUL O | | | $150,000.00 | 70836 | 97003809 |
| 5 | 01/01/1981 | EXECUTORD | Executor Deed | PLENTY, HOPE | SAMUELSON, DENNIS O | | | $82,500.00 | 10050 | 378111 |
Payout Agreement
| No payout information available.. |