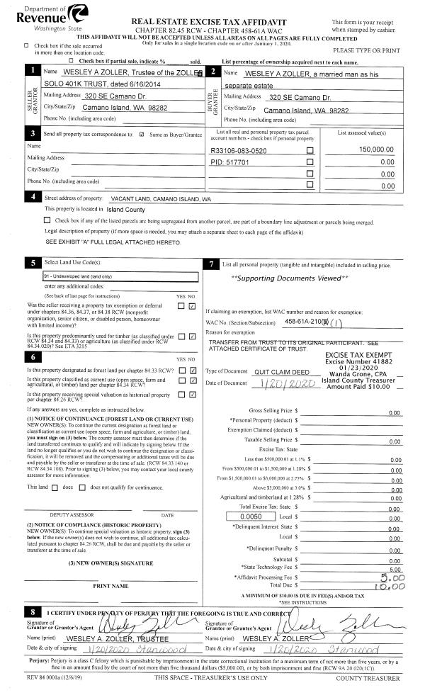
Property
Account |
| Property ID: | 50731 | Abbreviated Legal Description: | 98 - IN SW SW: BG NE CR SW SW S1*W630' W145' TPB W46' N1*E160' E46' S1*W160' TPB TR B SP 75/10 AF#308728 |
| Geographic ID: | R22911-071-1190 | Agent Code: | |
| Type: | Real | | |
| Tax Area: | 760 - APPRAISER-S Whid Schl Dist, Special District, improved & less than 1 acre | Land Use Code | 65 |
| Open Space: | N | DFL | N |
| Historic Property: | N | Remodel Property: | N |
| Multi-Family Redevelopment: | N | | |
| Township: | 29 | Section: | 11 |
| Range: | R2 |
Location |
| Address: | 1689 S MAIN ST FREELAND, WA 98249 | Mapsco: | |
| Neighborhood: | 34cFR-main st 1 | Map ID: | 313 |
| Neighborhood CD: | 34cFRmain1 |
Owner |
| Name: | 1689 E MAIN LLC | Owner ID: | 261366 |
| Mailing Address: | SUSAN K HANSEN PO BOX 537 FREELAND, WA 98249 | % Ownership: | 100.0000000000% |
| | | Exemptions: | |
Taxes and Assessment Details
Values
| (+) Improvement Homesite Value: | + | $0 | |
| (+) Improvement Non-Homesite Value: | + | $161,991 | |
| (+) Land Homesite Value: | + | $0 | |
| (+) Land Non-Homesite Value: | + | $74,052 | |
| (+) Curr Use (HS): | + | $0 | $0 |
| (+) Curr Use (NHS): | + | $0 | $0 |
| | | -------------------------- | |
| (=) Market Value: | = | $236,043 | |
| (–) Productivity Loss: | – | $0 | |
| | | -------------------------- | |
| (=) Subtotal: | = | $236,043 | |
| (+) Senior Appraised Value: | + | $0 | |
| (+) Non-Senior Appraised Value: | + | $236,043 | |
| | | -------------------------- | |
| (=) Total Appraised Value: | = | $236,043 | |
| (–) Senior Exemption Loss: | – | $0 | |
| (–) Exemption Loss: | – | $0 | |
| | | -------------------------- | |
| (=) Taxable Value: | = | $236,043 | |
Taxing Jurisdiction
| Owner: | 1689 E MAIN LLC | | |
| % Ownership: | 100.0000000000% | | |
| Total Value: | $236,043 | | |
| Tax Area: | 760 - APPRAISER-S Whid Schl Dist, Special District, improved & less than 1 acre |
| CF | Conservation Futures | 0.0316035091 | $236,043 | $236,043 | $7.46 | | |
| FIRE3 | Fire & Rescue Dist #3 S Whidbey GEN | 1.2004855531 | $236,043 | $236,043 | $283.37 | | |
| HOBOND | Hospital BOND | 0.1910887512 | $236,043 | $236,043 | $45.11 | | |
| HOGEN | Hospital GEN | 0.3902502903 | $236,043 | $236,043 | $92.12 | | |
| CE | County Current Expense | 0.3708482477 | $236,043 | $236,043 | $87.54 | | |
| CR | County Roads | 0.4584763726 | $236,043 | $236,043 | $108.22 | | |
| ISLANDEMS | Hospital GEN (EMS) | 0.5000000000 | $236,043 | $236,043 | $118.02 | | |
| LIB | Library Sno-Isle GEN | 0.3153421757 | $236,043 | $236,043 | $74.43 | | |
| PORTWHID | Port of S Whidbey GEN | 0.1094540357 | $236,043 | $236,043 | $25.84 | | |
| SCH206BOND | School 206 BOND | 0.3161759235 | $236,043 | $236,043 | $74.63 | | |
| SCH206MO | School 206 Enrichment | 0.4547169547 | $236,043 | $236,043 | $107.33 | | |
| ST | State School | 1.3035497053 | $236,043 | $236,043 | $307.69 | | |
| ST2 | State School Part 2 | 0.8169543533 | $236,043 | $236,043 | $192.84 | | |
| SWHIDPRBD | P & R S Whidbey BOND | 0.0152817568 | $236,043 | $236,043 | $3.61 | | |
| SWHIDPRBD2 | P & R S Whidbey BOND2 | 0.0138911264 | $236,043 | $236,043 | $3.28 | | |
| SWHIDPRMT | P & R S Whidbey GEN | 0.2053334452 | $236,043 | $236,043 | $48.47 | | |
| | Total Tax Rate: | 6.6934522006 | | | | | |
| | | | | Taxes w/Current Exemptions: | $1,579.96 | | |
| | | | | Taxes w/o Exemptions: | $1,579.96 | | |
Improvement / Building
| Improvement #1: | COMMERCIAL | State Code: | F1 | 2279.0 sqft | Value: | $161,991 |
| Bathrooms: | 0 | Bedrooms: | 0 | | Ceiling: | TONGUE & GROOVE | Exterior Wall/Cover: | 8" CONC BLK/WD FRAME | | Floor Covering: | CARPET 100% | Floor Structure: | CONCRETE ON GROUND | | Foundation: | SLAB | Heating: | BASEBOARD ELECTRIC | | Interior Finish: | OFFICE | Plumbing Fixture Cnt: | 1 | | Roof Structure/Cover: | BEAM BUILT-UP ROCK |   |   |
|
| | Type | Description | Class CD | Sub Class CD | Year Built | Area |
| | BAS | BASE/MAIN FLOOR | 3 | 0 | 1964 | 2279.0 |
| | OP1 | OPEN PORCH SLAB | 3 | 0 | 1964 | 162.0 |
| | OP3 | OPEN PORCH W/ROOF | 3 | 0 | 1964 | 88.0 |
| | UTY | STORAGE/UTILITY | 3 | 0 | 1964 | 288.0 |
| | oPV1 | PV/ASPH 2" | 3 | 0 | 1964 | 2612.0 |
Sketch
Property Image
Land
| 1 | 68 | COMMERCIAL RETAIL | 0.1700 | 7405.20 | 0.00 | 0.00 | 1.00 | $74,052 | $0 |
Roll Value History
| 2026 | N/A | N/A | N/A | N/A | N/A |
| 2025 | $161,991 | $74,052 | $0 | $236,043 | $236,043 |
| 2024 | $173,137 | $74,052 | $0 | $247,189 | $247,189 |
| 2023 | $181,918 | $74,052 | $0 | $255,970 | $255,970 |
| 2022 | $158,826 | $74,052 | $0 | $232,878 | $232,878 |
| 2021 | $157,051 | $74,052 | $0 | $231,103 | $231,103 |
| 2020 | $156,859 | $74,052 | $0 | $230,911 | $230,911 |
| 2019 | $125,449 | $74,052 | $0 | $199,501 | $199,501 |
| 2018 | $125,480 | $66,647 | $0 | $192,127 | $192,127 |
| 2017 | $125,541 | $55,539 | $0 | $181,080 | $181,080 |
| 2016 | $125,665 | $55,539 | $0 | $181,204 | $181,204 |
| 2015 | $130,323 | $55,539 | $0 | $185,862 | $185,862 |
| 2014 | $134,236 | $55,539 | $0 | $189,775 | $189,775 |
| 2013 | $114,057 | $147,789 | $0 | $261,846 | $261,846 |
| 2012 | $100,883 | $147,789 | $0 | $248,672 | $248,672 |
| 2011 | $100,883 | $147,789 | $0 | $248,672 | $248,672 |
| 2010 | $154,841 | $147,789 | $0 | $302,630 | $302,630 |
| 2009 | $160,719 | $100,906 | $0 | $261,625 | $261,625 |
| 2008 | $163,658 | $100,906 | $0 | $264,564 | $264,564 |
| 2007 | $162,782 | $100,906 | $0 | $263,688 | $263,688 |
Deed and Sales History
| 1 | 01/17/2013 | QCD | Quit Claim Deed | HANSEN, SUSAN A K | 1689 E MAIN LLC | | | $0.00 | 10885 | 4336911 |
| 2 | 08/06/2012 | WD | Warranty Deed | SAMUELSON, PAUL O | HANSEN, SUSAN A K | | | $225,220.00 | 8610 | 4321549 |
| 3 | 02/01/1999 | WD | Warranty Deed | STARKER, SERVICES, I | SAMUELSON, PAUL O | | | $180,000.00 | 90433 | 99002815 |
| 4 | 01/01/1990 | WD | Warranty Deed | GUNNAR, KEITH | STARKER, SERVICES, I | | | $128,300.00 | 547 | 90001742 |
| 5 | 01/01/1990 | WD | Warranty Deed | BRZUSEK, DANIEL | GUNNAR, KEITH | | | $0.00 | 549 | 90001743 |
| 6 | 09/01/1981 | EXECUTORD | Executor Deed | RETTIG, JANICE L | BRZUSEK, DANIEL | | | $110,000.00 | 13181 | 388928 |
| 7 | 03/01/1980 | CD | DNU - Correction Deed | RETTIG, GARY R | RETTIG, JANICE L | | | $0.00 | 1085 | 367103 |
| 8 | 01/01/1900 | OTHER | Other - Misc. Documents | Unknown | RETTIG, GARY R | | | $0.00 | 0 | 0 |
Payout Agreement
| No payout information available.. |