Property
Account |
| Property ID: | 507311 | Abbreviated Legal Description: | FIRCREST ESTATES LOT 18 EX BGNW CR LOT 18 S20*W 211.74' S89*E35.11' N11*E 202.18' TPB |
| Geographic ID: | S6628-00-00018-0 | Agent Code: | |
| Type: | Real | | |
| Tax Area: | 110 - APPRAISER-OH Schl Dist, outside OH, improved & 1 acre or less | Land Use Code | 11 |
| Open Space: | N | DFL | N |
| Historic Property: | N | Remodel Property: | N |
| Multi-Family Redevelopment: | N | | |
| Township: | | Section: | |
| Range: | |
Location |
| Address: | 4107 NOBLE PLACE OAK HARBOR, WA 98277 | Mapsco: | |
| Neighborhood: | Cycle 6 | Map ID: | 591 |
| Neighborhood CD: | 6 |
Owner |
| Name: | ALBA, LEO MONTILLA | Owner ID: | 291235 |
| Mailing Address: | TERESA ANN ALBA 4107 NOBLE PL OAK HARBOR, WA 98277 | % Ownership: | 100.0000000000% |
| | | Exemptions: | |
Taxes and Assessment Details
Values
| (+) Improvement Homesite Value: | + | $0 | |
| (+) Improvement Non-Homesite Value: | + | $295,963 | |
| (+) Land Homesite Value: | + | $0 | |
| (+) Land Non-Homesite Value: | + | $220,000 | |
| (+) Curr Use (HS): | + | $0 | $0 |
| (+) Curr Use (NHS): | + | $0 | $0 |
| | | -------------------------- | |
| (=) Market Value: | = | $515,963 | |
| (–) Productivity Loss: | – | $0 | |
| | | -------------------------- | |
| (=) Subtotal: | = | $515,963 | |
| (+) Senior Appraised Value: | + | $0 | |
| (+) Non-Senior Appraised Value: | + | $515,963 | |
| | | -------------------------- | |
| (=) Total Appraised Value: | = | $515,963 | |
| (–) Senior Exemption Loss: | – | $0 | |
| (–) Exemption Loss: | – | $0 | |
| | | -------------------------- | |
| (=) Taxable Value: | = | $515,963 | |
Taxing Jurisdiction
| Owner: | ALBA, LEO MONTILLA | | |
| % Ownership: | 100.0000000000% | | |
| Total Value: | $515,963 | | |
| Tax Area: | 110 - APPRAISER-OH Schl Dist, outside OH, improved & 1 acre or less |
| CF | Conservation Futures | 0.0316035091 | $515,963 | $515,963 | $16.31 | | |
| CEM1 | Cemetery #1 | 0.0040320932 | $515,963 | $515,963 | $2.08 | | |
| FIRE2 | Fire & Rescue Dist #2 N Whidbey GEN | 0.5475949600 | $515,963 | $515,963 | $282.54 | | |
| HOBOND | Hospital BOND | 0.1910887512 | $515,963 | $515,963 | $98.59 | | |
| HOGEN | Hospital GEN | 0.3902502903 | $515,963 | $515,963 | $201.35 | | |
| CE | County Current Expense | 0.3708482477 | $515,963 | $515,963 | $191.34 | | |
| CR | County Roads | 0.4584763726 | $515,963 | $515,963 | $236.56 | | |
| ISLANDEMS | Hospital GEN (EMS) | 0.5000000000 | $515,963 | $515,963 | $257.98 | | |
| LIB | Library Sno-Isle GEN | 0.3153421757 | $515,963 | $515,963 | $162.70 | | |
| NWHIDPRMT | P & R N Whidbey GEN | 0.2004466701 | $515,963 | $515,963 | $103.42 | | |
| SCH201MO | School 201 Enrichment | 1.8559231640 | $515,963 | $515,963 | $957.59 | | |
| ST | State School | 1.3035497053 | $515,963 | $515,963 | $672.58 | | |
| ST2 | State School Part 2 | 0.8169543533 | $515,963 | $515,963 | $421.52 | | |
| | Total Tax Rate: | 6.9861102925 | | | | | |
| | | | | Taxes w/Current Exemptions: | $3,604.56 | | |
| | | | | Taxes w/o Exemptions: | $3,604.56 | | |
Improvement / Building
| Improvement #1: | RESIDENTIAL | State Code: | Y | 2122.0 sqft | Value: | $295,963 |
| Bathrooms: | 3 | Bedrooms: | 3 | | Ceiling: | DRYWALL PAINTED | Exterior Wall/Cover: | WOOD SIDING | | Floor Covering: | HARDWOOD/CARP 60-40 | Floor Structure: | WOOD W/SUBFLOOR | | Foundation: | CONCRETE | Heating: | BASEBOARD ELECTRIC | | Interior Finish: | DRYWALL PAINT | Plumbing Fixture Cnt: | 12 | | Roof Slope: | 4" IN 12" | Roof Structure/Cover: | CJ ASPHALT |
|
| | Type | Description | Class CD | Sub Class CD | Year Built | Area |
| | BAS | BASE/MAIN FLOOR | 3 | 0 | 1983 | 1234.0 |
| | OP2 | OPEN PORCH W/STEPS | 3 | 0 | 1983 | 39.0 |
| | OWP | OPEN WOOD PORCH W/STEPS | 3 | 0 | 1983 | 219.5 |
| | BIG | BUILT IN GARAGE | 3 | 0 | 1983 | 484.0 |
| | DWN | DOWNSTAIRS LIVING AREA | 3 | 0 | 1983 | 888.0 |
Sketch
Property Image
Land
| 1 | 16 | AC (00.51-01.00) | 0.6900 | 30056.40 | 0.00 | 0.00 | 1.00 | $220,000 | $0 |
Roll Value History
| 2026 | N/A | N/A | N/A | N/A | N/A |
| 2025 | $295,963 | $220,000 | $0 | $515,963 | $515,963 |
| 2024 | $305,817 | $220,000 | $0 | $525,817 | $525,817 |
| 2023 | $309,628 | $220,000 | $0 | $529,628 | $529,628 |
| 2022 | $288,426 | $200,000 | $0 | $488,426 | $488,426 |
| 2021 | $253,854 | $170,000 | $0 | $423,854 | $423,854 |
| 2020 | $247,554 | $140,000 | $0 | $387,554 | $387,554 |
| 2019 | $189,170 | $160,000 | $0 | $349,170 | $349,170 |
| 2018 | $189,725 | $140,000 | $0 | $329,725 | $329,725 |
| 2017 | $166,214 | $125,000 | $0 | $291,214 | $291,214 |
| 2016 | $151,000 | $90,000 | $0 | $241,000 | $241,000 |
| 2015 | $153,190 | $85,000 | $0 | $238,190 | $238,190 |
| 2014 | $155,375 | $80,000 | $0 | $235,375 | $235,375 |
| 2013 | $157,564 | $76,500 | $0 | $234,064 | $234,064 |
| 2012 | $159,752 | $76,500 | $0 | $236,252 | $236,252 |
| 2011 | $161,941 | $90,000 | $0 | $251,941 | $251,941 |
| 2010 | $161,580 | $90,000 | $0 | $251,580 | $251,580 |
| 2009 | $168,740 | $105,000 | $0 | $273,740 | $273,740 |
| 2008 | $171,049 | $111,000 | $0 | $282,049 | $282,049 |
| 2007 | $171,227 | $111,000 | $0 | $282,227 | $282,227 |
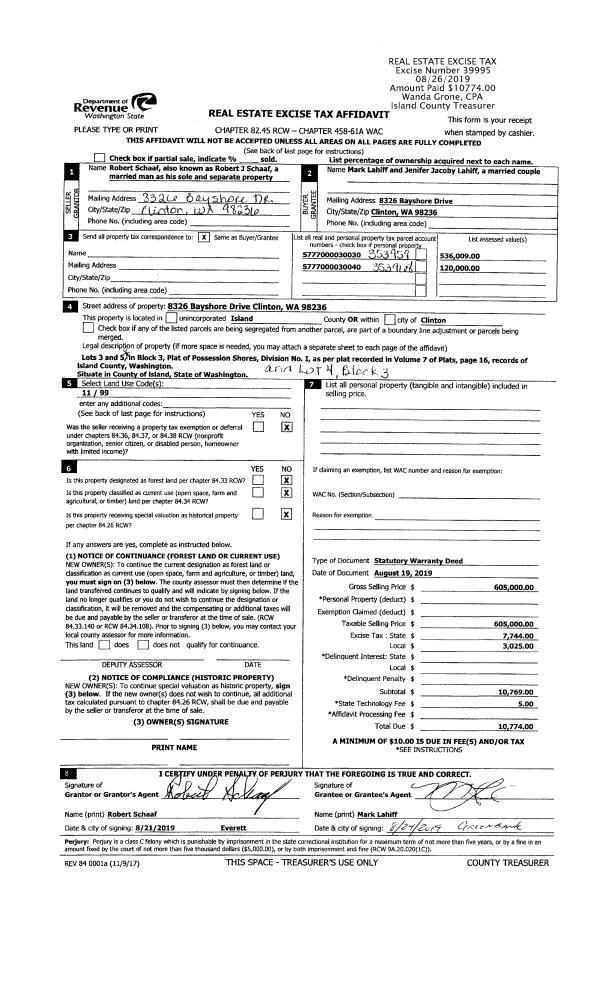
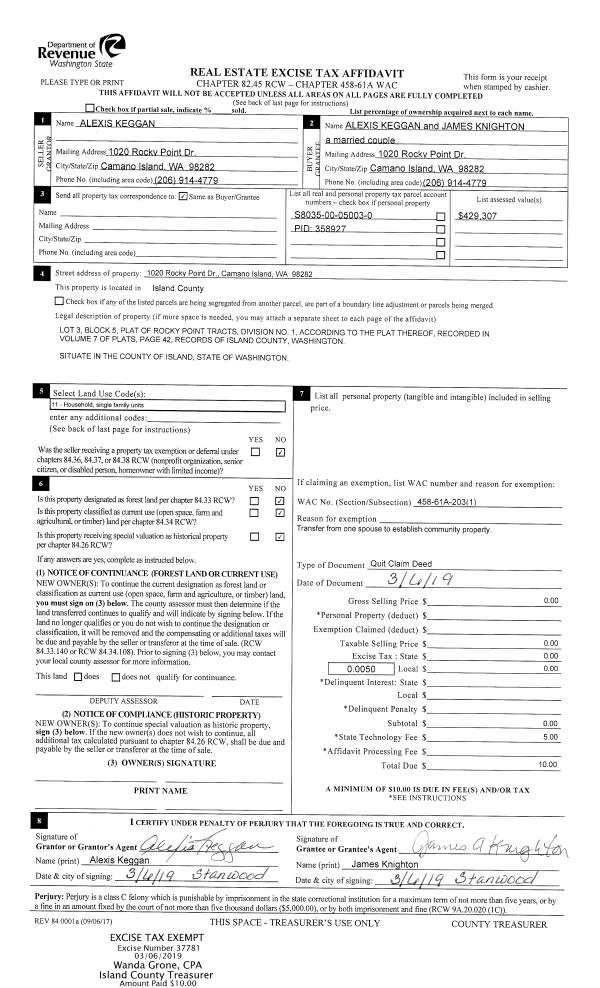
Deed and Sales History
| 1 | 07/24/2019 | WD | Warranty Deed | HUPF PROPERTIES, LLC | ALBA, LEO MONTILLA | | | $387,500.00 | 39731 | 4468771 |
| 2 | 03/05/2019 | TRUSTEED | Trustee's Deed | PERKINS, NICHOLAS K | HUPF PROPERTIES, LLC | | | $252,151.00 | 37866 | 4460483 |
| 3 | 04/26/2017 | WD | Warranty Deed | WOODWORTH, PAUL D | PERKINS, NICHOLAS K | | | $345,000.00 | 29070 | 4421573 |
| 4 | 03/24/2005 | WD | Warranty Deed | COLE, RICHARD L | WOODWORTH, PAUL D | | | $227,500.00 | 51411 | 4130364 |
| 5 | 01/01/1997 | WD | Warranty Deed | HARDIN, ARNIE E | COLE, RICHARD L | | | $153,500.00 | 70360 | 97001526 |
| 6 | 11/01/1983 | WD | Warranty Deed | KOETJE, GORDON | HARDIN, ARNIE E | | | $83,650.00 | 33411 | 417773 |
| 7 | 09/01/1979 | REC | Real Estate Contract | MITCHELL, D L | KOETJE, GORDON | | | $8,847.00 | 94578 | 358878 |
| 8 | 01/01/1900 | OTHER | Other - Misc. Documents | Unknown | MITCHELL, D L | | | $0.00 | 0 | 0 |
Payout Agreement
| No payout information available.. |