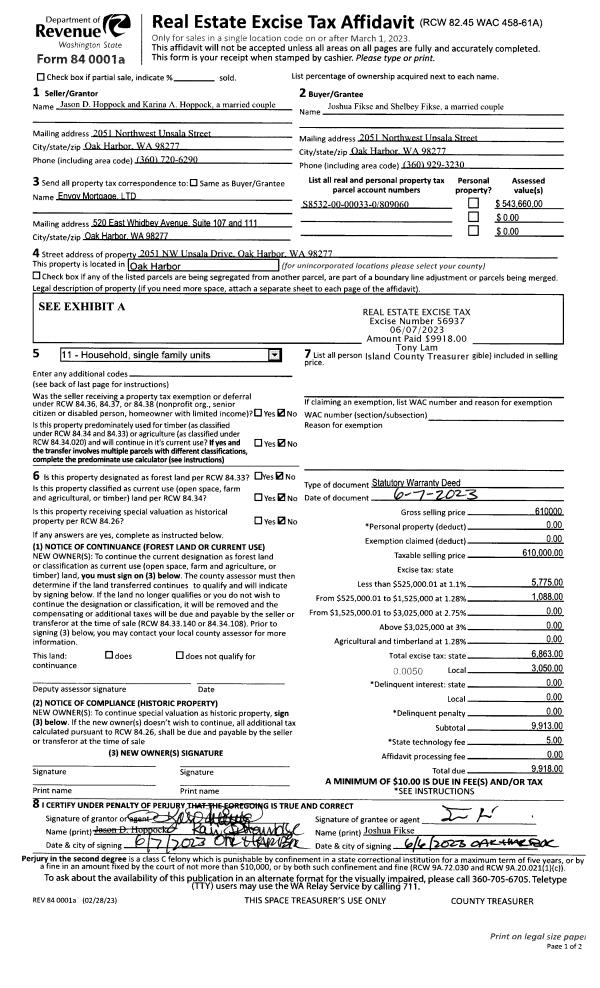
Property
Account |
| Property ID: | 507400 | Abbreviated Legal Description: | FIRCREST ESTATES LOT 26 |
| Geographic ID: | S6628-00-00026-0 | Agent Code: | |
| Type: | Real | | |
| Tax Area: | 112 - APPRAISER-OH Schl Dist, outside OH, improved, greater than 1 acre | Land Use Code | 11 |
| Open Space: | N | DFL | N |
| Historic Property: | N | Remodel Property: | N |
| Multi-Family Redevelopment: | N | | |
| Township: | | Section: | |
| Range: | |
Location |
| Address: | 49 PONDEROSA DR OAK HARBOR, WA 98277 | Mapsco: | |
| Neighborhood: | Cycle 6 | Map ID: | 591 |
| Neighborhood CD: | 6 |
Owner |
| Name: | NUNES, MARILYN LEE | Owner ID: | 298929 |
| Mailing Address: | JENNA ELIZABETH NUNES PO BOX 2632 OAK HARBOR, WA 98277 | % Ownership: | 100.0000000000% |
| | | Exemptions: | |
Taxes and Assessment Details
Values
| (+) Improvement Homesite Value: | + | $0 | |
| (+) Improvement Non-Homesite Value: | + | $302,976 | |
| (+) Land Homesite Value: | + | $0 | |
| (+) Land Non-Homesite Value: | + | $220,000 | |
| (+) Curr Use (HS): | + | $0 | $0 |
| (+) Curr Use (NHS): | + | $0 | $0 |
| | | -------------------------- | |
| (=) Market Value: | = | $522,976 | |
| (–) Productivity Loss: | – | $0 | |
| | | -------------------------- | |
| (=) Subtotal: | = | $522,976 | |
| (+) Senior Appraised Value: | + | $0 | |
| (+) Non-Senior Appraised Value: | + | $522,976 | |
| | | -------------------------- | |
| (=) Total Appraised Value: | = | $522,976 | |
| (–) Senior Exemption Loss: | – | $0 | |
| (–) Exemption Loss: | – | $0 | |
| | | -------------------------- | |
| (=) Taxable Value: | = | $522,976 | |
Taxing Jurisdiction
| Owner: | NUNES, MARILYN LEE | | |
| % Ownership: | 100.0000000000% | | |
| Total Value: | $522,976 | | |
| Tax Area: | 112 - APPRAISER-OH Schl Dist, outside OH, improved, greater than 1 acre |
| CF | Conservation Futures | 0.0316035091 | $522,976 | $522,976 | $16.53 | | |
| CEM1 | Cemetery #1 | 0.0040320932 | $522,976 | $522,976 | $2.11 | | |
| FIRE2 | Fire & Rescue Dist #2 N Whidbey GEN | 0.5475949600 | $522,976 | $522,976 | $286.38 | | |
| HOBOND | Hospital BOND | 0.1910887512 | $522,976 | $522,976 | $99.93 | | |
| HOGEN | Hospital GEN | 0.3902502903 | $522,976 | $522,976 | $204.09 | | |
| CE | County Current Expense | 0.3708482477 | $522,976 | $522,976 | $193.94 | | |
| CR | County Roads | 0.4584763726 | $522,976 | $522,976 | $239.77 | | |
| ISLANDEMS | Hospital GEN (EMS) | 0.5000000000 | $522,976 | $522,976 | $261.49 | | |
| LIB | Library Sno-Isle GEN | 0.3153421757 | $522,976 | $522,976 | $164.92 | | |
| NWHIDPRMT | P & R N Whidbey GEN | 0.2004466701 | $522,976 | $522,976 | $104.83 | | |
| SCH201MO | School 201 Enrichment | 1.8559231640 | $522,976 | $522,976 | $970.60 | | |
| ST | State School | 1.3035497053 | $522,976 | $522,976 | $681.73 | | |
| ST2 | State School Part 2 | 0.8169543533 | $522,976 | $522,976 | $427.25 | | |
| | Total Tax Rate: | 6.9861102925 | | | | | |
| | | | | Taxes w/Current Exemptions: | $3,653.57 | | |
| | | | | Taxes w/o Exemptions: | $3,653.57 | | |
Improvement / Building
| Improvement #1: | RESIDENTIAL | State Code: | Y | 1743.0 sqft | Value: | $302,976 |
| Bathrooms: | 2.5 | Bedrooms: | 3 | | Ceiling: | DRYWALL PAINTED | Exterior Wall/Cover: | WOOD SIDING | | Floor Covering: | VINYL 100% | Floor Structure: | WOOD W/SUBFLOOR | | Foundation: | CONCRETE | Heating: | FHA ELECTRIC | | Interior Finish: | DRYWALL PAINT | Plumbing Fixture Cnt: | 10 | | Roof Slope: | 4" IN 12" | Roof Structure/Cover: | CJ ASPHALT |
|
| | Type | Description | Class CD | Sub Class CD | Year Built | Area |
| | BAS | BASE/MAIN FLOOR | 3 | 0 | 1983 | 874.5 |
| | OP1 | OPEN PORCH SLAB | 3 | 0 | 1983 | 133.0 |
| | OP1 | OPEN PORCH SLAB | 3 | 0 | 1983 | 378.0 |
| | AGR | ATTACHED GARAGE | 3 | 0 | 1983 | 563.5 |
| | UPS | UPPER STORY | 3 | 0 | 1983 | 868.5 |
| | OWC | OPEN WOOD PORCH W/STEPS/ROOF/C | 3 | 0 | 1983 | 59.0 |
Sketch
Property Image
Land
| 1 | 17 | AC (01.01-02.00) | 1.1700 | 50965.20 | 0.00 | 0.00 | 1.00 | $220,000 | $0 |
Roll Value History
| 2026 | N/A | N/A | N/A | N/A | N/A |
| 2025 | $302,976 | $220,000 | $0 | $522,976 | $522,976 |
| 2024 | $306,897 | $220,000 | $0 | $526,897 | $526,897 |
| 2023 | $310,820 | $220,000 | $0 | $530,820 | $530,820 |
| 2022 | $311,443 | $200,000 | $0 | $511,443 | $511,443 |
| 2021 | $273,939 | $170,000 | $0 | $443,939 | $443,939 |
| 2020 | $215,864 | $140,000 | $0 | $355,864 | $355,864 |
| 2019 | $159,519 | $160,000 | $0 | $319,519 | $319,519 |
| 2018 | $160,035 | $140,000 | $0 | $300,035 | $300,035 |
| 2017 | $161,067 | $125,000 | $0 | $286,067 | $286,067 |
| 2016 | $139,171 | $100,000 | $0 | $239,171 | $239,171 |
| 2015 | $141,159 | $85,000 | $0 | $226,159 | $226,159 |
| 2014 | $143,146 | $80,000 | $0 | $223,146 | $223,146 |
| 2013 | $145,136 | $76,500 | $0 | $221,636 | $221,636 |
| 2012 | $147,122 | $76,500 | $0 | $223,622 | $223,622 |
| 2011 | $149,113 | $90,000 | $0 | $239,113 | $239,113 |
| 2010 | $155,972 | $90,000 | $0 | $245,972 | $245,972 |
| 2009 | $162,825 | $105,000 | $0 | $267,825 | $267,825 |
| 2008 | $163,050 | $111,000 | $0 | $274,050 | $274,050 |
| 2007 | $165,269 | $111,000 | $0 | $276,269 | $276,269 |
Deed and Sales History
| 1 | 04/15/2021 | WD | Warranty Deed | HANES, THOMAS MICHAEL | NUNES, MARILYN LEE | | | $485,000.00 | 47822 | 4516708 |
| 2 | 03/09/2018 | WD | Warranty Deed | HANES, JACOB M | HANES, THOMAS MICHAEL | | | $303,300.00 | 33398 | 4441313 |
| 3 | 11/15/2017 | WD | Warranty Deed | KELLY, CHRISTOPHER R | HANES, JACOB M | | | $283,000.00 | 31976 | 4434445 |
| 4 | 02/03/2009 | TRUSTEED | Trustee's Deed | BANK OF AMERICA NATIONAL ASSOC | KELLY, CHRISTOPHER R | | | $235,500.00 | 90601 | 4247029 |
| 5 | 02/03/2009 | TRUSTEED | Trustee's Deed | LASALLE BANK NATIONA ASSOCIATI | BANK OF AMERICA NATIONAL ASSOC | | | $235,500.00 | 90600 | 4247028 |
| 6 | 08/18/2008 | TRUSTEED | Trustee's Deed | KOSMAS, JULIE P | LASALLE BANK NATIONA ASSOCIATI | | | $242,525.00 | 82206 | 4235467 |
| 7 | 03/13/2006 | ESTSEPPROP | Establish Separate Property | KOSMAS, WILLIAM N | KOSMAS, JULIE P | | | $0.00 | 61434 | 4166492 |
| 8 | 05/25/2001 | WD | Warranty Deed | PARKER, DONALD J | KOSMAS, WILLIAM N | | | $170,000.00 | 12029 | 20033930 |
| 9 | 09/01/1993 | WD | Warranty Deed | SNYDER, JAMES E | PARKER, DONALD J | | | $130,500.00 | 33521 | 93018302 |
| 10 | 07/01/1983 | WD | Warranty Deed | KOETJE, GORDON | SNYDER, JAMES E | | | $84,500.00 | 32105 | 412764 |
| 11 | 09/01/1979 | REC | Real Estate Contract | MITCHELL, D L | KOETJE, GORDON | | | $15,925.00 | 94578 | 358878 |
| 12 | 01/01/1900 | OTHER | Other - Misc. Documents | Unknown | MITCHELL, D L | | | $0.00 | 0 | 0 |
Payout Agreement
| No payout information available.. |