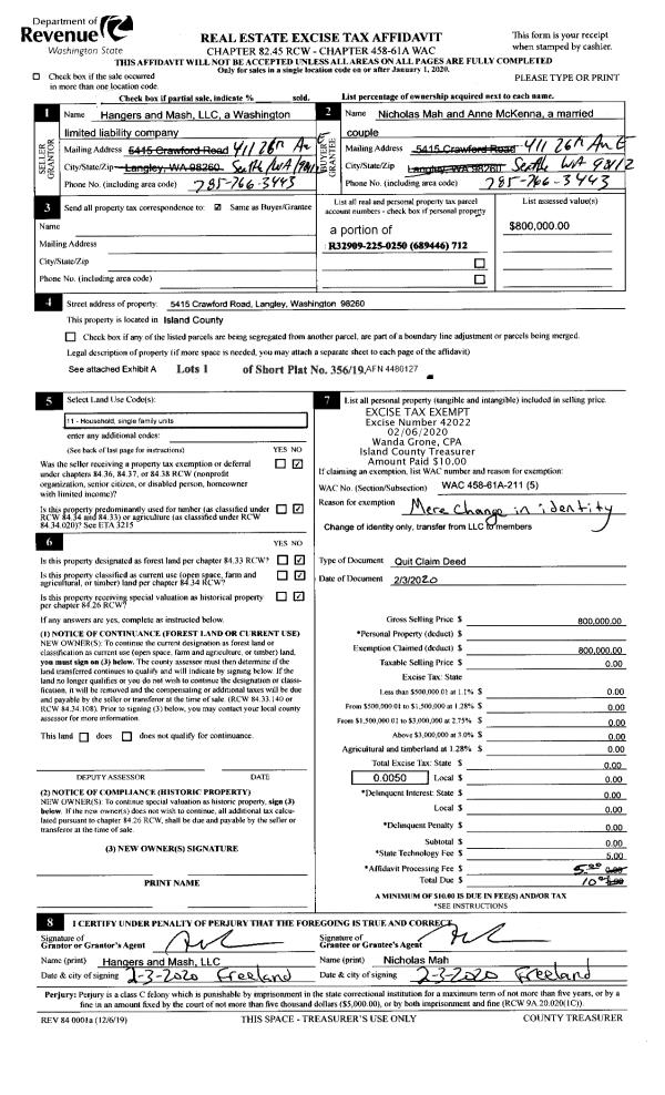
Property
Account |
| Property ID: | 50759 | Abbreviated Legal Description: | 146 - IN SW SW: BG NECR SW SW S01*W630' W495' E65' TPB E185' N01*E160' W185' S01*W 160' TPB EX RDS EX E60' 351D133 (TR B SP 75-009 AF#309014) |
| Geographic ID: | R22911-076-1000 | Agent Code: | |
| Type: | Real | | |
| Tax Area: | 760 - APPRAISER-S Whid Schl Dist, Special District, improved & less than 1 acre | Land Use Code | 59 |
| Open Space: | N | DFL | N |
| Historic Property: | N | Remodel Property: | N |
| Multi-Family Redevelopment: | N | | |
| Township: | 29 | Section: | 11 |
| Range: | R2 |
Location |
| Address: | 1675 S MAIN ST A&B FREELAND, WA 98249 | Mapsco: | |
| Neighborhood: | 34cFR-main st 1 | Map ID: | 313 |
| Neighborhood CD: | 34cFRmain1 |
Owner |
| Name: | RSH ENTERPRISES, LLC | Owner ID: | 272714 |
| Mailing Address: | PO BOX 130 FREELAND, WA 98249 | % Ownership: | 100.0000000000% |
| | | Exemptions: | |
Taxes and Assessment Details
Values
| (+) Improvement Homesite Value: | + | $0 | |
| (+) Improvement Non-Homesite Value: | + | $230,053 | |
| (+) Land Homesite Value: | + | $0 | |
| (+) Land Non-Homesite Value: | + | $204,732 | |
| (+) Curr Use (HS): | + | $0 | $0 |
| (+) Curr Use (NHS): | + | $0 | $0 |
| | | -------------------------- | |
| (=) Market Value: | = | $434,785 | |
| (–) Productivity Loss: | – | $0 | |
| | | -------------------------- | |
| (=) Subtotal: | = | $434,785 | |
| (+) Senior Appraised Value: | + | $0 | |
| (+) Non-Senior Appraised Value: | + | $434,785 | |
| | | -------------------------- | |
| (=) Total Appraised Value: | = | $434,785 | |
| (–) Senior Exemption Loss: | – | $0 | |
| (–) Exemption Loss: | – | $0 | |
| | | -------------------------- | |
| (=) Taxable Value: | = | $434,785 | |
Taxing Jurisdiction
| Owner: | RSH ENTERPRISES, LLC | | |
| % Ownership: | 100.0000000000% | | |
| Total Value: | $434,785 | | |
| Tax Area: | 760 - APPRAISER-S Whid Schl Dist, Special District, improved & less than 1 acre |
| CF | Conservation Futures | 0.0316035091 | $434,785 | $434,785 | $13.74 | | |
| FIRE3 | Fire & Rescue Dist #3 S Whidbey GEN | 1.2004855531 | $434,785 | $434,785 | $521.95 | | |
| HOBOND | Hospital BOND | 0.1910887512 | $434,785 | $434,785 | $83.08 | | |
| HOGEN | Hospital GEN | 0.3902502903 | $434,785 | $434,785 | $169.67 | | |
| CE | County Current Expense | 0.3708482477 | $434,785 | $434,785 | $161.24 | | |
| CR | County Roads | 0.4584763726 | $434,785 | $434,785 | $199.34 | | |
| ISLANDEMS | Hospital GEN (EMS) | 0.5000000000 | $434,785 | $434,785 | $217.39 | | |
| LIB | Library Sno-Isle GEN | 0.3153421757 | $434,785 | $434,785 | $137.11 | | |
| PORTWHID | Port of S Whidbey GEN | 0.1094540357 | $434,785 | $434,785 | $47.59 | | |
| SCH206BOND | School 206 BOND | 0.3161759235 | $434,785 | $434,785 | $137.47 | | |
| SCH206MO | School 206 Enrichment | 0.4547169547 | $434,785 | $434,785 | $197.70 | | |
| ST | State School | 1.3035497053 | $434,785 | $434,785 | $566.76 | | |
| ST2 | State School Part 2 | 0.8169543533 | $434,785 | $434,785 | $355.20 | | |
| SWHIDPRBD | P & R S Whidbey BOND | 0.0152817568 | $434,785 | $434,785 | $6.64 | | |
| SWHIDPRBD2 | P & R S Whidbey BOND2 | 0.0138911264 | $434,785 | $434,785 | $6.04 | | |
| SWHIDPRMT | P & R S Whidbey GEN | 0.2053334452 | $434,785 | $434,785 | $89.28 | | |
| | Total Tax Rate: | 6.6934522006 | | | | | |
| | | | | Taxes w/Current Exemptions: | $2,910.20 | | |
| | | | | Taxes w/o Exemptions: | $2,910.20 | | |
Improvement / Building
| Improvement #1: | COMMERCIAL | State Code: | F1 | 5124.4 sqft | Value: | $230,053 |
| Bathrooms: | 0 | Bedrooms: | 0 | | Ceiling: | DRYWALL PAINTED | Cooling: | HEAT PUMP/CONV/V | | Exterior Wall/Cover: | WD/WD OR STEEL STUDS | Floor Covering: | VINYL TILE | | Floor Structure: | CONCRETE ON GROUND | Foundation: | SLAB | | Interior Finish: | SHOPPING CENTER | Plumbing Fixture Cnt: | 1 | | Roof Structure/Cover: | BEAM BUILT-UP ROCK |   |   |
|
| | Type | Description | Class CD | Sub Class CD | Year Built | Area |
| | BAS | BASE/MAIN FLOOR | 3 | 0 | 1954 | 4774.4 |
| | OP3 | OPEN PORCH W/ROOF | 3 | 0 | 1954 | 60.0 |
| | OP4 | OPEN PORCH W/CEILING-ROOF | 3 | 0 | 1954 | 12.2 |
| | OP4 | OPEN PORCH W/CEILING-ROOF | 3 | 0 | 1954 | 897.0 |
| | OP4 | OPEN PORCH W/CEILING-ROOF | 3 | 0 | 1954 | 28.0 |
| | OP4 | OPEN PORCH W/CEILING-ROOF | 3 | 0 | 1954 | 17.2 |
| | OP4 | OPEN PORCH W/CEILING-ROOF | 3 | 0 | 1954 | 252.0 |
| | UTY | STORAGE/UTILITY | 3 | 0 | 1954 | 72.5 |
| | UTY | STORAGE/UTILITY | 3 | 0 | 1954 | 70.0 |
| | STG | STORAGE | 3 | 0 | 1954 | 350.0 |
| | oPV1 | PV/ASPH 2" | 3 | 0 | 1954 | 0.0 |
Sketch
Property Image
Land
| 1 | 68 | COMMERCIAL RETAIL | 0.4700 | 20473.20 | 0.00 | 0.00 | 1.00 | $204,732 | $0 |
Roll Value History
| 2026 | N/A | N/A | N/A | N/A | N/A |
| 2025 | $230,053 | $204,732 | $0 | $434,785 | $434,785 |
| 2024 | $230,440 | $204,732 | $0 | $435,172 | $435,172 |
| 2023 | $239,466 | $204,732 | $0 | $444,198 | $444,198 |
| 2022 | $198,768 | $204,732 | $0 | $403,500 | $403,500 |
| 2021 | $192,248 | $204,732 | $0 | $396,980 | $396,980 |
| 2020 | $191,509 | $204,732 | $0 | $396,241 | $396,241 |
| 2019 | $101,107 | $204,732 | $0 | $305,839 | $305,839 |
| 2018 | $101,157 | $184,259 | $0 | $285,416 | $285,416 |
| 2017 | $101,242 | $153,549 | $0 | $254,791 | $254,791 |
| 2016 | $101,441 | $153,549 | $0 | $254,990 | $254,990 |
| 2015 | $101,642 | $153,549 | $0 | $255,191 | $255,191 |
| 2014 | $99,114 | $153,549 | $0 | $252,663 | $252,663 |
| 2013 | $93,358 | $158,200 | $0 | $251,558 | $251,558 |
| 2012 | $107,122 | $158,200 | $0 | $265,322 | $265,322 |
| 2011 | $107,122 | $158,200 | $0 | $265,322 | $265,322 |
| 2010 | $112,037 | $158,200 | $0 | $270,237 | $270,237 |
| 2009 | $118,178 | $158,200 | $0 | $276,378 | $276,378 |
| 2008 | $121,248 | $158,200 | $0 | $279,448 | $279,448 |
| 2007 | $127,388 | $158,200 | $0 | $285,588 | $285,588 |
Deed and Sales History
| 1 | 05/29/2015 | QCD | Quit Claim Deed | JANGAARD, ROBERT | RSH ENTERPRISES, LLC | | | $0.00 | 22090 | 4389206 |
| 2 | 02/05/2001 | QCD | Quit Claim Deed | JANGAARD, ROBERT | JANGAARD, ROBERT | | | $86,000.00 | 10563 | 20025949 |
| 3 | 02/23/2001 | QCD | Quit Claim Deed | Jangaard, Linnea A | JANGAARD, ROBERT | | | $86,000.00 | 10561 | 20025950 |
| 4 | 02/26/2001 | WD | Warranty Deed | JANGAARD, ROBERT E/SHARON & | Jangaard, Linnea A | | | $0.00 | 10560 | 20025949 |
| 5 | 02/01/2001 | QCD | Quit Claim Deed | JANGAARD, ROBERT E | JANGAARD, ROBERT E/SHARON & | | | $86,000.00 | 10572 | 20024730 |
| 6 | 04/01/1995 | QCD | Quit Claim Deed | JANGAARD, ROBERT E | JANGAARD, ROBERT E | | | $0.00 | 51619 | 95007645 |
| 7 | 04/01/1985 | QCD | Quit Claim Deed | JANGAARD, ROBERT E | JANGAARD, ROBERT E | | | $0.00 | 51003 | 85004201 |
| 8 | 08/01/1984 | QCD | Quit Claim Deed | JANGAARD, ROBERT E | JANGAARD, ROBERT E | | | $0.00 | 43102 | 84004819 |
| 9 | 01/01/1900 | OTHER | Other - Misc. Documents | Unknown | JANGAARD, ROBERT E | | | $0.00 | 0 | 0 |
Payout Agreement
| No payout information available.. |