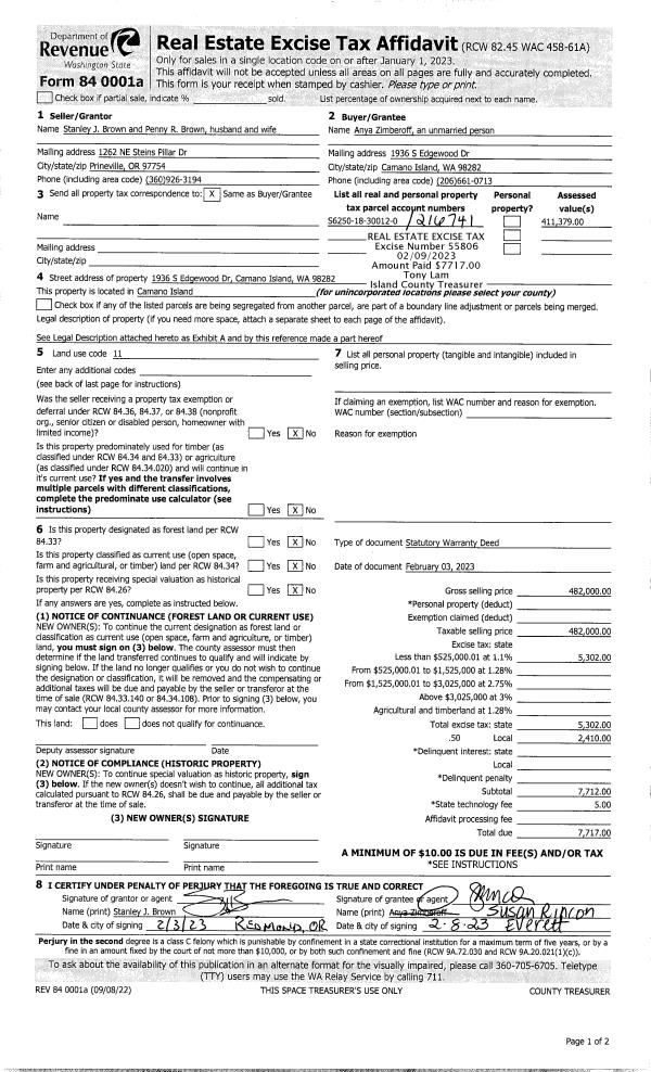
Property
Account |
| Property ID: | 507650 | Abbreviated Legal Description: | SUNRISE HILLS 2 LOT 19 |
| Geographic ID: | S8255-02-00019-0 | Agent Code: | |
| Type: | Real | | |
| Tax Area: | 110 - APPRAISER-OH Schl Dist, outside OH, improved & 1 acre or less | Land Use Code | 11 |
| Open Space: | N | DFL | N |
| Historic Property: | N | Remodel Property: | N |
| Multi-Family Redevelopment: | N | | |
| Township: | | Section: | |
| Range: | |
Location |
| Address: | 4481 SUNDAY DR OAK HARBOR, WA 98277 | Mapsco: | |
| Neighborhood: | Cycle 6 | Map ID: | 584 |
| Neighborhood CD: | 6 |
Owner |
| Name: | LIEN, CLANCY | Owner ID: | 181466 |
| Mailing Address: | KRISTA LIEN 4481 SUNDAY DR OAK HARBOR, WA 98277-9600 | % Ownership: | 100.0000000000% |
| | | Exemptions: | |
Taxes and Assessment Details
Values
| (+) Improvement Homesite Value: | + | $0 | |
| (+) Improvement Non-Homesite Value: | + | $260,016 | |
| (+) Land Homesite Value: | + | $0 | |
| (+) Land Non-Homesite Value: | + | $270,000 | |
| (+) Curr Use (HS): | + | $0 | $0 |
| (+) Curr Use (NHS): | + | $0 | $0 |
| | | -------------------------- | |
| (=) Market Value: | = | $530,016 | |
| (–) Productivity Loss: | – | $0 | |
| | | -------------------------- | |
| (=) Subtotal: | = | $530,016 | |
| (+) Senior Appraised Value: | + | $0 | |
| (+) Non-Senior Appraised Value: | + | $530,016 | |
| | | -------------------------- | |
| (=) Total Appraised Value: | = | $530,016 | |
| (–) Senior Exemption Loss: | – | $0 | |
| (–) Exemption Loss: | – | $0 | |
| | | -------------------------- | |
| (=) Taxable Value: | = | $530,016 | |
Taxing Jurisdiction
| Owner: | LIEN, CLANCY | | |
| % Ownership: | 100.0000000000% | | |
| Total Value: | $530,016 | | |
| Tax Area: | 110 - APPRAISER-OH Schl Dist, outside OH, improved & 1 acre or less |
| CF | Conservation Futures | 0.0316035091 | $530,016 | $530,016 | $16.75 | | |
| CEM1 | Cemetery #1 | 0.0040320932 | $530,016 | $530,016 | $2.14 | | |
| FIRE2 | Fire & Rescue Dist #2 N Whidbey GEN | 0.5475949600 | $530,016 | $530,016 | $290.23 | | |
| HOBOND | Hospital BOND | 0.1910887512 | $530,016 | $530,016 | $101.28 | | |
| HOGEN | Hospital GEN | 0.3902502903 | $530,016 | $530,016 | $206.84 | | |
| CE | County Current Expense | 0.3708482477 | $530,016 | $530,016 | $196.56 | | |
| CR | County Roads | 0.4584763726 | $530,016 | $530,016 | $243.00 | | |
| ISLANDEMS | Hospital GEN (EMS) | 0.5000000000 | $530,016 | $530,016 | $265.01 | | |
| LIB | Library Sno-Isle GEN | 0.3153421757 | $530,016 | $530,016 | $167.14 | | |
| NWHIDPRMT | P & R N Whidbey GEN | 0.2004466701 | $530,016 | $530,016 | $106.24 | | |
| SCH201MO | School 201 Enrichment | 1.8559231640 | $530,016 | $530,016 | $983.67 | | |
| ST | State School | 1.3035497053 | $530,016 | $530,016 | $690.90 | | |
| ST2 | State School Part 2 | 0.8169543533 | $530,016 | $530,016 | $433.00 | | |
| | Total Tax Rate: | 6.9861102925 | | | | | |
| | | | | Taxes w/Current Exemptions: | $3,702.76 | | |
| | | | | Taxes w/o Exemptions: | $3,702.76 | | |
Improvement / Building
| Improvement #1: | RESIDENTIAL | State Code: | Y | 1485.6 sqft | Value: | $260,016 |
| Bathrooms: | 2.5 | Bedrooms: | 2 | | Ceiling: | PLASTER PAINTED | Exterior Wall/Cover: | PLY/HARDBOARD T-111 | | Floor Covering: | CARPET/VINYL 80-20 | Floor Structure: | WOOD W/SUBFLOOR | | Foundation: | CONCRETE BLOCKS | Heating: | BASEBOARD ELECTRIC | | Interior Finish: | DRYWALL PAINT | Plumbing Fixture Cnt: | 11 | | Roof Slope: | 6" IN 12" | Roof Structure/Cover: | BEAM ASPHALT |
|
| | Type | Description | Class CD | Sub Class CD | Year Built | Area |
| | BAS | BASE/MAIN FLOOR | 3 | 0 | 1970 | 1485.6 |
| | OCP | OPEN CARPORT | 3 | 0 | 1970 | 390.4 |
| | UTY | STORAGE/UTILITY | 3 | 0 | 1970 | 24.3 |
| | OWP | OPEN WOOD PORCH W/STEPS | 3 | 0 | 1970 | 362.4 |
Sketch
Property Image
Land
| 1 | 15 | SQ (12001-21780) | 0.0000 | 0.00 | 0.00 | 0.00 | 1.00 | $270,000 | $0 |
Roll Value History
| 2026 | N/A | N/A | N/A | N/A | N/A |
| 2025 | $260,016 | $270,000 | $0 | $530,016 | $530,016 |
| 2024 | $268,606 | $250,000 | $0 | $518,606 | $518,606 |
| 2023 | $272,038 | $250,000 | $0 | $522,038 | $522,038 |
| 2022 | $246,337 | $250,000 | $0 | $496,337 | $496,337 |
| 2021 | $216,912 | $175,000 | $0 | $391,912 | $391,912 |
| 2020 | $211,137 | $150,000 | $0 | $361,137 | $361,137 |
| 2019 | $152,059 | $230,000 | $0 | $382,059 | $382,059 |
| 2018 | $152,521 | $135,000 | $0 | $287,521 | $287,521 |
| 2017 | $153,445 | $135,000 | $0 | $288,445 | $288,445 |
| 2016 | $108,368 | $120,000 | $0 | $228,368 | $228,368 |
| 2015 | $110,204 | $120,000 | $0 | $230,204 | $230,204 |
| 2014 | $112,041 | $120,000 | $0 | $232,041 | $232,041 |
| 2013 | $113,877 | $119,000 | $0 | $232,877 | $232,877 |
| 2012 | $113,877 | $119,000 | $0 | $232,877 | $232,877 |
| 2011 | $115,715 | $140,000 | $0 | $255,715 | $255,715 |
| 2010 | $132,445 | $140,000 | $0 | $272,445 | $272,445 |
| 2009 | $136,766 | $170,000 | $0 | $306,766 | $306,766 |
| 2008 | $138,984 | $217,500 | $0 | $356,484 | $356,484 |
| 2007 | $141,269 | $147,720 | $0 | $288,989 | $288,989 |
Deed and Sales History
| 1 | 08/08/2004 | WD | Warranty Deed | ARNETT, DONALD E | LIEN, CLANCY | | | $227,000.00 | 44312 | 4112802 |
| 2 | 08/23/1999 | WD | Warranty Deed | LOWELL, WILLIAM A/EDITH | ARNETT, DONALD E | | | $170,000.00 | 93538 | 99020239 |
| 3 | 11/01/1991 | WD | Warranty Deed | KIESELBACH, ROBERT R | LOWELL, WILLIAM A | | | $110,000.00 | 14137 | 91017906 |
| 4 | 08/01/1985 | WD | Warranty Deed | BROWN, GRACE E | KIESELBACH, ROBERT R | | | $70,000.00 | 52349 | 85009282 |
| 5 | 02/01/1970 | OTHER | Other - Misc. Documents | Unknown | BROWN, GRACE E | | | $0.00 | 0 | 228464 |
| 6 | 01/01/1900 | OTHER | Other - Misc. Documents | LOWELL, WILLIAM A | LOWELL, WILLIAM A/EDITH | | | $0.00 | 0 | 0 |
Payout Agreement
| No payout information available.. |