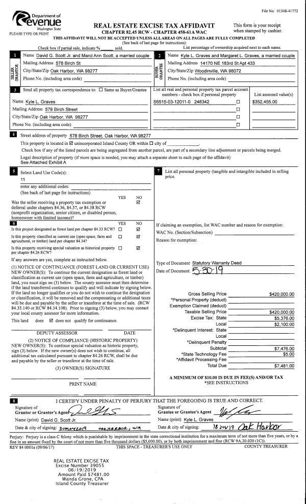
Property
Account |
| Property ID: | 507865 | Abbreviated Legal Description: | SUNRISE HILLS 3 LOT 6 TGW PT LOT 42 LY BETW NLY & SLY LNS OF LOT 6 EXT WLY TO WLN SD PLAT |
| Geographic ID: | S8255-03-00006-0 | Agent Code: | |
| Type: | Real | | |
| Tax Area: | 110 - APPRAISER-OH Schl Dist, outside OH, improved & 1 acre or less | Land Use Code | 11 |
| Open Space: | N | DFL | N |
| Historic Property: | N | Remodel Property: | N |
| Multi-Family Redevelopment: | N | | |
| Township: | | Section: | |
| Range: | |
Location |
| Address: | 501 GRANDVIEW DR OAK HARBOR, WA 98277 | Mapsco: | |
| Neighborhood: | Cycle 6 | Map ID: | 584 |
| Neighborhood CD: | 6 |
Owner |
| Name: | SPINKS TTEE, MAXINE C | Owner ID: | 290278 |
| Mailing Address: | 501 GRANDVIEW DR OAK HARBOR, WA 98277 | % Ownership: | 100.0000000000% |
| | | Exemptions: | |
Taxes and Assessment Details
Values
| (+) Improvement Homesite Value: | + | $0 | |
| (+) Improvement Non-Homesite Value: | + | $411,267 | |
| (+) Land Homesite Value: | + | $0 | |
| (+) Land Non-Homesite Value: | + | $270,000 | |
| (+) Curr Use (HS): | + | $0 | $0 |
| (+) Curr Use (NHS): | + | $0 | $0 |
| | | -------------------------- | |
| (=) Market Value: | = | $681,267 | |
| (–) Productivity Loss: | – | $0 | |
| | | -------------------------- | |
| (=) Subtotal: | = | $681,267 | |
| (+) Senior Appraised Value: | + | $0 | |
| (+) Non-Senior Appraised Value: | + | $681,267 | |
| | | -------------------------- | |
| (=) Total Appraised Value: | = | $681,267 | |
| (–) Senior Exemption Loss: | – | $0 | |
| (–) Exemption Loss: | – | $0 | |
| | | -------------------------- | |
| (=) Taxable Value: | = | $681,267 | |
Taxing Jurisdiction
| Owner: | SPINKS TTEE, MAXINE C | | |
| % Ownership: | 100.0000000000% | | |
| Total Value: | $681,267 | | |
| Tax Area: | 110 - APPRAISER-OH Schl Dist, outside OH, improved & 1 acre or less |
| CF | Conservation Futures | 0.0316035091 | $681,267 | $681,267 | $21.53 | | |
| CEM1 | Cemetery #1 | 0.0040320932 | $681,267 | $681,267 | $2.75 | | |
| FIRE2 | Fire & Rescue Dist #2 N Whidbey GEN | 0.5475949600 | $681,267 | $681,267 | $373.06 | | |
| HOBOND | Hospital BOND | 0.1910887512 | $681,267 | $681,267 | $130.18 | | |
| HOGEN | Hospital GEN | 0.3902502903 | $681,267 | $681,267 | $265.86 | | |
| CE | County Current Expense | 0.3708482477 | $681,267 | $681,267 | $252.65 | | |
| CR | County Roads | 0.4584763726 | $681,267 | $681,267 | $312.34 | | |
| ISLANDEMS | Hospital GEN (EMS) | 0.5000000000 | $681,267 | $681,267 | $340.63 | | |
| LIB | Library Sno-Isle GEN | 0.3153421757 | $681,267 | $681,267 | $214.83 | | |
| NWHIDPRMT | P & R N Whidbey GEN | 0.2004466701 | $681,267 | $681,267 | $136.56 | | |
| SCH201MO | School 201 Enrichment | 1.8559231640 | $681,267 | $681,267 | $1,264.38 | | |
| ST | State School | 1.3035497053 | $681,267 | $681,267 | $888.07 | | |
| ST2 | State School Part 2 | 0.8169543533 | $681,267 | $681,267 | $556.56 | | |
| | Total Tax Rate: | 6.9861102925 | | | | | |
| | | | | Taxes w/Current Exemptions: | $4,759.40 | | |
| | | | | Taxes w/o Exemptions: | $4,759.40 | | |
Improvement / Building
| Improvement #1: | RESIDENTIAL | State Code: | Y | 2708.1 sqft | Value: | $411,267 |
| Bathrooms: | 2.5 | Bedrooms: | 3 | | Ceiling: | DRYWALL PAINTED | Exterior Wall/Cover: | CEMENT FIBER | | Floor Covering: | HARDWOOD/CARP 20-80 | Floor Structure: | WOOD W/SUBFLOOR | | Foundation: | CONCRETE | Heating: | FHA GAS | | Interior Finish: | DRYWALL PAINT | Plumbing Fixture Cnt: | 13 | | Roof Slope: | 5" IN 12" | Roof Structure/Cover: | CJ ASPHALT |
|
| | Type | Description | Class CD | Sub Class CD | Year Built | Area |
| | BAS | BASE/MAIN FLOOR | 3 | 0 | 1991 | 2708.1 |
| | OP1 | OPEN PORCH SLAB | 3 | 0 | 1991 | 1073.0 |
| | OP1 | OPEN PORCH SLAB | 3 | 0 | 1991 | 558.3 |
| | AGR | ATTACHED GARAGE | 3 | 0 | 1991 | 700.0 |
Sketch
Property Image
Land
| 1 | 15 | SQ (12001-21780) | 0.0000 | 0.00 | 0.00 | 0.00 | 1.00 | $270,000 | $0 |
Roll Value History
| 2026 | N/A | N/A | N/A | N/A | N/A |
| 2025 | $411,267 | $270,000 | $0 | $681,267 | $681,267 |
| 2024 | $416,521 | $250,000 | $0 | $666,521 | $666,521 |
| 2023 | $421,779 | $250,000 | $0 | $671,779 | $671,779 |
| 2022 | $377,176 | $250,000 | $0 | $627,176 | $627,176 |
| 2021 | $332,120 | $175,000 | $0 | $507,120 | $507,120 |
| 2020 | $324,209 | $150,000 | $0 | $474,209 | $474,209 |
| 2019 | $254,498 | $230,000 | $0 | $484,498 | $484,498 |
| 2018 | $255,271 | $135,000 | $0 | $390,271 | $390,271 |
| 2017 | $256,817 | $135,000 | $0 | $391,817 | $391,817 |
| 2016 | $255,006 | $120,000 | $0 | $375,006 | $375,006 |
| 2015 | $258,277 | $120,000 | $0 | $378,277 | $378,277 |
| 2014 | $261,545 | $120,000 | $0 | $381,545 | $381,545 |
| 2013 | $264,815 | $119,000 | $0 | $383,815 | $383,815 |
| 2012 | $268,085 | $119,000 | $0 | $387,085 | $387,085 |
| 2011 | $271,354 | $140,000 | $0 | $411,354 | $411,354 |
| 2010 | $282,132 | $140,000 | $0 | $422,132 | $422,132 |
| 2009 | $294,388 | $170,000 | $0 | $464,388 | $464,388 |
| 2008 | $298,371 | $217,500 | $0 | $515,871 | $515,871 |
| 2007 | $302,445 | $147,720 | $0 | $450,165 | $450,165 |
Deed and Sales History
| 1 | 06/14/2019 | QCD | Quit Claim Deed | SPINKS, MAXINE C | SPINKS TTEE, MAXINE C | | | $0.00 | 38996 | 4465485 |
| 2 | 03/16/2017 | BARGSLD | Bargain And Sale Deed | DICKINSON, CATHERINE | SPINKS, MAXINE C | | | $413,000.00 | 28458 | 4418947 |
| 3 | 05/01/2008 | ESTSEPPROP | Establish Separate Property | DICKINSON, ROBERT | DICKINSON, CATHERINE | | | $0.00 | 81156 | 4228138 |
| 4 | 07/27/2001 | ESTSEPPROP | Establish Separate Property | DICKINSON, ROBERT A | DICKINSON, ROBERT | | | $0.00 | 13465 | 20042345 |
| 5 | 05/01/1990 | WD | Warranty Deed | BURLEY, MARK L | DICKINSON, ROBERT A | | | $63,500.00 | 3410 | 90011136 |
| 6 | 05/01/1988 | WD | Warranty Deed | KRIEG, BUSTER | BURLEY, MARK L | | | $35,000.00 | 81486 | 88005631 |
| 7 | 01/01/1900 | OTHER | Other - Misc. Documents | Unknown | KRIEG, BUSTER | | | $0.00 | 0 | 0 |
Payout Agreement
| No payout information available.. |