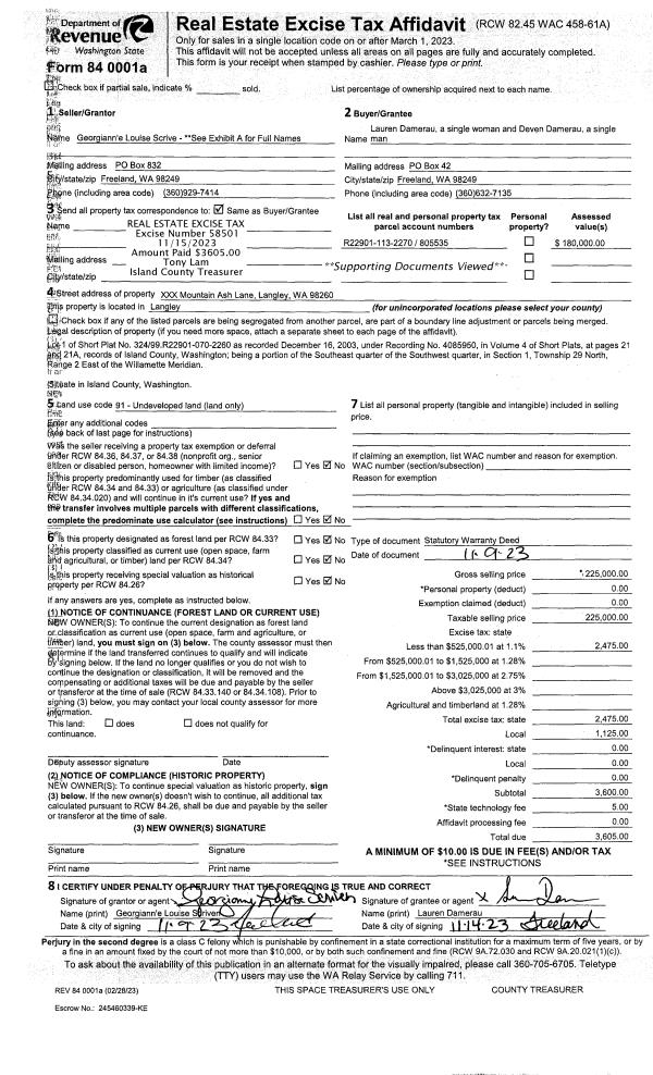
Property
Account |
| Property ID: | 507874 | Abbreviated Legal Description: | SUNRISE HILLS 3 LOT 7 |
| Geographic ID: | S8255-03-00007-0 | Agent Code: | |
| Type: | Real | | |
| Tax Area: | 112 - APPRAISER-OH Schl Dist, outside OH, improved, greater than 1 acre | Land Use Code | 11 |
| Open Space: | N | DFL | N |
| Historic Property: | N | Remodel Property: | N |
| Multi-Family Redevelopment: | N | | |
| Township: | | Section: | |
| Range: | |
Location |
| Address: | 520 GRANDVIEW DR OAK HARBOR, WA 98277 | Mapsco: | |
| Neighborhood: | Cycle 6 | Map ID: | 584 |
| Neighborhood CD: | 6 |
Owner |
| Name: | 520 GRANDVIEW TRUST | Owner ID: | 307768 |
| Mailing Address: | 3225 MCLEOD DR, SUITE 777 LAS VEGAS, NV 89121 | % Ownership: | 100.0000000000% |
| | | Exemptions: | |
Taxes and Assessment Details
Values
| (+) Improvement Homesite Value: | + | $0 | |
| (+) Improvement Non-Homesite Value: | + | $565,143 | |
| (+) Land Homesite Value: | + | $0 | |
| (+) Land Non-Homesite Value: | + | $270,000 | |
| (+) Curr Use (HS): | + | $0 | $0 |
| (+) Curr Use (NHS): | + | $0 | $0 |
| | | -------------------------- | |
| (=) Market Value: | = | $835,143 | |
| (–) Productivity Loss: | – | $0 | |
| | | -------------------------- | |
| (=) Subtotal: | = | $835,143 | |
| (+) Senior Appraised Value: | + | $0 | |
| (+) Non-Senior Appraised Value: | + | $835,143 | |
| | | -------------------------- | |
| (=) Total Appraised Value: | = | $835,143 | |
| (–) Senior Exemption Loss: | – | $0 | |
| (–) Exemption Loss: | – | $0 | |
| | | -------------------------- | |
| (=) Taxable Value: | = | $835,143 | |
Taxing Jurisdiction
| Owner: | 520 GRANDVIEW TRUST | | |
| % Ownership: | 100.0000000000% | | |
| Total Value: | $835,143 | | |
| Tax Area: | 112 - APPRAISER-OH Schl Dist, outside OH, improved, greater than 1 acre |
| CF | Conservation Futures | 0.0316035091 | $835,143 | $835,143 | $26.39 | | |
| CEM1 | Cemetery #1 | 0.0040320932 | $835,143 | $835,143 | $3.37 | | |
| FIRE2 | Fire & Rescue Dist #2 N Whidbey GEN | 0.5475949600 | $835,143 | $835,143 | $457.32 | | |
| HOBOND | Hospital BOND | 0.1910887512 | $835,143 | $835,143 | $159.59 | | |
| HOGEN | Hospital GEN | 0.3902502903 | $835,143 | $835,143 | $325.91 | | |
| CE | County Current Expense | 0.3708482477 | $835,143 | $835,143 | $309.71 | | |
| CR | County Roads | 0.4584763726 | $835,143 | $835,143 | $382.89 | | |
| ISLANDEMS | Hospital GEN (EMS) | 0.5000000000 | $835,143 | $835,143 | $417.57 | | |
| LIB | Library Sno-Isle GEN | 0.3153421757 | $835,143 | $835,143 | $263.36 | | |
| NWHIDPRMT | P & R N Whidbey GEN | 0.2004466701 | $835,143 | $835,143 | $167.40 | | |
| SCH201MO | School 201 Enrichment | 1.8559231640 | $835,143 | $835,143 | $1,549.96 | | |
| ST | State School | 1.3035497053 | $835,143 | $835,143 | $1,088.65 | | |
| ST2 | State School Part 2 | 0.8169543533 | $835,143 | $835,143 | $682.27 | | |
| | Total Tax Rate: | 6.9861102925 | | | | | |
| | | | | Taxes w/Current Exemptions: | $5,834.39 | | |
| | | | | Taxes w/o Exemptions: | $5,834.39 | | |
Improvement / Building
| Improvement #1: | RESIDENTIAL | State Code: | Y | 2526.3 sqft | Value: | $565,143 |
| Bathrooms: | 3 | Bedrooms: | 3 | | Ceiling: | DRYWALL PAINTED | Cooling: | HEAT PUMP/CONV/V | | Exterior Wall/Cover: | PLY/HARDBOARD T-111 | Floor Covering: | CERAMIC TILE/CPT 40-60 | | Floor Structure: | WOOD W/SUBFLOOR | Foundation: | CONCRETE | | Interior Finish: | DRYWALL PAINT | Plumbing Fixture Cnt: | 14 | | Roof Slope: | 4" IN 12" | Roof Structure/Cover: | CJ ALUMINIUM HEAVY |
|
| | Type | Description | Class CD | Sub Class CD | Year Built | Area |
| | BAS | BASE/MAIN FLOOR | 4 | 0 | 2003 | 1756.8 |
| | UB8 | BASEMENT UNFINISHED 8" | 4 | 0 | 2003 | 858.6 |
| | OP2 | OPEN PORCH W/STEPS | 4 | 0 | 2003 | 66.4 |
| | AGR | ATTACHED GARAGE | 4 | 0 | 2003 | 984.0 |
| | OWP | OPEN WOOD PORCH W/STEPS | 4 | 0 | 2003 | 794.7 |
| | ENP | ENCLOSED PORCH | 4 | 0 | 2003 | 129.6 |
| | DWN | DOWNSTAIRS LIVING AREA | 4 | 0 | 2003 | 769.5 |
| | UTY | STORAGE/UTILITY | 4 | 0 | 2003 | 135.3 |
Sketch
Property Image
Land
| 1 | 17 | AC (01.01-02.00) | 0.0000 | 0.00 | 0.00 | 0.00 | 1.00 | $270,000 | $0 |
Roll Value History
| 2026 | N/A | N/A | N/A | N/A | N/A |
| 2025 | $565,143 | $270,000 | $0 | $835,143 | $835,143 |
| 2024 | $569,358 | $250,000 | $0 | $819,358 | $819,358 |
| 2023 | $576,282 | $250,000 | $0 | $826,282 | $826,282 |
| 2022 | $515,582 | $250,000 | $0 | $765,582 | $765,582 |
| 2021 | $453,766 | $175,000 | $0 | $628,766 | $628,766 |
| 2020 | $442,411 | $150,000 | $0 | $592,411 | $592,411 |
| 2019 | $333,284 | $230,000 | $0 | $563,284 | $563,284 |
| 2018 | $334,262 | $135,000 | $0 | $469,262 | $469,262 |
| 2017 | $336,183 | $135,000 | $0 | $471,183 | $471,183 |
| 2016 | $357,467 | $120,000 | $0 | $477,467 | $477,467 |
| 2015 | $361,624 | $120,000 | $0 | $481,624 | $481,624 |
| 2014 | $365,779 | $120,000 | $0 | $485,779 | $485,779 |
| 2013 | $369,936 | $95,000 | $0 | $464,936 | $464,936 |
| 2012 | $374,093 | $131,750 | $0 | $505,843 | $505,843 |
| 2011 | $378,249 | $155,000 | $0 | $533,249 | $533,249 |
| 2010 | $384,590 | $155,000 | $0 | $539,590 | $539,590 |
| 2009 | $400,900 | $185,000 | $0 | $585,900 | $585,900 |
| 2008 | $448,313 | $217,500 | $0 | $665,813 | $665,813 |
| 2007 | $448,652 | $137,500 | $0 | $586,152 | $586,152 |
Deed and Sales History
| 1 | 02/07/2023 | WD | Warranty Deed | SALMONS, JAMES DALE | 520 GRANDVIEW TRUST | | | $0.00 | 55955 | 4557127 |
| 2 | 05/16/2002 | WD | Warranty Deed | LIGHTBOURNE, ALESA M | SALMONS, JAMES DALE | | | $137,500.00 | 21910 | 4020674 |
| 3 | 04/04/2001 | WD | Warranty Deed | KING, JOSEPH S | LIGHTBOURNE, ALESA M | | | $133,750.00 | 11248 | 20029759 |
| 4 | 11/30/1999 | WD | Warranty Deed | VIVIANO, RICHARD P | KING, JOSEPH S | | | $135,000.00 | 94924 | 99027532 |
| 5 | 06/01/1993 | QCD | Quit Claim Deed | VIVIANO, RICHARD P | VIVIANO, RICHARD P | | | $0.00 | 32234 | 93011592 |
| 6 | 10/01/1992 | WD | Warranty Deed | HEWITT, JOHN C | VIVIANO, RICHARD P | | | $125,000.00 | 24370 | 92021409 |
| 7 | 07/01/1992 | QCD | Quit Claim Deed | HEWITT, JOHN C | HEWITT, JOHN C | | | $0.00 | 24116 | 92019987 |
| 8 | 06/01/1990 | WD | Warranty Deed | HEWITT, JOHN C | HEWITT, JOHN C | | | $0.00 | 3334 | 90010802 |
| 9 | 11/01/1989 | WD | Warranty Deed | KRIEG, ESTHER A | HEWITT, JOHN C | | | $100,000.00 | 95723 | 89018370 |
| 10 | 04/01/1989 | PRD | Personal Representatives Deed | KRIEG, KARL C | KRIEG, ESTHER A | | | $0.00 | 91398 | 89004900 |
| 11 | 05/01/1985 | QCD | Quit Claim Deed | SAMPLE, WILBUR H | KRIEG, KARL C | | | $0.00 | 51124 | 85004623 |
| 12 | 12/01/1983 | WD | Warranty Deed | KRIEG, BUSTER | SAMPLE, WILBUR H | | | $90,000.00 | 33702 | 418969 |
| 13 | 01/01/1900 | OTHER | Other - Misc. Documents | Unknown | KRIEG, BUSTER | | | $0.00 | 0 | 0 |
| 14 | 01/01/1900 | OTHER | Other - Misc. Documents | VIVIANO, RICHARD P | VIVIANO, RICHARD P | | | $0.00 | 0 | 0 |
Payout Agreement
| No payout information available.. |