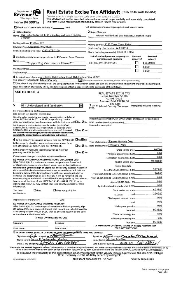
Property
Account |
| Property ID: | 507972 | Abbreviated Legal Description: | SUNRISE HILLS 3 LOT 17 |
| Geographic ID: | S8255-03-00017-0 | Agent Code: | |
| Type: | Real | | |
| Tax Area: | 112 - APPRAISER-OH Schl Dist, outside OH, improved, greater than 1 acre | Land Use Code | 11 |
| Open Space: | N | DFL | N |
| Historic Property: | N | Remodel Property: | N |
| Multi-Family Redevelopment: | N | | |
| Township: | | Section: | |
| Range: | |
Location |
| Address: | 4444 NORRIS LN OAK HARBOR, WA 98277 | Mapsco: | |
| Neighborhood: | Cycle 6 | Map ID: | 584 |
| Neighborhood CD: | 6 |
Owner |
| Name: | DAUGHERTY, TERRY L | Owner ID: | 42804 |
| Mailing Address: | 4444 NORRIS LN OAK HARBOR, WA 98277-9614 | % Ownership: | 100.0000000000% |
| | | Exemptions: | |
Taxes and Assessment Details
Values
| (+) Improvement Homesite Value: | + | $0 | |
| (+) Improvement Non-Homesite Value: | + | $333,651 | |
| (+) Land Homesite Value: | + | $0 | |
| (+) Land Non-Homesite Value: | + | $270,000 | |
| (+) Curr Use (HS): | + | $0 | $0 |
| (+) Curr Use (NHS): | + | $0 | $0 |
| | | -------------------------- | |
| (=) Market Value: | = | $603,651 | |
| (–) Productivity Loss: | – | $0 | |
| | | -------------------------- | |
| (=) Subtotal: | = | $603,651 | |
| (+) Senior Appraised Value: | + | $0 | |
| (+) Non-Senior Appraised Value: | + | $603,651 | |
| | | -------------------------- | |
| (=) Total Appraised Value: | = | $603,651 | |
| (–) Senior Exemption Loss: | – | $0 | |
| (–) Exemption Loss: | – | $0 | |
| | | -------------------------- | |
| (=) Taxable Value: | = | $603,651 | |
Taxing Jurisdiction
| Owner: | DAUGHERTY, TERRY L | | |
| % Ownership: | 100.0000000000% | | |
| Total Value: | $603,651 | | |
| Tax Area: | 112 - APPRAISER-OH Schl Dist, outside OH, improved, greater than 1 acre |
| CF | Conservation Futures | 0.0316035091 | $603,651 | $603,651 | $19.08 | | |
| CEM1 | Cemetery #1 | 0.0040320932 | $603,651 | $603,651 | $2.43 | | |
| FIRE2 | Fire & Rescue Dist #2 N Whidbey GEN | 0.5475949600 | $603,651 | $603,651 | $330.56 | | |
| HOBOND | Hospital BOND | 0.1910887512 | $603,651 | $603,651 | $115.35 | | |
| HOGEN | Hospital GEN | 0.3902502903 | $603,651 | $603,651 | $235.57 | | |
| CE | County Current Expense | 0.3708482477 | $603,651 | $603,651 | $223.86 | | |
| CR | County Roads | 0.4584763726 | $603,651 | $603,651 | $276.76 | | |
| ISLANDEMS | Hospital GEN (EMS) | 0.5000000000 | $603,651 | $603,651 | $301.83 | | |
| LIB | Library Sno-Isle GEN | 0.3153421757 | $603,651 | $603,651 | $190.36 | | |
| NWHIDPRMT | P & R N Whidbey GEN | 0.2004466701 | $603,651 | $603,651 | $121.00 | | |
| SCH201MO | School 201 Enrichment | 1.8559231640 | $603,651 | $603,651 | $1,120.33 | | |
| ST | State School | 1.3035497053 | $603,651 | $603,651 | $786.89 | | |
| ST2 | State School Part 2 | 0.8169543533 | $603,651 | $603,651 | $493.16 | | |
| | Total Tax Rate: | 6.9861102925 | | | | | |
| | | | | Taxes w/Current Exemptions: | $4,217.18 | | |
| | | | | Taxes w/o Exemptions: | $4,217.18 | | |
Improvement / Building
| Improvement #1: | RESIDENTIAL | State Code: | Y | 2600.0 sqft | Value: | $333,651 |
| Bathrooms: | 2.5 | Bedrooms: | 4 | | Ceiling: | DRY WALL SPRAYED | Exterior Wall/Cover: | VINYL | | Floor Covering: | CARPET/VINYL 80-20 | Floor Structure: | WOOD W/SUBFLOOR | | Foundation: | CONCRETE | Heating: | FHA ELECTRIC | | Interior Finish: | DRYWALL PAINT | Plumbing Fixture Cnt: | 11 | | Roof Slope: | 4" IN 12" | Roof Structure/Cover: | CJ ASPHALT |
|
| | Type | Description | Class CD | Sub Class CD | Year Built | Area |
| | BAS | BASE/MAIN FLOOR | 3 | 0 | 1982 | 1300.0 |
| | AGR | ATTACHED GARAGE | 3 | 0 | 1982 | 744.0 |
| | OWP | OPEN WOOD PORCH W/STEPS | 3 | 0 | 1982 | 155.5 |
| | OWP | OPEN WOOD PORCH W/STEPS | 3 | 0 | 1982 | 572.0 |
| | OWP | OPEN WOOD PORCH W/STEPS | 3 | 0 | 1982 | 639.0 |
| | DWN | DOWNSTAIRS LIVING AREA | 3 | 0 | 1982 | 1300.0 |
Sketch
Property Image
Land
| 1 | 17 | AC (01.01-02.00) | 0.0000 | 0.00 | 0.00 | 0.00 | 1.00 | $270,000 | $0 |
Roll Value History
| 2026 | N/A | N/A | N/A | N/A | N/A |
| 2025 | $333,651 | $270,000 | $0 | $603,651 | $603,651 |
| 2024 | $337,971 | $250,000 | $0 | $587,971 | $587,971 |
| 2023 | $342,290 | $250,000 | $0 | $592,290 | $592,290 |
| 2022 | $298,195 | $250,000 | $0 | $548,195 | $548,195 |
| 2021 | $262,702 | $175,000 | $0 | $437,702 | $437,702 |
| 2020 | $256,789 | $150,000 | $0 | $406,789 | $406,789 |
| 2019 | $201,317 | $230,000 | $0 | $431,317 | $431,317 |
| 2018 | $201,952 | $135,000 | $0 | $336,952 | $336,952 |
| 2017 | $203,222 | $135,000 | $0 | $338,222 | $338,222 |
| 2016 | $182,772 | $120,000 | $0 | $302,772 | $302,772 |
| 2015 | $185,275 | $120,000 | $0 | $305,275 | $305,275 |
| 2014 | $187,779 | $120,000 | $0 | $307,779 | $307,779 |
| 2013 | $190,282 | $95,000 | $0 | $285,282 | $285,282 |
| 2012 | $192,786 | $131,750 | $0 | $324,536 | $324,536 |
| 2011 | $195,290 | $155,000 | $0 | $350,290 | $350,290 |
| 2010 | $208,073 | $155,000 | $0 | $363,073 | $363,073 |
| 2009 | $217,101 | $185,000 | $0 | $402,101 | $402,101 |
| 2008 | $209,839 | $217,500 | $0 | $427,339 | $427,339 |
| 2007 | $212,677 | $147,720 | $0 | $360,397 | $360,397 |
Deed and Sales History
| 1 | 06/01/1983 | OTHER | Other - Misc. Documents | DAUGHERTY, TERRY L | DAUGHERTY, TERRY L | | | $0.00 | 60071 | 0 |
| 2 | 01/01/1981 | REC | Real Estate Contract | KRIEG, BUSTER | DAUGHERTY, TERRY L | | | $34,500.00 | 10209 | 378714 |
| 3 | 01/01/1900 | OTHER | Other - Misc. Documents | Unknown | KRIEG, BUSTER | | | $0.00 | 0 | 0 |
Payout Agreement
| No payout information available.. |