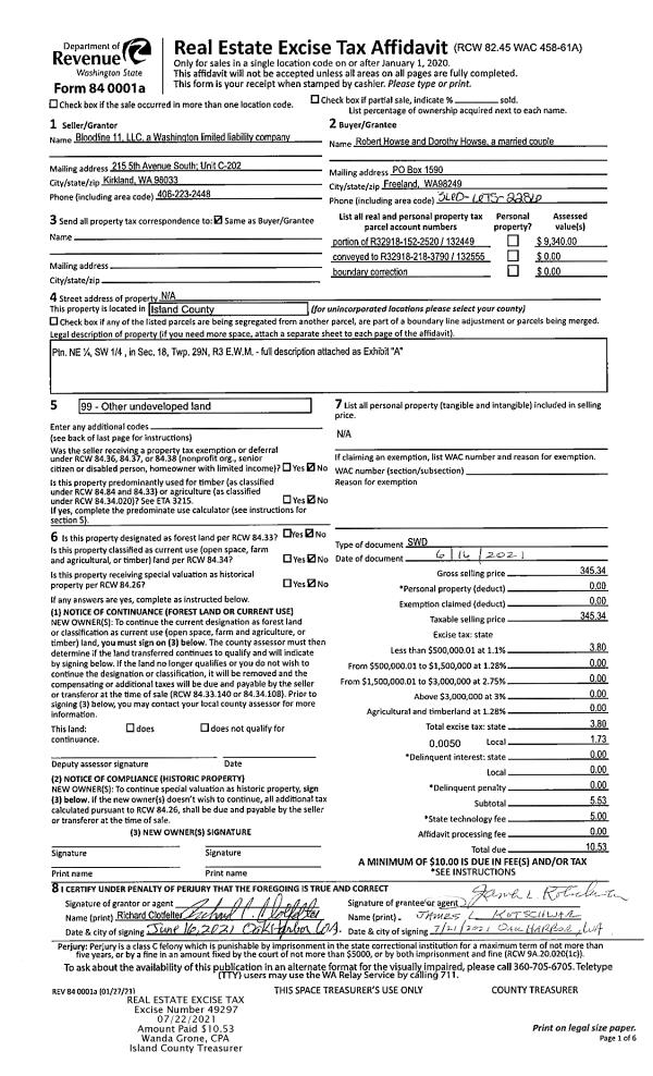
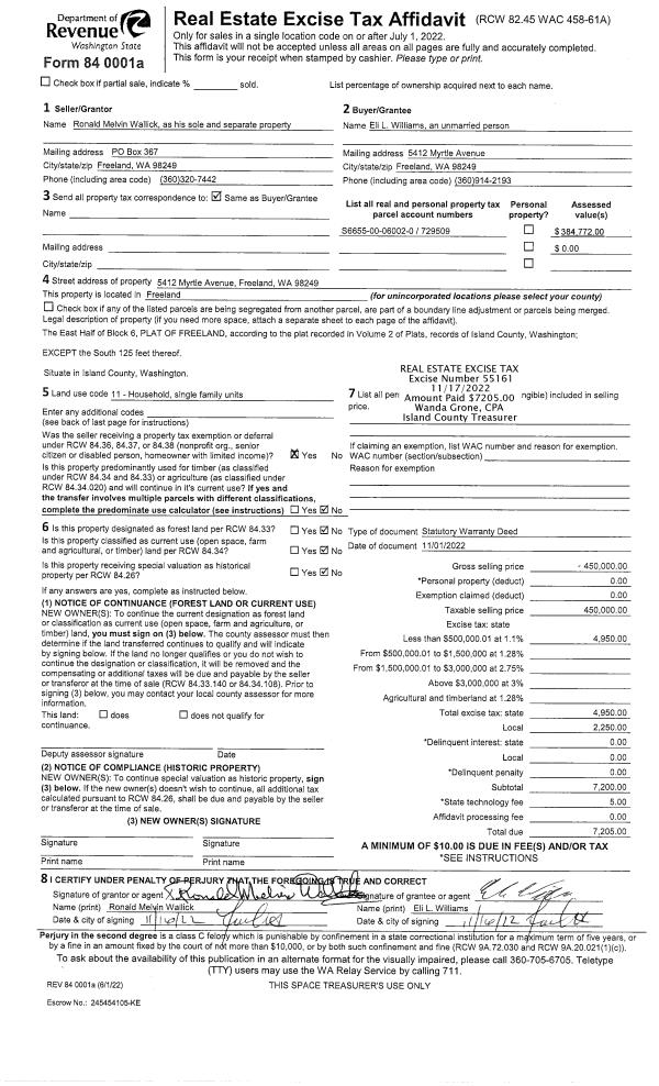
| 1 | 01/28/2021 | QCD | Quit Claim Deed | KELLY, SEAN PATRICK RAMOS | KRUSEY KELLY, TIFFANY ANN | | | $0.00 | 46793 | 4509800 |
| 2 | 01/03/2018 | QCD | Quit Claim Deed | KRUSEY, TIFFANY | KELLY, SEAN PATRICK RAMOS | | | $0.00 | 32742 | 4438138 |
| 3 | 03/26/2015 | QCD | Quit Claim Deed | KRUSEY, TIFFANY | KRUSEY, TIFFANY | | | $0.00 | 18999 | 4375862 |
| 4 | 05/27/2011 | ESTSEPPROP | Establish Separate Property | KRUSEY, TIFFANY | KRUSEY, TIFFANY | | | $0.00 | 4571 | 4296006 |
| 5 | 05/27/2011 | BARGSLD | Bargain And Sale Deed | FEDERAL NATIONAL MORTGAGE ASSOCIATION | KRUSEY, TIFFANY | | | $0.00 | 4569 | 4296005 |
| 6 | 07/02/2010 | TRUSTEED | Trustee's Deed | CENLAR FSB SERVICING AGENT FOR | FEDERAL NATIONAL MORTGAGE ASSO | | | $82,944.00 | 1740 | 4277100 |
| 7 | 11/23/2009 | TRUSTEED | Trustee's Deed | SMERSH, JULIE | CENLAR FSB SERVICING AGENT FOR | | | $82,944.00 | 92922 | 4264450 |
| 8 | 06/10/2006 | DECREE | Divorce Decree/Legal Separation | BURGER, FREDERICK F | SMERSH, JULIE | | | $0.00 | 61812 | 4172644 |
| 9 | 08/01/1987 | WD | Warranty Deed | ROCKER, NORMAN E | BURGER, FREDERICK F | | | $80,000.00 | 72526 | 87011513 |
| 10 | 01/01/1900 | OTHER | Other - Misc. Documents | Unknown | ROCKER, NORMAN E | | | $0.00 | 0 | 0 |