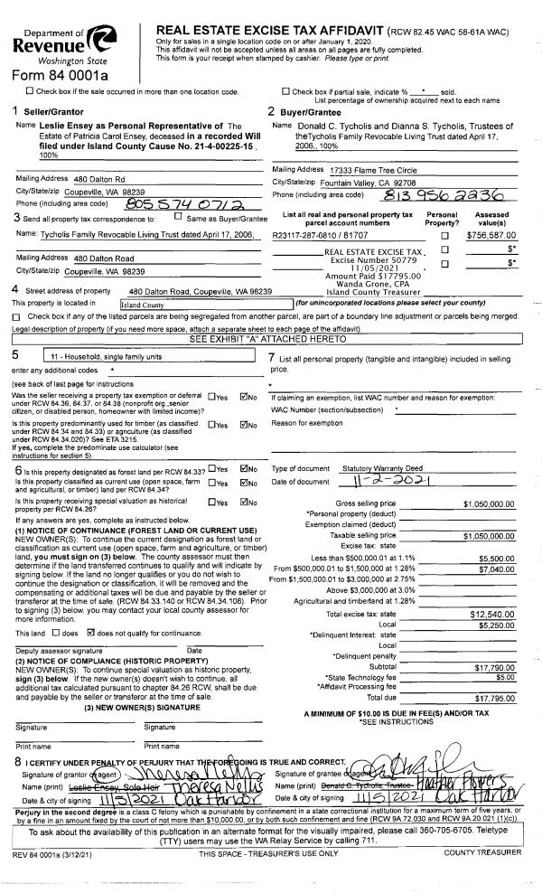
Property
Account |
| Property ID: | 509444 | Abbreviated Legal Description: | 1.1000 Acres ins Section 34s Township 30s Range R2s LOT B AF370784 AF#370784 TGW & SUB EZ AF#89003936 MOD EZ AF#91006614 BLA AF#4541701;s |
| Geographic ID: | R23034-470-2600 | Agent Code: | |
| Type: | Real | | |
| Tax Area: | 312 - APPRAISER-Cpvl Schl Dist, outside Cpvl, improved, greater than 1 acre | Land Use Code | 11 |
| Open Space: | N | DFL | N |
| Historic Property: | N | Remodel Property: | N |
| Multi-Family Redevelopment: | N | | |
| Township: | 30 | Section: | 34 |
| Range: | R2 |
Location |
| Address: | 4465 HONEYMOON BAY RD GREENBANK, WA 98253 | Mapsco: | |
| Neighborhood: | Cycle 3 | Map ID: | 442 |
| Neighborhood CD: | 3 |
Owner |
| Name: | KOTLARAK TTEE, CHERYL A | Owner ID: | 314444 |
| Mailing Address: | THOMAS L KOTLAREK TTEE 616 S VIA FIRENZE CT ARROYO GRANDE, CA 93420 | % Ownership: | 100.0000000000% |
| | | Exemptions: | |
Taxes and Assessment Details
Values
| (+) Improvement Homesite Value: | + | $0 | |
| (+) Improvement Non-Homesite Value: | + | $367,588 | |
| (+) Land Homesite Value: | + | $0 | |
| (+) Land Non-Homesite Value: | + | $725,700 | |
| (+) Curr Use (HS): | + | $0 | $0 |
| (+) Curr Use (NHS): | + | $0 | $0 |
| | | -------------------------- | |
| (=) Market Value: | = | $1,093,288 | |
| (–) Productivity Loss: | – | $0 | |
| | | -------------------------- | |
| (=) Subtotal: | = | $1,093,288 | |
| (+) Senior Appraised Value: | + | $0 | |
| (+) Non-Senior Appraised Value: | + | $1,093,288 | |
| | | -------------------------- | |
| (=) Total Appraised Value: | = | $1,093,288 | |
| (–) Senior Exemption Loss: | – | $0 | |
| (–) Exemption Loss: | – | $0 | |
| | | -------------------------- | |
| (=) Taxable Value: | = | $1,093,288 | |
Taxing Jurisdiction
| Owner: | KOTLARAK TTEE, CHERYL A | | |
| % Ownership: | 100.0000000000% | | |
| Total Value: | $1,093,288 | | |
| Tax Area: | 312 - APPRAISER-Cpvl Schl Dist, outside Cpvl, improved, greater than 1 acre |
| CF | Conservation Futures | 0.0316035091 | $1,093,288 | $1,093,288 | $34.55 | | |
| CEM2 | Cemetery #2 | 0.0095056933 | $1,093,288 | $1,093,288 | $10.39 | | |
| FIRE5 | Fire & Rescue Dist #5 C Whidbey GEN | 1.2008080668 | $1,093,288 | $1,093,288 | $1,312.83 | | |
| FIRE5BOND | Fire & Rescue Dist #5 C Whidbey BOND | 0.1400090713 | $1,093,288 | $1,093,288 | $153.07 | | |
| HOBOND | Hospital BOND | 0.1910887512 | $1,093,288 | $1,093,288 | $208.92 | | |
| HOGEN | Hospital GEN | 0.3902502903 | $1,093,288 | $1,093,288 | $426.66 | | |
| CE | County Current Expense | 0.3708482477 | $1,093,288 | $1,093,288 | $405.44 | | |
| CR | County Roads | 0.4584763726 | $1,093,288 | $1,093,288 | $501.25 | | |
| ISLANDEMS | Hospital GEN (EMS) | 0.5000000000 | $1,093,288 | $1,093,288 | $546.64 | | |
| LIB | Library Sno-Isle GEN | 0.3153421757 | $1,093,288 | $1,093,288 | $344.76 | | |
| LIBCAP | Library Sno-Isle BOND (Cap Fac Imp Area) | 0.0543427938 | $1,093,288 | $1,093,288 | $59.41 | | |
| POCOUP | Port of Coupeville GEN | 0.1093371703 | $1,093,288 | $1,093,288 | $119.54 | | |
| POCOUPIDD | Port of Coupeville IDD | 0.3409740022 | $1,093,288 | $1,093,288 | $372.78 | | |
| COUPSDTECH | School 204 CP (TECH) | 0.7545480007 | $1,093,288 | $1,093,288 | $824.94 | | |
| SCH204MO | School 204 Enrichment | 0.6716186034 | $1,093,288 | $1,093,288 | $734.27 | | |
| ST | State School | 1.3035497053 | $1,093,288 | $1,093,288 | $1,425.16 | | |
| ST2 | State School Part 2 | 0.8169543533 | $1,093,288 | $1,093,288 | $893.17 | | |
| | Total Tax Rate: | 7.6592568070 | | | | | |
| | | | | Taxes w/Current Exemptions: | $8,373.78 | | |
| | | | | Taxes w/o Exemptions: | $8,373.78 | | |
Improvement / Building
| Improvement #1: | RESIDENTIAL | State Code: | Y | 2260.0 sqft | Value: | $367,588 |
| Bathrooms: | 2.5 | Bedrooms: | 4 | | Ceiling: | DRYWALL PAINTED | Cooling: | HEAT PUMP/CONV/V | | Exterior Wall/Cover: | WOOD SIDING | Floor Covering: | LAMINATE/LVP | | Floor Structure: | WOOD W/SUBFLOOR | Foundation: | CONCRETE | | Interior Finish: | DRYWALL PAINT | Plumbing Fixture Cnt: | 12 | | Roof Slope: | 4" IN 12" | Roof Structure/Cover: | CJ ASPHALT |
|
| | Type | Description | Class CD | Sub Class CD | Year Built | Area |
| | BAS | BASE/MAIN FLOOR | 3 | 0 | 1978 | 1210.0 |
| | OWP | OPEN WOOD PORCH W/STEPS | 3 | 0 | 1978 | 210.0 |
| | OWP | OPEN WOOD PORCH W/STEPS | 3 | 0 | 1978 | 500.0 |
| | OWR | OPEN WOOD PORCH W/STEPS/ROOF | 3 | 0 | 1978 | 60.0 |
| | DWN | DOWNSTAIRS LIVING AREA | 3 | 0 | 1978 | 1050.0 |
| | OCP | OPEN CARPORT | 3 | 0 | 1978 | 440.0 |
| | UTY | STORAGE/UTILITY | 3 | 0 | 1978 | 160.0 |
Sketch
| No sketches available for this property. |
Property Image
Land
| 1 | HB | HIGH BLUFF | 1.1000 | 47916.00 | 70.00 | 0.00 | 1.00 | $725,000 | $0 |
| 2 | 55 | TIDES | 0.0000 | 0.00 | 70.00 | 0.00 | 1.00 | $700 | $0 |
Roll Value History
| 2026 | N/A | N/A | N/A | N/A | N/A |
| 2025 | $367,588 | $725,700 | $0 | $1,093,288 | $1,093,288 |
| 2024 | $315,480 | $675,700 | $0 | $991,180 | $991,180 |
| 2023 | $319,137 | $625,700 | $0 | $944,837 | $944,837 |
| 2022 | $292,294 | $625,700 | $0 | $917,994 | $917,994 |
| 2021 | $246,914 | $300,700 | $0 | $547,614 | $547,614 |
| 2020 | $240,096 | $300,700 | $0 | $540,796 | $540,796 |
| 2019 | $155,417 | $375,700 | $0 | $531,117 | $531,117 |
| 2018 | $155,928 | $300,700 | $0 | $456,628 | $456,628 |
| 2017 | $156,946 | $250,700 | $0 | $407,646 | $407,646 |
| 2016 | $155,983 | $250,700 | $0 | $406,683 | $406,683 |
| 2015 | $157,984 | $250,700 | $0 | $408,684 | $408,684 |
| 2014 | $159,984 | $250,700 | $0 | $410,684 | $410,684 |
| 2013 | $185,776 | $242,983 | $0 | $428,759 | $428,759 |
| 2012 | $198,279 | $242,983 | $0 | $441,262 | $441,262 |
| 2011 | $200,411 | $242,983 | $0 | $443,394 | $443,394 |
| 2010 | $205,599 | $242,983 | $0 | $448,582 | $448,582 |
| 2009 | $205,722 | $242,983 | $0 | $448,705 | $448,705 |
| 2008 | $195,429 | $180,682 | $0 | $376,111 | $376,111 |
| 2007 | $178,349 | $180,192 | $0 | $358,541 | $358,541 |
Deed and Sales History
| 1 | 10/25/2024 | QCD | Quit Claim Deed | HAYNES, CODY | RUTHERFORD, MATTHEW | | | $0.00 | 61747 | 4579005 |
| 2 | 10/28/2024 | WD | Warranty Deed | RUTHERFORD, MATTHEW J. | KOTLARAK TTEE, CHERYL A | | | $1,300,000.00 | 61739 | 4578973 |
| 3 | 08/24/2022 | QCD | Quit Claim Deed | RUTHERFORD, MATTHEW | RUTHERFORD, MATTHEW J. | | | $0.00 | 54343 | 4550430 |
| 4 | 08/24/2022 | QCD | Quit Claim Deed | HAYNES, CODY | RUTHERFORD, MATTHEW | | | $237,771.00 | 54342 | 4550432 |
| 5 | 03/15/2022 | QCD | Quit Claim Deed | HAYNES, CODY M | STREVEL, MASON VIRGIL | | | $0.00 | 52338 | 4541702 |
| 6 | 03/15/2022 | QCD | Quit Claim Deed | STREVEL, JODI | HAYNES, CODY M | | | $0.00 | 52339 | 4541703 |
| 7 | 04/07/2021 | QCD | Quit Claim Deed | DEMARTINI, KYLIE | HAYNES, CODY M | | | $0.00 | 47691 | 4515965 |
| 8 | 03/03/2021 | WD | Warranty Deed | BENNINGTON, CLAIRE ANN | HAYNES, CODY M | | | $607,500.00 | 47690 | 4515964 |
| 9 | 04/01/2017 | QCD | Quit Claim Deed | BENNINGTON, JAMES J | BENNINGTON, CLAIRE ANN | | | $0.00 | 29473 | 4423264 |
| 10 | 06/05/2013 | TRUSTEED | Trustee's Deed | BENNINGTON TRUSTEE, JAMES J | BENNINGTON, JAMES J | | | $0.00 | 11669 | 4342081 |
| 11 | 05/30/2006 | WD | Warranty Deed | BENNINGTON, JAMES J | BENNINGTON TRUSTEE, JAMES J | | | $0.00 | 62631 | 4173432 |
| 12 | 02/22/2005 | WD | Warranty Deed | BRYANT, WYLENE E | BENNINGTON, JAMES J | | | $340,000.00 | 50751 | 4126811 |
| 13 | 11/01/1992 | WD | Warranty Deed | GLACKEMEYER, RICHARD E | BRYANT, WYLENE E | | | $155,000.00 | 24407 | 92021571 |
| 14 | 05/01/1981 | OTHER | Other - Misc. Documents | GLACKEMEYER, RICHARD E | GLACKEMEYER, RICHARD E | | | $0.00 | 59165 | 384692 |
| 15 | 07/01/1980 | EXECUTORD | Executor Deed | ESTES, JOHN C | GLACKEMEYER, RICHARD E | | | $152,500.00 | 2395 | 371216 |
| 16 | 01/01/1900 | OTHER | Other - Misc. Documents | Unknown | ESTES, JOHN C | | | $0.00 | 0 | 0 |
Payout Agreement
| No payout information available.. |