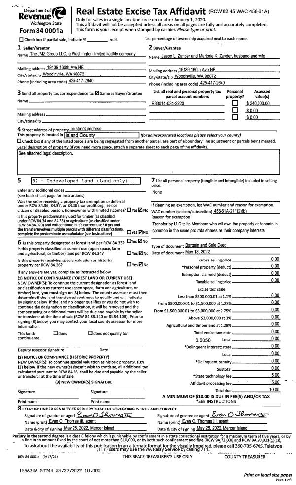
Property
Account |
| Property ID: | 509569 | Abbreviated Legal Description: | IN SE: BG SECR SEC 1 N168.2 TPB N150' N89*W804.39' S3*W 150.21' S89*E814.27' TPB EX RD TGW EZ FR 020-4940 (LOT 33-N SP 79-320 AF#369558) EX PT TO IS CO AF#4156096 |
| Geographic ID: | R23101-025-5000 | Agent Code: | |
| Type: | Real | | |
| Tax Area: | 512 - APPRAISER-Stan/Cam Schl Dist, improved, greater than 1 acre | Land Use Code | 11 |
| Open Space: | N | DFL | N |
| Historic Property: | N | Remodel Property: | N |
| Multi-Family Redevelopment: | N | | |
| Township: | 31 | Section: | 01 |
| Range: | R2 |
Location |
| Address: | 375 ROCKY MOUNTAIN HIGH RD CAMANO ISLAND, WA 98282 | Mapsco: | |
| Neighborhood: | Cycle 5 | Map ID: | 450 |
| Neighborhood CD: | 5 |
Owner |
| Name: | MUNCK, PAUL J | Owner ID: | 3039 |
| Mailing Address: | 375 ROCKY MOUNTAIN HIGH RD CAMANO ISLAND, WA 98282-8455 | % Ownership: | 100.0000000000% |
| | | Exemptions: | |
Taxes and Assessment Details
Values
| (+) Improvement Homesite Value: | + | $0 | |
| (+) Improvement Non-Homesite Value: | + | $235,044 | |
| (+) Land Homesite Value: | + | $0 | |
| (+) Land Non-Homesite Value: | + | $350,000 | |
| (+) Curr Use (HS): | + | $0 | $0 |
| (+) Curr Use (NHS): | + | $0 | $0 |
| | | -------------------------- | |
| (=) Market Value: | = | $585,044 | |
| (–) Productivity Loss: | – | $0 | |
| | | -------------------------- | |
| (=) Subtotal: | = | $585,044 | |
| (+) Senior Appraised Value: | + | $0 | |
| (+) Non-Senior Appraised Value: | + | $585,044 | |
| | | -------------------------- | |
| (=) Total Appraised Value: | = | $585,044 | |
| (–) Senior Exemption Loss: | – | $0 | |
| (–) Exemption Loss: | – | $0 | |
| | | -------------------------- | |
| (=) Taxable Value: | = | $585,044 | |
Taxing Jurisdiction
| Owner: | MUNCK, PAUL J | | |
| % Ownership: | 100.0000000000% | | |
| Total Value: | $585,044 | | |
| Tax Area: | 512 - APPRAISER-Stan/Cam Schl Dist, improved, greater than 1 acre |
| CF | Conservation Futures | 0.0316035091 | $585,044 | $585,044 | $18.49 | | |
| EMS1 | Fire & Rescue Dist #1 Camano GEN (EMS) | 0.3677864386 | $585,044 | $585,044 | $215.17 | | |
| FIRE1 | Fire & Rescue Dist #1 Camano GEN | 1.2502910536 | $585,044 | $585,044 | $731.48 | | |
| FIRE1BOND | Fire & Rescue Dist #1 Camano BOND | 0.1570001679 | $585,044 | $585,044 | $91.85 | | |
| CE | County Current Expense | 0.3708482477 | $585,044 | $585,044 | $216.96 | | |
| CR | County Roads | 0.4584763726 | $585,044 | $585,044 | $268.23 | | |
| LCIB | Library Sno-Isle BOND (Camano Island) | 0.0396325772 | $585,044 | $585,044 | $23.19 | | |
| LIB | Library Sno-Isle GEN | 0.3153421757 | $585,044 | $585,044 | $184.49 | | |
| SCH205_401 | School 205-401 Enrichment | 1.2698420524 | $585,044 | $585,044 | $742.91 | | |
| SCH205BOND | School 205-401 BOND | 0.9396497583 | $585,044 | $585,044 | $549.74 | | |
| ST | State School | 1.3035497053 | $585,044 | $585,044 | $762.63 | | |
| ST2 | State School Part 2 | 0.8169543533 | $585,044 | $585,044 | $477.95 | | |
| | Total Tax Rate: | 7.3209764117 | | | | | |
| | | | | Taxes w/Current Exemptions: | $4,283.09 | | |
| | | | | Taxes w/o Exemptions: | $4,283.09 | | |
Improvement / Building
| Improvement #1: | RESIDENTIAL | State Code: | Y | 2470.0 sqft | Value: | $235,044 |
| Bathrooms: | 1.75 | Bedrooms: | 2 | | Ceiling: | DRY WALL SPRAYED | Exterior Wall/Cover: | PLY/HARDBOARD T-111 | | Floor Covering: | CARPET/VINYL 80-20 | Floor Structure: | WOOD W/SUBFLOOR | | Foundation: | CONCRETE | Heating: | BASEBOARD ELECTRIC | | Interior Finish: | DRYWALL PAINT | Plumbing Fixture Cnt: | 9 | | Roof Slope: | 4" IN 12" | Roof Structure/Cover: | CJ ASPHALT |
|
| | Type | Description | Class CD | Sub Class CD | Year Built | Area |
| | BAS | BASE/MAIN FLOOR | 3 | 0 | 1983 | 1270.0 |
| | OP4 | OPEN PORCH W/CEILING-ROOF | 3 | 0 | 1983 | 36.0 |
| | OWP | OPEN WOOD PORCH W/STEPS | 3 | 0 | 1983 | 722.3 |
| | DWN | DOWNSTAIRS LIVING AREA | 3 | 0 | 1983 | 1200.0 |
Sketch
Property Image
Land
| 1 | 18 | AC (02.01-03.00) | 0.0000 | 0.00 | 0.00 | 0.00 | 1.00 | $350,000 | $0 |
Roll Value History
| 2026 | N/A | N/A | N/A | N/A | N/A |
| 2025 | $235,044 | $350,000 | $0 | $585,044 | $585,044 |
| 2024 | $244,026 | $340,000 | $0 | $584,026 | $584,026 |
| 2023 | $247,601 | $330,000 | $0 | $577,601 | $577,601 |
| 2022 | $227,443 | $320,000 | $0 | $547,443 | $547,443 |
| 2021 | $194,954 | $210,000 | $0 | $404,954 | $404,954 |
| 2020 | $190,932 | $200,000 | $0 | $390,932 | $390,932 |
| 2019 | $148,031 | $250,000 | $0 | $398,031 | $398,031 |
| 2018 | $148,550 | $210,000 | $0 | $358,550 | $358,550 |
| 2017 | $149,573 | $150,000 | $0 | $299,573 | $299,573 |
| 2016 | $151,650 | $150,000 | $0 | $301,650 | $301,650 |
| 2015 | $146,761 | $140,000 | $0 | $286,761 | $286,761 |
| 2014 | $148,864 | $140,000 | $0 | $288,864 | $288,864 |
| 2013 | $150,963 | $140,000 | $0 | $290,963 | $290,963 |
| 2012 | $153,065 | $140,000 | $0 | $293,065 | $293,065 |
| 2011 | $155,167 | $175,000 | $0 | $330,167 | $330,167 |
| 2010 | $157,278 | $175,000 | $0 | $332,278 | $332,278 |
| 2009 | $164,762 | $215,000 | $0 | $379,762 | $379,762 |
| 2008 | $166,914 | $215,000 | $0 | $381,914 | $381,914 |
| 2007 | $167,426 | $184,000 | $0 | $351,426 | $351,426 |
Deed and Sales History
| 1 | 11/14/2005 | QCD | Quit Claim Deed | MUNCK, PAUL J | MUNCK, PAUL J | | | $8,800.00 | 56068 | 4156096 |
| 2 | 12/01/1989 | WD | Warranty Deed | FLOREK, WALTER F | MUNCK, PAUL J | | | $169,500.00 | 95747 | 89018435 |
| 3 | 03/01/1981 | EXECUTORD | Executor Deed | DOUD, F B | FLOREK, WALTER F | | | $28,000.00 | 10688 | 380283 |
| 4 | 01/01/1979 | OTHER | Other - Misc. Documents | Unknown | DOUD, F B | | | $27,500.00 | 91294 | 349559 |
Payout Agreement
| No payout information available.. |