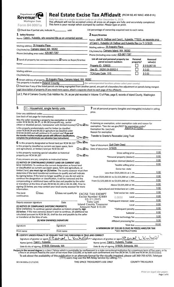
Property
Account |
| Property ID: | 509934 | Abbreviated Legal Description: | BG SECR GL2 N1*E449.10' TPB N1*E225.50' N88*W245.03' S1*W225.50' S88*E245.03' TPB EX W BEACH RD TGW SUB EZ FR 320-3040 (TR A SP 79-074 AF#362413) |
| Geographic ID: | R03224-320-3700 | Agent Code: | |
| Type: | Real | | |
| Tax Area: | 332 - APPRAISER-Cpvl Schl Dist, Special Dist, improved, greater than 1 acre | Land Use Code | 11 |
| Open Space: | N | DFL | N |
| Historic Property: | N | Remodel Property: | N |
| Multi-Family Redevelopment: | N | | |
| Township: | 32 | Section: | 24 |
| Range: | R0 |
Location |
| Address: | 2515 DESERET DR COUPEVILLE, WA 98239 | Mapsco: | |
| Neighborhood: | Cycle 2 | Map ID: | 5 |
| Neighborhood CD: | 2 |
Owner |
| Name: | GERRISTEN TTEE, HANS A | Owner ID: | 310879 |
| Mailing Address: | 316 MID VALLY CENTER #208 CARMEL, CA 93923 | % Ownership: | 100.0000000000% |
| | | Exemptions: | |
Taxes and Assessment Details
Values
| (+) Improvement Homesite Value: | + | $0 | |
| (+) Improvement Non-Homesite Value: | + | $414,043 | |
| (+) Land Homesite Value: | + | $0 | |
| (+) Land Non-Homesite Value: | + | $258,846 | |
| (+) Curr Use (HS): | + | $0 | $0 |
| (+) Curr Use (NHS): | + | $0 | $0 |
| | | -------------------------- | |
| (=) Market Value: | = | $672,889 | |
| (–) Productivity Loss: | – | $0 | |
| | | -------------------------- | |
| (=) Subtotal: | = | $672,889 | |
| (+) Senior Appraised Value: | + | $0 | |
| (+) Non-Senior Appraised Value: | + | $672,889 | |
| | | -------------------------- | |
| (=) Total Appraised Value: | = | $672,889 | |
| (–) Senior Exemption Loss: | – | $0 | |
| (–) Exemption Loss: | – | $0 | |
| | | -------------------------- | |
| (=) Taxable Value: | = | $672,889 | |
Taxing Jurisdiction
| Owner: | GERRISTEN TTEE, HANS A | | |
| % Ownership: | 100.0000000000% | | |
| Total Value: | $672,889 | | |
| Tax Area: | 332 - APPRAISER-Cpvl Schl Dist, Special Dist, improved, greater than 1 acre |
| CF | Conservation Futures | 0.0316035091 | $672,889 | $672,889 | $21.27 | | |
| CEM2 | Cemetery #2 | 0.0095056933 | $672,889 | $672,889 | $6.40 | | |
| FIRE2 | Fire & Rescue Dist #2 N Whidbey GEN | 0.5475949600 | $672,889 | $672,889 | $368.47 | | |
| HOBOND | Hospital BOND | 0.1910887512 | $672,889 | $672,889 | $128.58 | | |
| HOGEN | Hospital GEN | 0.3902502903 | $672,889 | $672,889 | $262.60 | | |
| CE | County Current Expense | 0.3708482477 | $672,889 | $672,889 | $249.54 | | |
| CR | County Roads | 0.4584763726 | $672,889 | $672,889 | $308.50 | | |
| ISLANDEMS | Hospital GEN (EMS) | 0.5000000000 | $672,889 | $672,889 | $336.44 | | |
| LIB | Library Sno-Isle GEN | 0.3153421757 | $672,889 | $672,889 | $212.19 | | |
| LIBCAP | Library Sno-Isle BOND (Cap Fac Imp Area) | 0.0543427938 | $672,889 | $672,889 | $36.57 | | |
| POCOUP | Port of Coupeville GEN | 0.1093371703 | $672,889 | $672,889 | $73.57 | | |
| POCOUPIDD | Port of Coupeville IDD | 0.3409740022 | $672,889 | $672,889 | $229.44 | | |
| COUPSDTECH | School 204 CP (TECH) | 0.7545480007 | $672,889 | $672,889 | $507.73 | | |
| SCH204MO | School 204 Enrichment | 0.6716186034 | $672,889 | $672,889 | $451.92 | | |
| ST | State School | 1.3035497053 | $672,889 | $672,889 | $877.14 | | |
| ST2 | State School Part 2 | 0.8169543533 | $672,889 | $672,889 | $549.72 | | |
| | Total Tax Rate: | 6.8660346289 | | | | | |
| | | | | Taxes w/Current Exemptions: | $4,620.08 | | |
| | | | | Taxes w/o Exemptions: | $4,620.08 | | |
Improvement / Building
| Improvement #1: | RESIDENTIAL | State Code: | Y | 2794.7 sqft | Value: | $414,043 |
| Bathrooms: | 3.5 | Bedrooms: | 4 | | Ceiling: | DRYWALL PAINTED | Exterior Wall/Cover: | VINYL | | Floor Covering: | CARPET/VINYL 20-80 | Floor Structure: | WOOD W/SUBFLOOR | | Foundation: | CONCRETE | Heating: | FHA ELECTRIC | | Interior Finish: | DRYWALL PAINT | Plumbing Fixture Cnt: | 18 | | Roof Slope: | 6" IN 12" | Roof Structure/Cover: | CJ CONCRETE TILE |
|
| | Type | Description | Class CD | Sub Class CD | Year Built | Area |
| | BAS | BASE/MAIN FLOOR | 3 | 0 | 1990 | 1284.0 |
| | UPH | HALF STORY | 3 | 0 | 1990 | 726.7 |
| | OWP | OPEN WOOD PORCH W/STEPS | 3 | 0 | 1990 | 253.5 |
| | UPS | UPPER STORY | 3 | 0 | 1990 | 784.0 |
| | BIG | BUILT IN GARAGE | 3 | 0 | 1990 | 784.0 |
| | OWP | OPEN WOOD PORCH W/STEPS | 3 | 0 | 1990 | 129.0 |
Sketch
Property Image
Land
| 1 | HS | HOMESITE | 1.0000 | 43560.00 | 0.00 | 0.00 | 1.00 | $220,000 | $0 |
| 2 | 91 | UNDEVELOPED LAND-METES AND BOUNDS | 0.1100 | 4791.60 | 0.00 | 0.00 | 1.00 | $38,846 | $0 |
Roll Value History
| 2026 | N/A | N/A | N/A | N/A | N/A |
| 2025 | $414,043 | $258,846 | $0 | $672,889 | $672,889 |
| 2024 | $408,683 | $270,000 | $0 | $678,683 | $678,683 |
| 2023 | $452,472 | $260,000 | $0 | $712,472 | $712,472 |
| 2022 | $415,014 | $250,000 | $0 | $665,014 | $665,014 |
| 2021 | $365,495 | $150,000 | $0 | $515,495 | $515,495 |
| 2020 | $357,086 | $150,000 | $0 | $507,086 | $507,086 |
| 2019 | $274,577 | $180,000 | $0 | $454,577 | $454,577 |
| 2018 | $211,291 | $160,000 | $0 | $371,291 | $371,291 |
| 2017 | $212,743 | $170,000 | $0 | $382,743 | $382,743 |
| 2016 | $215,696 | $140,000 | $0 | $355,696 | $355,696 |
| 2015 | $218,651 | $125,000 | $0 | $343,651 | $343,651 |
| 2014 | $221,607 | $113,050 | $0 | $334,657 | $334,657 |
| 2013 | $224,559 | $113,050 | $0 | $337,609 | $337,609 |
| 2012 | $211,271 | $113,050 | $0 | $324,321 | $324,321 |
| 2011 | $213,658 | $133,000 | $0 | $346,658 | $346,658 |
| 2010 | $224,933 | $133,000 | $0 | $357,933 | $357,933 |
| 2009 | $234,064 | $144,000 | $0 | $378,064 | $378,064 |
| 2008 | $237,299 | $157,700 | $0 | $394,999 | $394,999 |
| 2007 | $240,573 | $155,000 | $0 | $395,573 | $395,573 |
Deed and Sales History
| 1 | 12/13/2023 | WD | Warranty Deed | HOWER, SHANTEL M | GERRISTEN TTEE, HANS A | | | $699,000.00 | 58747 | 4567602 |
| 2 | 07/14/2021 | WD | Warranty Deed | STECKMAN, KATHLEEN R | HOWER, SHANTEL M | | | $699,000.00 | 49169 | 4524503 |
| 3 | 08/19/2005 | WD | Warranty Deed | DOLAN, RICHARD P | STECKMAN, KATHLEEN R | | | $364,900.00 | 54124 | 4144888 |
| 4 | 06/05/2002 | QCD | Quit Claim Deed | DOLAN, RICHARD P | DOLAN, RICHARD P | | | $0.00 | 22454 | 4024011 |
| 5 | 02/01/1998 | QCD | Quit Claim Deed | DOLAN, RICHARD P | DOLAN, RICHARD P | | | $20,000.00 | 80827 | 98004651 |
| 6 | 05/01/1990 | WD | Warranty Deed | KINGS, MEN C | DOLAN, RICHARD P | | | $118,007.00 | 3113 | 90010138 |
| 7 | 10/01/1989 | WD | Warranty Deed | HOVENIER, PETER J | KINGS, MEN C | | | $19,500.00 | 94974 | 89016115 |
| 8 | 09/01/1981 | WD | Warranty Deed | KNUTZEN, EINER C | HOVENIER, PETER J | | | $3,710.00 | 13037 | 388462 |
| 9 | 01/01/1900 | OTHER | Other - Misc. Documents | Unknown | KNUTZEN, EINER C | | | $0.00 | 0 | 0 |
Payout Agreement
| No payout information available.. |