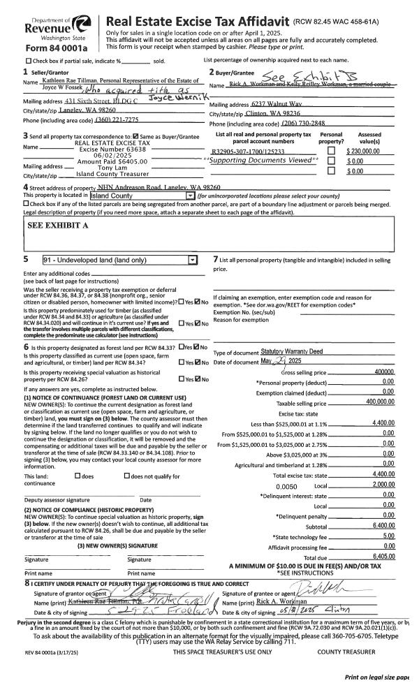
Property
Account |
| Property ID: | 509989 | Abbreviated Legal Description: | BG SECR GL2 N1*E449.10' N88*W695.09' TPB N88*W248 .84' N13*E230.43' S88*E201 .20' S1*W225.50' TPB TGW SUB EZ FR 320-3040 (TR D SP 79-074 AF#362413) |
| Geographic ID: | R03224-320-3050 | Agent Code: | |
| Type: | Real | | |
| Tax Area: | 332 - APPRAISER-Cpvl Schl Dist, Special Dist, improved, greater than 1 acre | Land Use Code | 11 |
| Open Space: | N | DFL | N |
| Historic Property: | N | Remodel Property: | N |
| Multi-Family Redevelopment: | N | | |
| Township: | 32 | Section: | 24 |
| Range: | R0 |
Location |
| Address: | 2557 DESERET DR COUPEVILLE, WA 98239 | Mapsco: | |
| Neighborhood: | Cycle 2 | Map ID: | 5 |
| Neighborhood CD: | 2 |
Owner |
| Name: | BUSH, ROBERT D | Owner ID: | 51463 |
| Mailing Address: | CYNTHIA A BUSH 2557 DESERET DR COUPEVILLE, WA 98239 | % Ownership: | 100.0000000000% |
| | | Exemptions: | |
Taxes and Assessment Details
Values
| (+) Improvement Homesite Value: | + | $0 | |
| (+) Improvement Non-Homesite Value: | + | $353,559 | |
| (+) Land Homesite Value: | + | $0 | |
| (+) Land Non-Homesite Value: | + | $262,720 | |
| (+) Curr Use (HS): | + | $0 | $0 |
| (+) Curr Use (NHS): | + | $0 | $0 |
| | | -------------------------- | |
| (=) Market Value: | = | $616,279 | |
| (–) Productivity Loss: | – | $0 | |
| | | -------------------------- | |
| (=) Subtotal: | = | $616,279 | |
| (+) Senior Appraised Value: | + | $0 | |
| (+) Non-Senior Appraised Value: | + | $616,279 | |
| | | -------------------------- | |
| (=) Total Appraised Value: | = | $616,279 | |
| (–) Senior Exemption Loss: | – | $0 | |
| (–) Exemption Loss: | – | $0 | |
| | | -------------------------- | |
| (=) Taxable Value: | = | $616,279 | |
Taxing Jurisdiction
| Owner: | BUSH, ROBERT D | | |
| % Ownership: | 100.0000000000% | | |
| Total Value: | $616,279 | | |
| Tax Area: | 332 - APPRAISER-Cpvl Schl Dist, Special Dist, improved, greater than 1 acre |
| CF | Conservation Futures | 0.0316035091 | $616,279 | $616,279 | $19.48 | | |
| CEM2 | Cemetery #2 | 0.0095056933 | $616,279 | $616,279 | $5.86 | | |
| FIRE2 | Fire & Rescue Dist #2 N Whidbey GEN | 0.5475949600 | $616,279 | $616,279 | $337.47 | | |
| HOBOND | Hospital BOND | 0.1910887512 | $616,279 | $616,279 | $117.76 | | |
| HOGEN | Hospital GEN | 0.3902502903 | $616,279 | $616,279 | $240.50 | | |
| CE | County Current Expense | 0.3708482477 | $616,279 | $616,279 | $228.55 | | |
| CR | County Roads | 0.4584763726 | $616,279 | $616,279 | $282.55 | | |
| ISLANDEMS | Hospital GEN (EMS) | 0.5000000000 | $616,279 | $616,279 | $308.14 | | |
| LIB | Library Sno-Isle GEN | 0.3153421757 | $616,279 | $616,279 | $194.34 | | |
| LIBCAP | Library Sno-Isle BOND (Cap Fac Imp Area) | 0.0543427938 | $616,279 | $616,279 | $33.49 | | |
| POCOUP | Port of Coupeville GEN | 0.1093371703 | $616,279 | $616,279 | $67.38 | | |
| POCOUPIDD | Port of Coupeville IDD | 0.3409740022 | $616,279 | $616,279 | $210.14 | | |
| COUPSDTECH | School 204 CP (TECH) | 0.7545480007 | $616,279 | $616,279 | $465.01 | | |
| SCH204MO | School 204 Enrichment | 0.6716186034 | $616,279 | $616,279 | $413.90 | | |
| ST | State School | 1.3035497053 | $616,279 | $616,279 | $803.35 | | |
| ST2 | State School Part 2 | 0.8169543533 | $616,279 | $616,279 | $503.47 | | |
| | Total Tax Rate: | 6.8660346289 | | | | | |
| | | | | Taxes w/Current Exemptions: | $4,231.39 | | |
| | | | | Taxes w/o Exemptions: | $4,231.39 | | |
Improvement / Building
| Improvement #1: | RESIDENTIAL | State Code: | Y | 2423.6 sqft | Value: | $353,559 |
| Bathrooms: | 2.5 | Bedrooms: | 3 | | Ceiling: | DRYWALL PAINTED | Exterior Wall/Cover: | WOOD SIDING | | Floor Covering: | CERAMIC TILE/CPT 40-60 | Floor Structure: | WOOD W/SUBFLOOR | | Foundation: | CONCRETE | Heating: | WALL HEAT ELECTRIC | | Interior Finish: | DRYWALL PAINT | Plumbing Fixture Cnt: | 11 | | Roof Slope: | 8" IN 12" | Roof Structure/Cover: | CJ ASPHALT |
|
| | Type | Description | Class CD | Sub Class CD | Year Built | Area |
| | BAS | BASE/MAIN FLOOR | 3 | 0 | 1992 | 1554.2 |
| | UPS | UPPER STORY | 3 | 0 | 1992 | 869.4 |
| | OWP | OPEN WOOD PORCH W/STEPS | 3 | 0 | 1992 | 382.4 |
| | OWC | OPEN WOOD PORCH W/STEPS/ROOF/C | 3 | 0 | 1992 | 48.0 |
Sketch
Property Image
Land
| 1 | 91 | UNDEVELOPED LAND-METES AND BOUNDS | 0.1800 | 7840.80 | 0.00 | 0.00 | 1.00 | $42,720 | $0 |
| 2 | HS | HOMESITE | 1.0000 | 43560.00 | 0.00 | 0.00 | 1.00 | $220,000 | $0 |
Roll Value History
| 2026 | N/A | N/A | N/A | N/A | N/A |
| 2025 | $353,559 | $262,720 | $0 | $616,279 | $616,279 |
| 2024 | $326,324 | $270,000 | $0 | $596,324 | $596,324 |
| 2023 | $330,603 | $260,000 | $0 | $590,603 | $590,603 |
| 2022 | $303,245 | $250,000 | $0 | $553,245 | $553,245 |
| 2021 | $267,061 | $150,000 | $0 | $417,061 | $417,061 |
| 2020 | $260,812 | $150,000 | $0 | $410,812 | $410,812 |
| 2019 | $202,301 | $180,000 | $0 | $382,301 | $382,301 |
| 2018 | $201,210 | $160,000 | $0 | $361,210 | $361,210 |
| 2017 | $202,393 | $166,000 | $0 | $368,393 | $368,393 |
| 2016 | $204,861 | $140,000 | $0 | $344,861 | $344,861 |
| 2015 | $207,328 | $125,000 | $0 | $332,328 | $332,328 |
| 2014 | $209,797 | $113,050 | $0 | $322,847 | $322,847 |
| 2013 | $212,265 | $113,050 | $0 | $325,315 | $325,315 |
| 2012 | $208,272 | $113,050 | $0 | $321,322 | $321,322 |
| 2011 | $210,819 | $133,000 | $0 | $343,819 | $343,819 |
| 2010 | $213,752 | $133,000 | $0 | $346,752 | $346,752 |
| 2009 | $222,912 | $160,000 | $0 | $382,912 | $382,912 |
| 2008 | $225,561 | $190,000 | $0 | $415,561 | $415,561 |
| 2007 | $228,271 | $155,000 | $0 | $383,271 | $383,271 |
Deed and Sales History
| 1 | 05/22/2006 | WD | Warranty Deed | MAIER, BRUCE A | BUSH, ROBERT D | | | $415,000.00 | 62414 | 4172034 |
| 2 | 10/01/1995 | WD | Warranty Deed | MOTTET, DOUGLAS J | MAIER, BRUCE A | | | $175,000.00 | 53806 | 95017431 |
| 3 | 03/01/1992 | WD | Warranty Deed | MCCAULEY, JOHN F | MOTTET, DOUGLAS J | | | $55,000.00 | 21003 | 92005043 |
| 4 | 06/01/1990 | WD | Warranty Deed | SMYLE, NORMAN C | MCCAULEY, JOHN F | | | $35,000.00 | 3315 | 90010748 |
| 5 | 07/01/1989 | WD | Warranty Deed | HOVENIER, PETER J | SMYLE, NORMAN C | | | $20,500.00 | 92961 | 89009940 |
| 6 | 09/01/1981 | WD | Warranty Deed | KNUTZEN, EINER C | HOVENIER, PETER J | | | $3,710.00 | 13037 | 388462 |
| 7 | 01/01/1900 | OTHER | Other - Misc. Documents | Unknown | KNUTZEN, EINER C | | | $0.00 | 0 | 0 |
Payout Agreement
| No payout information available.. |