Property
Account |
| Property ID: | 510263 | Abbreviated Legal Description: | IN WALLACE DC: BG NECR SEC 32 N88*W1228.50' S0*W1400 .51'TO NLN USA PROPERTY N88*W1473.26'TPB N1*E240' S88*E150' N1*E169' S88*E125 S1*W409' N88*W275'TPB EX CO RD TGW: BG NECR SEC 32 S0*W1400' TO NLN USA PROP N88*W4903.64'TO NECR MOUNT DC S88*E1854.24'TO |
| Geographic ID: | R23332-410-2650 | Agent Code: | |
| Type: | Real | | |
| Tax Area: | 112 - APPRAISER-OH Schl Dist, outside OH, improved, greater than 1 acre | Land Use Code | 11 |
| Open Space: | N | DFL | N |
| Historic Property: | N | Remodel Property: | N |
| Multi-Family Redevelopment: | N | | |
| Township: | 33 | Section: | 32 |
| Range: | R2 |
Location |
| Address: | 615 E CRESCENT HARBOR RD OAK HARBOR, WA 98277 | Mapsco: | |
| Neighborhood: | Cycle 6 | Map ID: | 650 |
| Neighborhood CD: | 6 |
Owner |
| Name: | RENNINGER, BARRY E | Owner ID: | 282192 |
| Mailing Address: | LAURA A RENNINGER 615 E CRESCENT HARBOR RD OAK HARBOR, WA 98277 | % Ownership: | 100.0000000000% |
| | | Exemptions: | |
Taxes and Assessment Details
Values
| (+) Improvement Homesite Value: | + | $0 | |
| (+) Improvement Non-Homesite Value: | + | $301,053 | |
| (+) Land Homesite Value: | + | $0 | |
| (+) Land Non-Homesite Value: | + | $290,000 | |
| (+) Curr Use (HS): | + | $0 | $0 |
| (+) Curr Use (NHS): | + | $0 | $0 |
| | | -------------------------- | |
| (=) Market Value: | = | $591,053 | |
| (–) Productivity Loss: | – | $0 | |
| | | -------------------------- | |
| (=) Subtotal: | = | $591,053 | |
| (+) Senior Appraised Value: | + | $0 | |
| (+) Non-Senior Appraised Value: | + | $591,053 | |
| | | -------------------------- | |
| (=) Total Appraised Value: | = | $591,053 | |
| (–) Senior Exemption Loss: | – | $0 | |
| (–) Exemption Loss: | – | $0 | |
| | | -------------------------- | |
| (=) Taxable Value: | = | $591,053 | |
Taxing Jurisdiction
| Owner: | RENNINGER, BARRY E | | |
| % Ownership: | 100.0000000000% | | |
| Total Value: | $591,053 | | |
| Tax Area: | 112 - APPRAISER-OH Schl Dist, outside OH, improved, greater than 1 acre |
| CF | Conservation Futures | 0.0316035091 | $591,053 | $591,053 | $18.68 | | |
| CEM1 | Cemetery #1 | 0.0040320932 | $591,053 | $591,053 | $2.38 | | |
| FIRE2 | Fire & Rescue Dist #2 N Whidbey GEN | 0.5475949600 | $591,053 | $591,053 | $323.66 | | |
| HOBOND | Hospital BOND | 0.1910887512 | $591,053 | $591,053 | $112.94 | | |
| HOGEN | Hospital GEN | 0.3902502903 | $591,053 | $591,053 | $230.66 | | |
| CE | County Current Expense | 0.3708482477 | $591,053 | $591,053 | $219.19 | | |
| CR | County Roads | 0.4584763726 | $591,053 | $591,053 | $270.98 | | |
| ISLANDEMS | Hospital GEN (EMS) | 0.5000000000 | $591,053 | $591,053 | $295.53 | | |
| LIB | Library Sno-Isle GEN | 0.3153421757 | $591,053 | $591,053 | $186.38 | | |
| NWHIDPRMT | P & R N Whidbey GEN | 0.2004466701 | $591,053 | $591,053 | $118.47 | | |
| SCH201MO | School 201 Enrichment | 1.8559231640 | $591,053 | $591,053 | $1,096.95 | | |
| ST | State School | 1.3035497053 | $591,053 | $591,053 | $770.47 | | |
| ST2 | State School Part 2 | 0.8169543533 | $591,053 | $591,053 | $482.86 | | |
| | Total Tax Rate: | 6.9861102925 | | | | | |
| | | | | Taxes w/Current Exemptions: | $4,129.15 | | |
| | | | | Taxes w/o Exemptions: | $4,129.15 | | |
Improvement / Building
| Improvement #1: | RESIDENTIAL | State Code: | Y | 1216.0 sqft | Value: | $301,053 |
| Bathrooms: | 1 | Bedrooms: | 2 | | Ceiling: | PLASTER PAINTED | Exterior Wall/Cover: | CEMENT FIBER | | Floor Covering: | HARDWOOD 100% | Floor Structure: | WOOD W/SUBFLOOR | | Foundation: | CONCRETE BLOCKS | Heating: | FHA ELECTRIC | | Interior Finish: | PLASTER | Plumbing Fixture Cnt: | 6 | | Roof Slope: | 6" IN 12" | Roof Structure/Cover: | CJ ALUMINIUM HEAVY |
|
| | Type | Description | Class CD | Sub Class CD | Year Built | Area |
| | BAS | BASE/MAIN FLOOR | 3 | 0 | 1905 | 1216.0 |
| | OP2 | OPEN PORCH W/STEPS | 3 | 0 | 1905 | 312.0 |
| | OP4 | OPEN PORCH W/CEILING-ROOF | 3 | 0 | 1905 | 42.0 |
| | OWP | OPEN WOOD PORCH W/STEPS | 3 | 0 | 1905 | 276.0 |
| | OWC | OPEN WOOD PORCH W/STEPS/ROOF/C | 3 | 0 | 1905 | 168.0 |
| | UTY | STORAGE/UTILITY | 3 | 0 | 1905 | 480.0 |
| | UTY | STORAGE/UTILITY | 3 | 0 | 1905 | 2800.0 |
| | ENP | ENCLOSED PORCH | 3 | 0 | 1905 | 120.0 |
| | OWP | OPEN WOOD PORCH W/STEPS | 3 | 0 | 1905 | 89.0 |
Sketch
Property Image
Land
| 1 | 18 | AC (02.01-03.00) | 2.7300 | 118918.80 | 0.00 | 0.00 | 1.00 | $290,000 | $0 |
Roll Value History
| 2026 | N/A | N/A | N/A | N/A | N/A |
| 2025 | $301,053 | $290,000 | $0 | $591,053 | $591,053 |
| 2024 | $304,257 | $280,000 | $0 | $584,257 | $584,257 |
| 2023 | $307,461 | $280,000 | $0 | $587,461 | $587,461 |
| 2022 | $260,597 | $220,000 | $0 | $480,597 | $480,597 |
| 2021 | $234,744 | $190,000 | $0 | $424,744 | $424,744 |
| 2020 | $230,388 | $160,000 | $0 | $390,388 | $390,388 |
| 2019 | $179,933 | $220,000 | $0 | $399,933 | $399,933 |
| 2018 | $180,351 | $200,000 | $0 | $380,351 | $380,351 |
| 2017 | $145,056 | $165,000 | $0 | $310,056 | $310,056 |
| 2016 | $123,471 | $160,000 | $0 | $283,471 | $283,471 |
| 2015 | $124,954 | $170,000 | $0 | $294,954 | $294,954 |
| 2014 | $126,438 | $167,400 | $0 | $293,838 | $293,838 |
| 2013 | $127,921 | $167,400 | $0 | $295,321 | $295,321 |
| 2012 | $129,405 | $167,400 | $0 | $296,805 | $296,805 |
| 2011 | $130,888 | $186,000 | $0 | $316,888 | $316,888 |
| 2010 | $145,863 | $186,000 | $0 | $331,863 | $331,863 |
| 2009 | $148,548 | $155,000 | $0 | $303,548 | $303,548 |
| 2008 | $175,329 | $155,000 | $0 | $330,329 | $330,329 |
| 2007 | $107,814 | $148,886 | $0 | $256,700 | $256,700 |
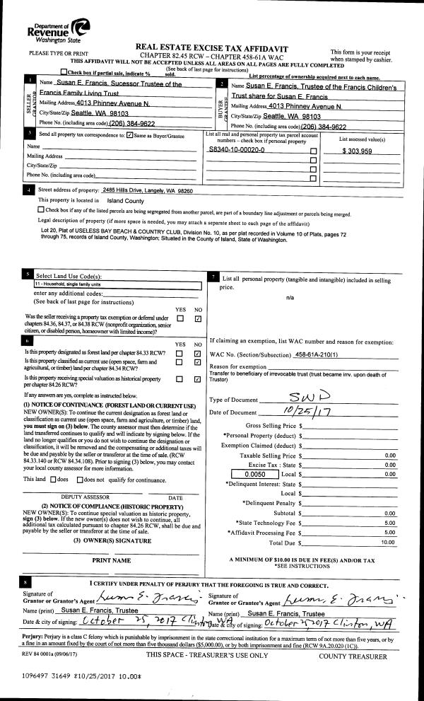
Deed and Sales History
| 1 | 09/07/2017 | WD | Warranty Deed | DUNCAN-WESTERDYK, CHERI LEE | RENNINGER, BARRY E | | | $375,000.00 | 31293 | 4431090 |
| 2 | 04/02/2012 | TOD | Transfer On Death Deed | WESTERDYK, ANTONE W | DUNCAN-WESTERDYK, CHERI LEE | | | | 82261 | |
| 3 | 01/01/1988 | DECREE | Divorce Decree/Legal Separation | WESTERDYK, ANTONE W | WESTERDYK, ANTONE W | | | $0.00 | 80104 | 88000398 |
| 4 | 01/01/1900 | OTHER | Other - Misc. Documents | WESTERDYK, ANTONE W | WESTERDYK, ANTONE W | | | $0.00 | 2294 | 370891 |
| 5 | 01/01/1900 | OTHER | Other - Misc. Documents | Unknown | WESTERDYK, ANTONE W | | | $0.00 | 0 | 0 |
Payout Agreement
| No payout information available.. |