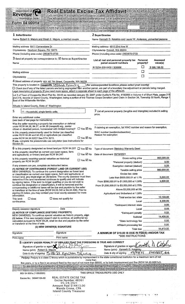
Property
Account |
| Property ID: | 510557 | Abbreviated Legal Description: | LOT 4 OF SPR 79/36-32909- 200-4550 AF#370839 S/2 NE NE SE TGW & SUB EZ |
| Geographic ID: | R32909-225-4800 | Agent Code: | |
| Type: | Real | | |
| Tax Area: | 712 - APPRAISER-S Whid Schl Dist, outside Langley, improved, greater than 1 acre | Land Use Code | 11 |
| Open Space: | N | DFL | N |
| Historic Property: | N | Remodel Property: | N |
| Multi-Family Redevelopment: | N | | |
| Township: | 29 | Section: | 09 |
| Range: | R3 |
Location |
| Address: | 5441 DEER RUN RD LANGLEY, WA 98260 | Mapsco: | |
| Neighborhood: | Cycle 4 | Map ID: | 751 |
| Neighborhood CD: | 4 |
Owner |
| Name: | HANSON, VICTOR E | Owner ID: | 252854 |
| Mailing Address: | 2863 VERLANE ST LANGLEY, WA 98260-9722 | % Ownership: | 100.0000000000% |
| | | Exemptions: | |
Taxes and Assessment Details
Values
| (+) Improvement Homesite Value: | + | $0 | |
| (+) Improvement Non-Homesite Value: | + | $1,081,853 | |
| (+) Land Homesite Value: | + | $0 | |
| (+) Land Non-Homesite Value: | + | $380,000 | |
| (+) Curr Use (HS): | + | $0 | $0 |
| (+) Curr Use (NHS): | + | $0 | $0 |
| | | -------------------------- | |
| (=) Market Value: | = | $1,461,853 | |
| (–) Productivity Loss: | – | $0 | |
| | | -------------------------- | |
| (=) Subtotal: | = | $1,461,853 | |
| (+) Senior Appraised Value: | + | $0 | |
| (+) Non-Senior Appraised Value: | + | $1,461,853 | |
| | | -------------------------- | |
| (=) Total Appraised Value: | = | $1,461,853 | |
| (–) Senior Exemption Loss: | – | $0 | |
| (–) Exemption Loss: | – | $0 | |
| | | -------------------------- | |
| (=) Taxable Value: | = | $1,461,853 | |
Taxing Jurisdiction
| Owner: | HANSON, VICTOR E | | |
| % Ownership: | 100.0000000000% | | |
| Total Value: | $1,461,853 | | |
| Tax Area: | 712 - APPRAISER-S Whid Schl Dist, outside Langley, improved, greater than 1 acre |
| CF | Conservation Futures | 0.0316035091 | $1,461,853 | $1,461,853 | $46.20 | | |
| FIRE3 | Fire & Rescue Dist #3 S Whidbey GEN | 1.2004855531 | $1,461,853 | $1,461,853 | $1,754.93 | | |
| HOBOND | Hospital BOND | 0.1910887512 | $1,461,853 | $1,461,853 | $279.34 | | |
| HOGEN | Hospital GEN | 0.3902502903 | $1,461,853 | $1,461,853 | $570.49 | | |
| CE | County Current Expense | 0.3708482477 | $1,461,853 | $1,461,853 | $542.13 | | |
| CR | County Roads | 0.4584763726 | $1,461,853 | $1,461,853 | $670.23 | | |
| ISLANDEMS | Hospital GEN (EMS) | 0.5000000000 | $1,461,853 | $1,461,853 | $730.93 | | |
| LIB | Library Sno-Isle GEN | 0.3153421757 | $1,461,853 | $1,461,853 | $460.98 | | |
| PORTWHID | Port of S Whidbey GEN | 0.1094540357 | $1,461,853 | $1,461,853 | $160.01 | | |
| SCH206BOND | School 206 BOND | 0.3161759235 | $1,461,853 | $1,461,853 | $462.20 | | |
| SCH206MO | School 206 Enrichment | 0.4547169547 | $1,461,853 | $1,461,853 | $664.73 | | |
| ST | State School | 1.3035497053 | $1,461,853 | $1,461,853 | $1,905.60 | | |
| ST2 | State School Part 2 | 0.8169543533 | $1,461,853 | $1,461,853 | $1,194.27 | | |
| SWHIDPRBD | P & R S Whidbey BOND | 0.0152817568 | $1,461,853 | $1,461,853 | $22.34 | | |
| SWHIDPRBD2 | P & R S Whidbey BOND2 | 0.0138911264 | $1,461,853 | $1,461,853 | $20.31 | | |
| SWHIDPRMT | P & R S Whidbey GEN | 0.2053334452 | $1,461,853 | $1,461,853 | $300.17 | | |
| | Total Tax Rate: | 6.6934522006 | | | | | |
| | | | | Taxes w/Current Exemptions: | $9,784.86 | | |
| | | | | Taxes w/o Exemptions: | $9,784.86 | | |
Improvement / Building
| Improvement #1: | RESIDENTIAL | State Code: | Y | 3414.0 sqft | Value: | $587,514 |
| Bathrooms: | 2 | Bedrooms: | 3 | | Ceiling: | DRYWALL PAINTED | Exterior Wall/Cover: | WOOD SIDING | | Floor Covering: | HARDWOOD 100% | Floor Structure: | WOOD W/SUBFLOOR | | Foundation: | CONCRETE | Heating: | FHA GAS | | Interior Finish: | DRYWALL PAINT | Plumbing Fixture Cnt: | 9 | | Roof Slope: | 10" IN 12" | Roof Structure/Cover: | CJ CONCRETE TILE |
|
| | Type | Description | Class CD | Sub Class CD | Year Built | Area |
| | BAS | BASE/MAIN FLOOR | 4 | 0 | 1993 | 1362.0 |
| | AGR | ATTACHED GARAGE | 4 | 0 | 1993 | 228.0 |
| | AGR | ATTACHED GARAGE | 4 | 0 | 1993 | 228.0 |
| | BIG | BUILT IN GARAGE | 4 | 0 | 1993 | 684.0 |
| | UPS | UPPER STORY | 4 | 0 | 1993 | 408.0 |
| | OWP | OPEN WOOD PORCH W/STEPS | 4 | 0 | 1993 | 360.0 |
| | DWN | DOWNSTAIRS LIVING AREA | 4 | 0 | 1993 | 600.0 |
| | BIG | BUILT IN GARAGE | 4 | 0 | 1993 | 1380.0 |
| | OCP | OPEN CARPORT | 4 | 0 | 1993 | 552.0 |
| | OCP | OPEN CARPORT | 4 | 0 | 1993 | 552.0 |
| | LOF | LOFT | 4 | 0 | 1993 | 1044.0 |
| Improvement #2: | RESIDENTIAL | State Code: | Y | 2408.0 sqft | Value: | $494,339 |
| Bathrooms: | 2 | Ceiling: | DRYWALL PAINTED | | Cooling: | (NONE) | Exterior Wall/Cover: | PLY/HARDBOARD T-111 | | Floor Covering: | HARDWOOD/CARP 60-40 | Floor Structure: | WOOD W/SUBFLOOR | | Foundation: | CONCRETE | Heating: | RADIANT FLOOR | | Interior Finish: | DRYWALL PAINT | Plumbing Fixture Cnt: | 8 | | Roof Slope: | 10" IN 12" | Roof Structure/Cover: | CJ CONCRETE TILE |
|
| | Type | Description | Class CD | Sub Class CD | Year Built | Area |
| | BAS | BASE/MAIN FLOOR | 4 | 0 | 2013 | 1418.0 |
| | OP4 | OPEN PORCH W/CEILING-ROOF | 4 | 0 | 2013 | 1005.1 |
| | UPS | UPPER STORY | 4 | 0 | 2013 | 990.0 |
Sketch
Property Image
Land
| 1 | 32 | AC (03.01-09.99) | 4.8200 | 0.00 | 0.00 | 0.00 | 1.00 | $380,000 | $0 |
Roll Value History
| 2026 | N/A | N/A | N/A | N/A | N/A |
| 2025 | $1,081,853 | $380,000 | $0 | $1,461,853 | $1,461,853 |
| 2024 | $1,094,599 | $350,000 | $0 | $1,444,599 | $1,444,599 |
| 2023 | $1,105,942 | $330,000 | $0 | $1,435,942 | $1,435,942 |
| 2022 | $1,011,933 | $290,000 | $0 | $1,301,933 | $1,301,933 |
| 2021 | $888,658 | $230,000 | $0 | $1,118,658 | $1,118,658 |
| 2020 | $806,303 | $190,000 | $0 | $996,303 | $996,303 |
| 2019 | $642,193 | $250,000 | $0 | $892,193 | $892,193 |
| 2018 | $644,065 | $210,000 | $0 | $854,065 | $854,065 |
| 2017 | $647,809 | $190,000 | $0 | $837,809 | $837,809 |
| 2016 | $655,302 | $135,000 | $0 | $790,302 | $790,302 |
| 2015 | $576,425 | $135,000 | $0 | $711,425 | $711,425 |
| 2014 | $415,245 | $130,140 | $0 | $545,385 | $545,385 |
| 2013 | $420,061 | $154,240 | $0 | $574,301 | $574,301 |
| 2012 | $360,881 | $154,240 | $0 | $515,121 | $515,121 |
| 2011 | $364,051 | $154,240 | $0 | $518,291 | $518,291 |
| 2010 | $375,375 | $154,240 | $0 | $529,615 | $529,615 |
| 2009 | $391,503 | $210,810 | $0 | $602,313 | $602,313 |
| 2008 | $346,461 | $207,260 | $0 | $553,721 | $553,721 |
| 2007 | $316,886 | $207,260 | $0 | $524,146 | $524,146 |
Deed and Sales History
| 1 | 10/18/2010 | DECREE | Divorce Decree/Legal Separation | HANSON, VICTOR E | HANSON, VICTOR E | | | $0.00 | 3063 | 4286405 |
| 2 | 05/01/1993 | DECREE | Divorce Decree/Legal Separation | HANSON, VICTOR E | HANSON, VICTOR E | | | $0.00 | 65365 | 0 |
| 3 | 06/01/1982 | EZ | Easement | SCRIVEN, TIMOTHY D | HANSON, VICTOR E | | | $0.00 | 22068 | 400000 |
| 4 | 10/01/1980 | EXECUTORD | Executor Deed | SHULTS, ANTHONY J | SCRIVEN, TIMOTHY D | | | $24,500.00 | 3478 | 375221 |
| 5 | 06/01/1980 | TRUSTEED | Trustee's Deed | Unknown | SHULTS, ANTHONY J | | | $100,000.00 | 2055 | 370129 |
Payout Agreement
| No payout information available.. |