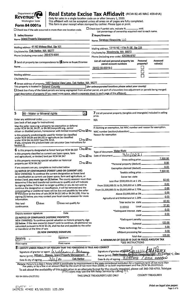
Property
Account |
| Property ID: | 510600 | Abbreviated Legal Description: | LOT 4 OF SPR 79/37-32909- 200-4550 AF# 370838 |
| Geographic ID: | R32909-165-4800 | Agent Code: | |
| Type: | Real | | |
| Tax Area: | 712 - APPRAISER-S Whid Schl Dist, outside Langley, improved, greater than 1 acre | Land Use Code | 11 |
| Open Space: | N | DFL | N |
| Historic Property: | N | Remodel Property: | N |
| Multi-Family Redevelopment: | N | | |
| Township: | 29 | Section: | 09 |
| Range: | R3 |
Location |
| Address: | 5481 DEER RUN RD LANGLEY, WA 98260 | Mapsco: | |
| Neighborhood: | Cycle 4 | Map ID: | 751 |
| Neighborhood CD: | 4 |
Owner |
| Name: | RIBERA, BRENDAN | Owner ID: | 294796 |
| Mailing Address: | JESSICA RIBERA 1238 NW 126TH ST SEATTLE, WA 98177-4343 | % Ownership: | 100.0000000000% |
| | | Exemptions: | |
Taxes and Assessment Details
Values
| (+) Improvement Homesite Value: | + | $0 | |
| (+) Improvement Non-Homesite Value: | + | $839,478 | |
| (+) Land Homesite Value: | + | $0 | |
| (+) Land Non-Homesite Value: | + | $380,000 | |
| (+) Curr Use (HS): | + | $0 | $0 |
| (+) Curr Use (NHS): | + | $0 | $0 |
| | | -------------------------- | |
| (=) Market Value: | = | $1,219,478 | |
| (–) Productivity Loss: | – | $0 | |
| | | -------------------------- | |
| (=) Subtotal: | = | $1,219,478 | |
| (+) Senior Appraised Value: | + | $0 | |
| (+) Non-Senior Appraised Value: | + | $1,219,478 | |
| | | -------------------------- | |
| (=) Total Appraised Value: | = | $1,219,478 | |
| (–) Senior Exemption Loss: | – | $0 | |
| (–) Exemption Loss: | – | $0 | |
| | | -------------------------- | |
| (=) Taxable Value: | = | $1,219,478 | |
Taxing Jurisdiction
| Owner: | RIBERA, BRENDAN | | |
| % Ownership: | 100.0000000000% | | |
| Total Value: | $1,219,478 | | |
| Tax Area: | 712 - APPRAISER-S Whid Schl Dist, outside Langley, improved, greater than 1 acre |
| CF | Conservation Futures | 0.0316035091 | $1,219,478 | $1,219,478 | $38.54 | | |
| FIRE3 | Fire & Rescue Dist #3 S Whidbey GEN | 1.2004855531 | $1,219,478 | $1,219,478 | $1,463.97 | | |
| HOBOND | Hospital BOND | 0.1910887512 | $1,219,478 | $1,219,478 | $233.03 | | |
| HOGEN | Hospital GEN | 0.3902502903 | $1,219,478 | $1,219,478 | $475.90 | | |
| CE | County Current Expense | 0.3708482477 | $1,219,478 | $1,219,478 | $452.24 | | |
| CR | County Roads | 0.4584763726 | $1,219,478 | $1,219,478 | $559.10 | | |
| ISLANDEMS | Hospital GEN (EMS) | 0.5000000000 | $1,219,478 | $1,219,478 | $609.74 | | |
| LIB | Library Sno-Isle GEN | 0.3153421757 | $1,219,478 | $1,219,478 | $384.55 | | |
| PORTWHID | Port of S Whidbey GEN | 0.1094540357 | $1,219,478 | $1,219,478 | $133.48 | | |
| SCH206BOND | School 206 BOND | 0.3161759235 | $1,219,478 | $1,219,478 | $385.57 | | |
| SCH206MO | School 206 Enrichment | 0.4547169547 | $1,219,478 | $1,219,478 | $554.52 | | |
| ST | State School | 1.3035497053 | $1,219,478 | $1,219,478 | $1,589.65 | | |
| ST2 | State School Part 2 | 0.8169543533 | $1,219,478 | $1,219,478 | $996.26 | | |
| SWHIDPRBD | P & R S Whidbey BOND | 0.0152817568 | $1,219,478 | $1,219,478 | $18.64 | | |
| SWHIDPRBD2 | P & R S Whidbey BOND2 | 0.0138911264 | $1,219,478 | $1,219,478 | $16.94 | | |
| SWHIDPRMT | P & R S Whidbey GEN | 0.2053334452 | $1,219,478 | $1,219,478 | $250.40 | | |
| | Total Tax Rate: | 6.6934522006 | | | | | |
| | | | | Taxes w/Current Exemptions: | $8,162.53 | | |
| | | | | Taxes w/o Exemptions: | $8,162.53 | | |
Improvement / Building
| Improvement #1: | RESIDENTIAL | State Code: | Y | 3276.8 sqft | Value: | $839,478 |
| Bathrooms: | 2.5 | Bedrooms: | 3 | | Ceiling: | TONGUE & GROOVE | Exterior Wall/Cover: | LOG RUSTIC HAND HEWN/OVERSIZED | | Floor Covering: | CERAMIC TILE/CPT 40-60 | Floor Structure: | WOOD W/SUBFLOOR | | Foundation: | CONCRETE | Heating: | RADIANT FLOOR | | Interior Finish: | DRYWALL PAINT | Plumbing Fixture Cnt: | 11 | | Roof Slope: | 8" IN 12" | Roof Structure/Cover: | BEAM ASPHALT |
|
| | Type | Description | Class CD | Sub Class CD | Year Built | Area |
| | BAS | BASE/MAIN FLOOR | 6 | 0 | 2000 | 1363.4 |
| | ATF | ATTIC FINISHED | 6 | 0 | 2000 | 240.0 |
| | OP1 | OPEN PORCH SLAB | 6 | 0 | 2000 | 93.2 |
| | OP1 | OPEN PORCH SLAB | 6 | 0 | 2000 | 340.0 |
| | OP3 | OPEN PORCH W/ROOF | 6 | 0 | 2000 | 173.0 |
| | BIG | BUILT IN GARAGE | 6 | 0 | 2000 | 576.0 |
| | OWP | OPEN WOOD PORCH W/STEPS | 6 | 0 | 2000 | 408.0 |
| | ENP | ENCLOSED PORCH | 6 | 0 | 2000 | 148.8 |
| | LOF | LOFT | 6 | 0 | 2000 | 550.0 |
| | DWN | DOWNSTAIRS LIVING AREA | 6 | 0 | 2000 | 1363.4 |
| | oPOL | POLE BARN | 6 | 0 | 2000 | 796.2 |
Sketch
Property Image
Land
| 1 | 32 | AC (03.01-09.99) | 4.8500 | 0.00 | 0.00 | 0.00 | 1.00 | $380,000 | $0 |
Roll Value History
| 2026 | N/A | N/A | N/A | N/A | N/A |
| 2025 | $839,478 | $380,000 | $0 | $1,219,478 | $1,219,478 |
| 2024 | $831,452 | $350,000 | $0 | $1,181,452 | $1,181,452 |
| 2023 | $840,762 | $330,000 | $0 | $1,170,762 | $1,170,762 |
| 2022 | $768,600 | $290,000 | $0 | $1,058,600 | $1,058,600 |
| 2021 | $675,497 | $230,000 | $0 | $905,497 | $905,497 |
| 2020 | $414,352 | $190,000 | $0 | $604,352 | $604,352 |
| 2019 | $334,862 | $250,000 | $0 | $584,862 | $584,862 |
| 2018 | $335,862 | $210,000 | $0 | $545,862 | $545,862 |
| 2017 | $336,860 | $190,000 | $0 | $526,860 | $526,860 |
| 2016 | $340,844 | $135,000 | $0 | $475,844 | $475,844 |
| 2015 | $344,832 | $135,000 | $0 | $479,832 | $479,832 |
| 2014 | $324,788 | $155,200 | $0 | $479,988 | $479,988 |
| 2013 | $328,392 | $155,200 | $0 | $483,592 | $483,592 |
| 2012 | $331,996 | $155,200 | $0 | $487,196 | $487,196 |
| 2011 | $335,598 | $155,200 | $0 | $490,798 | $490,798 |
| 2010 | $347,249 | $155,200 | $0 | $502,449 | $502,449 |
| 2009 | $361,834 | $213,400 | $0 | $575,234 | $575,234 |
| 2008 | $340,076 | $208,550 | $0 | $548,626 | $548,626 |
| 2007 | $340,723 | $208,550 | $0 | $549,273 | $549,273 |
Deed and Sales History
| 1 | 06/12/2020 | WD | Warranty Deed | O'BRIEN, TIMOTHY R | RIBERA, BRENDAN | | | $805,000.00 | 43411 | 4489127 |
| 2 | 09/27/2004 | WD | Warranty Deed | DEMARAY, KEVIN D | O'BRIEN, TIMOTHY R | | | $575,000.00 | 44551 | 4114106 |
| 3 | 08/18/1999 | WD | Warranty Deed | SHULTS, ANTHONY J | DEMARAY, KEVIN D | | | $66,500.00 | 93507 | 99020105 |
| 4 | 06/01/1980 | TRUSTEED | Trustee's Deed | Unknown | SHULTS, ANTHONY J | | | $100,000.00 | 2055 | 370129 |
Payout Agreement
| No payout information available.. |