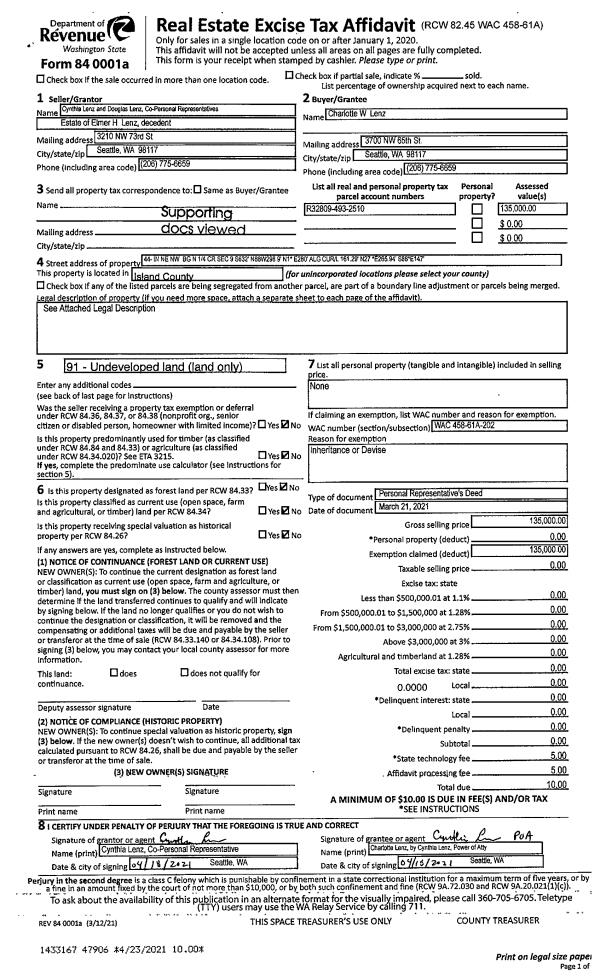
Property
Account |
| Property ID: | 511066 | Abbreviated Legal Description: | N/2 SW SE EX N360' & PT N/2 SE SE LY W OF RD EX N360' EX W144.2' FR 0813400 |
| Geographic ID: | R32935-085-3450 | Agent Code: | |
| Type: | Real | | |
| Tax Area: | 712 - APPRAISER-S Whid Schl Dist, outside Langley, improved, greater than 1 acre | Land Use Code | 11 |
| Open Space: | N | DFL | N |
| Historic Property: | N | Remodel Property: | N |
| Multi-Family Redevelopment: | N | | |
| Township: | 29 | Section: | 35 |
| Range: | R3 |
Location |
| Address: | 7126 HOLST RD CLINTON, WA 98236 | Mapsco: | |
| Neighborhood: | Cycle 4 | Map ID: | 843 |
| Neighborhood CD: | 4 |
Owner |
| Name: | VALENTINE, JESSIE L | Owner ID: | 189901 |
| Mailing Address: | 4221 SHOKOWAKAN RD CLINTON, WA 98236-8731 | % Ownership: | 100.0000000000% |
| | | Exemptions: | |
Taxes and Assessment Details
Values
| (+) Improvement Homesite Value: | + | $0 | |
| (+) Improvement Non-Homesite Value: | + | $70,960 | |
| (+) Land Homesite Value: | + | $0 | |
| (+) Land Non-Homesite Value: | + | $240,000 | |
| (+) Curr Use (HS): | + | $0 | $0 |
| (+) Curr Use (NHS): | + | $0 | $0 |
| | | -------------------------- | |
| (=) Market Value: | = | $310,960 | |
| (–) Productivity Loss: | – | $0 | |
| | | -------------------------- | |
| (=) Subtotal: | = | $310,960 | |
| (+) Senior Appraised Value: | + | $0 | |
| (+) Non-Senior Appraised Value: | + | $310,960 | |
| | | -------------------------- | |
| (=) Total Appraised Value: | = | $310,960 | |
| (–) Senior Exemption Loss: | – | $0 | |
| (–) Exemption Loss: | – | $0 | |
| | | -------------------------- | |
| (=) Taxable Value: | = | $310,960 | |
Taxing Jurisdiction
| Owner: | VALENTINE, JESSIE L | | |
| % Ownership: | 100.0000000000% | | |
| Total Value: | $310,960 | | |
| Tax Area: | 712 - APPRAISER-S Whid Schl Dist, outside Langley, improved, greater than 1 acre |
| CF | Conservation Futures | 0.0316035091 | $310,960 | $310,960 | $9.83 | | |
| FIRE3 | Fire & Rescue Dist #3 S Whidbey GEN | 1.2004855531 | $310,960 | $310,960 | $373.30 | | |
| HOBOND | Hospital BOND | 0.1910887512 | $310,960 | $310,960 | $59.42 | | |
| HOGEN | Hospital GEN | 0.3902502903 | $310,960 | $310,960 | $121.35 | | |
| CE | County Current Expense | 0.3708482477 | $310,960 | $310,960 | $115.32 | | |
| CR | County Roads | 0.4584763726 | $310,960 | $310,960 | $142.57 | | |
| ISLANDEMS | Hospital GEN (EMS) | 0.5000000000 | $310,960 | $310,960 | $155.48 | | |
| LIB | Library Sno-Isle GEN | 0.3153421757 | $310,960 | $310,960 | $98.06 | | |
| PORTWHID | Port of S Whidbey GEN | 0.1094540357 | $310,960 | $310,960 | $34.04 | | |
| SCH206BOND | School 206 BOND | 0.3161759235 | $310,960 | $310,960 | $98.32 | | |
| SCH206MO | School 206 Enrichment | 0.4547169547 | $310,960 | $310,960 | $141.40 | | |
| ST | State School | 1.3035497053 | $310,960 | $310,960 | $405.35 | | |
| ST2 | State School Part 2 | 0.8169543533 | $310,960 | $310,960 | $254.04 | | |
| SWHIDPRBD | P & R S Whidbey BOND | 0.0152817568 | $310,960 | $310,960 | $4.75 | | |
| SWHIDPRBD2 | P & R S Whidbey BOND2 | 0.0138911264 | $310,960 | $310,960 | $4.32 | | |
| SWHIDPRMT | P & R S Whidbey GEN | 0.2053334452 | $310,960 | $310,960 | $63.85 | | |
| | Total Tax Rate: | 6.6934522006 | | | | | |
| | | | | Taxes w/Current Exemptions: | $2,081.40 | | |
| | | | | Taxes w/o Exemptions: | $2,081.40 | | |
Improvement / Building
| Improvement #1: | RESIDENTIAL | State Code: | Y | 0.0 sqft | Value: | $70,960 |
| | Type | Description | Class CD | Sub Class CD | Year Built | Area |
| | UTY | STORAGE/UTILITY | 1 | 0 | 1900 | 2160.0 |
| | CPD | OPEN CARPORT DIRT FLOOR | 1 | 0 | 1900 | 1296.0 |
| | oSEP | SEPTIC | 1 | 0 | 1900 | 0.0 |
Sketch
| No sketches available for this property. |
Property Image
Land
| 1 | 32 | AC (03.01-09.99) | 9.4200 | 410335.20 | 0.00 | 0.00 | 1.00 | $240,000 | $0 |
Roll Value History
| 2026 | N/A | N/A | N/A | N/A | N/A |
| 2025 | $70,960 | $240,000 | $0 | $310,960 | $310,960 |
| 2024 | $70,960 | $220,000 | $0 | $290,960 | $290,960 |
| 2023 | $70,960 | $200,000 | $0 | $270,960 | $270,960 |
| 2022 | $70,960 | $170,000 | $0 | $240,960 | $240,960 |
| 2021 | $70,960 | $150,000 | $0 | $220,960 | $220,960 |
| 2020 | $46,872 | $150,000 | $0 | $196,872 | $196,872 |
| 2019 | $46,872 | $135,000 | $0 | $181,872 | $181,872 |
| 2018 | $46,872 | $230,000 | $0 | $276,872 | $276,872 |
| 2017 | $46,872 | $165,000 | $0 | $211,872 | $211,872 |
| 2016 | $46,872 | $165,000 | $0 | $211,872 | $211,872 |
| 2015 | $46,872 | $150,000 | $0 | $196,872 | $196,872 |
| 2014 | $48,522 | $155,000 | $0 | $203,522 | $203,522 |
| 2013 | $48,522 | $141,300 | $0 | $189,822 | $189,822 |
| 2012 | $48,522 | $141,300 | $0 | $189,822 | $189,822 |
| 2011 | $48,522 | $141,300 | $0 | $189,822 | $189,822 |
| 2010 | $48,522 | $141,300 | $0 | $189,822 | $189,822 |
| 2009 | $51,347 | $188,400 | $0 | $239,747 | $239,747 |
| 2008 | $53,603 | $191,226 | $0 | $244,829 | $244,829 |
| 2007 | $56,013 | $191,226 | $0 | $247,239 | $247,239 |
Deed and Sales History
| 1 | 09/16/2013 | WD | Warranty Deed | FRIESEN, JACOB R | VALENTINE, JESSIE L | | | $220,000.00 | 12815 | 4348254 |
| 2 | 07/28/2011 | QCD | Quit Claim Deed | FRIESEN JR, HARVEY K | FRIESEN, JACOB R | | | $0.00 | 5079 | 4298732 |
| 3 | 01/01/1900 | DECREE | Divorce Decree/Legal Separation | FRIESEN JR, HARVEY K | FRIESEN JR, HARVEY K | | | $0.00 | 81204 | 98006526 |
| 4 | 01/01/1900 | OTHER | Other - Misc. Documents | FRIESEN, HARVEY K | FRIESEN JR, HARVEY K | | | $0.00 | 0 | 0 |
| 5 | 01/01/1900 | OTHER | Other - Misc. Documents | Unknown | FRIESEN, HARVEY K | | | $0.00 | 0 | 0 |
Payout Agreement
| No payout information available.. |