Property
Account |
| Property ID: | 511556 | Abbreviated Legal Description: | LOT 10 BLK 4 SURVEY V3 SUR P89 TGW EZ CAMANO SUNRISE #2 SPLIT LOTS MISC#88321 |
| Geographic ID: | R23112-050-3750 | Agent Code: | |
| Type: | Real | | |
| Tax Area: | 512 - APPRAISER-Stan/Cam Schl Dist, improved, greater than 1 acre | Land Use Code | 11 |
| Open Space: | N | DFL | N |
| Historic Property: | N | Remodel Property: | N |
| Multi-Family Redevelopment: | N | | |
| Township: | 31 | Section: | 12 |
| Range: | R2 |
Location |
| Address: | 758 MICHAEL WAY CAMANO ISLAND, WA 98282 | Mapsco: | |
| Neighborhood: | Cycle 5 | Map ID: | 474 |
| Neighborhood CD: | 5 |
Owner |
| Name: | MCGUIRE, CATHERINE | Owner ID: | 297692 |
| Mailing Address: | 758 MICHAEL WAY CAMANO ISLAND, WA 98282 | % Ownership: | 100.0000000000% |
| | | Exemptions: | |
Taxes and Assessment Details
Values
| (+) Improvement Homesite Value: | + | $0 | |
| (+) Improvement Non-Homesite Value: | + | $675,445 | |
| (+) Land Homesite Value: | + | $0 | |
| (+) Land Non-Homesite Value: | + | $330,000 | |
| (+) Curr Use (HS): | + | $0 | $0 |
| (+) Curr Use (NHS): | + | $0 | $0 |
| | | -------------------------- | |
| (=) Market Value: | = | $1,005,445 | |
| (–) Productivity Loss: | – | $0 | |
| | | -------------------------- | |
| (=) Subtotal: | = | $1,005,445 | |
| (+) Senior Appraised Value: | + | $0 | |
| (+) Non-Senior Appraised Value: | + | $1,005,445 | |
| | | -------------------------- | |
| (=) Total Appraised Value: | = | $1,005,445 | |
| (–) Senior Exemption Loss: | – | $0 | |
| (–) Exemption Loss: | – | $0 | |
| | | -------------------------- | |
| (=) Taxable Value: | = | $1,005,445 | |
Taxing Jurisdiction
| Owner: | MCGUIRE, CATHERINE | | |
| % Ownership: | 100.0000000000% | | |
| Total Value: | $1,005,445 | | |
| Tax Area: | 512 - APPRAISER-Stan/Cam Schl Dist, improved, greater than 1 acre |
| CF | Conservation Futures | 0.0316035091 | $1,005,445 | $1,005,445 | $31.78 | | |
| EMS1 | Fire & Rescue Dist #1 Camano GEN (EMS) | 0.3677864386 | $1,005,445 | $1,005,445 | $369.79 | | |
| FIRE1 | Fire & Rescue Dist #1 Camano GEN | 1.2502910536 | $1,005,445 | $1,005,445 | $1,257.10 | | |
| FIRE1BOND | Fire & Rescue Dist #1 Camano BOND | 0.1570001679 | $1,005,445 | $1,005,445 | $157.86 | | |
| CE | County Current Expense | 0.3708482477 | $1,005,445 | $1,005,445 | $372.87 | | |
| CR | County Roads | 0.4584763726 | $1,005,445 | $1,005,445 | $460.97 | | |
| LCIB | Library Sno-Isle BOND (Camano Island) | 0.0396325772 | $1,005,445 | $1,005,445 | $39.85 | | |
| LIB | Library Sno-Isle GEN | 0.3153421757 | $1,005,445 | $1,005,445 | $317.06 | | |
| SCH205_401 | School 205-401 Enrichment | 1.2698420524 | $1,005,445 | $1,005,445 | $1,276.76 | | |
| SCH205BOND | School 205-401 BOND | 0.9396497583 | $1,005,445 | $1,005,445 | $944.77 | | |
| ST | State School | 1.3035497053 | $1,005,445 | $1,005,445 | $1,310.65 | | |
| ST2 | State School Part 2 | 0.8169543533 | $1,005,445 | $1,005,445 | $821.40 | | |
| | Total Tax Rate: | 7.3209764117 | | | | | |
| | | | | Taxes w/Current Exemptions: | $7,360.86 | | |
| | | | | Taxes w/o Exemptions: | $7,360.86 | | |
Improvement / Building
| Improvement #1: | RESIDENTIAL | State Code: | Y | 2729.1 sqft | Value: | $675,445 |
| Bathrooms: | 2 | Bedrooms: | 4 | | Ceiling: | DRYWALL PAINTED | Cooling: | HEAT PUMP/CONV/V | | Exterior Wall/Cover: | WOOD SIDING | Floor Covering: | CARPET/VINYL 80-20 | | Floor Structure: | WOOD W/SUBFLOOR | Foundation: | CONCRETE | | Interior Finish: | DRYWALL PAINT | Plumbing Fixture Cnt: | 14 | | Roof Slope: | 5" IN 12" | Roof Structure/Cover: | CJ CONCRETE TILE |
|
| | Type | Description | Class CD | Sub Class CD | Year Built | Area |
| | BAS | BASE/MAIN FLOOR | 4 | 0 | 1984 | 2729.1 |
| | UB8 | BASEMENT UNFINISHED 8" | 4 | 0 | 1984 | 1180.0 |
| | OP4 | OPEN PORCH W/CEILING-ROOF | 4 | 0 | 1984 | 54.5 |
| | OCP | OPEN CARPORT | 4 | 0 | 1984 | 580.0 |
| | OWP | OPEN WOOD PORCH W/STEPS | 4 | 0 | 1984 | 175.0 |
| | OWR | OPEN WOOD PORCH W/STEPS/ROOF | 4 | 0 | 1984 | 313.6 |
| | OWR | OPEN WOOD PORCH W/STEPS/ROOF | 4 | 0 | 1984 | 104.9 |
| | ENP | ENCLOSED PORCH | 4 | 0 | 1984 | 149.0 |
| | OWR | OPEN WOOD PORCH W/STEPS/ROOF | 4 | 0 | 1984 | 32.0 |
| | BIG | BUILT IN GARAGE | 4 | 0 | 1984 | 1152.0 |
| | UTY | STORAGE/UTILITY | 4 | 0 | 1984 | 1152.0 |
Sketch
Property Image
Land
| 1 | 32 | AC (03.01-09.99) | 5.6100 | 244371.60 | 0.00 | 0.00 | 1.00 | $330,000 | $0 |
Roll Value History
| 2026 | N/A | N/A | N/A | N/A | N/A |
| 2025 | $675,445 | $330,000 | $0 | $1,005,445 | $1,005,445 |
| 2024 | $683,968 | $300,000 | $0 | $983,968 | $983,968 |
| 2023 | $692,491 | $290,000 | $0 | $982,491 | $982,491 |
| 2022 | $634,790 | $290,000 | $0 | $924,790 | $924,790 |
| 2021 | $529,444 | $220,000 | $0 | $749,444 | $749,444 |
| 2020 | $517,234 | $200,000 | $0 | $717,234 | $717,234 |
| 2019 | $396,934 | $300,000 | $0 | $696,934 | $696,934 |
| 2018 | $398,185 | $220,000 | $0 | $618,185 | $618,185 |
| 2017 | $400,393 | $200,000 | $0 | $600,393 | $600,393 |
| 2016 | $397,981 | $180,000 | $0 | $577,981 | $577,981 |
| 2015 | $341,246 | $156,800 | $0 | $498,046 | $498,046 |
| 2014 | $345,301 | $156,800 | $0 | $502,101 | $502,101 |
| 2013 | $349,357 | $156,800 | $0 | $506,157 | $506,157 |
| 2012 | $353,414 | $156,800 | $0 | $510,214 | $510,214 |
| 2011 | $357,472 | $196,000 | $0 | $553,472 | $553,472 |
| 2010 | $371,735 | $196,000 | $0 | $567,735 | $567,735 |
| 2009 | $379,089 | $246,400 | $0 | $625,489 | $625,489 |
| 2008 | $368,628 | $257,600 | $0 | $626,228 | $626,228 |
| 2007 | $374,686 | $257,600 | $0 | $632,286 | $632,286 |
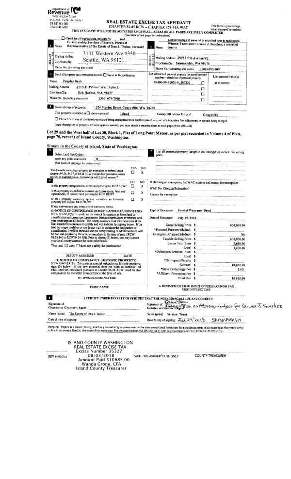
Deed and Sales History
| 1 | 01/07/2021 | WD | Warranty Deed | LEE, TSUNETO | MCGUIRE, CATHERINE | | | $725,000.00 | 46525 | 4507764 |
| 2 | 09/23/2020 | QCD | Quit Claim Deed | LEE, TSUNETO | LEE, TSUNETO | | | $0.00 | 46114 | 4505163 |
| 3 | 08/03/2018 | TRUSTEED | Trustee's Deed | LEE TTEE, REBECCA | LEE, TSUNETO | | | | 36036 | 4452301 |
| 4 | 08/03/2018 | PRD | Personal Representatives Deed | LEE, REBECCA | LEE, REBECCA | | | $0.00 | 35570 | 4450373 |
| 5 | 03/05/2004 | QCD | Quit Claim Deed | LEE, MICHIKO | LEE, REBECCA | | | $0.00 | 40864 | 4093492 |
| 6 | 06/01/1985 | QCD | Quit Claim Deed | LEE, JOSEPH D | LEE, MICHIKO | | | $0.00 | 51791 | 85007010 |
| 7 | 01/01/1900 | OTHER | Other - Misc. Documents | Unknown | LEE, JOSEPH D | | | $0.00 | 0 | 0 |
Payout Agreement
| No payout information available.. |