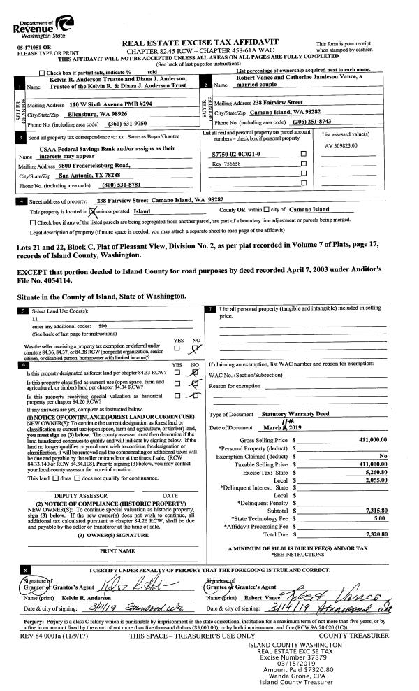
Property
Account |
| Property ID: | 511805 | Abbreviated Legal Description: | HIGHLAND MEADOWS #1 S218' OF TR 33 FR 00033-0 SP 79/220 LOT B |
| Geographic ID: | S7120-00-00033-2 | Agent Code: | |
| Type: | Real | | |
| Tax Area: | 712 - APPRAISER-S Whid Schl Dist, outside Langley, improved, greater than 1 acre | Land Use Code | 11 |
| Open Space: | N | DFL | N |
| Historic Property: | N | Remodel Property: | N |
| Multi-Family Redevelopment: | N | | |
| Township: | | Section: | |
| Range: | |
Location |
| Address: | 7156 HEGGENES RD CLINTON, WA 98236 | Mapsco: | |
| Neighborhood: | Cycle 4 | Map ID: | 846 |
| Neighborhood CD: | 4 |
Owner |
| Name: | NOBLE, DAWN M | Owner ID: | 306674 |
| Mailing Address: | DAVID E. NOBLE 6051 COLES RD LANGLEY, WA 98260 | % Ownership: | 100.0000000000% |
| | | Exemptions: | |
Taxes and Assessment Details
Values
| (+) Improvement Homesite Value: | + | $0 | |
| (+) Improvement Non-Homesite Value: | + | $586,181 | |
| (+) Land Homesite Value: | + | $0 | |
| (+) Land Non-Homesite Value: | + | $280,000 | |
| (+) Curr Use (HS): | + | $0 | $0 |
| (+) Curr Use (NHS): | + | $0 | $0 |
| | | -------------------------- | |
| (=) Market Value: | = | $866,181 | |
| (–) Productivity Loss: | – | $0 | |
| | | -------------------------- | |
| (=) Subtotal: | = | $866,181 | |
| (+) Senior Appraised Value: | + | $0 | |
| (+) Non-Senior Appraised Value: | + | $866,181 | |
| | | -------------------------- | |
| (=) Total Appraised Value: | = | $866,181 | |
| (–) Senior Exemption Loss: | – | $0 | |
| (–) Exemption Loss: | – | $0 | |
| | | -------------------------- | |
| (=) Taxable Value: | = | $866,181 | |
Taxing Jurisdiction
| Owner: | NOBLE, DAWN M | | |
| % Ownership: | 100.0000000000% | | |
| Total Value: | $866,181 | | |
| Tax Area: | 712 - APPRAISER-S Whid Schl Dist, outside Langley, improved, greater than 1 acre |
| CF | Conservation Futures | 0.0316035091 | $866,181 | $866,181 | $27.37 | | |
| FIRE3 | Fire & Rescue Dist #3 S Whidbey GEN | 1.2004855531 | $866,181 | $866,181 | $1,039.84 | | |
| HOBOND | Hospital BOND | 0.1910887512 | $866,181 | $866,181 | $165.52 | | |
| HOGEN | Hospital GEN | 0.3902502903 | $866,181 | $866,181 | $338.03 | | |
| CE | County Current Expense | 0.3708482477 | $866,181 | $866,181 | $321.22 | | |
| CR | County Roads | 0.4584763726 | $866,181 | $866,181 | $397.12 | | |
| ISLANDEMS | Hospital GEN (EMS) | 0.5000000000 | $866,181 | $866,181 | $433.09 | | |
| LIB | Library Sno-Isle GEN | 0.3153421757 | $866,181 | $866,181 | $273.14 | | |
| PORTWHID | Port of S Whidbey GEN | 0.1094540357 | $866,181 | $866,181 | $94.81 | | |
| SCH206BOND | School 206 BOND | 0.3161759235 | $866,181 | $866,181 | $273.87 | | |
| SCH206MO | School 206 Enrichment | 0.4547169547 | $866,181 | $866,181 | $393.87 | | |
| ST | State School | 1.3035497053 | $866,181 | $866,181 | $1,129.11 | | |
| ST2 | State School Part 2 | 0.8169543533 | $866,181 | $866,181 | $707.63 | | |
| SWHIDPRBD | P & R S Whidbey BOND | 0.0152817568 | $866,181 | $866,181 | $13.24 | | |
| SWHIDPRBD2 | P & R S Whidbey BOND2 | 0.0138911264 | $866,181 | $866,181 | $12.03 | | |
| SWHIDPRMT | P & R S Whidbey GEN | 0.2053334452 | $866,181 | $866,181 | $177.86 | | |
| | Total Tax Rate: | 6.6934522006 | | | | | |
| | | | | Taxes w/Current Exemptions: | $5,797.75 | | |
| | | | | Taxes w/o Exemptions: | $5,797.75 | | |
Improvement / Building
| Improvement #1: | RESIDENTIAL | State Code: | Y | 2128.0 sqft | Value: | $586,181 |
| Bathrooms: | 3 | Bedrooms: | 3 | | Ceiling: | DRYWALL PAINTED | Exterior Wall/Cover: | VINYL | | Floor Covering: | HARDWOOD/CARP 80-20 | Floor Structure: | WOOD W/SUBFLOOR | | Foundation: | CONCRETE | Heating: | FHA OIL | | Interior Finish: | DRYWALL PAINT | Plumbing Fixture Cnt: | 13 | | Roof Slope: | 8" IN 12" | Roof Structure/Cover: | STEEL TERNE |
|
| | Type | Description | Class CD | Sub Class CD | Year Built | Area |
| | BAS | BASE/MAIN FLOOR | 4 | 0 | 1938 | 1408.0 |
| | UB6 | BASEMENT UNFINISHED 6" | 4 | 0 | 1938 | 720.0 |
| | UPS | UPPER STORY | 4 | 0 | 1938 | 720.0 |
| | OWR | OPEN WOOD PORCH W/STEPS/ROOF | 4 | 0 | 1938 | 80.0 |
| | OWC | OPEN WOOD PORCH W/STEPS/ROOF/C | 4 | 0 | 1938 | 384.0 |
| | ENP | ENCLOSED PORCH | 4 | 0 | 1938 | 154.0 |
| | UTY | STORAGE/UTILITY | 4 | 0 | 1938 | 1620.0 |
| | CPD | OPEN CARPORT DIRT FLOOR | 4 | 0 | 1938 | 650.0 |
| | OP2 | OPEN PORCH W/STEPS | 4 | 0 | 1938 | 1115.0 |
| | OWP | OPEN WOOD PORCH W/STEPS | 4 | 0 | 1938 | 50.0 |
Sketch
| No sketches available for this property. |
Property Image
Land
| 1 | 17 | AC (01.01-02.00) | 1.4900 | 64904.40 | 0.00 | 0.00 | 1.00 | $280,000 | $0 |
Roll Value History
| 2026 | N/A | N/A | N/A | N/A | N/A |
| 2025 | $586,181 | $280,000 | $0 | $866,181 | $866,181 |
| 2024 | $593,036 | $270,000 | $0 | $863,036 | $863,036 |
| 2023 | $599,888 | $260,000 | $0 | $859,888 | $859,888 |
| 2022 | $501,881 | $250,000 | $0 | $751,881 | $751,881 |
| 2021 | $442,225 | $175,000 | $0 | $617,225 | $617,225 |
| 2020 | $424,468 | $165,000 | $0 | $589,468 | $589,468 |
| 2019 | $316,478 | $200,000 | $0 | $516,478 | $516,478 |
| 2018 | $227,411 | $170,000 | $0 | $397,411 | $397,411 |
| 2017 | $228,791 | $150,000 | $0 | $378,791 | $378,791 |
| 2016 | $231,549 | $130,000 | $0 | $361,549 | $361,549 |
| 2015 | $234,306 | $100,000 | $0 | $334,306 | $334,306 |
| 2014 | $163,581 | $100,000 | $0 | $263,581 | $263,581 |
| 2013 | $166,350 | $85,000 | $0 | $251,350 | $251,350 |
| 2012 | $169,118 | $69,700 | $0 | $238,818 | $238,818 |
| 2011 | $171,888 | $82,000 | $0 | $253,888 | $253,888 |
| 2010 | $189,692 | $82,000 | $0 | $271,692 | $271,692 |
| 2009 | $197,566 | $155,000 | $0 | $352,566 | $352,566 |
| 2008 | $191,982 | $110,000 | $0 | $301,982 | $301,982 |
| 2007 | $194,781 | $110,000 | $0 | $304,781 | $304,781 |
Deed and Sales History
| 1 | 11/08/2022 | WD | Warranty Deed | NAPOLI, MICHAEL | NOBLE, DAWN M | | | $885,000.00 | 55156 | 4553845 |
| 2 | 05/29/2019 | WD | Warranty Deed | SMITH, MARK A | NAPOLI, MICHAEL | | | $539,000.00 | 38781 | 4464542 |
| 3 | 04/01/1990 | WD | Warranty Deed | BARNES, LERLENE | SMITH, MARK A | | | $151,900.00 | 2543 | 90008181 |
| 4 | 08/01/1989 | DECREE | Divorce Decree/Legal Separation | BARNES, DONALD A | BARNES, LERLENE | | | $0.00 | 94269 | 89014003 |
| 5 | 10/01/1986 | WD | Warranty Deed | STRIBLING, TOM | BARNES, DONALD A | | | $0.00 | 62904 | 86013124 |
| 6 | 07/01/1985 | DECREE | Divorce Decree/Legal Separation | STRIBLING, TOM | STRIBLING, TOM | | | $0.00 | 51838 | 0 |
| 7 | 07/01/1985 | DECREE | Divorce Decree/Legal Separation | STRIBLING, TOM | STRIBLING, TOM | | | $0.00 | 51912 | 85007439 |
| 8 | 09/01/1978 | OTHER | Other - Misc. Documents | Unknown | STRIBLING, TOM | | | $79,500.00 | 84157 | 338784 |
Payout Agreement
| No payout information available.. |