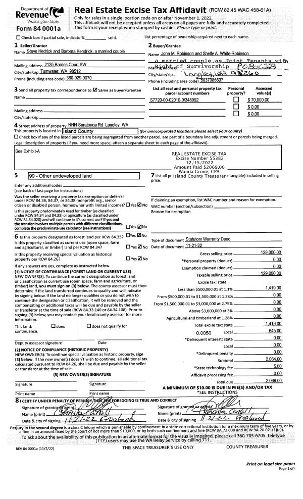
Property
Account |
| Property ID: | 512305 | Abbreviated Legal Description: | 1976 FLEETWOOD 14X60 VIN# S2027 TPO @74513 |
| Geographic ID: | M9170000000A0 | Agent Code: | |
| Type: | Mobile Home | | |
| Tax Area: | 110 - APPRAISER-OH Schl Dist, outside OH, improved & 1 acre or less | Land Use Code | 11 |
| Open Space: | N | DFL | N |
| Historic Property: | N | Remodel Property: | N |
| Multi-Family Redevelopment: | N | | |
| Township: | | Section: | |
| Range: | |
Location |
| Address: | 2920 HELLER RD UNIT A OAK HARBOR, WA 98277 | Mapsco: | |
| Neighborhood: | Cycle 6 | Map ID: | |
| Neighborhood CD: | 6 |
Owner |
| Name: | ROBINSON, RICHARD | Owner ID: | 178860 |
| Mailing Address: | PO BOX 1917 OAK HARBOR, WA 98277-1917 | % Ownership: | 100.0000000000% |
| | | Exemptions: | SNR/DSBL |
Taxes and Assessment Details
Values
| (+) Improvement Homesite Value: | + | $11,378 | |
| (+) Improvement Non-Homesite Value: | + | $0 | |
| (+) Land Homesite Value: | + | $0 | |
| (+) Land Non-Homesite Value: | + | $0 | |
| (+) Curr Use (HS): | + | $0 | $0 |
| (+) Curr Use (NHS): | + | $0 | $0 |
| | | -------------------------- | |
| (=) Market Value: | = | $11,378 | |
| (–) Productivity Loss: | – | $0 | |
| | | -------------------------- | |
| (=) Subtotal: | = | $11,378 | |
| (+) Senior Appraised Value: | + | $4,049 | |
| (+) Non-Senior Appraised Value: | + | $0 | |
| | | -------------------------- | |
| (=) Total Appraised Value: | = | $4,049 | |
| (–) Senior Exemption Loss: | – | $4,049 | |
| (–) Exemption Loss: | – | $0 | |
| | | -------------------------- | |
| (=) Taxable Value: | = | $0 | |
Taxing Jurisdiction
| Owner: | ROBINSON, RICHARD | | |
| % Ownership: | 100.0000000000% | | |
| Total Value: | $11,378 | | |
| Tax Area: | 110 - APPRAISER-OH Schl Dist, outside OH, improved & 1 acre or less |
| CF | Conservation Futures | 0.0316035091 | $11,378 | $0 | $0.00 | | |
| CEM1 | Cemetery #1 | 0.0040320932 | $11,378 | $0 | $0.00 | | |
| FIRE2 | Fire & Rescue Dist #2 N Whidbey GEN | 0.5475949600 | $11,378 | $0 | $0.00 | | |
| HOBOND | Hospital BOND | 0.0000000000 | $11,378 | $0 | $0.00 | | |
| HOGEN | Hospital GEN | 0.3902502903 | $11,378 | $0 | $0.00 | | |
| CE | County Current Expense | 0.3708482477 | $11,378 | $0 | $0.00 | | |
| CR | County Roads | 0.4584763726 | $11,378 | $0 | $0.00 | | |
| ISLANDEMS | Hospital GEN (EMS) | 0.5000000000 | $11,378 | $0 | $0.00 | | |
| LIB | Library Sno-Isle GEN | 0.3153421757 | $11,378 | $0 | $0.00 | | |
| NWHIDPRMT | P & R N Whidbey GEN | 0.2004466701 | $11,378 | $0 | $0.00 | | |
| SCH201MO | School 201 Enrichment | 0.0000000000 | $11,378 | $0 | $0.00 | | |
| ST | State School | 1.3035497053 | $11,378 | $0 | $0.00 | | |
| ST2 | State School Part 2 | 0.0000000000 | $11,378 | $0 | $0.00 | | |
| | Total Tax Rate: | 4.1221440240 | | | | | |
| | | | | Taxes w/Current Exemptions: | $0.00 | | |
| | | | | Taxes w/o Exemptions: | $79.50 | | |
Improvement / Building
| Improvement #1: | MANUFACTURED HOME | State Code: | Y | 840.0 sqft | Value: | $11,378 |
| Bathrooms: | 0 | Bedrooms: | 0 | | Ceiling: | PLASTER PAINTED | Cooling: | EVAP NO DUCT | | Exterior Wall/Cover: | VINYL | Floor Covering: | CARPET 100% | | Floor Structure: | SLAB ON GRADE | Foundation: | SLAB | | Heating: | FHA ELECTRIC | Interior Finish: | PLASTER | | Plumbing Fixture Cnt: | 1 | Roof Slope: | FLAT | | Roof Structure/Cover: | CJ ALUMINIUM HEAVY |   |   |
|
| | Type | Description | Class CD | Sub Class CD | Year Built | Area |
| | BAS | BASE/MAIN FLOOR | 2 | 0 | 1976 | 840.0 |
| | ENP | ENCLOSED PORCH | 2 | 0 | 1976 | 80.0 |
Sketch
Property Image
Land
No land segments exist for this property.
Roll Value History
| 2026 | N/A | N/A | N/A | N/A | N/A |
| 2025 | $11,378 | $0 | $0 | $11,378 | $0 |
| 2024 | $11,757 | $0 | $0 | $11,757 | $0 |
| 2023 | $10,882 | $0 | $0 | $10,882 | $0 |
| 2022 | $7,125 | $0 | $0 | $7,125 | $0 |
| 2021 | $6,693 | $0 | $0 | $6,693 | $0 |
| 2020 | $6,738 | $0 | $0 | $6,738 | $0 |
| 2019 | $5,688 | $0 | $0 | $5,688 | $0 |
| 2018 | $5,877 | $0 | $0 | $5,877 | $0 |
| 2017 | $6,256 | $0 | $0 | $6,256 | $0 |
| 2016 | $4,049 | $0 | $0 | $4,049 | $0 |
| 2015 | $4,338 | $0 | $0 | $4,338 | $4,338 |
| 2014 | $4,483 | $0 | $0 | $4,483 | $4,483 |
| 2013 | $4,772 | $0 | $0 | $4,772 | $4,772 |
| 2012 | $5,061 | $0 | $0 | $5,061 | $5,061 |
| 2011 | $5,495 | $0 | $0 | $5,495 | $5,495 |
| 2010 | $9,170 | $0 | $0 | $9,170 | $9,170 |
| 2009 | $9,366 | $0 | $0 | $9,366 | $9,366 |
| 2008 | $9,386 | $0 | $0 | $9,386 | $9,386 |
| 2007 | $9,521 | $0 | $0 | $9,521 | $9,521 |
Deed and Sales History
| 1 | 04/21/2003 | WD | Warranty Deed | DUBINSKY, JEAN | ROBINSON, RICHARD | | | $4,500.00 | 30223 | 111111 |
| 2 | 11/09/1998 | OTHER | Other - Misc. Documents | GUERERO, LOIS | DUBINSKY, JEAN | | | $12,000.00 | 84478 | 0 |
| 3 | 07/01/1997 | REC | Real Estate Contract | GUERERO, LOIS & | GUERERO, LOIS | | | $0.00 | 72408 | 0 |
| 4 | 07/01/1990 | OTHER | Other - Misc. Documents | GUERERO, LOIS | GUERERO, LOIS & | | | $0.00 | 4088 | 0 |
| 5 | 06/01/1990 | OTHER | Other - Misc. Documents | SCHOEN, KENNETH M | GUERERO, LOIS | | | $8,000.00 | 3542 | 0 |
| 6 | 06/01/1987 | OTHER | Other - Misc. Documents | KLEIVEN, CARL T | SCHOEN, KENNETH M | | | $8,000.00 | 71696 | 0 |
| 7 | 06/01/1982 | OTHER | Other - Misc. Documents | MASTERSON, DARRYLJ/DEBRA J | KLEIVEN, CARL T | | | $10,000.00 | 21310 | 0 |
| 8 | 12/01/1980 | OTHER | Other - Misc. Documents | GRIM, NORMAN M | MASTERSON, DARRYLJ/DEBRA J | | | $8,683.00 | 2498 | 0 |
| 9 | 07/01/1980 | OTHER | Other - Misc. Documents | MURRAY, RICHARD, M | GRIM, NORMAN M | | | $8,683.00 | 2498 | 0 |
| 10 | 01/01/1900 | OTHER | Other - Misc. Documents | Unknown | MURRAY, RICHARD, M | | | $0.00 | 0 | 0 |
Payout Agreement
| No payout information available.. |