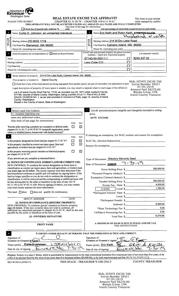
Property
Account |
| Property ID: | 51286 | Abbreviated Legal Description: | 4.4400 Acres ins Section 11s Township 29s Range R2s LOT A BLA 235-19 AF# 4469104;s |
| Geographic ID: | R22911-265-4080 | Agent Code: | |
| Type: | Real | | |
| Tax Area: | 719 - APPRAISER-S Whid Schl Dist, outside Langley, vacant & 50 acres or less | Land Use Code | 91 |
| Open Space: | N | DFL | N |
| Historic Property: | N | Remodel Property: | N |
| Multi-Family Redevelopment: | N | | |
| Township: | 29 | Section: | 11 |
| Range: | R2 |
Location |
| Address: | 1881 NEWMAN RD FREELAND, WA 98249 | Mapsco: | |
| Neighborhood: | Cycle 3 | Map ID: | 316 |
| Neighborhood CD: | 3 |
Owner |
| Name: | CEDAR ROW, LLC | Owner ID: | 277717 |
| Mailing Address: | PO BOX 339 FREELAND, WA 98249 | % Ownership: | 100.0000000000% |
| | | Exemptions: | |
Taxes and Assessment Details
Values
| (+) Improvement Homesite Value: | + | $0 | |
| (+) Improvement Non-Homesite Value: | + | $0 | |
| (+) Land Homesite Value: | + | $0 | |
| (+) Land Non-Homesite Value: | + | $171,734 | |
| (+) Curr Use (HS): | + | $0 | $0 |
| (+) Curr Use (NHS): | + | $0 | $0 |
| | | -------------------------- | |
| (=) Market Value: | = | $171,734 | |
| (–) Productivity Loss: | – | $0 | |
| | | -------------------------- | |
| (=) Subtotal: | = | $171,734 | |
| (+) Senior Appraised Value: | + | $0 | |
| (+) Non-Senior Appraised Value: | + | $171,734 | |
| | | -------------------------- | |
| (=) Total Appraised Value: | = | $171,734 | |
| (–) Senior Exemption Loss: | – | $0 | |
| (–) Exemption Loss: | – | $0 | |
| | | -------------------------- | |
| (=) Taxable Value: | = | $171,734 | |
Taxing Jurisdiction
| Owner: | CEDAR ROW, LLC | | |
| % Ownership: | 100.0000000000% | | |
| Total Value: | $171,734 | | |
| Tax Area: | 719 - APPRAISER-S Whid Schl Dist, outside Langley, vacant & 50 acres or less |
| CF | Conservation Futures | 0.0316035091 | $171,734 | $171,734 | $5.43 | | |
| HOBOND | Hospital BOND | 0.1910887512 | $171,734 | $171,734 | $32.82 | | |
| HOGEN | Hospital GEN | 0.3902502903 | $171,734 | $171,734 | $67.02 | | |
| CE | County Current Expense | 0.3708482477 | $171,734 | $171,734 | $63.69 | | |
| CR | County Roads | 0.4584763726 | $171,734 | $171,734 | $78.74 | | |
| ISLANDEMS | Hospital GEN (EMS) | 0.5000000000 | $171,734 | $171,734 | $85.87 | | |
| LIB | Library Sno-Isle GEN | 0.3153421757 | $171,734 | $171,734 | $54.15 | | |
| PORTWHID | Port of S Whidbey GEN | 0.1094540357 | $171,734 | $171,734 | $18.80 | | |
| SCH206BOND | School 206 BOND | 0.3161759235 | $171,734 | $171,734 | $54.30 | | |
| SCH206MO | School 206 Enrichment | 0.4547169547 | $171,734 | $171,734 | $78.09 | | |
| ST | State School | 1.3035497053 | $171,734 | $171,734 | $223.86 | | |
| ST2 | State School Part 2 | 0.8169543533 | $171,734 | $171,734 | $140.30 | | |
| SWHIDPRBD | P & R S Whidbey BOND | 0.0152817568 | $171,734 | $171,734 | $2.62 | | |
| SWHIDPRBD2 | P & R S Whidbey BOND2 | 0.0138911264 | $171,734 | $171,734 | $2.39 | | |
| SWHIDPRMT | P & R S Whidbey GEN | 0.2053334452 | $171,734 | $171,734 | $35.26 | | |
| | Total Tax Rate: | 5.4929666475 | | | | | |
| | | | | Taxes w/Current Exemptions: | $943.34 | | |
| | | | | Taxes w/o Exemptions: | $943.34 | | |
Improvement / Building
Sketch
| No sketches available for this property. |
Property Image
Land
| 1 | 32 | AC (03.01-09.99) | 2.0000 | 87120.00 | 0.00 | 0.00 | 1.00 | $160,000 | $0 |
| 2 | 32 | AC (03.01-09.99) | 2.4600 | 107157.60 | 0.00 | 0.00 | 1.00 | $11,734 | $0 |
Roll Value History
| 2026 | N/A | N/A | N/A | N/A | N/A |
| 2025 | $0 | $171,734 | $0 | $171,734 | $171,734 |
| 2024 | $0 | $40,051 | $0 | $40,051 | $40,051 |
| 2023 | $0 | $40,051 | $0 | $40,051 | $40,051 |
| 2022 | $0 | $40,051 | $0 | $40,051 | $40,051 |
| 2021 | $0 | $30,051 | $0 | $30,051 | $30,051 |
| 2020 | $0 | $30,051 | $0 | $30,051 | $30,051 |
| 2019 | $0 | $30,051 | $0 | $30,051 | $30,051 |
| 2018 | $0 | $450 | $0 | $450 | $0 |
| 2017 | $0 | $450 | $0 | $450 | $0 |
| 2016 | $0 | $450 | $0 | $450 | $0 |
| 2015 | $0 | $499 | $0 | $499 | $0 |
| 2014 | $0 | $499 | $0 | $499 | $0 |
| 2013 | $0 | $106 | $0 | $106 | $0 |
| 2012 | $0 | $106 | $0 | $106 | $0 |
| 2011 | $0 | $106 | $0 | $106 | $0 |
| 2010 | $0 | $106 | $0 | $106 | $0 |
| 2009 | $0 | $106 | $0 | $106 | $0 |
| 2008 | $0 | $106 | $0 | $106 | $106 |
| 2007 | $0 | $106 | $0 | $106 | $0 |
Deed and Sales History
| 1 | 06/17/2019 | QCD | Quit Claim Deed | MYRES, STEVE | CEDAR ROW, LLC | | | $2,500.00 | 39012 | 4465581 |
| 2 | 03/23/2017 | TTAXD | Treasurer's Tax Deed | ISLAND COUNTY TAX TITLE | MYRES, STEVE | | | $1,940.00 | 28544 | 4419348 |
| 3 | 12/19/2013 | TTAXD | Treasurer's Tax Deed | LOVELESS, RODNEY L | ISLAND COUNTY TAX TITLE | | | $0.00 | 13851 | 4353116 |
| 4 | 01/01/1900 | OTHER | Other - Misc. Documents | Unknown | LOVELESS, RODNEY L | | | $0.00 | 0 | 0 |
Payout Agreement
| No payout information available.. |