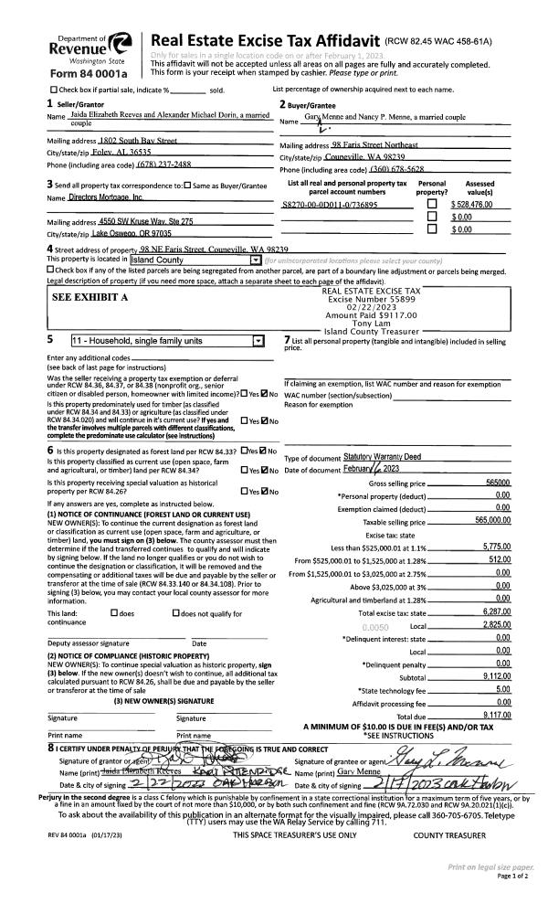
Property
Account |
| Property ID: | 512886 | Abbreviated Legal Description: | 1979 KOZY 14X60 VIN# SC2105A TPO $45583 |
| Geographic ID: | M917000000060 | Agent Code: | |
| Type: | Mobile Home | | |
| Tax Area: | 110 - APPRAISER-OH Schl Dist, outside OH, improved & 1 acre or less | Land Use Code | 11 |
| Open Space: | N | DFL | N |
| Historic Property: | N | Remodel Property: | N |
| Multi-Family Redevelopment: | N | | |
| Township: | | Section: | |
| Range: | |
Location |
| Address: | 2920 HELLER RD # 6 OAK HARBOR, WA 98277 | Mapsco: | |
| Neighborhood: | Cycle 6 | Map ID: | |
| Neighborhood CD: | 6 |
Owner |
| Name: | FLAT TOP LLC | Owner ID: | 265233 |
| Mailing Address: | DBA WAGON WHEEL MOBILE PARK PO BOX 1263 OAK HARBOR, WA 98277 | % Ownership: | 100.0000000000% |
| | | Exemptions: | |
Taxes and Assessment Details
Values
| (+) Improvement Homesite Value: | + | $0 | |
| (+) Improvement Non-Homesite Value: | + | $12,299 | |
| (+) Land Homesite Value: | + | $0 | |
| (+) Land Non-Homesite Value: | + | $0 | |
| (+) Curr Use (HS): | + | $0 | $0 |
| (+) Curr Use (NHS): | + | $0 | $0 |
| | | -------------------------- | |
| (=) Market Value: | = | $12,299 | |
| (–) Productivity Loss: | – | $0 | |
| | | -------------------------- | |
| (=) Subtotal: | = | $12,299 | |
| (+) Senior Appraised Value: | + | $0 | |
| (+) Non-Senior Appraised Value: | + | $12,299 | |
| | | -------------------------- | |
| (=) Total Appraised Value: | = | $12,299 | |
| (–) Senior Exemption Loss: | – | $0 | |
| (–) Exemption Loss: | – | $0 | |
| | | -------------------------- | |
| (=) Taxable Value: | = | $12,299 | |
Taxing Jurisdiction
| Owner: | FLAT TOP LLC | | |
| % Ownership: | 100.0000000000% | | |
| Total Value: | $12,299 | | |
| Tax Area: | 110 - APPRAISER-OH Schl Dist, outside OH, improved & 1 acre or less |
| CF | Conservation Futures | 0.0316035091 | $12,299 | $12,299 | $0.39 | | |
| CEM1 | Cemetery #1 | 0.0040320932 | $12,299 | $12,299 | $0.05 | | |
| FIRE2 | Fire & Rescue Dist #2 N Whidbey GEN | 0.5475949600 | $12,299 | $12,299 | $6.73 | | |
| HOBOND | Hospital BOND | 0.1910887512 | $12,299 | $12,299 | $2.35 | | |
| HOGEN | Hospital GEN | 0.3902502903 | $12,299 | $12,299 | $4.80 | | |
| CE | County Current Expense | 0.3708482477 | $12,299 | $12,299 | $4.56 | | |
| CR | County Roads | 0.4584763726 | $12,299 | $12,299 | $5.64 | | |
| ISLANDEMS | Hospital GEN (EMS) | 0.5000000000 | $12,299 | $12,299 | $6.15 | | |
| LIB | Library Sno-Isle GEN | 0.3153421757 | $12,299 | $12,299 | $3.88 | | |
| NWHIDPRMT | P & R N Whidbey GEN | 0.2004466701 | $12,299 | $12,299 | $2.47 | | |
| SCH201MO | School 201 Enrichment | 1.8559231640 | $12,299 | $12,299 | $22.83 | | |
| ST | State School | 1.3035497053 | $12,299 | $12,299 | $16.03 | | |
| ST2 | State School Part 2 | 0.8169543533 | $12,299 | $12,299 | $10.05 | | |
| | Total Tax Rate: | 6.9861102925 | | | | | |
| | | | | Taxes w/Current Exemptions: | $85.93 | | |
| | | | | Taxes w/o Exemptions: | $85.93 | | |
Improvement / Building
| Improvement #1: | MANUFACTURED HOME | State Code: | Y | 840.0 sqft | Value: | $12,299 |
| Bathrooms: | 0 | Bedrooms: | 0 | | Ceiling: | PLASTER PAINTED | Cooling: | EVAP NO DUCT | | Exterior Wall/Cover: | VINYL | Floor Covering: | CARPET 100% | | Floor Structure: | SLAB ON GRADE | Foundation: | SLAB | | Heating: | FHA ELECTRIC | Interior Finish: | PLASTER | | Plumbing Fixture Cnt: | 1 | Roof Slope: | FLAT | | Roof Structure/Cover: | CJ ALUMINIUM HEAVY |   |   |
|
| | Type | Description | Class CD | Sub Class CD | Year Built | Area |
| | BAS | BASE/MAIN FLOOR | 3 | 0 | 1979 | 840.0 |
| | ENP | ENCLOSED PORCH | 3 | 0 | 1979 | 64.0 |
Sketch
Property Image
Land
No land segments exist for this property.
Roll Value History
| 2026 | N/A | N/A | N/A | N/A | N/A |
| 2025 | $12,299 | $0 | $0 | $12,299 | $12,299 |
| 2024 | $13,045 | $0 | $0 | $13,045 | $13,045 |
| 2023 | $14,163 | $0 | $0 | $14,163 | $14,163 |
| 2022 | $6,213 | $0 | $0 | $6,213 | $6,213 |
| 2021 | $5,867 | $0 | $0 | $5,867 | $5,867 |
| 2020 | $5,996 | $0 | $0 | $5,996 | $5,996 |
| 2019 | $4,960 | $0 | $0 | $4,960 | $4,960 |
| 2018 | $5,196 | $0 | $0 | $5,196 | $5,196 |
| 2017 | $5,433 | $0 | $0 | $5,433 | $5,433 |
| 2016 | $3,754 | $0 | $0 | $3,754 | $3,754 |
| 2015 | $3,981 | $0 | $0 | $3,981 | $3,981 |
| 2014 | $4,323 | $0 | $0 | $4,323 | $4,323 |
| 2013 | $4,550 | $0 | $0 | $4,550 | $4,550 |
| 2012 | $4,778 | $0 | $0 | $4,778 | $4,778 |
| 2011 | $5,005 | $0 | $0 | $5,005 | $5,005 |
| 2010 | $5,205 | $0 | $0 | $5,205 | $5,205 |
| 2009 | $5,429 | $0 | $0 | $5,429 | $5,429 |
| 2008 | $5,562 | $0 | $0 | $5,562 | $5,562 |
| 2007 | $5,821 | $0 | $0 | $5,821 | $5,821 |
Deed and Sales History
| 1 | 08/23/2016 | MANHOME | Manufactured Home | MELIGRO, LAWRENCE | FLAT TOP LLC | | | $0.00 | 25786 | |
| 2 | 10/31/2005 | OTHER | Other - Misc. Documents | VIGIL, DANIEL W | MELIGRO, LAWRENCE | | | $4,000.00 | 55612 | 0 |
| 3 | 10/17/2001 | OTHER | Other - Misc. Documents | RICHARDSON, NANCY | VIGIL, DANIEL W | | | $10,000.00 | 14029 | 0 |
| 4 | 09/01/1992 | OTHER | Other - Misc. Documents | ERTEL, RICHARD L | RICHARDSON, NANCY | | | $24,500.00 | 23867 | 0 |
| 5 | 02/01/1988 | OTHER | Other - Misc. Documents | COOPER, ROBERT | ERTEL, RICHARD L | | | $12,200.00 | 80297 | 0 |
Payout Agreement
| No payout information available.. |