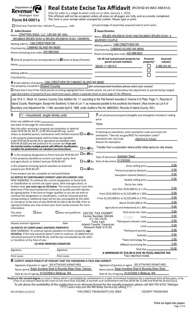
Property
Account |
| Property ID: | 51348 | Abbreviated Legal Description: | 108 - PT GL 2 DESC 109D57 (A8796) & 129D402 (A15011) SUB TO BDY AGREEMENT 118D16 (A11724) N284.32' OF FOLL: BG 1/4 CR SEC 10 & 11 N89* E365' TPB N213' N89*E50' S15*E10' S4*E190.75' S7* *W341.6' S89*W23.85' N325' TPB TGW 2ND CLASS TIDES TGW SUB EZ & BG 1/4 |
| Geographic ID: | R22911-272-0490 | Agent Code: | |
| Type: | Real | | |
| Tax Area: | 760 - APPRAISER-S Whid Schl Dist, Special District, improved & less than 1 acre | Land Use Code | 11 |
| Open Space: | N | DFL | N |
| Historic Property: | N | Remodel Property: | N |
| Multi-Family Redevelopment: | N | | |
| Township: | 29 | Section: | 11 |
| Range: | R2 |
Location |
| Address: | 1631 HAZEN SHORES CT FREELAND, WA 98249 | Mapsco: | |
| Neighborhood: | Cycle 3 | Map ID: | 313 |
| Neighborhood CD: | 3 |
Owner |
| Name: | HAZEN SHORES MANAGEMENT, LLC | Owner ID: | 277525 |
| Mailing Address: | C/O JESSICA LEON 3634 HAT ST CLINTON, WA 98236 | % Ownership: | 100.0000000000% |
| | | Exemptions: | |
Taxes and Assessment Details
Values
| (+) Improvement Homesite Value: | + | $0 | |
| (+) Improvement Non-Homesite Value: | + | $154,930 | |
| (+) Land Homesite Value: | + | $0 | |
| (+) Land Non-Homesite Value: | + | $650,600 | |
| (+) Curr Use (HS): | + | $0 | $0 |
| (+) Curr Use (NHS): | + | $0 | $0 |
| | | -------------------------- | |
| (=) Market Value: | = | $805,530 | |
| (–) Productivity Loss: | – | $0 | |
| | | -------------------------- | |
| (=) Subtotal: | = | $805,530 | |
| (+) Senior Appraised Value: | + | $0 | |
| (+) Non-Senior Appraised Value: | + | $805,530 | |
| | | -------------------------- | |
| (=) Total Appraised Value: | = | $805,530 | |
| (–) Senior Exemption Loss: | – | $0 | |
| (–) Exemption Loss: | – | $0 | |
| | | -------------------------- | |
| (=) Taxable Value: | = | $805,530 | |
Taxing Jurisdiction
| Owner: | HAZEN SHORES MANAGEMENT, LLC | | |
| % Ownership: | 100.0000000000% | | |
| Total Value: | $805,530 | | |
| Tax Area: | 760 - APPRAISER-S Whid Schl Dist, Special District, improved & less than 1 acre |
| CF | Conservation Futures | 0.0316035091 | $805,530 | $805,530 | $25.46 | | |
| FIRE3 | Fire & Rescue Dist #3 S Whidbey GEN | 1.2004855531 | $805,530 | $805,530 | $967.03 | | |
| HOBOND | Hospital BOND | 0.1910887512 | $805,530 | $805,530 | $153.93 | | |
| HOGEN | Hospital GEN | 0.3902502903 | $805,530 | $805,530 | $314.36 | | |
| CE | County Current Expense | 0.3708482477 | $805,530 | $805,530 | $298.73 | | |
| CR | County Roads | 0.4584763726 | $805,530 | $805,530 | $369.32 | | |
| ISLANDEMS | Hospital GEN (EMS) | 0.5000000000 | $805,530 | $805,530 | $402.77 | | |
| LIB | Library Sno-Isle GEN | 0.3153421757 | $805,530 | $805,530 | $254.02 | | |
| PORTWHID | Port of S Whidbey GEN | 0.1094540357 | $805,530 | $805,530 | $88.17 | | |
| SCH206BOND | School 206 BOND | 0.3161759235 | $805,530 | $805,530 | $254.69 | | |
| SCH206MO | School 206 Enrichment | 0.4547169547 | $805,530 | $805,530 | $366.29 | | |
| ST | State School | 1.3035497053 | $805,530 | $805,530 | $1,050.05 | | |
| ST2 | State School Part 2 | 0.8169543533 | $805,530 | $805,530 | $658.08 | | |
| SWHIDPRBD | P & R S Whidbey BOND | 0.0152817568 | $805,530 | $805,530 | $12.31 | | |
| SWHIDPRBD2 | P & R S Whidbey BOND2 | 0.0138911264 | $805,530 | $805,530 | $11.19 | | |
| SWHIDPRMT | P & R S Whidbey GEN | 0.2053334452 | $805,530 | $805,530 | $165.40 | | |
| | Total Tax Rate: | 6.6934522006 | | | | | |
| | | | | Taxes w/Current Exemptions: | $5,391.80 | | |
| | | | | Taxes w/o Exemptions: | $5,391.80 | | |
Improvement / Building
| Improvement #1: | RESIDENTIAL | State Code: | Y | 1152.0 sqft | Value: | $154,930 |
| Bathrooms: | 1 | Bedrooms: | 1 | | Ceiling: | DRYWALL PAINTED | Cooling: | HEAT PUMP/CONV/V | | Exterior Wall/Cover: | WOOD SIDING | Floor Covering: | HARDWOOD/CARP 20-80 | | Floor Structure: | WOOD W/SUBFLOOR | Foundation: | CONCRETE | | Interior Finish: | DRYWALL PAINT | Plumbing Fixture Cnt: | 6 | | Roof Slope: | FLAT | Roof Structure/Cover: | BEAM BUILT-UP ROCK |
|
| | Type | Description | Class CD | Sub Class CD | Year Built | Area |
| | BAS | BASE/MAIN FLOOR | 3 | 0 | 1961 | 1152.0 |
| | OP3 | OPEN PORCH W/ROOF | 3 | 0 | 1961 | 64.0 |
| | AGR | ATTACHED GARAGE | 3 | 0 | 1961 | 330.0 |
| | OWP | OPEN WOOD PORCH W/STEPS | 3 | 0 | 1961 | 108.0 |
| | OWP | OPEN WOOD PORCH W/STEPS | 3 | 0 | 1961 | 244.0 |
| | oUTI | UTILITY | 3 | 0 | 1961 | 0.0 |
Sketch
Property Image
Land
| 1 | LB | LOW BANK | 0.0000 | 0.00 | 60.00 | 0.00 | 1.00 | $650,000 | $0 |
| 2 | 55 | TIDES | 0.0000 | 0.00 | 60.00 | 0.00 | 1.00 | $600 | $0 |
Roll Value History
| 2026 | N/A | N/A | N/A | N/A | N/A |
| 2025 | $154,930 | $650,600 | $0 | $805,530 | $805,530 |
| 2024 | $157,688 | $650,600 | $0 | $808,288 | $808,288 |
| 2023 | $160,447 | $650,600 | $0 | $811,047 | $811,047 |
| 2022 | $148,024 | $675,600 | $0 | $823,624 | $823,624 |
| 2021 | $131,217 | $300,600 | $0 | $431,817 | $431,817 |
| 2020 | $128,675 | $300,600 | $0 | $429,275 | $429,275 |
| 2019 | $84,897 | $250,600 | $0 | $335,497 | $335,497 |
| 2018 | $85,263 | $250,600 | $0 | $335,863 | $335,863 |
| 2017 | $85,996 | $200,600 | $0 | $286,596 | $286,596 |
| 2016 | $87,461 | $200,600 | $0 | $288,061 | $288,061 |
| 2015 | $88,925 | $200,600 | $0 | $289,525 | $289,525 |
| 2014 | $90,391 | $200,600 | $0 | $290,991 | $290,991 |
| 2013 | $81,875 | $278,700 | $0 | $360,575 | $360,575 |
| 2012 | $83,253 | $278,700 | $0 | $361,953 | $361,953 |
| 2011 | $84,629 | $278,700 | $0 | $363,329 | $363,329 |
| 2010 | $92,797 | $278,700 | $0 | $371,497 | $371,497 |
| 2009 | $96,992 | $396,614 | $0 | $493,606 | $493,606 |
| 2008 | $98,440 | $396,614 | $0 | $495,054 | $495,054 |
| 2007 | $89,684 | $330,392 | $0 | $420,076 | $420,076 |
Deed and Sales History
| 1 | 08/05/2016 | CHGOFIDENT | DNU - Change In Identity | HARRIS TRUSTEE, JOSEPHINE | HAZEN SHORES MANAGEMENT, LLC | | | $0.00 | 26929 | 4411522 |
| 2 | 07/14/2004 | QCD | Quit Claim Deed | HARRIS, JOSEPHINE | HARRIS TRUSTEE, JOSEPHINE | | | $0.00 | 43285 | 4107434 |
| 3 | 11/13/2003 | WD | Warranty Deed | HARRIS, JOSEPHINE | HARRIS, JOSEPHINE | | | $0.00 | 35468 | 4085106 |
| 4 | 03/04/2003 | WD | Warranty Deed | SEMPLE, RUTH L | HARRIS, JOSEPHINE | | | $285,000.00 | 30912 | 4050093 |
| 5 | 10/11/2001 | 5 | DNU - Marriage License/Name Change | SEMPLE, WILLIAM H | SEMPLE, RUTH L | | | $0.00 | 69132 | 0 |
| 6 | 04/01/1994 | QCD | Quit Claim Deed | SEMPLE, WILLIAM H | SEMPLE, WILLIAM H | | | $0.00 | 42179 | 94012575 |
Payout Agreement
| No payout information available.. |