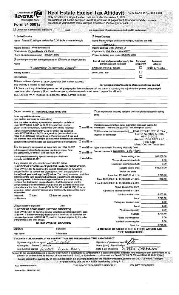
Property
Account |
| Property ID: | 514759 | Abbreviated Legal Description: | SEG'D FR 517 0380 S330.76' OF N661.53' OF NW NW EX E790' TGW EZ |
| Geographic ID: | R23118-504-0380 | Agent Code: | |
| Type: | Real | | |
| Tax Area: | 319 - APPRAISER-Cpvl Schl Dist, outside Cpvl, vacant & 50 acres or less | Land Use Code | 91 |
| Open Space: | N | DFL | N |
| Historic Property: | N | Remodel Property: | N |
| Multi-Family Redevelopment: | N | | |
| Township: | 31 | Section: | 18 |
| Range: | R2 |
Location |
| Address: | | Mapsco: | |
| Neighborhood: | Cycle 2 | Map ID: | 491 |
| Neighborhood CD: | 2 |
Owner |
| Name: | MATHENIA, KRISTY | Owner ID: | 314422 |
| Mailing Address: | MANUEL VELASQUEZ 49 E SQUIRE RD COUPEVILLE, WA 98239 | % Ownership: | 100.0000000000% |
| | | Exemptions: | |
Taxes and Assessment Details
Values
| (+) Improvement Homesite Value: | + | $0 | |
| (+) Improvement Non-Homesite Value: | + | $0 | |
| (+) Land Homesite Value: | + | $0 | |
| (+) Land Non-Homesite Value: | + | $158,423 | |
| (+) Curr Use (HS): | + | $0 | $0 |
| (+) Curr Use (NHS): | + | $0 | $0 |
| | | -------------------------- | |
| (=) Market Value: | = | $158,423 | |
| (–) Productivity Loss: | – | $0 | |
| | | -------------------------- | |
| (=) Subtotal: | = | $158,423 | |
| (+) Senior Appraised Value: | + | $0 | |
| (+) Non-Senior Appraised Value: | + | $158,423 | |
| | | -------------------------- | |
| (=) Total Appraised Value: | = | $158,423 | |
| (–) Senior Exemption Loss: | – | $0 | |
| (–) Exemption Loss: | – | $0 | |
| | | -------------------------- | |
| (=) Taxable Value: | = | $158,423 | |
Taxing Jurisdiction
| Owner: | MATHENIA, KRISTY | | |
| % Ownership: | 100.0000000000% | | |
| Total Value: | $158,423 | | |
| Tax Area: | 319 - APPRAISER-Cpvl Schl Dist, outside Cpvl, vacant & 50 acres or less |
| CF | Conservation Futures | 0.0316035091 | $158,423 | $158,423 | $5.01 | | |
| CEM2 | Cemetery #2 | 0.0095056933 | $158,423 | $158,423 | $1.51 | | |
| HOBOND | Hospital BOND | 0.1910887512 | $158,423 | $158,423 | $30.27 | | |
| HOGEN | Hospital GEN | 0.3902502903 | $158,423 | $158,423 | $61.82 | | |
| CE | County Current Expense | 0.3708482477 | $158,423 | $158,423 | $58.75 | | |
| CR | County Roads | 0.4584763726 | $158,423 | $158,423 | $72.63 | | |
| ISLANDEMS | Hospital GEN (EMS) | 0.5000000000 | $158,423 | $158,423 | $79.21 | | |
| LIB | Library Sno-Isle GEN | 0.3153421757 | $158,423 | $158,423 | $49.96 | | |
| LIBCAP | Library Sno-Isle BOND (Cap Fac Imp Area) | 0.0543427938 | $158,423 | $158,423 | $8.61 | | |
| POCOUP | Port of Coupeville GEN | 0.1093371703 | $158,423 | $158,423 | $17.32 | | |
| POCOUPIDD | Port of Coupeville IDD | 0.3409740022 | $158,423 | $158,423 | $54.02 | | |
| COUPSDTECH | School 204 CP (TECH) | 0.7545480007 | $158,423 | $158,423 | $119.54 | | |
| SCH204MO | School 204 Enrichment | 0.6716186034 | $158,423 | $158,423 | $106.40 | | |
| ST | State School | 1.3035497053 | $158,423 | $158,423 | $206.51 | | |
| ST2 | State School Part 2 | 0.8169543533 | $158,423 | $158,423 | $129.42 | | |
| | Total Tax Rate: | 6.3184396689 | | | | | |
| | | | | Taxes w/Current Exemptions: | $1,000.98 | | |
| | | | | Taxes w/o Exemptions: | $1,000.98 | | |
Improvement / Building
Sketch
| No sketches available for this property. |
Property Image
Land
| 1 | 91 | UNDEVELOPED LAND-METES AND BOUNDS | 5.1200 | 0.00 | 0.00 | 0.00 | 1.00 | $158,423 | $0 |
Roll Value History
| 2026 | N/A | N/A | N/A | N/A | N/A |
| 2025 | $0 | $158,423 | $0 | $158,423 | $158,423 |
| 2024 | $0 | $150,000 | $0 | $150,000 | $150,000 |
| 2023 | $0 | $140,000 | $0 | $140,000 | $140,000 |
| 2022 | $0 | $130,000 | $0 | $130,000 | $130,000 |
| 2021 | $0 | $100,000 | $0 | $100,000 | $100,000 |
| 2020 | $0 | $100,000 | $0 | $100,000 | $100,000 |
| 2019 | $0 | $100,000 | $0 | $100,000 | $100,000 |
| 2018 | $0 | $100,000 | $0 | $100,000 | $100,000 |
| 2017 | $0 | $100,000 | $0 | $100,000 | $100,000 |
| 2016 | $0 | $75,000 | $0 | $75,000 | $75,000 |
| 2015 | $0 | $102,400 | $0 | $102,400 | $102,400 |
| 2014 | $0 | $102,400 | $0 | $102,400 | $102,400 |
| 2013 | $0 | $102,400 | $0 | $102,400 | $102,400 |
| 2012 | $0 | $102,400 | $0 | $102,400 | $102,400 |
| 2011 | $0 | $102,400 | $0 | $102,400 | $102,400 |
| 2010 | $0 | $102,400 | $0 | $102,400 | $102,400 |
| 2009 | $0 | $125,440 | $0 | $125,440 | $125,440 |
| 2008 | $0 | $133,120 | $0 | $133,120 | $133,120 |
| 2007 | $0 | $117,760 | $0 | $117,760 | $117,760 |
Deed and Sales History
| 1 | 10/24/2024 | WD | Warranty Deed | DENISE CAMERON PR | MATHENIA, KRISTY | | | $135,000.00 | 61724 | 4578859 |
| 2 | 07/01/1981 | EXECUTORD | Executor Deed | BROWN, ARTHUR W | CASTILLO, CHARLES F | | | $20,000.00 | 12277 | 385858 |
| 3 | 05/01/1981 | CD | DNU - Correction Deed | HARRINGTON, JOHN D | BROWN, ARTHUR W | | | $1.00 | 11629 | 383520 |
| 4 | 01/01/1900 | EXECUTORD | Executor Deed | Unknown | HARRINGTON, JOHN D | | | $0.00 | 83820 | 337745 |
Payout Agreement
| No payout information available.. |