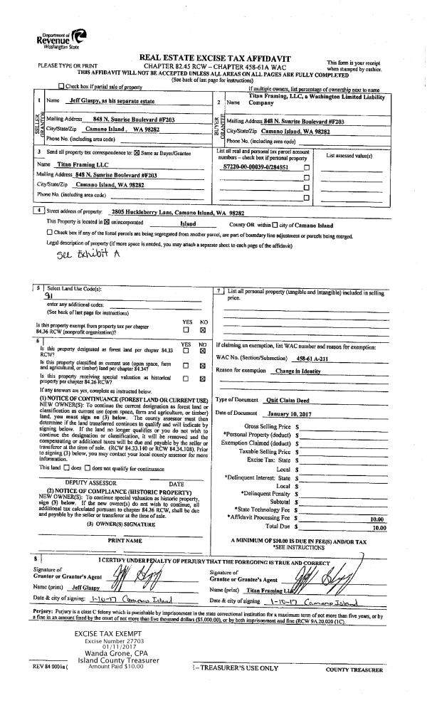
Property
Account |
| Property ID: | 515348 | Abbreviated Legal Description: | E142.50' OF W285' OF E478' OF S762' OF R MADDOX DLC TGW & SUBJ TO EZ FR 044-111 (TR B SP 79-247 AF#373931) BLA 282/22 4555201 |
| Geographic ID: | R13217-044-1170 | Agent Code: | |
| Type: | Real | | |
| Tax Area: | 112 - APPRAISER-OH Schl Dist, outside OH, improved, greater than 1 acre | Land Use Code | 11 |
| Open Space: | N | DFL | N |
| Historic Property: | N | Remodel Property: | N |
| Multi-Family Redevelopment: | N | | |
| Township: | 32 | Section: | 17 |
| Range: | R1 |
Location |
| Address: | 1916 SWEETBRIAR LN OAK HARBOR, WA 98277 | Mapsco: | |
| Neighborhood: | Cycle 1 | Map ID: | 132 |
| Neighborhood CD: | 1 |
Owner |
| Name: | STAUFFER, JOSEPH A | Owner ID: | 278130 |
| Mailing Address: | 1916 SWEETBRIAR LN OAK HARBOR, WA 98277 | % Ownership: | 100.0000000000% |
| | | Exemptions: | |
Taxes and Assessment Details
Values
| (+) Improvement Homesite Value: | + | $0 | |
| (+) Improvement Non-Homesite Value: | + | $470,527 | |
| (+) Land Homesite Value: | + | $0 | |
| (+) Land Non-Homesite Value: | + | $290,000 | |
| (+) Curr Use (HS): | + | $0 | $0 |
| (+) Curr Use (NHS): | + | $0 | $0 |
| | | -------------------------- | |
| (=) Market Value: | = | $760,527 | |
| (–) Productivity Loss: | – | $0 | |
| | | -------------------------- | |
| (=) Subtotal: | = | $760,527 | |
| (+) Senior Appraised Value: | + | $0 | |
| (+) Non-Senior Appraised Value: | + | $760,527 | |
| | | -------------------------- | |
| (=) Total Appraised Value: | = | $760,527 | |
| (–) Senior Exemption Loss: | – | $0 | |
| (–) Exemption Loss: | – | $0 | |
| | | -------------------------- | |
| (=) Taxable Value: | = | $760,527 | |
Taxing Jurisdiction
| Owner: | STAUFFER, JOSEPH A | | |
| % Ownership: | 100.0000000000% | | |
| Total Value: | $760,527 | | |
| Tax Area: | 112 - APPRAISER-OH Schl Dist, outside OH, improved, greater than 1 acre |
| CF | Conservation Futures | 0.0316035091 | $760,527 | $760,527 | $24.04 | | |
| CEM1 | Cemetery #1 | 0.0040320932 | $760,527 | $760,527 | $3.07 | | |
| FIRE2 | Fire & Rescue Dist #2 N Whidbey GEN | 0.5475949600 | $760,527 | $760,527 | $416.46 | | |
| HOBOND | Hospital BOND | 0.1910887512 | $760,527 | $760,527 | $145.33 | | |
| HOGEN | Hospital GEN | 0.3902502903 | $760,527 | $760,527 | $296.80 | | |
| CE | County Current Expense | 0.3708482477 | $760,527 | $760,527 | $282.04 | | |
| CR | County Roads | 0.4584763726 | $760,527 | $760,527 | $348.68 | | |
| ISLANDEMS | Hospital GEN (EMS) | 0.5000000000 | $760,527 | $760,527 | $380.26 | | |
| LIB | Library Sno-Isle GEN | 0.3153421757 | $760,527 | $760,527 | $239.83 | | |
| NWHIDPRMT | P & R N Whidbey GEN | 0.2004466701 | $760,527 | $760,527 | $152.45 | | |
| SCH201MO | School 201 Enrichment | 1.8559231640 | $760,527 | $760,527 | $1,411.48 | | |
| ST | State School | 1.3035497053 | $760,527 | $760,527 | $991.38 | | |
| ST2 | State School Part 2 | 0.8169543533 | $760,527 | $760,527 | $621.32 | | |
| | Total Tax Rate: | 6.9861102925 | | | | | |
| | | | | Taxes w/Current Exemptions: | $5,313.14 | | |
| | | | | Taxes w/o Exemptions: | $5,313.14 | | |
Improvement / Building
| Improvement #1: | RESIDENTIAL | State Code: | Y | 1948.0 sqft | Value: | $410,232 |
| Bathrooms: | 2 | Bedrooms: | 3 | | Ceiling: | DRYWALL PAINTED | Exterior Wall/Cover: | COMMON BRICK VENEER | | Floor Covering: | HARDWOOD/CARP 20-80 | Floor Structure: | SLAB ON GRADE | | Foundation: | SLAB | Heating: | FHA GAS | | Interior Finish: | DRYWALL PAINT | Plumbing Fixture Cnt: | 9 | | Roof Slope: | 8" IN 12" | Roof Structure/Cover: | CJ ALUMINIUM HEAVY |
|
| | Type | Description | Class CD | Sub Class CD | Year Built | Area |
| | BAS | BASE/MAIN FLOOR | 3 | 0 | 1992 | 1948.0 |
| | OP4 | OPEN PORCH W/CEILING-ROOF | 3 | 0 | 1992 | 182.0 |
| | UTY | STORAGE/UTILITY | 3 | 0 | 1992 | 2250.0 |
| | UTY | STORAGE/UTILITY | 3 | 0 | 1992 | 240.0 |
| | UTY | STORAGE/UTILITY | 3 | 0 | 1992 | 240.0 |
| | OP3 | OPEN PORCH W/ROOF | 3 | 0 | 1992 | 252.0 |
| | UTY | STORAGE/UTILITY | 3 | 0 | 1992 | 240.0 |
| | UTY | STORAGE/UTILITY | 3 | 0 | 1992 | 240.0 |
| | UTY | STORAGE/UTILITY | 3 | 0 | 1992 | 240.0 |
| | ATF | ATTIC FINISHED | 3 | 0 | 1992 | 1080.0 |
| Improvement #2: | RESIDENTIAL | State Code: | Y | 200.0 sqft | Value: | $60,295 |
| Bathrooms: | 1 | Bedrooms: | 0 | | Ceiling: | DRYWALL PAINTED | Exterior Wall/Cover: | PLY/HARDBOARD T-111 | | Floor Covering: | CARPET 100% | Floor Structure: | SLAB ON GRADE | | Foundation: | SLAB | Heating: | (NONE) | | Interior Finish: | DRYWALL PAINT | Plumbing Fixture Cnt: | 6 | | Roof Slope: | 6" IN 12" | Roof Structure/Cover: | CJ ASPHALT |
|
| | Type | Description | Class CD | Sub Class CD | Year Built | Area |
| | BAS | BASE/MAIN FLOOR | 3 | 0 | 1990 | 200.0 |
| | OP4 | OPEN PORCH W/CEILING-ROOF | 3 | 0 | 1990 | 120.0 |
| | AGR | ATTACHED GARAGE | 3 | 0 | 1990 | 440.0 |
Sketch
Property Image
Land
| 1 | 32 | AC (03.01-09.99) | 6.7100 | 292287.60 | 0.00 | 0.00 | 1.00 | $290,000 | $0 |
Roll Value History
| 2026 | N/A | N/A | N/A | N/A | N/A |
| 2025 | $470,527 | $290,000 | $0 | $760,527 | $760,527 |
| 2024 | $476,660 | $260,000 | $0 | $736,660 | $736,660 |
| 2023 | $332,243 | $250,000 | $0 | $582,243 | $582,243 |
| 2022 | $305,002 | $220,000 | $0 | $525,002 | $525,002 |
| 2021 | $268,828 | $180,000 | $0 | $448,828 | $448,828 |
| 2020 | $262,329 | $140,000 | $0 | $402,329 | $402,329 |
| 2019 | $196,784 | $200,000 | $0 | $396,784 | $396,784 |
| 2018 | $197,426 | $160,000 | $0 | $357,426 | $357,426 |
| 2017 | $233,938 | $150,000 | $0 | $383,938 | $383,938 |
| 2016 | $237,114 | $120,000 | $0 | $357,114 | $357,114 |
| 2015 | $240,288 | $90,000 | $0 | $330,288 | $330,288 |
| 2014 | $243,461 | $90,000 | $0 | $333,461 | $333,461 |
| 2013 | $246,635 | $102,000 | $0 | $348,635 | $348,635 |
| 2012 | $249,808 | $102,000 | $0 | $351,808 | $351,808 |
| 2011 | $254,822 | $120,000 | $0 | $374,822 | $374,822 |
| 2010 | $262,460 | $120,000 | $0 | $382,460 | $382,460 |
| 2009 | $274,608 | $132,000 | $0 | $406,608 | $406,608 |
| 2008 | $286,477 | $126,324 | $0 | $412,801 | $412,801 |
| 2007 | $290,820 | $126,324 | $0 | $417,144 | $417,144 |
Deed and Sales History
| 1 | 12/29/2016 | ESTSEPPROP | Establish Separate Property | STAUFFER, JOSEPH A | STAUFFER, JOSEPH A | | | $0.00 | 27630 | 4414648 |
| 2 | 12/29/2016 | WD | Warranty Deed | COVELAND | STAUFFER, JOSEPH A | | | $225,000.00 | 27628 | 4414647 |
| 3 | 04/19/2010 | WD | Warranty Deed | JADWIN TRUSTEE, MARIAH | COVELAND | | | $0.00 | 4730 | 4296912 |
| 4 | 04/19/2010 | QCD | Quit Claim Deed | DAHL, GAIL L | JADWIN TRUSTEE, MARIAH | | | $0.00 | 902 | 4272326 |
| 5 | 11/02/2005 | QCD | Quit Claim Deed | DAHL, MARK | DAHL, GAIL L | | | $0.00 | 55578 | 4153050 |
| 6 | 01/27/2003 | QCD | Quit Claim Deed | DAHL, GAIL L | DAHL, MARK | | | $0.00 | 30375 | 4046322 |
| 7 | 01/16/2001 | ESTSEPPROP | Establish Separate Property | DAHL, MARK T | DAHL, GAIL L | | | $0.00 | 10170 | 20023562 |
| 8 | 05/01/1990 | WD | Warranty Deed | SOCHA, RICHARD A | DAHL, MARK T | | | $13,000.00 | 2536 | 90008141 |
| 9 | 05/01/1989 | WD | Warranty Deed | SECHER-JENSEN, URBAN | SOCHA, RICHARD A | | | $10,000.00 | 91868 | 89006510 |
| 10 | 05/01/1979 | REC | Real Estate Contract | Unknown | SECHER-JENSEN, URBAN | | | $10,750.00 | 93074 | 354541 |
Payout Agreement
| No payout information available.. |