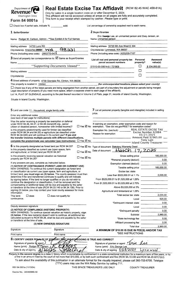
Property
Account |
| Property ID: | 515446 | Abbreviated Legal Description: | MS1:EXEMPT IN ALEX DLC:W120' OF E295' BG 220'S OF SE CR TR WH IS LODGE 3D518 S169' W418' N170' E155.5' S1' E262.5' TPB EX PT LY N LN:BG SW CR BLK 16 ALEX-GLEN S36' TPB E125' TO TERM PT LN EX PT LY NLN:BG 220'S OF SE CR TR 3D518 W187' TPB S3' W81' N1 W30' |
| Geographic ID: | R13233-308-3740 | Agent Code: | |
| Type: | Real | | |
| Tax Area: | 300 - APPRAISER-Cpvl Schl Dist, in Cpvl | Land Use Code | 76 |
| Open Space: | N | DFL | N |
| Historic Property: | N | Remodel Property: | N |
| Multi-Family Redevelopment: | N | | |
| Township: | 32 | Section: | 33 |
| Range: | R1 |
Location |
| Address: | COUPEVILLE, WA 98239 | Mapsco: | |
| Neighborhood: | Area 2 Coupeville Exempt Commercial | Map ID: | 175 |
| Neighborhood CD: | 2CpvExComm |
Owner |
| Name: | COUPEVILLE METHODIST CHURCH | Owner ID: | 7287 |
| Mailing Address: | 7TH & N MAIN STS PO BOX 556 COUPEVILLE, WA 98239-0556 | % Ownership: | 100.0000000000% |
| | | Exemptions: | EX |
Taxes and Assessment Details
Property Tax Information as of
10/22/2025
Click on "Statement Details" to expand or collapse a tax statement.
* Please enter a valid date ** Please enter a valid date *
Statement Details |
| 2025 | 34767 | ST - State School | $0.00 | $0.00 | $0.00 | $0.00 | $0.00 | $0.00 |
| 2025 | 34767 | Island County - Island County General Fund | $0.00 | $0.00 | $0.00 | $0.00 | $0.00 | $0.00 |
| 2025 | 34767 | CICPVL - City: Town of Coupeville | $0.00 | $0.00 | $0.00 | $0.00 | $0.00 | $0.00 |
| 2025 | 34767 | PRTCPVL - Port of Coupeville | $0.00 | $0.00 | $0.00 | $0.00 | $0.00 | $0.00 |
| 2025 | 34767 | SCH204 - School 204 Coupeville | $0.00 | $0.00 | $0.00 | $0.00 | $0.00 | $0.00 |
| 2025 | 34767 | CEM2 - Cemetery #2 Central Whidbey | $0.00 | $0.00 | $0.00 | $0.00 | $0.00 | $0.00 |
| 2025 | 34767 | FIRE5 - Fire & Rescue Dist #5 Central Whidbey | $0.00 | $0.00 | $0.00 | $0.00 | $0.00 | $0.00 |
| 2025 | 34767 | LIB - Library Sno-Isle Regional | $0.00 | $0.00 | $0.00 | $0.00 | $0.00 | $0.00 |
| 2025 | 34767 | HOSPEMS - Whidbey Health EMS Island County | $0.00 | $0.00 | $0.00 | $0.00 | $0.00 | $0.00 |
| 2025 | 34767 | HOSP - Whidbey Health | $0.00 | $0.00 | $0.00 | $0.00 | $0.00 | $0.00 |
| 2025 | 34767 | CF - Island County Conservation Futures | $0.00 | $0.00 | $0.00 | $0.00 | $0.00 | $0.00 |
| 2025 | 34767 | TOTAL: | $0.00 | $0.00 | $0.00 | $0.00 | $0.00 | $0.00 |
|
| 2025 | 34767 | $0.00 | $0.00 | $0.00 | $0.00 | $0.00 | $0.00 |
Statement Details |
| 2016 | 35240 | WDBYCNV - Whidbey Conservation District | $0.00 | $0.00 | $0.00 | $0.00 | $0.00 | $0.00 |
| 2016 | 35240 | TOTAL: | $0.00 | $0.00 | $0.00 | $0.00 | $0.00 | $0.00 |
|
| 2016 | 35240 | $0.00 | $0.00 | $0.00 | $0.00 | $0.00 | $0.00 |
Values
| (+) Improvement Homesite Value: | + | $0 | |
| (+) Improvement Non-Homesite Value: | + | $0 | |
| (+) Land Homesite Value: | + | $0 | |
| (+) Land Non-Homesite Value: | + | $85,000 | |
| (+) Curr Use (HS): | + | $0 | $0 |
| (+) Curr Use (NHS): | + | $0 | $0 |
| | | -------------------------- | |
| (=) Market Value: | = | $85,000 | |
| (–) Productivity Loss: | – | $0 | |
| | | -------------------------- | |
| (=) Subtotal: | = | $85,000 | |
| (+) Senior Appraised Value: | + | $0 | |
| (+) Non-Senior Appraised Value: | + | $85,000 | |
| | | -------------------------- | |
| (=) Total Appraised Value: | = | $85,000 | |
| (–) Senior Exemption Loss: | – | $0 | |
| (–) Exemption Loss: | – | $85,000 | |
| | | -------------------------- | |
| (=) Taxable Value: | = | $0 | |
Taxing Jurisdiction
| Owner: | COUPEVILLE METHODIST CHURCH | | |
| % Ownership: | 100.0000000000% | | |
| Total Value: | $85,000 | | |
| Tax Area: | 300 - APPRAISER-Cpvl Schl Dist, in Cpvl |
| CF | Conservation Futures | 0.0316035091 | $85,000 | $0 | $0.00 | | |
| CEM2 | Cemetery #2 | 0.0095056933 | $85,000 | $0 | $0.00 | | |
| COUP | City: Town of Coupeville | 0.8426414490 | $85,000 | $0 | $0.00 | | |
| FIRE5 | Fire & Rescue Dist #5 C Whidbey GEN | 1.2008080668 | $85,000 | $0 | $0.00 | | |
| FIRE5BOND | Fire & Rescue Dist #5 C Whidbey BOND | 0.1400090713 | $85,000 | $0 | $0.00 | | |
| HOBOND | Hospital BOND | 0.1910887512 | $85,000 | $0 | $0.00 | | |
| HOGEN | Hospital GEN | 0.3902502903 | $85,000 | $0 | $0.00 | | |
| CE | County Current Expense | 0.3708482477 | $85,000 | $0 | $0.00 | | |
| ISLANDEMS | Hospital GEN (EMS) | 0.5000000000 | $85,000 | $0 | $0.00 | | |
| LIB | Library Sno-Isle GEN | 0.3153421757 | $85,000 | $0 | $0.00 | | |
| LIBCAP | Library Sno-Isle BOND (Cap Fac Imp Area) | 0.0543427938 | $85,000 | $0 | $0.00 | | |
| POCOUP | Port of Coupeville GEN | 0.1093371703 | $85,000 | $0 | $0.00 | | |
| POCOUPIDD | Port of Coupeville IDD | 0.3409740022 | $85,000 | $0 | $0.00 | | |
| COUPSDTECH | School 204 CP (TECH) | 0.7545480007 | $85,000 | $0 | $0.00 | | |
| SCH204MO | School 204 Enrichment | 0.6716186034 | $85,000 | $0 | $0.00 | | |
| ST | State School | 1.3035497053 | $85,000 | $0 | $0.00 | | |
| ST2 | State School Part 2 | 0.8169543533 | $85,000 | $0 | $0.00 | | |
| | Total Tax Rate: | 8.0434218834 | | | | | |
| | | | | Taxes w/Current Exemptions: | $0.00 | | |
| | | | | Taxes w/o Exemptions: | $683.68 | | |
Improvement / Building
Sketch
| No sketches available for this property. |
Property Image
Land
| 1 | 15 | SQ (12001-21780) | 0.4600 | 20037.60 | 0.00 | 0.00 | 1.00 | $85,000 | $0 |
Roll Value History
| 2026 | N/A | N/A | N/A | N/A | N/A |
| 2025 | $0 | $85,000 | $0 | $85,000 | $0 |
| 2024 | $0 | $80,000 | $0 | $80,000 | $0 |
| 2023 | $0 | $75,000 | $0 | $75,000 | $0 |
| 2022 | $0 | $75,000 | $0 | $75,000 | $0 |
| 2021 | $0 | $75,000 | $0 | $75,000 | $0 |
| 2020 | $0 | $75,000 | $0 | $75,000 | $0 |
| 2019 | $0 | $90,000 | $0 | $90,000 | $0 |
| 2018 | $0 | $75,000 | $0 | $75,000 | $0 |
| 2017 | $0 | $159,360 | $0 | $159,360 | $0 |
| 2016 | $0 | $159,360 | $0 | $159,360 | $0 |
| 2015 | $0 | $109,560 | $0 | $109,560 | $0 |
| 2014 | $0 | $109,560 | $0 | $109,560 | $0 |
| 2013 | $0 | $109,560 | $0 | $109,560 | $0 |
| 2012 | $2,906 | $176,890 | $0 | $179,796 | $0 |
| 2011 | $2,906 | $176,890 | $0 | $179,796 | $0 |
| 2010 | $2,906 | $176,890 | $0 | $179,796 | $0 |
| 2009 | $3,083 | $239,040 | $0 | $242,123 | $0 |
| 2008 | $3,279 | $239,040 | $0 | $242,319 | $0 |
| 2007 | $3,454 | $117,528 | $0 | $120,982 | $0 |
Deed and Sales History
| 1 | 07/01/1986 | WD | Warranty Deed | FOGLE, HAROLD W | COUPEVILLE, METHODIST C | | | $30,000.00 | 61967 | 86009269 |
| 2 | 07/01/1980 | EXECUTORD | Executor Deed | FOGLE, HAROLD W | FOGLE, HAROLD W | | | $45,000.00 | 2500 | 371615 |
| 3 | 09/01/1978 | OTHER | Other - Misc. Documents | Unknown | FOGLE, HAROLD W | | | $100,000.00 | 84592 | 339928 |
Payout Agreement
| No payout information available.. |