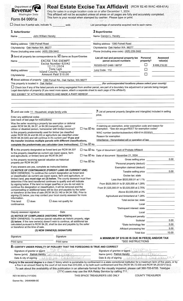
Property
Account |
| Property ID: | 515543 | Abbreviated Legal Description: | S/2 SE NW NW EX W330' TGW PT S/2 SW NE NW LY W OF BOON RD TGW SUB EZ EX RD FR 413 0990 TRACT B SP 79-225 EX PT TO IS CO AF#4421852 |
| Geographic ID: | R13209-413-1150 | Agent Code: | |
| Type: | Real | | |
| Tax Area: | 119 - APPRAISER-OH Schl Dist, outside OH, vacant & 50 acres or less | Land Use Code | 91 |
| Open Space: | N | DFL | N |
| Historic Property: | N | Remodel Property: | N |
| Multi-Family Redevelopment: | N | | |
| Township: | 32 | Section: | 09 |
| Range: | R1 |
Location |
| Address: | 1921 BOON RD OAK HARBOR, WA 98277 | Mapsco: | |
| Neighborhood: | Cycle 1 | Map ID: | 114 |
| Neighborhood CD: | 1 |
Owner |
| Name: | MORGAN GERI B | Owner ID: | 298930 |
| Mailing Address: | 1974 SW DILLARD LN OAK HARBOR, WA 98277 | % Ownership: | 100.0000000000% |
| | | Exemptions: | |
Taxes and Assessment Details
Values
| (+) Improvement Homesite Value: | + | $0 | |
| (+) Improvement Non-Homesite Value: | + | $0 | |
| (+) Land Homesite Value: | + | $0 | |
| (+) Land Non-Homesite Value: | + | $120,000 | |
| (+) Curr Use (HS): | + | $0 | $0 |
| (+) Curr Use (NHS): | + | $0 | $0 |
| | | -------------------------- | |
| (=) Market Value: | = | $120,000 | |
| (–) Productivity Loss: | – | $0 | |
| | | -------------------------- | |
| (=) Subtotal: | = | $120,000 | |
| (+) Senior Appraised Value: | + | $0 | |
| (+) Non-Senior Appraised Value: | + | $120,000 | |
| | | -------------------------- | |
| (=) Total Appraised Value: | = | $120,000 | |
| (–) Senior Exemption Loss: | – | $0 | |
| (–) Exemption Loss: | – | $0 | |
| | | -------------------------- | |
| (=) Taxable Value: | = | $120,000 | |
Taxing Jurisdiction
| Owner: | MORGAN GERI B | | |
| % Ownership: | 100.0000000000% | | |
| Total Value: | $120,000 | | |
| Tax Area: | 119 - APPRAISER-OH Schl Dist, outside OH, vacant & 50 acres or less |
| CF | Conservation Futures | 0.0316035091 | $120,000 | $120,000 | $3.79 | | |
| CEM1 | Cemetery #1 | 0.0040320932 | $120,000 | $120,000 | $0.48 | | |
| HOBOND | Hospital BOND | 0.1910887512 | $120,000 | $120,000 | $22.93 | | |
| HOGEN | Hospital GEN | 0.3902502903 | $120,000 | $120,000 | $46.83 | | |
| CE | County Current Expense | 0.3708482477 | $120,000 | $120,000 | $44.50 | | |
| CR | County Roads | 0.4584763726 | $120,000 | $120,000 | $55.02 | | |
| ISLANDEMS | Hospital GEN (EMS) | 0.5000000000 | $120,000 | $120,000 | $60.00 | | |
| LIB | Library Sno-Isle GEN | 0.3153421757 | $120,000 | $120,000 | $37.84 | | |
| NWHIDPRMT | P & R N Whidbey GEN | 0.2004466701 | $120,000 | $120,000 | $24.05 | | |
| SCH201MO | School 201 Enrichment | 1.8559231640 | $120,000 | $120,000 | $222.71 | | |
| ST | State School | 1.3035497053 | $120,000 | $120,000 | $156.43 | | |
| ST2 | State School Part 2 | 0.8169543533 | $120,000 | $120,000 | $98.03 | | |
| | Total Tax Rate: | 6.4385153325 | | | | | |
| | | | | Taxes w/Current Exemptions: | $772.61 | | |
| | | | | Taxes w/o Exemptions: | $772.61 | | |
Improvement / Building
Sketch
| No sketches available for this property. |
Property Image
Land
| 1 | 18 | AC (02.01-03.00) | 0.0000 | 0.00 | 0.00 | 0.00 | 1.00 | $120,000 | $0 |
Roll Value History
| 2026 | N/A | N/A | N/A | N/A | N/A |
| 2025 | $0 | $120,000 | $0 | $120,000 | $120,000 |
| 2024 | $0 | $120,000 | $0 | $120,000 | $120,000 |
| 2023 | $0 | $110,000 | $0 | $110,000 | $110,000 |
| 2022 | $0 | $110,000 | $0 | $110,000 | $110,000 |
| 2021 | $0 | $100,000 | $0 | $100,000 | $100,000 |
| 2020 | $0 | $80,000 | $0 | $80,000 | $80,000 |
| 2019 | $0 | $100,000 | $0 | $100,000 | $100,000 |
| 2018 | $0 | $75,000 | $0 | $75,000 | $75,000 |
| 2017 | $0 | $75,000 | $0 | $75,000 | $75,000 |
| 2016 | $0 | $75,000 | $0 | $75,000 | $75,000 |
| 2015 | $0 | $60,000 | $0 | $60,000 | $60,000 |
| 2014 | $0 | $60,000 | $0 | $60,000 | $60,000 |
| 2013 | $0 | $70,000 | $0 | $70,000 | $70,000 |
| 2012 | $0 | $70,000 | $0 | $70,000 | $70,000 |
| 2011 | $0 | $70,000 | $0 | $70,000 | $70,000 |
| 2010 | $0 | $70,000 | $0 | $70,000 | $70,000 |
| 2009 | $0 | $94,000 | $0 | $94,000 | $94,000 |
| 2008 | $0 | $116,968 | $0 | $116,968 | $116,968 |
| 2007 | $0 | $113,430 | $0 | $113,430 | $113,430 |
Deed and Sales History
| 1 | 05/04/2021 | CPADC | Comm Prop Agmnt & Death Cert | MORGAN, WILLIAM P | MORGAN GERI B | | | | 89106 | |
| 2 | 04/25/2017 | WD | Warranty Deed | MORGAN, WILLIAM P | MORGAN, WILLIAM P | | | $0.00 | 29142 | 4421852 |
| 3 | 07/01/1988 | QCD | Quit Claim Deed | BENDER, SUE A | BENDER, SUE A | | | $0.00 | 82264 | 88008351 |
| 4 | 07/01/1988 | WD | Warranty Deed | BENDER, SUE A | MORGAN, WILLIAM P | | | $12,500.00 | 82263 | 88008352 |
| 5 | 06/01/1981 | OTHER | Other - Misc. Documents | BABIONE, SUE A | BENDER, SUE A | | | $0.00 | 59160 | 0 |
| 6 | 03/01/1979 | OTHER | Other - Misc. Documents | Unknown | BABIONE, SUE A | | | $0.00 | 90957 | 348440 |
Payout Agreement
| No payout information available.. |