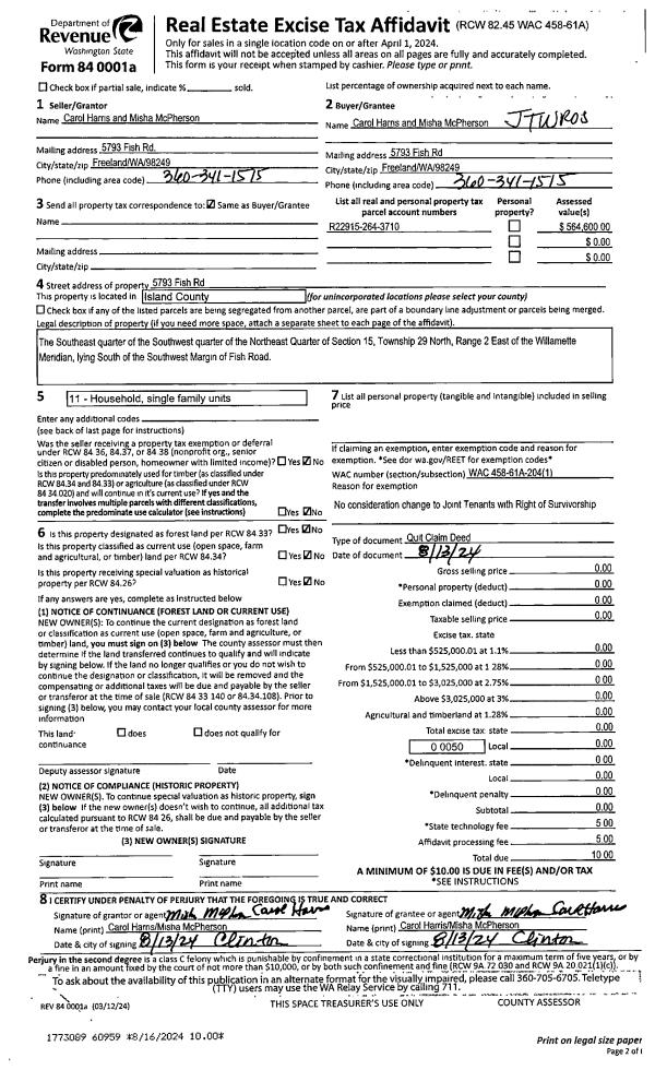
Property
Account |
| Property ID: | 515669 | Abbreviated Legal Description: | IN GL3 SEC 13-32-1W & NW SW SEC 18-32-1E: BG SECR GL3 N89*W330.01' N692.99' TPB N517.93' N42*E50.09' TO SCR LOT 1 BLK 11 PAT'S HIDEAWAY #3 N42*E48.87' ALG CUR/L 45 .67' S72*E367.26' N70*E128.17' S172.08' N89*E192.04' S2*E378.81' S89*W 773.32' TPB TGW PT |
| Geographic ID: | R13218-230-0020 | Agent Code: | |
| Type: | Real | | |
| Tax Area: | 112 - APPRAISER-OH Schl Dist, outside OH, improved, greater than 1 acre | Land Use Code | 11 |
| Open Space: | N | DFL | N |
| Historic Property: | N | Remodel Property: | N |
| Multi-Family Redevelopment: | N | | |
| Township: | 32 | Section: | 18 |
| Range: | R1 |
Location |
| Address: | 1379 SABRINA DR OAK HARBOR, WA 98277 | Mapsco: | |
| Neighborhood: | Cycle 1 | Map ID: | 137 |
| Neighborhood CD: | 1 |
Owner |
| Name: | COBB, THOMAS W | Owner ID: | 281080 |
| Mailing Address: | TAMARA ELAINE COBB 1379 SABRINA DR OAK HARBOR, WA 98277-8543 | % Ownership: | 100.0000000000% |
| | | Exemptions: | |
Taxes and Assessment Details
Values
| (+) Improvement Homesite Value: | + | $0 | |
| (+) Improvement Non-Homesite Value: | + | $261,435 | |
| (+) Land Homesite Value: | + | $0 | |
| (+) Land Non-Homesite Value: | + | $350,000 | |
| (+) Curr Use (HS): | + | $0 | $0 |
| (+) Curr Use (NHS): | + | $0 | $0 |
| | | -------------------------- | |
| (=) Market Value: | = | $611,435 | |
| (–) Productivity Loss: | – | $0 | |
| | | -------------------------- | |
| (=) Subtotal: | = | $611,435 | |
| (+) Senior Appraised Value: | + | $0 | |
| (+) Non-Senior Appraised Value: | + | $611,435 | |
| | | -------------------------- | |
| (=) Total Appraised Value: | = | $611,435 | |
| (–) Senior Exemption Loss: | – | $0 | |
| (–) Exemption Loss: | – | $0 | |
| | | -------------------------- | |
| (=) Taxable Value: | = | $611,435 | |
Taxing Jurisdiction
| Owner: | COBB, THOMAS W | | |
| % Ownership: | 100.0000000000% | | |
| Total Value: | $611,435 | | |
| Tax Area: | 112 - APPRAISER-OH Schl Dist, outside OH, improved, greater than 1 acre |
| CF | Conservation Futures | 0.0316035091 | $611,435 | $611,435 | $19.32 | | |
| CEM1 | Cemetery #1 | 0.0040320932 | $611,435 | $611,435 | $2.47 | | |
| FIRE2 | Fire & Rescue Dist #2 N Whidbey GEN | 0.5475949600 | $611,435 | $611,435 | $334.82 | | |
| HOBOND | Hospital BOND | 0.1910887512 | $611,435 | $611,435 | $116.84 | | |
| HOGEN | Hospital GEN | 0.3902502903 | $611,435 | $611,435 | $238.61 | | |
| CE | County Current Expense | 0.3708482477 | $611,435 | $611,435 | $226.75 | | |
| CR | County Roads | 0.4584763726 | $611,435 | $611,435 | $280.33 | | |
| ISLANDEMS | Hospital GEN (EMS) | 0.5000000000 | $611,435 | $611,435 | $305.72 | | |
| LIB | Library Sno-Isle GEN | 0.3153421757 | $611,435 | $611,435 | $192.81 | | |
| NWHIDPRMT | P & R N Whidbey GEN | 0.2004466701 | $611,435 | $611,435 | $122.56 | | |
| SCH201MO | School 201 Enrichment | 1.8559231640 | $611,435 | $611,435 | $1,134.78 | | |
| ST | State School | 1.3035497053 | $611,435 | $611,435 | $797.04 | | |
| ST2 | State School Part 2 | 0.8169543533 | $611,435 | $611,435 | $499.51 | | |
| | Total Tax Rate: | 6.9861102925 | | | | | |
| | | | | Taxes w/Current Exemptions: | $4,271.56 | | |
| | | | | Taxes w/o Exemptions: | $4,271.56 | | |
Improvement / Building
| Improvement #1: | MANUFACTURED HOME | State Code: | Y | 1815.0 sqft | Value: | $261,435 |
| Bathrooms: | 1 | Bedrooms: | 2 | | Ceiling: | PLASTER PAINTED | Cooling: | EVAP NO DUCT | | Exterior Wall/Cover: | VINYL | Floor Covering: | CARPET 100% | | Floor Structure: | SLAB ON GRADE | Foundation: | SLAB | | Heating: | FHA ELECTRIC | Interior Finish: | PLASTER | | Roof Slope: | FLAT | Roof Structure/Cover: | CJ ALUMINIUM HEAVY |
|
| | Type | Description | Class CD | Sub Class CD | Year Built | Area |
| | BAS | BASE/MAIN FLOOR | 4 | 0 | 2020 | 1815.0 |
| | DGR | DETACHED GARAGE | 4 | | 2020 | 2200.0 |
| | OP1 | OPEN PORCH SLAB | 4 | 0 | 2020 | 1045.0 |
Sketch
Property Image
Land
| 1 | 91 | UNDEVELOPED LAND-METES AND BOUNDS | 9.2100 | 401187.60 | 0.00 | 0.00 | 1.00 | $130,000 | $0 |
| 2 | HS | HOMESITE | 1.0000 | 43560.00 | 0.00 | 0.00 | 1.00 | $220,000 | $0 |
Roll Value History
| 2026 | N/A | N/A | N/A | N/A | N/A |
| 2025 | $261,435 | $350,000 | $0 | $611,435 | $611,435 |
| 2024 | $265,514 | $310,000 | $0 | $575,514 | $575,514 |
| 2023 | $255,339 | $290,000 | $0 | $545,339 | $545,339 |
| 2022 | $239,604 | $270,000 | $0 | $509,604 | $509,604 |
| 2021 | $213,677 | $255,000 | $0 | $468,677 | $468,677 |
| 2020 | $211,236 | $200,000 | $0 | $411,236 | $411,236 |
| 2019 | $66,680 | $230,000 | $0 | $296,680 | $296,680 |
| 2018 | $69,712 | $170,000 | $0 | $239,712 | $239,712 |
| 2017 | $25,841 | $160,000 | $0 | $185,841 | $185,841 |
| 2016 | $26,263 | $160,000 | $0 | $186,263 | $186,263 |
| 2015 | $27,109 | $150,000 | $0 | $177,109 | $177,109 |
| 2014 | $27,531 | $160,808 | $0 | $188,339 | $188,339 |
| 2013 | $28,377 | $160,808 | $0 | $189,185 | $189,185 |
| 2012 | $28,799 | $160,808 | $0 | $189,607 | $189,607 |
| 2011 | $35,844 | $178,675 | $0 | $214,519 | $214,519 |
| 2010 | $38,541 | $178,675 | $0 | $217,216 | $217,216 |
| 2009 | $39,979 | $224,620 | $0 | $264,599 | $264,599 |
| 2008 | $41,212 | $234,830 | $0 | $276,042 | $276,042 |
| 2007 | $42,449 | $234,830 | $0 | $277,279 | $277,279 |
Deed and Sales History
| 1 | 07/19/2017 | WD | Warranty Deed | KELLEY, ROGER G | COBB, THOMAS W | | | $255,000.00 | 30304 | 4426788 |
| 2 | 09/13/2002 | QCD | Quit Claim Deed | KELLEY, ROGER G | KELLEY, ROGER G | | | $0.00 | 14014 | 4353905 |
| 3 | 07/20/2007 | EZ | Easement | KELLEY, ROGER G | KELLEY, ROGER G | | | $3,500.00 | 74236 | 4207421 |
| 4 | 09/13/2002 | WD | Warranty Deed | RAINERI, CINDY | KELLEY, ROGER G | | | $125,000.00 | 23837 | 4032389 |
| 5 | 09/13/2002 | ESTSEPPROP | Establish Separate Property | RAINERI, CINDY | RAINERI, CINDY | | | $0.00 | 23828 | 4032388 |
| 6 | 08/30/2002 | QCD | Quit Claim Deed | STUDEBAKER, DENISE E | RAINERI, CINDY | | | $0.00 | 23663 | 4031210 |
| 7 | 06/01/1992 | QCD | Quit Claim Deed | RAINERI, GLOREEN E | STUDEBAKER, DENISE E | | | $0.00 | 22558 | 92012270 |
| 8 | 11/01/1989 | OTHER | Other - Misc. Documents | RAINERI, GLOREEN E | RAINERI, GLOREEN E | | | $0.00 | 63407 | 89016971 |
| 9 | 04/01/1987 | QCD | Quit Claim Deed | RAINERI, GLOREEN E | RAINERI, GLOREEN E | | | $0.00 | 70905 | 87004671 |
| 10 | 04/01/1987 | QCD | Quit Claim Deed | RAINERI, GLOREEN E | RAINERI, GLOREEN E | | | $0.00 | 70906 | 87004670 |
| 11 | 04/01/1987 | QCD | Quit Claim Deed | RAINERI, C J | RAINERI, GLOREEN E | | | $0.00 | 70907 | 87004672 |
| 12 | 07/01/1980 | OTHER | Other - Misc. Documents | RAINERI, RAY | RAINERI, C J | | | $12,500.00 | 2430 | 0 |
| 13 | 06/01/1980 | WD | Warranty Deed | RAINERI, RAY | RAINERI, RAY | | | $28,500.00 | 2096 | 370233 |
| 14 | 01/01/1900 | OTHER | Other - Misc. Documents | Unknown | RAINERI, RAY | | | $0.00 | 0 | 0 |
Payout Agreement
| No payout information available.. |