Property
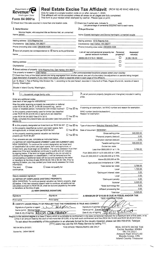
Account |
| Property ID: | 515696 | Abbreviated Legal Description: | REPLACES 263 4600 W414.5' OF E1420' OF S247.5 NE TGW EZ SP77-54 LOT A FR |
| Geographic ID: | R32918-264-4600 | Agent Code: | |
| Type: | Real | | |
| Tax Area: | 712 - APPRAISER-S Whid Schl Dist, outside Langley, improved, greater than 1 acre | Land Use Code | 11 |
| Open Space: | N | DFL | N |
| Historic Property: | N | Remodel Property: | N |
| Multi-Family Redevelopment: | N | | |
| Township: | 29 | Section: | 18 |
| Range: | R3 |
Location |
| Address: | 5788 BAYVIEW RD LANGLEY, WA 98260 | Mapsco: | |
| Neighborhood: | Cycle 4 | Map ID: | 787 |
| Neighborhood CD: | 4 |
Owner |
| Name: | TOGETHER FARM, LLC | Owner ID: | 315058 |
| Mailing Address: | 1314 DENNY WAY SEATTLE, WA 98109 | % Ownership: | 100.0000000000% |
| | | Exemptions: | |
Taxes and Assessment Details
Values
| (+) Improvement Homesite Value: | + | $0 | |
| (+) Improvement Non-Homesite Value: | + | $359,237 | |
| (+) Land Homesite Value: | + | $0 | |
| (+) Land Non-Homesite Value: | + | $380,000 | |
| (+) Curr Use (HS): | + | $0 | $0 |
| (+) Curr Use (NHS): | + | $0 | $0 |
| | | -------------------------- | |
| (=) Market Value: | = | $739,237 | |
| (–) Productivity Loss: | – | $0 | |
| | | -------------------------- | |
| (=) Subtotal: | = | $739,237 | |
| (+) Senior Appraised Value: | + | $0 | |
| (+) Non-Senior Appraised Value: | + | $739,237 | |
| | | -------------------------- | |
| (=) Total Appraised Value: | = | $739,237 | |
| (–) Senior Exemption Loss: | – | $0 | |
| (–) Exemption Loss: | – | $0 | |
| | | -------------------------- | |
| (=) Taxable Value: | = | $739,237 | |
Taxing Jurisdiction
| Owner: | TOGETHER FARM, LLC | | |
| % Ownership: | 100.0000000000% | | |
| Total Value: | $739,237 | | |
| Tax Area: | 712 - APPRAISER-S Whid Schl Dist, outside Langley, improved, greater than 1 acre |
| CF | Conservation Futures | 0.0316035091 | $739,237 | $739,237 | $23.36 | | |
| FIRE3 | Fire & Rescue Dist #3 S Whidbey GEN | 1.2004855531 | $739,237 | $739,237 | $887.44 | | |
| HOBOND | Hospital BOND | 0.1910887512 | $739,237 | $739,237 | $141.26 | | |
| HOGEN | Hospital GEN | 0.3902502903 | $739,237 | $739,237 | $288.49 | | |
| CE | County Current Expense | 0.3708482477 | $739,237 | $739,237 | $274.14 | | |
| CR | County Roads | 0.4584763726 | $739,237 | $739,237 | $338.92 | | |
| ISLANDEMS | Hospital GEN (EMS) | 0.5000000000 | $739,237 | $739,237 | $369.62 | | |
| LIB | Library Sno-Isle GEN | 0.3153421757 | $739,237 | $739,237 | $233.11 | | |
| PORTWHID | Port of S Whidbey GEN | 0.1094540357 | $739,237 | $739,237 | $80.91 | | |
| SCH206BOND | School 206 BOND | 0.3161759235 | $739,237 | $739,237 | $233.73 | | |
| SCH206MO | School 206 Enrichment | 0.4547169547 | $739,237 | $739,237 | $336.14 | | |
| ST | State School | 1.3035497053 | $739,237 | $739,237 | $963.63 | | |
| ST2 | State School Part 2 | 0.8169543533 | $739,237 | $739,237 | $603.92 | | |
| SWHIDPRBD | P & R S Whidbey BOND | 0.0152817568 | $739,237 | $739,237 | $11.30 | | |
| SWHIDPRBD2 | P & R S Whidbey BOND2 | 0.0138911264 | $739,237 | $739,237 | $10.27 | | |
| SWHIDPRMT | P & R S Whidbey GEN | 0.2053334452 | $739,237 | $739,237 | $151.79 | | |
| | Total Tax Rate: | 6.6934522006 | | | | | |
| | | | | Taxes w/Current Exemptions: | $4,948.03 | | |
| | | | | Taxes w/o Exemptions: | $4,948.03 | | |
Improvement / Building
| Improvement #1: | RESIDENTIAL | State Code: | Y | 3063.7 sqft | Value: | $359,237 |
| Bathrooms: | 1.5 | Bedrooms: | 3 | | Ceiling: | DRYWALL PAINTED | Exterior Wall/Cover: | CEMENT FIBER | | Floor Covering: | SOFTWOOD/VINYL 80-20 | Floor Structure: | WOOD W/SUBFLOOR | | Foundation: | CONCRETE | Heating: | FHA GAS | | Interior Finish: | DRYWALL PAINT | Plumbing Fixture Cnt: | 7 | | Roof Slope: | 8" IN 12" | Roof Structure/Cover: | CJ ASPHALT |
|
| | Type | Description | Class CD | Sub Class CD | Year Built | Area |
| | BAS | BASE/MAIN FLOOR | 3 | 0 | 1958 | 2176.0 |
| | UPH | HALF STORY | 3 | 0 | 1958 | 887.7 |
| | OWP | OPEN WOOD PORCH W/STEPS | 3 | 0 | 1958 | 64.0 |
Sketch
Property Image
Land
| 1 | 18 | AC (02.01-03.00) | 2.3600 | 102801.60 | 0.00 | 0.00 | 1.00 | $380,000 | $0 |
Roll Value History
| 2026 | N/A | N/A | N/A | N/A | N/A |
| 2025 | $359,237 | $380,000 | $0 | $739,237 | $739,237 |
| 2024 | $363,451 | $360,000 | $0 | $723,451 | $723,451 |
| 2023 | $367,664 | $330,000 | $0 | $697,664 | $697,664 |
| 2022 | $336,744 | $280,000 | $0 | $616,744 | $616,744 |
| 2021 | $296,129 | $260,000 | $0 | $556,129 | $556,129 |
| 2020 | $264,028 | $230,000 | $0 | $494,028 | $494,028 |
| 2019 | $215,825 | $260,000 | $0 | $475,825 | $475,825 |
| 2018 | $216,473 | $170,000 | $0 | $386,473 | $386,473 |
| 2017 | $187,843 | $150,000 | $0 | $337,843 | $337,843 |
| 2016 | $190,080 | $145,000 | $0 | $335,080 | $335,080 |
| 2015 | $192,316 | $145,000 | $0 | $337,316 | $337,316 |
| 2014 | $177,753 | $140,250 | $0 | $318,003 | $318,003 |
| 2013 | $107,745 | $140,250 | $0 | $247,995 | $247,995 |
| 2012 | $109,742 | $140,250 | $0 | $249,992 | $249,992 |
| 2011 | $111,735 | $165,000 | $0 | $276,735 | $276,735 |
| 2010 | $116,108 | $165,000 | $0 | $281,108 | $281,108 |
| 2009 | $121,583 | $200,000 | $0 | $321,583 | $321,583 |
| 2008 | $131,592 | $245,000 | $0 | $376,592 | $376,592 |
| 2007 | $133,594 | $135,000 | $0 | $268,594 | $268,594 |
Deed and Sales History
| 1 | 11/17/2023 | QCD | Quit Claim Deed | MASANIAI, CHRIS | TOGETHER FARM, LLC | | | $0.00 | 62257 | 4581032 |
| 2 | 12/30/2024 | QCD | Quit Claim Deed | MASANIAI, POLLY | MASANIAI, CHRIS | | | $0.00 | 62256 | 4581031 |
| 3 | 06/29/2013 | WD | Warranty Deed | HIGHTOWER, MICHELLE L | MASANIAI, CHRIS | | | $300,000.00 | 11873 | 4343017 |
| 4 | 07/29/2005 | PRD | Personal Representatives Deed | VAUGHN, LEANNE J | HIGHTOWER, MICHELLE L | | | $0.00 | 53691 | 4142615 |
| 5 | 12/30/1998 | PRD | Personal Representatives Deed | Unknown | VAUGHN, LEANNE J | | | $0.00 | 90019 | 99000309 |
Payout Agreement
| No payout information available.. |