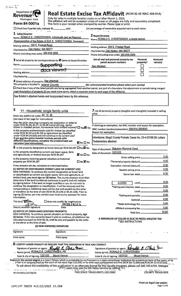
Property
Account |
| Property ID: | 516061 | Abbreviated Legal Description: | IN NW SW: BG SWCR NW SW S88*E454.03' TPB N38*E256' S88*E TO WLN SILVER LAKE LOOP RD SWLY ALG SD RD TP S88*E OF TPB N88*W TPB TGW & SUB TO EZ FR 163-0560 TR D SP 79-282 |
| Geographic ID: | R23202-142-0750 | Agent Code: | |
| Type: | Real | | |
| Tax Area: | 112 - APPRAISER-OH Schl Dist, outside OH, improved, greater than 1 acre | Land Use Code | 11 |
| Open Space: | N | DFL | N |
| Historic Property: | N | Remodel Property: | N |
| Multi-Family Redevelopment: | N | | |
| Township: | 32 | Section: | 02 |
| Range: | R2 |
Location |
| Address: | 2098 BLACK CAT LN OAK HARBOR, WA 98277 | Mapsco: | |
| Neighborhood: | Cycle 6 | Map ID: | 537 |
| Neighborhood CD: | 6 |
Owner |
| Name: | CASE JR, JEFFREY B | Owner ID: | 25738 |
| Mailing Address: | COLLEEN S CASE 2098 BLACK CAT LN OAK HARBOR, WA 98277-8683 | % Ownership: | 100.0000000000% |
| | | Exemptions: | SNR/DSBL |
Taxes and Assessment Details
Values
| (+) Improvement Homesite Value: | + | $298,875 | |
| (+) Improvement Non-Homesite Value: | + | $0 | |
| (+) Land Homesite Value: | + | $210,000 | |
| (+) Land Non-Homesite Value: | + | $0 | |
| (+) Curr Use (HS): | + | $0 | $0 |
| (+) Curr Use (NHS): | + | $0 | $0 |
| | | -------------------------- | |
| (=) Market Value: | = | $508,875 | |
| (–) Productivity Loss: | – | $0 | |
| | | -------------------------- | |
| (=) Subtotal: | = | $508,875 | |
| (+) Senior Appraised Value: | + | $466,715 | |
| (+) Non-Senior Appraised Value: | + | $0 | |
| | | -------------------------- | |
| (=) Total Appraised Value: | = | $466,715 | |
| (–) Senior Exemption Loss: | – | $280,029 | |
| (–) Exemption Loss: | – | $0 | |
| | | -------------------------- | |
| (=) Taxable Value: | = | $186,686 | |
Taxing Jurisdiction
| Owner: | CASE JR, JEFFREY B | | |
| % Ownership: | 100.0000000000% | | |
| Total Value: | $508,875 | | |
| Tax Area: | 112 - APPRAISER-OH Schl Dist, outside OH, improved, greater than 1 acre |
| CF | Conservation Futures | 0.0316035091 | $508,875 | $186,686 | $5.90 | | |
| CEM1 | Cemetery #1 | 0.0040320932 | $508,875 | $186,686 | $0.75 | | |
| FIRE2 | Fire & Rescue Dist #2 N Whidbey GEN | 0.5475949600 | $508,875 | $186,686 | $102.23 | | |
| HOBOND | Hospital BOND | 0.0000000000 | $508,875 | $0 | $0.00 | | |
| HOGEN | Hospital GEN | 0.3902502903 | $508,875 | $186,686 | $72.85 | | |
| CE | County Current Expense | 0.3708482477 | $508,875 | $186,686 | $69.23 | | |
| CR | County Roads | 0.4584763726 | $508,875 | $186,686 | $85.59 | | |
| ISLANDEMS | Hospital GEN (EMS) | 0.5000000000 | $508,875 | $186,686 | $93.34 | | |
| LIB | Library Sno-Isle GEN | 0.3153421757 | $508,875 | $186,686 | $58.87 | | |
| NWHIDPRMT | P & R N Whidbey GEN | 0.2004466701 | $508,875 | $186,686 | $37.42 | | |
| SCH201MO | School 201 Enrichment | 0.0000000000 | $508,875 | $0 | $0.00 | | |
| ST | State School | 1.3035497053 | $508,875 | $186,686 | $243.35 | | |
| ST2 | State School Part 2 | 0.0000000000 | $508,875 | $0 | $0.00 | | |
| | Total Tax Rate: | 4.1221440240 | | | | | |
| | | | | Taxes w/Current Exemptions: | $769.53 | | |
| | | | | Taxes w/o Exemptions: | $3,555.06 | | |
Improvement / Building
| Improvement #1: | RESIDENTIAL | State Code: | Y | 1780.5 sqft | Value: | $298,875 |
| Bathrooms: | 2 | Bedrooms: | 3 | | Ceiling: | DRYWALL PAINTED | Exterior Wall/Cover: | CEMENT FIBER | | Floor Covering: | CARPET/VINYL 80-20 | Floor Structure: | WOOD W/SUBFLOOR | | Foundation: | CONCRETE | Heating: | FHA GAS | | Interior Finish: | DRYWALL PAINT | Plumbing Fixture Cnt: | 9 | | Roof Slope: | 5" IN 12" | Roof Structure/Cover: | CJ ASPHALT |
|
| | Type | Description | Class CD | Sub Class CD | Year Built | Area |
| | BAS | BASE/MAIN FLOOR | 3 | 0 | 2005 | 1780.5 |
| | OP3 | OPEN PORCH W/ROOF | 3 | 0 | 2005 | 12.7 |
| | AGR | ATTACHED GARAGE | 3 | 0 | 2005 | 484.0 |
| | OWP | OPEN WOOD PORCH W/STEPS | 3 | 0 | 2005 | 385.4 |
| | UTY | STORAGE/UTILITY | 3 | 0 | 2005 | 120.0 |
Sketch
Property Image
Land
| 1 | 17 | AC (01.01-02.00) | 0.0000 | 0.00 | 0.00 | 0.00 | 1.00 | $210,000 | $0 |
Roll Value History
| 2026 | N/A | N/A | N/A | N/A | N/A |
| 2025 | $298,875 | $210,000 | $0 | $508,875 | $186,686 |
| 2024 | $302,464 | $210,000 | $0 | $512,464 | $186,686 |
| 2023 | $306,054 | $210,000 | $0 | $516,054 | $186,686 |
| 2022 | $266,715 | $200,000 | $0 | $466,715 | $396,715 |
| 2021 | $234,768 | $130,000 | $0 | $364,768 | $364,768 |
| 2020 | $228,947 | $130,000 | $0 | $358,947 | $358,947 |
| 2019 | $170,277 | $185,000 | $0 | $355,277 | $355,277 |
| 2018 | $170,770 | $165,000 | $0 | $335,770 | $335,770 |
| 2017 | $171,756 | $150,000 | $0 | $321,756 | $321,756 |
| 2016 | $167,625 | $100,000 | $0 | $267,625 | $267,625 |
| 2015 | $169,530 | $100,000 | $0 | $269,530 | $269,530 |
| 2014 | $171,435 | $100,000 | $0 | $271,435 | $271,435 |
| 2013 | $173,340 | $91,800 | $0 | $265,140 | $265,140 |
| 2012 | $175,244 | $91,800 | $0 | $267,044 | $267,044 |
| 2011 | $177,149 | $102,000 | $0 | $279,149 | $279,149 |
| 2010 | $179,836 | $102,000 | $0 | $281,836 | $281,836 |
| 2009 | $187,337 | $123,250 | $0 | $310,587 | $310,587 |
| 2008 | $191,240 | $123,250 | $0 | $314,490 | $314,490 |
| 2007 | $193,192 | $123,250 | $0 | $316,442 | $316,442 |
Deed and Sales History
| 1 | 05/17/2023 | QCD | Quit Claim Deed | CASE JR TRUSTEE, JEFFREY BURTON | CASE JR, JEFFREY B | | | $0.00 | 56880 | 4560560 |
| 2 | 03/04/2016 | TRUSTEED | Trustee's Deed | CASE JR, JEFFREY B | CASE JR TRUSTEE, JEFFREY BURTON | | | $0.00 | 23604 | 4396194 |
| 3 | 06/15/2004 | WD | Warranty Deed | SHAMROCK, LANDS I | CASE JR, JEFFREY B | | | $54,000.00 | 42655 | 4104237 |
| 4 | 12/01/1994 | QCD | Quit Claim Deed | PORT, GARDNER T | SHAMROCK, LANDS I | | | $19,400.00 | 45000 | 94025530 |
| 5 | 12/01/1992 | WD | Warranty Deed | OVENELL, STANLEY | PORT, GARDNER T | | | $34,150.00 | 24950 | 92024425 |
| 6 | 09/01/1992 | WD | Warranty Deed | LAYMAN, KENNETH M | OVENELL, STANLEY | | | $17,600.00 | 24949 | 92024424 |
| 7 | 02/01/1985 | TRUSTEED | Trustee's Deed | ELMASHNI, M, Y | LAYMAN, KENNETH M | | | $0.00 | 50328 | 85001525 |
| 8 | 03/01/1981 | WD | Warranty Deed | STRAWBERRY, POINT P | ELMASHNI, M, Y | | | $26,000.00 | 10652 | 380152 |
| 9 | 03/01/1980 | WD | Warranty Deed | Unknown | STRAWBERRY, POINT P | | | $156,000.00 | 1107 | 367179 |
Payout Agreement
| No payout information available.. |