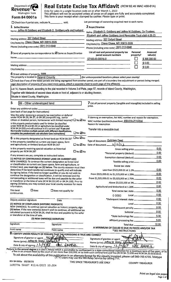
Property
Account |
| Property ID: | 516070 | Abbreviated Legal Description: | IN NW SW: BG NWCR NW SW S2*W558.26' TPB E500' S2*W 260' S88*E TO CLN EZ DESC SP 79-282 S38*W630' N88*W 454.03' TO SWCR NW SW N TPB FR 163-0560 |
| Geographic ID: | R23202-170-0360 | Agent Code: | |
| Type: | Real | | |
| Tax Area: | 112 - APPRAISER-OH Schl Dist, outside OH, improved, greater than 1 acre | Land Use Code | 11 |
| Open Space: | N | DFL | N |
| Historic Property: | N | Remodel Property: | N |
| Multi-Family Redevelopment: | N | | |
| Township: | 32 | Section: | 02 |
| Range: | R2 |
Location |
| Address: | 1626 VIEW HAVEN DR OAK HARBOR, WA 98277 | Mapsco: | |
| Neighborhood: | Cycle 6 | Map ID: | 537 |
| Neighborhood CD: | 6 |
Owner |
| Name: | ECKLES III, ROBERT K | Owner ID: | 185743 |
| Mailing Address: | YVONNE K ECKLES 1626 VIEW HAVEN DR OAK HARBOR, WA 98277 | % Ownership: | 100.0000000000% |
| | | Exemptions: | |
Taxes and Assessment Details
Values
| (+) Improvement Homesite Value: | + | $0 | |
| (+) Improvement Non-Homesite Value: | + | $642,658 | |
| (+) Land Homesite Value: | + | $0 | |
| (+) Land Non-Homesite Value: | + | $380,000 | |
| (+) Curr Use (HS): | + | $0 | $0 |
| (+) Curr Use (NHS): | + | $0 | $0 |
| | | -------------------------- | |
| (=) Market Value: | = | $1,022,658 | |
| (–) Productivity Loss: | – | $0 | |
| | | -------------------------- | |
| (=) Subtotal: | = | $1,022,658 | |
| (+) Senior Appraised Value: | + | $0 | |
| (+) Non-Senior Appraised Value: | + | $1,022,658 | |
| | | -------------------------- | |
| (=) Total Appraised Value: | = | $1,022,658 | |
| (–) Senior Exemption Loss: | – | $0 | |
| (–) Exemption Loss: | – | $0 | |
| | | -------------------------- | |
| (=) Taxable Value: | = | $1,022,658 | |
Taxing Jurisdiction
| Owner: | ECKLES III, ROBERT K | | |
| % Ownership: | 100.0000000000% | | |
| Total Value: | $1,022,658 | | |
| Tax Area: | 112 - APPRAISER-OH Schl Dist, outside OH, improved, greater than 1 acre |
| CF | Conservation Futures | 0.0316035091 | $1,022,658 | $1,022,658 | $32.32 | | |
| CEM1 | Cemetery #1 | 0.0040320932 | $1,022,658 | $1,022,658 | $4.12 | | |
| FIRE2 | Fire & Rescue Dist #2 N Whidbey GEN | 0.5475949600 | $1,022,658 | $1,022,658 | $560.00 | | |
| HOBOND | Hospital BOND | 0.1910887512 | $1,022,658 | $1,022,658 | $195.42 | | |
| HOGEN | Hospital GEN | 0.3902502903 | $1,022,658 | $1,022,658 | $399.09 | | |
| CE | County Current Expense | 0.3708482477 | $1,022,658 | $1,022,658 | $379.25 | | |
| CR | County Roads | 0.4584763726 | $1,022,658 | $1,022,658 | $468.86 | | |
| ISLANDEMS | Hospital GEN (EMS) | 0.5000000000 | $1,022,658 | $1,022,658 | $511.33 | | |
| LIB | Library Sno-Isle GEN | 0.3153421757 | $1,022,658 | $1,022,658 | $322.49 | | |
| NWHIDPRMT | P & R N Whidbey GEN | 0.2004466701 | $1,022,658 | $1,022,658 | $204.99 | | |
| SCH201MO | School 201 Enrichment | 1.8559231640 | $1,022,658 | $1,022,658 | $1,897.97 | | |
| ST | State School | 1.3035497053 | $1,022,658 | $1,022,658 | $1,333.09 | | |
| ST2 | State School Part 2 | 0.8169543533 | $1,022,658 | $1,022,658 | $835.46 | | |
| | Total Tax Rate: | 6.9861102925 | | | | | |
| | | | | Taxes w/Current Exemptions: | $7,144.39 | | |
| | | | | Taxes w/o Exemptions: | $7,144.39 | | |
Improvement / Building
| Improvement #1: | RESIDENTIAL | State Code: | Y | 3748.4 sqft | Value: | $642,658 |
| Bathrooms: | 2.75 | Bedrooms: | 3 | | Ceiling: | DRYWALL PAINTED | Cooling: | HEAT PUMP/CONV/V | | Exterior Wall/Cover: | PLY/HARDBOARD T-111 | Floor Covering: | HARDWOOD/CARP 60-40 | | Floor Structure: | WOOD W/SUBFLOOR | Foundation: | CONCRETE | | Interior Finish: | DRYWALL PAINT | Plumbing Fixture Cnt: | 14 | | Roof Slope: | 5" IN 12" | Roof Structure/Cover: | CJ ASPHALT |
|
| | Type | Description | Class CD | Sub Class CD | Year Built | Area |
| | BAS | BASE/MAIN FLOOR | 4 | 0 | 2013 | 1941.4 |
| | DWN | DOWNSTAIRS LIVING AREA | 4 | 0 | 2013 | 1415.0 |
| | BIG | BUILT IN GARAGE | 4 | 0 | 2013 | 812.0 |
| | UPS | UPPER STORY | 4 | 0 | 2013 | 392.0 |
| | oBAR | BARN | 4 | 0 | 2013 | 0.0 |
| | OWC | OPEN WOOD PORCH W/STEPS/ROOF/C | 4 | 0 | 2013 | 170.0 |
| | OWC | OPEN WOOD PORCH W/STEPS/ROOF/C | 4 | 0 | 2013 | 140.0 |
| | OP4 | OPEN PORCH W/CEILING-ROOF | 4 | 0 | 2013 | 72.0 |
Sketch
Property Image
Land
| 1 | 35 | AC (10.00-30.99) | 10.7600 | 468705.60 | 0.00 | 0.00 | 1.00 | $380,000 | $0 |
Roll Value History
| 2026 | N/A | N/A | N/A | N/A | N/A |
| 2025 | $642,658 | $380,000 | $0 | $1,022,658 | $1,022,658 |
| 2024 | $648,328 | $350,000 | $0 | $998,328 | $998,328 |
| 2023 | $653,288 | $340,000 | $0 | $993,288 | $993,288 |
| 2022 | $614,306 | $330,000 | $0 | $944,306 | $944,306 |
| 2021 | $539,021 | $250,000 | $0 | $789,021 | $789,021 |
| 2020 | $525,521 | $230,000 | $0 | $755,521 | $755,521 |
| 2019 | $450,441 | $270,000 | $0 | $720,441 | $720,441 |
| 2018 | $451,620 | $245,000 | $0 | $696,620 | $696,620 |
| 2017 | $453,978 | $200,000 | $0 | $653,978 | $653,978 |
| 2016 | $458,693 | $185,000 | $0 | $643,693 | $643,693 |
| 2015 | $463,408 | $185,000 | $0 | $648,408 | $648,408 |
| 2014 | $463,408 | $139,000 | $0 | $602,408 | $602,408 |
| 2013 | $52,824 | $139,000 | $0 | $191,824 | $191,824 |
| 2012 | $0 | $107,600 | $0 | $107,600 | $107,600 |
| 2011 | $0 | $107,600 | $0 | $107,600 | $107,600 |
| 2010 | $0 | $107,600 | $0 | $107,600 | $107,600 |
| 2009 | $0 | $215,200 | $0 | $215,200 | $215,200 |
| 2008 | $0 | $172,160 | $0 | $172,160 | $172,160 |
| 2007 | $0 | $124,816 | $0 | $124,816 | $124,816 |
Deed and Sales History
| 1 | 07/03/2001 | WD | Warranty Deed | SHAMROCK, LANDS I | ECKLES III, ROBERT K | | | $131,000.00 | 12543 | 20036567 |
| 2 | 12/01/1994 | QCD | Quit Claim Deed | PORT, GARDNER T | SHAMROCK, LANDS I | | | $74,100.00 | 45000 | 94025530 |
| 3 | 12/01/1992 | WD | Warranty Deed | OVENELL, STANLEY | PORT, GARDNER T | | | $130,550.00 | 24950 | 92024425 |
| 4 | 09/01/1992 | WD | Warranty Deed | LAYMAN, KENNETH M | OVENELL, STANLEY | | | $67,200.00 | 24949 | 92024424 |
| 5 | 02/01/1985 | TRUSTEED | Trustee's Deed | ELMASHNI, M, Y | LAYMAN, KENNETH M | | | $0.00 | 50328 | 85001525 |
| 6 | 03/01/1981 | WD | Warranty Deed | STRAWBERRY, POINT P | ELMASHNI, M, Y | | | $116,000.00 | 10652 | 380152 |
| 7 | 03/01/1980 | WD | Warranty Deed | Unknown | STRAWBERRY, POINT P | | | $156,000.00 | 1107 | 367179 |
Payout Agreement
| No payout information available.. |