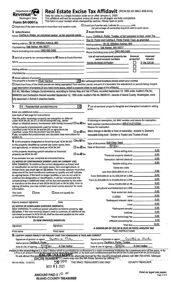
Property
Account |
| Property ID: | 51641 | Abbreviated Legal Description: | 106 - S60'OF N324'OF GL 1 & OF NW NE LY W OF E HARBOR RD |
| Geographic ID: | R22911-493-2950 | Agent Code: | |
| Type: | Real | | |
| Tax Area: | 762 - APPRAISER-S Whid Schl Dist, Special District, improved, greater than 1 acre | Land Use Code | 11 |
| Open Space: | N | DFL | N |
| Historic Property: | N | Remodel Property: | N |
| Multi-Family Redevelopment: | N | | |
| Township: | 29 | Section: | 11 |
| Range: | R2 |
Location |
| Address: | 5222 EAST HARBOR RD FREELAND, WA 98249 | Mapsco: | |
| Neighborhood: | Cycle 3 | Map ID: | 316 |
| Neighborhood CD: | 3 |
Owner |
| Name: | COSTELLO, MARCIE | Owner ID: | 300092 |
| Mailing Address: | 5222 EAST HARBOR RD FREELAND, WA 98249 | % Ownership: | 100.0000000000% |
| | | Exemptions: | |
Taxes and Assessment Details
Values
| (+) Improvement Homesite Value: | + | $0 | |
| (+) Improvement Non-Homesite Value: | + | $172,302 | |
| (+) Land Homesite Value: | + | $0 | |
| (+) Land Non-Homesite Value: | + | $550,000 | |
| (+) Curr Use (HS): | + | $0 | $0 |
| (+) Curr Use (NHS): | + | $0 | $0 |
| | | -------------------------- | |
| (=) Market Value: | = | $722,302 | |
| (–) Productivity Loss: | – | $0 | |
| | | -------------------------- | |
| (=) Subtotal: | = | $722,302 | |
| (+) Senior Appraised Value: | + | $0 | |
| (+) Non-Senior Appraised Value: | + | $722,302 | |
| | | -------------------------- | |
| (=) Total Appraised Value: | = | $722,302 | |
| (–) Senior Exemption Loss: | – | $0 | |
| (–) Exemption Loss: | – | $0 | |
| | | -------------------------- | |
| (=) Taxable Value: | = | $722,302 | |
Taxing Jurisdiction
| Owner: | COSTELLO, MARCIE | | |
| % Ownership: | 100.0000000000% | | |
| Total Value: | $722,302 | | |
| Tax Area: | 762 - APPRAISER-S Whid Schl Dist, Special District, improved, greater than 1 acre |
| CF | Conservation Futures | 0.0316035091 | $722,302 | $722,302 | $22.83 | | |
| FIRE3 | Fire & Rescue Dist #3 S Whidbey GEN | 1.2004855531 | $722,302 | $722,302 | $867.11 | | |
| HOBOND | Hospital BOND | 0.1910887512 | $722,302 | $722,302 | $138.02 | | |
| HOGEN | Hospital GEN | 0.3902502903 | $722,302 | $722,302 | $281.88 | | |
| CE | County Current Expense | 0.3708482477 | $722,302 | $722,302 | $267.86 | | |
| CR | County Roads | 0.4584763726 | $722,302 | $722,302 | $331.16 | | |
| ISLANDEMS | Hospital GEN (EMS) | 0.5000000000 | $722,302 | $722,302 | $361.15 | | |
| LIB | Library Sno-Isle GEN | 0.3153421757 | $722,302 | $722,302 | $227.77 | | |
| PORTWHID | Port of S Whidbey GEN | 0.1094540357 | $722,302 | $722,302 | $79.06 | | |
| SCH206BOND | School 206 BOND | 0.3161759235 | $722,302 | $722,302 | $228.37 | | |
| SCH206MO | School 206 Enrichment | 0.4547169547 | $722,302 | $722,302 | $328.44 | | |
| ST | State School | 1.3035497053 | $722,302 | $722,302 | $941.56 | | |
| ST2 | State School Part 2 | 0.8169543533 | $722,302 | $722,302 | $590.09 | | |
| SWHIDPRBD | P & R S Whidbey BOND | 0.0152817568 | $722,302 | $722,302 | $11.04 | | |
| SWHIDPRBD2 | P & R S Whidbey BOND2 | 0.0138911264 | $722,302 | $722,302 | $10.03 | | |
| SWHIDPRMT | P & R S Whidbey GEN | 0.2053334452 | $722,302 | $722,302 | $148.31 | | |
| | Total Tax Rate: | 6.6934522006 | | | | | |
| | | | | Taxes w/Current Exemptions: | $4,834.68 | | |
| | | | | Taxes w/o Exemptions: | $4,834.68 | | |
Improvement / Building
| Improvement #1: | RESIDENTIAL | State Code: | Y | 1078.0 sqft | Value: | $172,302 |
| Bathrooms: | 1 | Bedrooms: | 2 | | Ceiling: | DRYWALL PAINTED | Exterior Wall/Cover: | WOOD SIDING | | Floor Covering: | HARDWOOD/CARP 80-20 | Floor Structure: | WOOD W/SUBFLOOR | | Foundation: | WOOD BLOCKS | Heating: | WALL HEAT ELECTRIC | | Interior Finish: | DRYWALL PAINT | Plumbing Fixture Cnt: | 6 | | Roof Slope: | 4" IN 12" | Roof Structure/Cover: | CJ ASPHALT |
|
| | Type | Description | Class CD | Sub Class CD | Year Built | Area |
| | BAS | BASE/MAIN FLOOR | 3 | 0 | 1946 | 792.0 |
| | OWP | OPEN WOOD PORCH W/STEPS | 3 | 0 | 1946 | 199.2 |
| | LOF | LOFT | 3 | 0 | 1946 | 286.0 |
| | ENP | ENCLOSED PORCH | 3 | 0 | 1946 | 140.0 |
| | UTY | STORAGE/UTILITY | 3 | 0 | 1946 | 325.0 |
| | OWP | OPEN WOOD PORCH W/STEPS | 3 | 0 | 1946 | 252.0 |
Sketch
Property Image
Land
| 1 | HB | HIGH BLUFF | 0.0000 | 0.00 | 60.00 | 0.00 | 1.00 | $550,000 | $0 |
Roll Value History
| 2026 | N/A | N/A | N/A | N/A | N/A |
| 2025 | $172,302 | $550,000 | $0 | $722,302 | $722,302 |
| 2024 | $174,592 | $550,000 | $0 | $724,592 | $724,592 |
| 2023 | $176,882 | $550,000 | $0 | $726,882 | $726,882 |
| 2022 | $162,243 | $575,000 | $0 | $737,243 | $737,243 |
| 2021 | $142,886 | $200,000 | $0 | $342,886 | $342,886 |
| 2020 | $139,321 | $200,000 | $0 | $339,321 | $339,321 |
| 2019 | $94,004 | $200,000 | $0 | $294,004 | $294,004 |
| 2018 | $94,313 | $200,000 | $0 | $294,313 | $294,313 |
| 2017 | $94,926 | $200,000 | $0 | $294,926 | $294,926 |
| 2016 | $96,158 | $200,000 | $0 | $296,158 | $296,158 |
| 2015 | $97,392 | $200,000 | $0 | $297,392 | $297,392 |
| 2014 | $106,454 | $200,000 | $0 | $306,454 | $306,454 |
| 2013 | $76,494 | $152,426 | $0 | $228,920 | $228,920 |
| 2012 | $77,519 | $152,426 | $0 | $229,945 | $229,945 |
| 2011 | $78,544 | $152,426 | $0 | $230,970 | $230,970 |
| 2010 | $86,791 | $152,426 | $0 | $239,217 | $239,217 |
| 2009 | $89,526 | $217,753 | $0 | $307,279 | $307,279 |
| 2008 | $90,828 | $251,625 | $0 | $342,453 | $342,453 |
| 2007 | $25,141 | $221,770 | $0 | $246,911 | $246,911 |
Deed and Sales History
| 1 | 06/28/2021 | QCD | Quit Claim Deed | COSTELLO, STEVEN | COSTELLO, MARCIE | | | $0.00 | 49029 | 4523591 |
| 2 | 05/27/2014 | WD | Warranty Deed | RELIC, RON | COSTELLO, STEVEN | | | $295,000.00 | 15451 | 4360088 |
| 3 | 03/15/2004 | WD | Warranty Deed | CHADWICK, JOHN L | RELIC, RON | | | $236,000.00 | 40935 | 4094011 |
| 4 | 02/18/2000 | WD | Warranty Deed | GUY, DWIGHT L | CHADWICK, JOHN L | | | $161,800.00 | 578 | 20003066 |
| 5 | 05/26/1999 | WD | Warranty Deed | LOTZ, ALYCE E | GUY, DWIGHT L | | | $131,548.00 | 92053 | 99012830 |
| 6 | 03/01/1990 | OTHER | Other - Misc. Documents | LOTZ, CLIFFORD W | LOTZ, ALYCE E | | | $0.00 | 63553 | 89003282 |
| 7 | 01/01/1900 | OTHER | Other - Misc. Documents | Unknown | LOTZ, CLIFFORD W | | | $0.00 | 0 | 0 |
Payout Agreement
| No payout information available.. |