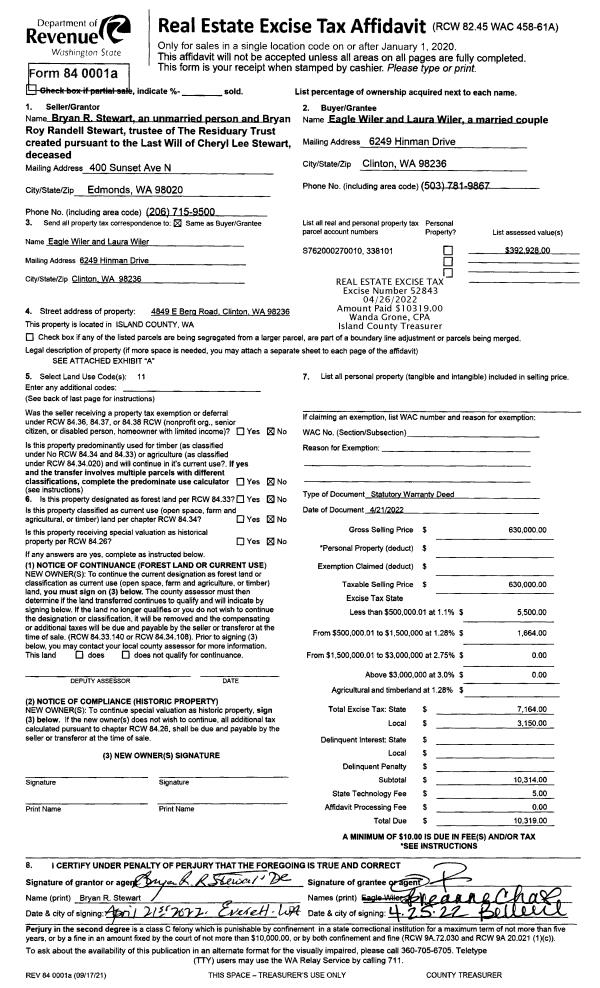
Property
Account |
| Property ID: | 517391 | Abbreviated Legal Description: | SUNRISE EAST CONDO APT 6 12.5% INT |
| Geographic ID: | S8252-00-00006-0 | Agent Code: | |
| Type: | Real | | |
| Tax Area: | 510 - APPRAISER-Stan/Cam Schl Dist, improved & 1 acre or less | Land Use Code | 14 |
| Open Space: | N | DFL | N |
| Historic Property: | N | Remodel Property: | N |
| Multi-Family Redevelopment: | N | | |
| Township: | | Section: | |
| Range: | |
Location |
| Address: | 1480 FAIRWAY DR APT 6 CAMANO ISLAND, WA 98282 | Mapsco: | |
| Neighborhood: | 56*RR-sunrise est | Map ID: | 930 |
| Neighborhood CD: | 56*RRsunri |
Owner |
| Name: | CHOW, CHARLES | Owner ID: | 269714 |
| Mailing Address: | PETTY CHOW 11741 COTSWOLD DR FRISCO, TX 75035 | % Ownership: | 100.0000000000% |
| | | Exemptions: | |
Taxes and Assessment Details
Values
| (+) Improvement Homesite Value: | + | $0 | |
| (+) Improvement Non-Homesite Value: | + | $238,407 | |
| (+) Land Homesite Value: | + | $0 | |
| (+) Land Non-Homesite Value: | + | $210,000 | |
| (+) Curr Use (HS): | + | $0 | $0 |
| (+) Curr Use (NHS): | + | $0 | $0 |
| | | -------------------------- | |
| (=) Market Value: | = | $448,407 | |
| (–) Productivity Loss: | – | $0 | |
| | | -------------------------- | |
| (=) Subtotal: | = | $448,407 | |
| (+) Senior Appraised Value: | + | $0 | |
| (+) Non-Senior Appraised Value: | + | $448,407 | |
| | | -------------------------- | |
| (=) Total Appraised Value: | = | $448,407 | |
| (–) Senior Exemption Loss: | – | $0 | |
| (–) Exemption Loss: | – | $0 | |
| | | -------------------------- | |
| (=) Taxable Value: | = | $448,407 | |
Taxing Jurisdiction
| Owner: | CHOW, CHARLES | | |
| % Ownership: | 100.0000000000% | | |
| Total Value: | $448,407 | | |
| Tax Area: | 510 - APPRAISER-Stan/Cam Schl Dist, improved & 1 acre or less |
| CF | Conservation Futures | 0.0316035091 | $448,407 | $448,407 | $14.17 | | |
| EMS1 | Fire & Rescue Dist #1 Camano GEN (EMS) | 0.3677864386 | $448,407 | $448,407 | $164.92 | | |
| FIRE1 | Fire & Rescue Dist #1 Camano GEN | 1.2502910536 | $448,407 | $448,407 | $560.64 | | |
| FIRE1BOND | Fire & Rescue Dist #1 Camano BOND | 0.1570001679 | $448,407 | $448,407 | $70.40 | | |
| CE | County Current Expense | 0.3708482477 | $448,407 | $448,407 | $166.29 | | |
| CR | County Roads | 0.4584763726 | $448,407 | $448,407 | $205.58 | | |
| LCIB | Library Sno-Isle BOND (Camano Island) | 0.0396325772 | $448,407 | $448,407 | $17.77 | | |
| LIB | Library Sno-Isle GEN | 0.3153421757 | $448,407 | $448,407 | $141.40 | | |
| SCH205_401 | School 205-401 Enrichment | 1.2698420524 | $448,407 | $448,407 | $569.41 | | |
| SCH205BOND | School 205-401 BOND | 0.9396497583 | $448,407 | $448,407 | $421.35 | | |
| ST | State School | 1.3035497053 | $448,407 | $448,407 | $584.52 | | |
| ST2 | State School Part 2 | 0.8169543533 | $448,407 | $448,407 | $366.33 | | |
| | Total Tax Rate: | 7.3209764117 | | | | | |
| | | | | Taxes w/Current Exemptions: | $3,282.78 | | |
| | | | | Taxes w/o Exemptions: | $3,282.78 | | |
Improvement / Building
| Improvement #1: | RESIDENTIAL | State Code: | A1 | 1472.0 sqft | Value: | $238,407 |
| Bathrooms: | 1.5 | Bedrooms: | 2 | | Ceiling: | DRYWALL PAINTED | Exterior Wall/Cover: | WOOD SIDING | | Floor Covering: | CARPET/VINYL 60-40 | Floor Structure: | WOOD W/SUBFLOOR | | Foundation: | CONCRETE | Heating: | WALL HEAT ELECTRIC | | Interior Finish: | DRYWALL PAINT | Plumbing Fixture Cnt: | 8 | | Roof Slope: | 5" IN 12" | Roof Structure/Cover: | CJ ALUMINIUM HEAVY |
|
| | Type | Description | Class CD | Sub Class CD | Year Built | Area |
| | BAS | BASE/MAIN FLOOR | 3 | 0 | 1979 | 736.0 |
| | OP1 | OPEN PORCH SLAB | 3 | 0 | 1979 | 224.0 |
| | AGR | ATTACHED GARAGE | 3 | 0 | 1979 | 281.2 |
| | OCP | OPEN CARPORT | 3 | 0 | 1979 | 236.2 |
| | DWN | DOWNSTAIRS LIVING AREA | 3 | 0 | 1979 | 736.0 |
| | OWP | OPEN WOOD PORCH W/STEPS | 3 | 0 | 1979 | 224.0 |
| | OP1 | OPEN PORCH SLAB | 3 | 0 | 1979 | 202.5 |
Sketch
Property Image
Land
| 1 | 61 | MULTIPLE RESIDENCES | 0.2255 | 9823.00 | 0.00 | 0.00 | 1.00 | $210,000 | $0 |
Roll Value History
| 2026 | N/A | N/A | N/A | N/A | N/A |
| 2025 | $238,407 | $210,000 | $0 | $448,407 | $448,407 |
| 2024 | $241,494 | $180,000 | $0 | $421,494 | $421,494 |
| 2023 | $244,580 | $180,000 | $0 | $424,580 | $424,580 |
| 2022 | $224,255 | $180,000 | $0 | $404,255 | $404,255 |
| 2021 | $164,592 | $175,000 | $0 | $339,592 | $339,592 |
| 2020 | $161,106 | $85,000 | $0 | $246,106 | $246,106 |
| 2019 | $118,234 | $130,000 | $0 | $248,234 | $248,234 |
| 2018 | $129,360 | $100,000 | $0 | $229,360 | $229,360 |
| 2017 | $130,332 | $57,777 | $0 | $188,109 | $188,109 |
| 2016 | $132,277 | $57,777 | $0 | $190,054 | $190,054 |
| 2015 | $123,141 | $57,777 | $0 | $180,918 | $180,918 |
| 2014 | $124,927 | $57,777 | $0 | $182,704 | $182,704 |
| 2013 | $126,712 | $57,777 | $0 | $184,489 | $184,489 |
| 2012 | $126,126 | $57,777 | $0 | $183,903 | $183,903 |
| 2011 | $126,126 | $57,777 | $0 | $183,903 | $183,903 |
| 2010 | $136,082 | $57,777 | $0 | $193,859 | $193,859 |
| 2009 | $140,186 | $73,137 | $0 | $213,323 | $213,323 |
| 2008 | $141,944 | $73,137 | $0 | $215,081 | $215,081 |
| 2007 | $143,702 | $73,137 | $0 | $216,839 | $216,839 |
Deed and Sales History
| 1 | 03/25/2015 | WD | Warranty Deed | HOWELL TRUSTEE, DAVID LEE | CHOW, CHARLES | | | $202,000.00 | 19040 | 4376066 |
| 2 | 03/25/2015 | QCD | Quit Claim Deed | HOWELL TRUSTEE, DAVID LEE | HOWELL TRUSTEE, DAVID LEE | | | $0.00 | 19039 | 4376065 |
| 3 | 06/12/2014 | TRUSTEED | Trustee's Deed | SWANSON-HAYDEN, JUDY | HOWELL TRUSTEE, DAVID LEE | | | $0.00 | 15712 | 4361139 |
| 4 | 08/02/2004 | WD | Warranty Deed | JENNINGS, PATRICIA A | SWANSON-HAYDEN, JUDY | | | $195,000.00 | 43550 | 4108854 |
| 5 | 10/02/2000 | WD | Warranty Deed | REMINGTON, ELAINE V | JENNINGS, PATRICIA A | | | $149,000.00 | 3796 | 20017456 |
| 6 | 11/02/1998 | OTHER | Other - Misc. Documents | REMINGTON, FREDERICK K | REMINGTON, ELAINE V | | | $0.00 | 68065 | 98021373 |
| 7 | 09/01/1985 | WD | Warranty Deed | BANK, OF S | REMINGTON, FREDERICK K | | | $60,000.00 | 52751 | 85010922 |
| 8 | 01/01/1982 | CD | DNU - Correction Deed | VAN, DEURSEN I | BANK, OF S | | | $1.00 | 20313 | 392978 |
| 9 | 01/01/1900 | OTHER | Other - Misc. Documents | Unknown | VAN, DEURSEN I | | | $0.00 | 0 | 0 |
Payout Agreement
| No payout information available.. |