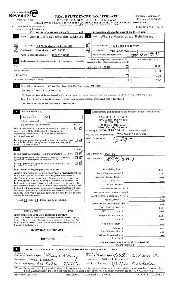
Property
Account |
| Property ID: | 517694 | Abbreviated Legal Description: | IN GL1 LY W OF E CAMANO DR: BG SWCR SEC 6 N330' TPB N330' S89*E1029.24' TO WLN E CAMANO DR S330.02' TP S89*E FR TPB N89*W1025.07' TPB FR 065-0550 EX PT TO IS CO AF#96015408 |
| Geographic ID: | R33106-050-0520 | Agent Code: | |
| Type: | Real | | |
| Tax Area: | 592 - APPRAISER-Stan/Cam Schl Dist, Special Dist, improved, greater than 1 acre | Land Use Code | 11 |
| Open Space: | N | DFL | N |
| Historic Property: | N | Remodel Property: | N |
| Multi-Family Redevelopment: | N | | |
| Township: | 31 | Section: | 06 |
| Range: | R3 |
Location |
| Address: | 354 S EAST CAMANO DR CAMANO ISLAND, WA 98282 | Mapsco: | |
| Neighborhood: | Cycle 5 | Map ID: | 918 |
| Neighborhood CD: | 5 |
Owner |
| Name: | KRUSE, ROBERT S | Owner ID: | 192622 |
| Mailing Address: | LINDA C KRUSE 354 S EAST CAMANO DR CAMANO ISLAND, WA 98282-8738 | % Ownership: | 100.0000000000% |
| | | Exemptions: | |
Taxes and Assessment Details
Values
| (+) Improvement Homesite Value: | + | $0 | |
| (+) Improvement Non-Homesite Value: | + | $592,710 | |
| (+) Land Homesite Value: | + | $0 | |
| (+) Land Non-Homesite Value: | + | $440,000 | |
| (+) Curr Use (HS): | + | $0 | $0 |
| (+) Curr Use (NHS): | + | $0 | $0 |
| | | -------------------------- | |
| (=) Market Value: | = | $1,032,710 | |
| (–) Productivity Loss: | – | $0 | |
| | | -------------------------- | |
| (=) Subtotal: | = | $1,032,710 | |
| (+) Senior Appraised Value: | + | $0 | |
| (+) Non-Senior Appraised Value: | + | $1,032,710 | |
| | | -------------------------- | |
| (=) Total Appraised Value: | = | $1,032,710 | |
| (–) Senior Exemption Loss: | – | $0 | |
| (–) Exemption Loss: | – | $0 | |
| | | -------------------------- | |
| (=) Taxable Value: | = | $1,032,710 | |
Taxing Jurisdiction
| Owner: | KRUSE, ROBERT S | | |
| % Ownership: | 100.0000000000% | | |
| Total Value: | $1,032,710 | | |
| Tax Area: | 592 - APPRAISER-Stan/Cam Schl Dist, Special Dist, improved, greater than 1 acre |
| CF | Conservation Futures | 0.0316035091 | $1,032,710 | $1,032,710 | $32.64 | | |
| EMS1 | Fire & Rescue Dist #1 Camano GEN (EMS) | 0.3677864386 | $1,032,710 | $1,032,710 | $379.82 | | |
| FIRE1 | Fire & Rescue Dist #1 Camano GEN | 1.2502910536 | $1,032,710 | $1,032,710 | $1,291.19 | | |
| FIRE1BOND | Fire & Rescue Dist #1 Camano BOND | 0.1570001679 | $1,032,710 | $1,032,710 | $162.14 | | |
| CE | County Current Expense | 0.3708482477 | $1,032,710 | $1,032,710 | $382.98 | | |
| CR | County Roads | 0.4584763726 | $1,032,710 | $1,032,710 | $473.47 | | |
| LCIB | Library Sno-Isle BOND (Camano Island) | 0.0396325772 | $1,032,710 | $1,032,710 | $40.93 | | |
| LIB | Library Sno-Isle GEN | 0.3153421757 | $1,032,710 | $1,032,710 | $325.66 | | |
| SCH205_401 | School 205-401 Enrichment | 1.2698420524 | $1,032,710 | $1,032,710 | $1,311.38 | | |
| SCH205BOND | School 205-401 BOND | 0.9396497583 | $1,032,710 | $1,032,710 | $970.39 | | |
| ST | State School | 1.3035497053 | $1,032,710 | $1,032,710 | $1,346.19 | | |
| ST2 | State School Part 2 | 0.8169543533 | $1,032,710 | $1,032,710 | $843.68 | | |
| | Total Tax Rate: | 7.3209764117 | | | | | |
| | | | | Taxes w/Current Exemptions: | $7,560.47 | | |
| | | | | Taxes w/o Exemptions: | $7,560.47 | | |
Improvement / Building
| Improvement #1: | RESIDENTIAL | State Code: | Y | 2675.9 sqft | Value: | $592,710 |
| Bathrooms: | 3 | Bedrooms: | 2 | | Ceiling: | DRYWALL PAINTED | Cooling: | HEAT PUMP/CONV/V | | Exterior Wall/Cover: | WOOD SIDING | Floor Covering: | HARDWOOD/CARP 60-40 | | Floor Structure: | WOOD W/SUBFLOOR | Foundation: | CONCRETE | | Heating: | (NONE) | Interior Finish: | DRYWALL PAINT | | Plumbing Fixture Cnt: | 15 | Roof Slope: | 5" IN 12" | | Roof Structure/Cover: | CJ ASPHALT |   |   |
|
| | Type | Description | Class CD | Sub Class CD | Year Built | Area |
| | BAS | BASE/MAIN FLOOR | 4 | 0 | 2005 | 1898.1 |
| | UB8 | BASEMENT UNFINISHED 8" | 4 | 0 | 2005 | 1120.2 |
| | OWP | OPEN WOOD PORCH W/STEPS | 4 | 0 | 2005 | 83.8 |
| | OWP | OPEN WOOD PORCH W/STEPS | 4 | 0 | 2005 | 792.9 |
| | OWC | OPEN WOOD PORCH W/STEPS/ROOF/C | 4 | 0 | 2005 | 15.8 |
| | DWN | DOWNSTAIRS LIVING AREA | 4 | 0 | 2005 | 777.8 |
| | oOBD | Out Buildings | 4 | 0 | 2005 | 0.0 |
| | oOBD | Out Buildings | 4 | 0 | 2005 | 0.0 |
| | OP1 | OPEN PORCH SLAB | 4 | 0 | 2005 | 597.4 |
Sketch
Property Image
Land
| 1 | 32 | AC (03.01-09.99) | 7.7100 | 0.00 | 0.00 | 0.00 | 1.00 | $440,000 | $0 |
Roll Value History
| 2026 | N/A | N/A | N/A | N/A | N/A |
| 2025 | $592,710 | $440,000 | $0 | $1,032,710 | $1,032,710 |
| 2024 | $598,931 | $420,000 | $0 | $1,018,931 | $1,018,931 |
| 2023 | $605,151 | $400,000 | $0 | $1,005,151 | $1,005,151 |
| 2022 | $556,924 | $380,000 | $0 | $936,924 | $936,924 |
| 2021 | $477,331 | $280,000 | $0 | $757,331 | $757,331 |
| 2020 | $466,336 | $220,000 | $0 | $686,336 | $686,336 |
| 2019 | $363,386 | $260,000 | $0 | $623,386 | $623,386 |
| 2018 | $364,264 | $230,000 | $0 | $594,264 | $594,264 |
| 2017 | $365,934 | $200,000 | $0 | $565,934 | $565,934 |
| 2016 | $369,445 | $200,000 | $0 | $569,445 | $569,445 |
| 2015 | $373,099 | $216,400 | $0 | $589,499 | $589,499 |
| 2014 | $376,529 | $216,400 | $0 | $592,929 | $592,929 |
| 2013 | $379,957 | $216,400 | $0 | $596,357 | $596,357 |
| 2012 | $383,387 | $216,400 | $0 | $599,787 | $599,787 |
| 2011 | $386,816 | $270,500 | $0 | $657,316 | $657,316 |
| 2010 | $399,963 | $270,500 | $0 | $670,463 | $670,463 |
| 2009 | $411,585 | $324,600 | $0 | $736,185 | $736,185 |
| 2008 | $416,577 | $331,530 | $0 | $748,107 | $748,107 |
| 2007 | $458,548 | $257,933 | $0 | $716,481 | $716,481 |
Deed and Sales History
| 1 | 05/07/2004 | OTHER | Other - Misc. Documents | Unknown | KRUSE, ROBERT S | | | $0.00 | 0 | 4099460 |
| 2 | 09/05/2003 | WD | Warranty Deed | KIM, YOUNG S | KRUSE, ROBERT S | | | $80,000.00 | 34237 | 4076005 |
| 3 | 09/01/1996 | QCD | Quit Claim Deed | KIM, YOUNG S | KIM, YOUNG S | | | $0.00 | 67112 | 96015408 |
| 4 | 09/01/1989 | WD | Warranty Deed | SIEGEL, HAROLD S | KIM, YOUNG S | | | $35,000.00 | 95090 | 89016395 |
| 5 | 10/01/1981 | TRUSTEED | Trustee's Deed | KNUTSON, E K | SIEGEL, HAROLD S | | | $39,000.00 | 13409 | 389749 |
| 6 | 08/01/1980 | TRUSTEED | Trustee's Deed | KNUTSON, E K | KNUTSON, E K | | | $5,000.00 | 2856 | 372959 |
| 7 | 01/01/1900 | OTHER | Other - Misc. Documents | Unknown | KNUTSON, E K | | | $0.00 | 0 | 0 |
Payout Agreement
| No payout information available.. |