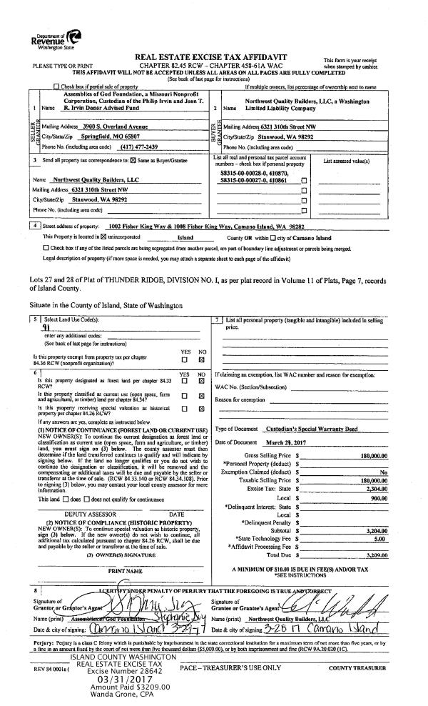
Property
Account |
| Property ID: | 518050 | Abbreviated Legal Description: | TR10N - N/2 OF:BG SE CR N/2 SE W1068.46' N12*W1167.54' N6*W929.92' E359' N744.5' TPB E566.88' N646.97' N31* W100' M/L TO SELY LN CAM HILL RD SWLY TP N89*W FR TPB E113' M/L TPB SUB TO & TGW EZ (LOT 10N SP 80-3.23112.462. 4560 V1 SP P36 AF#373014) EX PT |
| Geographic ID: | R23112-466-4610 | Agent Code: | |
| Type: | Real | | |
| Tax Area: | 512 - APPRAISER-Stan/Cam Schl Dist, improved, greater than 1 acre | Land Use Code | 11 |
| Open Space: | N | DFL | N |
| Historic Property: | N | Remodel Property: | N |
| Multi-Family Redevelopment: | N | | |
| Township: | 31 | Section: | 12 |
| Range: | R2 |
Location |
| Address: | 465 GREEN ISLAND WAY CAMANO ISLAND, WA 98282 | Mapsco: | |
| Neighborhood: | Cycle 5 | Map ID: | 476 |
| Neighborhood CD: | 5 |
Owner |
| Name: | EVERETT TRUSTEE, SARAH E | Owner ID: | 279481 |
| Mailing Address: | 465 CREEN ISLAND WAY CAMANO ISLAND, WA 98282 | % Ownership: | 100.0000000000% |
| | | Exemptions: | |
Taxes and Assessment Details
Values
| (+) Improvement Homesite Value: | + | $0 | |
| (+) Improvement Non-Homesite Value: | + | $539,210 | |
| (+) Land Homesite Value: | + | $0 | |
| (+) Land Non-Homesite Value: | + | $300,000 | |
| (+) Curr Use (HS): | + | $0 | $0 |
| (+) Curr Use (NHS): | + | $0 | $0 |
| | | -------------------------- | |
| (=) Market Value: | = | $839,210 | |
| (–) Productivity Loss: | – | $0 | |
| | | -------------------------- | |
| (=) Subtotal: | = | $839,210 | |
| (+) Senior Appraised Value: | + | $0 | |
| (+) Non-Senior Appraised Value: | + | $839,210 | |
| | | -------------------------- | |
| (=) Total Appraised Value: | = | $839,210 | |
| (–) Senior Exemption Loss: | – | $0 | |
| (–) Exemption Loss: | – | $0 | |
| | | -------------------------- | |
| (=) Taxable Value: | = | $839,210 | |
Taxing Jurisdiction
| Owner: | EVERETT TRUSTEE, SARAH E | | |
| % Ownership: | 100.0000000000% | | |
| Total Value: | $839,210 | | |
| Tax Area: | 512 - APPRAISER-Stan/Cam Schl Dist, improved, greater than 1 acre |
| CF | Conservation Futures | 0.0316035091 | $839,210 | $839,210 | $26.52 | | |
| EMS1 | Fire & Rescue Dist #1 Camano GEN (EMS) | 0.3677864386 | $839,210 | $839,210 | $308.65 | | |
| FIRE1 | Fire & Rescue Dist #1 Camano GEN | 1.2502910536 | $839,210 | $839,210 | $1,049.26 | | |
| FIRE1BOND | Fire & Rescue Dist #1 Camano BOND | 0.1570001679 | $839,210 | $839,210 | $131.76 | | |
| CE | County Current Expense | 0.3708482477 | $839,210 | $839,210 | $311.22 | | |
| CR | County Roads | 0.4584763726 | $839,210 | $839,210 | $384.76 | | |
| LCIB | Library Sno-Isle BOND (Camano Island) | 0.0396325772 | $839,210 | $839,210 | $33.26 | | |
| LIB | Library Sno-Isle GEN | 0.3153421757 | $839,210 | $839,210 | $264.64 | | |
| SCH205_401 | School 205-401 Enrichment | 1.2698420524 | $839,210 | $839,210 | $1,065.66 | | |
| SCH205BOND | School 205-401 BOND | 0.9396497583 | $839,210 | $839,210 | $788.56 | | |
| ST | State School | 1.3035497053 | $839,210 | $839,210 | $1,093.95 | | |
| ST2 | State School Part 2 | 0.8169543533 | $839,210 | $839,210 | $685.60 | | |
| | Total Tax Rate: | 7.3209764117 | | | | | |
| | | | | Taxes w/Current Exemptions: | $6,143.84 | | |
| | | | | Taxes w/o Exemptions: | $6,143.84 | | |
Improvement / Building
| Improvement #1: | RESIDENTIAL | State Code: | Y | 4864.0 sqft | Value: | $539,210 |
| Bathrooms: | 2.5 | Bedrooms: | 4 | | Ceiling: | DRYWALL PAINTED | Exterior Wall/Cover: | WOOD SIDING | | Floor Covering: | VINYL 100% | Floor Structure: | WOOD W/SUBFLOOR | | Foundation: | CONCRETE | Heating: | OIL HEATERS | | Interior Finish: | DRYWALL PAINT | Plumbing Fixture Cnt: | 15 | | Roof Slope: | 4" IN 12" | Roof Structure/Cover: | CJ CONCRETE TILE |
|
| | Type | Description | Class CD | Sub Class CD | Year Built | Area |
| | BAS | BASE/MAIN FLOOR | 3 | 0 | 1983 | 3601.4 |
| | BAS | BASE/MAIN FLOOR | 3 | 0 | 1983 | 704.0 |
| | UB8 | BASEMENT UNFINISHED 8" | 3 | 0 | 1983 | 156.0 |
| | AGR | ATTACHED GARAGE | 3 | 0 | 1983 | 1024.0 |
| | BIG | BUILT IN GARAGE | 3 | 0 | 1983 | 671.2 |
| | BIG | BUILT IN GARAGE | 3 | 0 | 1983 | 292.8 |
| | OWP | OPEN WOOD PORCH W/STEPS | 3 | 0 | 1983 | 133.6 |
| | OWP | OPEN WOOD PORCH W/STEPS | 3 | 0 | 1983 | 202.0 |
| | OWP | OPEN WOOD PORCH W/STEPS | 3 | 0 | 1983 | 109.6 |
| | ENP | ENCLOSED PORCH | 3 | 0 | 1983 | 1943.9 |
| | DWN | DOWNSTAIRS LIVING AREA | 3 | 0 | 1983 | 558.6 |
Sketch
Property Image
Land
| 1 | 18 | AC (02.01-03.00) | 0.0000 | 0.00 | 0.00 | 0.00 | 1.00 | $300,000 | $0 |
Roll Value History
| 2026 | N/A | N/A | N/A | N/A | N/A |
| 2025 | $539,210 | $300,000 | $0 | $839,210 | $839,210 |
| 2024 | $547,735 | $280,000 | $0 | $827,735 | $827,735 |
| 2023 | $556,261 | $270,000 | $0 | $826,261 | $826,261 |
| 2022 | $511,423 | $260,000 | $0 | $771,423 | $771,423 |
| 2021 | $443,606 | $180,000 | $0 | $623,606 | $623,606 |
| 2020 | $435,431 | $150,000 | $0 | $585,431 | $585,431 |
| 2019 | $382,565 | $200,000 | $0 | $582,565 | $582,565 |
| 2018 | $384,011 | $150,000 | $0 | $534,011 | $534,011 |
| 2017 | $386,093 | $135,000 | $0 | $521,093 | $521,093 |
| 2016 | $391,857 | $100,000 | $0 | $491,857 | $491,857 |
| 2015 | $420,838 | $112,000 | $0 | $532,838 | $532,838 |
| 2014 | $426,918 | $112,000 | $0 | $538,918 | $538,918 |
| 2013 | $432,994 | $89,600 | $0 | $522,594 | $522,594 |
| 2012 | $439,076 | $89,600 | $0 | $528,676 | $528,676 |
| 2011 | $445,152 | $112,000 | $0 | $557,152 | $557,152 |
| 2010 | $455,250 | $112,000 | $0 | $567,250 | $567,250 |
| 2009 | $475,242 | $135,000 | $0 | $610,242 | $610,242 |
| 2008 | $479,245 | $134,000 | $0 | $613,245 | $613,245 |
| 2007 | $479,245 | $130,000 | $0 | $609,245 | $609,245 |
Deed and Sales History
| 1 | 04/05/2017 | QCD | Quit Claim Deed | EVERETT, RICHARD H | EVERETT TRUSTEE, SARAH E | | | $0.00 | 28907 | 4420858 |
| 2 | 03/06/2006 | QCD | Quit Claim Deed | EVERETT, RICHARD H | EVERETT, RICHARD H | | | $23,900.00 | 61126 | 4164990 |
| 3 | 04/01/1989 | WD | Warranty Deed | SELIN, EDWARD E | EVERETT, RICHARD H | | | $290,000.00 | 91639 | 89005673 |
| 4 | 11/01/1983 | WD | Warranty Deed | BIGELOW, DAVID L | SELIN, EDWARD E | | | $225,000.00 | 33378 | 417633 |
| 5 | 11/01/1980 | EXECUTORD | Executor Deed | BIGELOW, DAVID L | BIGELOW, DAVID L | | | $22,915.00 | 4006 | 376937 |
| 6 | 11/01/1978 | OTHER | Other - Misc. Documents | Unknown | BIGELOW, DAVID L | | | $27,500.00 | 85636 | 346202 |
Payout Agreement
| No payout information available.. |