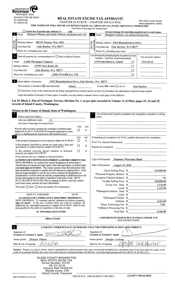
Property
Account |
| Property ID: | 518238 | Abbreviated Legal Description: | 43S - S/2 TR 43 DESC: BG SE CR SEC 1 W1968.67' N2421.42 TPB N225.38' S88*E1013.23' S6*W220' W991.76' TPB TGW & SUB TO EZ SP 80-18 23101 265 4060 V1 SP P38 AF# 373181 |
| Geographic ID: | R23101-250-4070 | Agent Code: | |
| Type: | Real | | |
| Tax Area: | 512 - APPRAISER-Stan/Cam Schl Dist, improved, greater than 1 acre | Land Use Code | 11 |
| Open Space: | N | DFL | N |
| Historic Property: | N | Remodel Property: | N |
| Multi-Family Redevelopment: | N | | |
| Township: | 31 | Section: | 01 |
| Range: | R2 |
Location |
| Address: | 210 ROCKY MOUNTAIN HIGH RD CAMANO ISLAND, WA 98282 | Mapsco: | |
| Neighborhood: | Cycle 5 | Map ID: | 450 |
| Neighborhood CD: | 5 |
Owner |
| Name: | DIETZ, FRANK C | Owner ID: | 286672 |
| Mailing Address: | VANESSA DIETZ 210 ROCKY MOUNTAIN HIGH RD CAMANO ISLAND, WA 98282 | % Ownership: | 100.0000000000% |
| | | Exemptions: | |
Taxes and Assessment Details
Values
| (+) Improvement Homesite Value: | + | $0 | |
| (+) Improvement Non-Homesite Value: | + | $447,387 | |
| (+) Land Homesite Value: | + | $0 | |
| (+) Land Non-Homesite Value: | + | $350,000 | |
| (+) Curr Use (HS): | + | $0 | $0 |
| (+) Curr Use (NHS): | + | $0 | $0 |
| | | -------------------------- | |
| (=) Market Value: | = | $797,387 | |
| (–) Productivity Loss: | – | $0 | |
| | | -------------------------- | |
| (=) Subtotal: | = | $797,387 | |
| (+) Senior Appraised Value: | + | $0 | |
| (+) Non-Senior Appraised Value: | + | $797,387 | |
| | | -------------------------- | |
| (=) Total Appraised Value: | = | $797,387 | |
| (–) Senior Exemption Loss: | – | $0 | |
| (–) Exemption Loss: | – | $0 | |
| | | -------------------------- | |
| (=) Taxable Value: | = | $797,387 | |
Taxing Jurisdiction
| Owner: | DIETZ, FRANK C | | |
| % Ownership: | 100.0000000000% | | |
| Total Value: | $797,387 | | |
| Tax Area: | 512 - APPRAISER-Stan/Cam Schl Dist, improved, greater than 1 acre |
| CF | Conservation Futures | 0.0316035091 | $797,387 | $797,387 | $25.20 | | |
| EMS1 | Fire & Rescue Dist #1 Camano GEN (EMS) | 0.3677864386 | $797,387 | $797,387 | $293.27 | | |
| FIRE1 | Fire & Rescue Dist #1 Camano GEN | 1.2502910536 | $797,387 | $797,387 | $996.97 | | |
| FIRE1BOND | Fire & Rescue Dist #1 Camano BOND | 0.1570001679 | $797,387 | $797,387 | $125.19 | | |
| CE | County Current Expense | 0.3708482477 | $797,387 | $797,387 | $295.71 | | |
| CR | County Roads | 0.4584763726 | $797,387 | $797,387 | $365.58 | | |
| LCIB | Library Sno-Isle BOND (Camano Island) | 0.0396325772 | $797,387 | $797,387 | $31.60 | | |
| LIB | Library Sno-Isle GEN | 0.3153421757 | $797,387 | $797,387 | $251.45 | | |
| SCH205_401 | School 205-401 Enrichment | 1.2698420524 | $797,387 | $797,387 | $1,012.56 | | |
| SCH205BOND | School 205-401 BOND | 0.9396497583 | $797,387 | $797,387 | $749.26 | | |
| ST | State School | 1.3035497053 | $797,387 | $797,387 | $1,039.43 | | |
| ST2 | State School Part 2 | 0.8169543533 | $797,387 | $797,387 | $651.43 | | |
| | Total Tax Rate: | 7.3209764117 | | | | | |
| | | | | Taxes w/Current Exemptions: | $5,837.65 | | |
| | | | | Taxes w/o Exemptions: | $5,837.65 | | |
Improvement / Building
| Improvement #1: | RESIDENTIAL | State Code: | Y | 2584.0 sqft | Value: | $447,387 |
| Bathrooms: | 2 | Bedrooms: | 3 | | Ceiling: | DRYWALL PAINTED | Cooling: | HEAT PUMP/CONV/V | | Exterior Wall/Cover: | CEMENT FIBER | Floor Covering: | HARDWOOD/CARP 20-80 | | Floor Structure: | WOOD W/SUBFLOOR | Foundation: | CONCRETE | | Interior Finish: | DRYWALL PAINT | Plumbing Fixture Cnt: | 13 | | Roof Slope: | 5" IN 12" | Roof Structure/Cover: | CJ ASPHALT |
|
| | Type | Description | Class CD | Sub Class CD | Year Built | Area |
| | BAS | BASE/MAIN FLOOR | 3 | 0 | 2020 | 2584.0 |
| | AGR | ATTACHED GARAGE | 3 | 0 | 2020 | 668.0 |
| | OP4 | OPEN PORCH W/CEILING-ROOF | 3 | 0 | 2020 | 128.0 |
| | OP4 | OPEN PORCH W/CEILING-ROOF | 3 | 0 | 2020 | 322.0 |
Sketch
Property Image
Land
| 1 | 18 | AC (02.01-03.00) | 0.0000 | 0.00 | 0.00 | 0.00 | 1.00 | $350,000 | $0 |
Roll Value History
| 2026 | N/A | N/A | N/A | N/A | N/A |
| 2025 | $447,387 | $350,000 | $0 | $797,387 | $797,387 |
| 2024 | $450,966 | $340,000 | $0 | $790,966 | $790,966 |
| 2023 | $454,545 | $330,000 | $0 | $784,545 | $784,545 |
| 2022 | $415,894 | $320,000 | $0 | $735,894 | $735,894 |
| 2021 | $368,234 | $210,000 | $0 | $578,234 | $578,234 |
| 2020 | $362,210 | $150,000 | $0 | $512,210 | $512,210 |
| 2019 | $0 | $160,000 | $0 | $160,000 | $160,000 |
| 2018 | $0 | $120,000 | $0 | $120,000 | $120,000 |
| 2017 | $0 | $120,000 | $0 | $120,000 | $120,000 |
| 2016 | $0 | $120,000 | $0 | $120,000 | $120,000 |
| 2015 | $0 | $112,000 | $0 | $112,000 | $112,000 |
| 2014 | $0 | $112,000 | $0 | $112,000 | $112,000 |
| 2013 | $0 | $112,000 | $0 | $112,000 | $112,000 |
| 2012 | $0 | $112,000 | $0 | $112,000 | $112,000 |
| 2011 | $0 | $112,000 | $0 | $112,000 | $112,000 |
| 2010 | $0 | $112,000 | $0 | $112,000 | $112,000 |
| 2009 | $0 | $135,000 | $0 | $135,000 | $135,000 |
| 2008 | $0 | $145,000 | $0 | $145,000 | $145,000 |
| 2007 | $0 | $140,000 | $0 | $140,000 | $140,000 |
Deed and Sales History
| 1 | 08/27/2018 | WD | Warranty Deed | SAWYER, RANDY C / EVELYN L | DIETZ, FRANK C | | | $185,000.00 | 35675 | 4450809 |
| 2 | 10/01/1997 | WD | Warranty Deed | FORBES, DONALD V | SAWYER, RANDY C | | | $83,000.00 | 73549 | 97016776 |
| 3 | 02/01/1981 | EXECUTORD | Executor Deed | GILBERTSON, INOR | FORBES, DONALD V | | | $35,000.00 | 10434 | 379436 |
| 4 | 12/01/1980 | OTHER | Other - Misc. Documents | Unknown | GILBERTSON, INOR | | | $35,000.00 | 3991 | 376885 |
| 5 | 01/01/1900 | OTHER | Other - Misc. Documents | GILBERTSON, INOR | GILBERTSON, INOR | | | $0.00 | 0 | 0 |
Payout Agreement
| No payout information available.. |