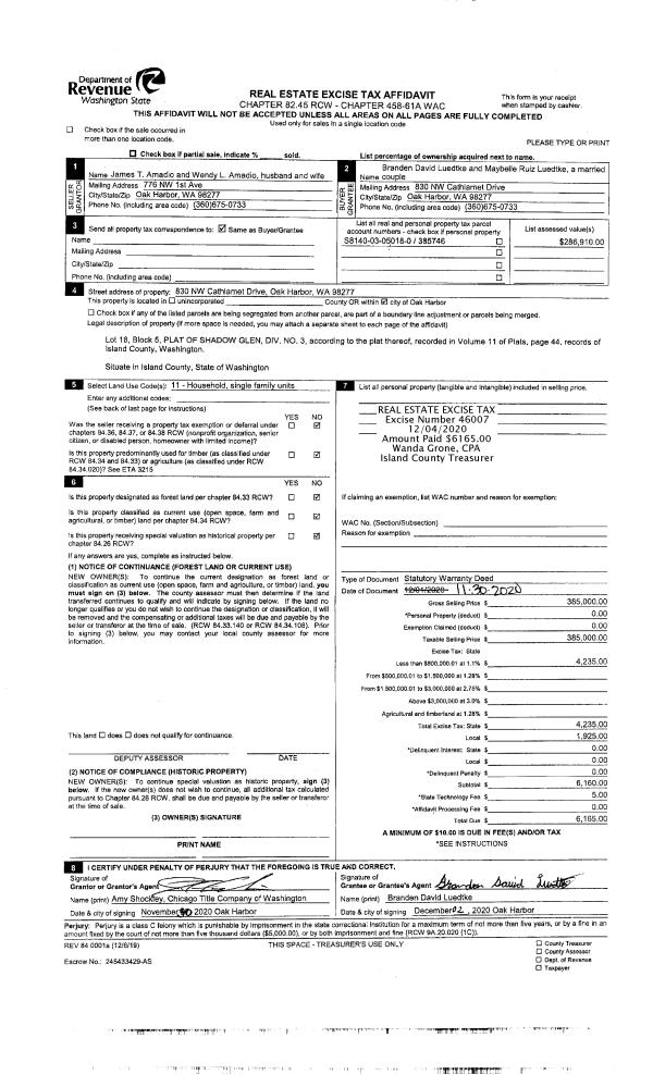
Property
Account |
| Property ID: | 519255 | Abbreviated Legal Description: | REPLACES 320 3200 IN S/2 SW NE BG SW CR SW NE E223.04' N14*W216.84' TPB N14*W202' SELY ALG WLN RD TP N68*E FR TPB S68*W525' TPB TGW SUB EZ |
| Geographic ID: | R22908-302-3020 | Agent Code: | |
| Type: | Real | | |
| Tax Area: | 712 - APPRAISER-S Whid Schl Dist, outside Langley, improved, greater than 1 acre | Land Use Code | 11 |
| Open Space: | N | DFL | N |
| Historic Property: | N | Remodel Property: | N |
| Multi-Family Redevelopment: | N | | |
| Township: | 29 | Section: | 08 |
| Range: | R2 |
Location |
| Address: | 5375 SHADOW LN FREELAND, WA 98249 | Mapsco: | |
| Neighborhood: | Cycle 3 | Map ID: | 304 |
| Neighborhood CD: | 3 |
Owner |
| Name: | NEILL, THOMAS G | Owner ID: | 295821 |
| Mailing Address: | MEGAN K NEILL 5375 SHADOW LANE FREELAND, WA 98249 | % Ownership: | 100.0000000000% |
| | | Exemptions: | |
Taxes and Assessment Details
Values
| (+) Improvement Homesite Value: | + | $0 | |
| (+) Improvement Non-Homesite Value: | + | $764,017 | |
| (+) Land Homesite Value: | + | $0 | |
| (+) Land Non-Homesite Value: | + | $310,000 | |
| (+) Curr Use (HS): | + | $0 | $0 |
| (+) Curr Use (NHS): | + | $0 | $0 |
| | | -------------------------- | |
| (=) Market Value: | = | $1,074,017 | |
| (–) Productivity Loss: | – | $0 | |
| | | -------------------------- | |
| (=) Subtotal: | = | $1,074,017 | |
| (+) Senior Appraised Value: | + | $0 | |
| (+) Non-Senior Appraised Value: | + | $1,074,017 | |
| | | -------------------------- | |
| (=) Total Appraised Value: | = | $1,074,017 | |
| (–) Senior Exemption Loss: | – | $0 | |
| (–) Exemption Loss: | – | $0 | |
| | | -------------------------- | |
| (=) Taxable Value: | = | $1,074,017 | |
Taxing Jurisdiction
| Owner: | NEILL, THOMAS G | | |
| % Ownership: | 100.0000000000% | | |
| Total Value: | $1,074,017 | | |
| Tax Area: | 712 - APPRAISER-S Whid Schl Dist, outside Langley, improved, greater than 1 acre |
| CF | Conservation Futures | 0.0316035091 | $1,074,017 | $1,074,017 | $33.94 | | |
| FIRE3 | Fire & Rescue Dist #3 S Whidbey GEN | 1.2004855531 | $1,074,017 | $1,074,017 | $1,289.34 | | |
| HOBOND | Hospital BOND | 0.1910887512 | $1,074,017 | $1,074,017 | $205.23 | | |
| HOGEN | Hospital GEN | 0.3902502903 | $1,074,017 | $1,074,017 | $419.14 | | |
| CE | County Current Expense | 0.3708482477 | $1,074,017 | $1,074,017 | $398.30 | | |
| CR | County Roads | 0.4584763726 | $1,074,017 | $1,074,017 | $492.41 | | |
| ISLANDEMS | Hospital GEN (EMS) | 0.5000000000 | $1,074,017 | $1,074,017 | $537.01 | | |
| LIB | Library Sno-Isle GEN | 0.3153421757 | $1,074,017 | $1,074,017 | $338.68 | | |
| PORTWHID | Port of S Whidbey GEN | 0.1094540357 | $1,074,017 | $1,074,017 | $117.56 | | |
| SCH206BOND | School 206 BOND | 0.3161759235 | $1,074,017 | $1,074,017 | $339.58 | | |
| SCH206MO | School 206 Enrichment | 0.4547169547 | $1,074,017 | $1,074,017 | $488.37 | | |
| ST | State School | 1.3035497053 | $1,074,017 | $1,074,017 | $1,400.03 | | |
| ST2 | State School Part 2 | 0.8169543533 | $1,074,017 | $1,074,017 | $877.42 | | |
| SWHIDPRBD | P & R S Whidbey BOND | 0.0152817568 | $1,074,017 | $1,074,017 | $16.41 | | |
| SWHIDPRBD2 | P & R S Whidbey BOND2 | 0.0138911264 | $1,074,017 | $1,074,017 | $14.92 | | |
| SWHIDPRMT | P & R S Whidbey GEN | 0.2053334452 | $1,074,017 | $1,074,017 | $220.53 | | |
| | Total Tax Rate: | 6.6934522006 | | | | | |
| | | | | Taxes w/Current Exemptions: | $7,188.87 | | |
| | | | | Taxes w/o Exemptions: | $7,188.87 | | |
Improvement / Building
| Improvement #1: | RESIDENTIAL | State Code: | Y | 1652.0 sqft | Value: | $473,479 |
| Bathrooms: | 2 | Bedrooms: | 2 | | Ceiling: | DRYWALL PAINTED | Cooling: | HEAT PUMP/CONV/V | | Exterior Wall/Cover: | PLY/HARDBOARD T-111 | Floor Covering: | CARPET/VINYL 60-40 | | Floor Structure: | WOOD W/SUBFLOOR | Foundation: | CONCRETE | | Interior Finish: | DRYWALL PAINT | Plumbing Fixture Cnt: | 14 | | Roof Slope: | 3" IN 12" | Roof Structure/Cover: | CJ ALUMINIUM HEAVY |
|
| | Type | Description | Class CD | Sub Class CD | Year Built | Area |
| | BAS | BASE/MAIN FLOOR | 4 | 0 | 2022 | 1652.0 |
| | DGR | DETACHED GARAGE | 4 | 0 | 2022 | 798.0 |
| Improvement #2: | RESIDENTIAL | State Code: | Y | 1067.2 sqft | Value: | $290,538 |
| Bathrooms: | 1.5 | Bedrooms: | 2 | | Ceiling: | DRY WALL SPRAYED | Cooling: | HEAT PUMP/CONV/V | | Exterior Wall/Cover: | PLY/HARDBOARD T-111 | Floor Covering: | CARPET/VINYL 60-40 | | Floor Structure: | WOOD W/SUBFLOOR | Foundation: | CONCRETE | | Interior Finish: | DRYWALL PAINT | Plumbing Fixture Cnt: | 8 | | Roof Slope: | 3" IN 12" | Roof Structure/Cover: | CJ ALUMINIUM HEAVY |
|
Sketch
Property Image
Land
| 1 | 18 | AC (02.01-03.00) | 2.1000 | 91476.00 | 0.00 | 0.00 | 1.00 | $310,000 | $0 |
Roll Value History
| 2026 | N/A | N/A | N/A | N/A | N/A |
| 2025 | $764,017 | $310,000 | $0 | $1,074,017 | $1,074,017 |
| 2024 | $772,039 | $290,000 | $0 | $1,062,039 | $1,062,039 |
| 2023 | $786,075 | $290,000 | $0 | $1,076,075 | $1,076,075 |
| 2022 | $441,156 | $150,000 | $0 | $591,156 | $591,156 |
| 2021 | $0 | $135,000 | $0 | $135,000 | $135,000 |
| 2020 | $0 | $110,000 | $0 | $110,000 | $110,000 |
| 2019 | $0 | $110,000 | $0 | $110,000 | $110,000 |
| 2018 | $0 | $100,000 | $0 | $100,000 | $100,000 |
| 2017 | $0 | $100,000 | $0 | $100,000 | $100,000 |
| 2016 | $0 | $100,000 | $0 | $100,000 | $100,000 |
| 2015 | $0 | $100,000 | $0 | $100,000 | $100,000 |
| 2014 | $0 | $97,000 | $0 | $97,000 | $97,000 |
| 2013 | $0 | $105,000 | $0 | $105,000 | $105,000 |
| 2012 | $0 | $105,000 | $0 | $105,000 | $105,000 |
| 2011 | $0 | $105,000 | $0 | $105,000 | $105,000 |
| 2010 | $0 | $105,000 | $0 | $105,000 | $105,000 |
| 2009 | $0 | $125,000 | $0 | $125,000 | $125,000 |
| 2008 | $0 | $155,000 | $0 | $155,000 | $155,000 |
| 2007 | $0 | $103,100 | $0 | $103,100 | $103,100 |
Deed and Sales History
| 1 | 08/12/2020 | WD | Warranty Deed | PAI TTEE, KEA JA | NEILL, THOMAS G | | | $120,000.00 | 44449 | 4495013 |
| 2 | 10/24/2018 | OTHER | Other - Misc. Documents | PAI, KEA J | PAI TTEE, KEA JA | | | $0.00 | 36844 | 4455867 |
| 3 | 10/01/1978 | OTHER | Other - Misc. Documents | Unknown | PAI, KEA J | | | $16,300.00 | 86081 | 344593 |
Payout Agreement
| No payout information available.. |