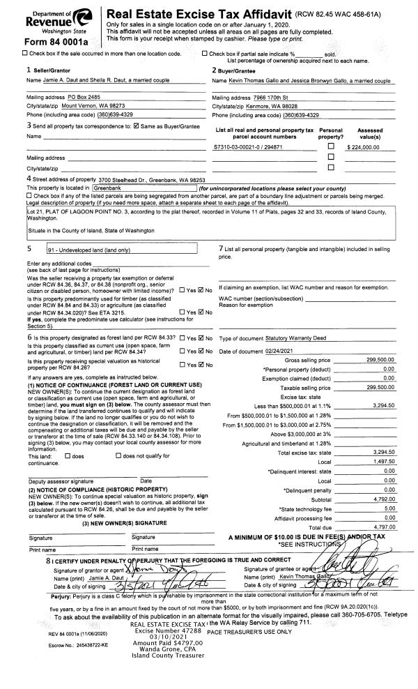
Property
Account |
| Property ID: | 520305 | Abbreviated Legal Description: | PAR C: N/2 N/2 SESE E OF RD EX E657.38' TGW EZ FR 115-4900 SP 80-35.32904.115-4900 V1 SP P50 AF#377052 |
| Geographic ID: | R32904-117-4640 | Agent Code: | |
| Type: | Real | | |
| Tax Area: | 712 - APPRAISER-S Whid Schl Dist, outside Langley, improved, greater than 1 acre | Land Use Code | 11 |
| Open Space: | N | DFL | N |
| Historic Property: | N | Remodel Property: | N |
| Multi-Family Redevelopment: | N | | |
| Township: | 29 | Section: | 04 |
| Range: | R3 |
Location |
| Address: | 3531 OVERLOOK DR LANGLEY, WA 98260 | Mapsco: | |
| Neighborhood: | Cycle 4 | Map ID: | 729 |
| Neighborhood CD: | 4 |
Owner |
| Name: | STENBERG, DAVID R | Owner ID: | 270395 |
| Mailing Address: | JANIS MACHALA 3531 OVERLOOK DR LANGLEY, WA 98260 | % Ownership: | 100.0000000000% |
| | | Exemptions: | |
Taxes and Assessment Details
Values
| (+) Improvement Homesite Value: | + | $0 | |
| (+) Improvement Non-Homesite Value: | + | $443,527 | |
| (+) Land Homesite Value: | + | $0 | |
| (+) Land Non-Homesite Value: | + | $380,000 | |
| (+) Curr Use (HS): | + | $0 | $0 |
| (+) Curr Use (NHS): | + | $0 | $0 |
| | | -------------------------- | |
| (=) Market Value: | = | $823,527 | |
| (–) Productivity Loss: | – | $0 | |
| | | -------------------------- | |
| (=) Subtotal: | = | $823,527 | |
| (+) Senior Appraised Value: | + | $0 | |
| (+) Non-Senior Appraised Value: | + | $823,527 | |
| | | -------------------------- | |
| (=) Total Appraised Value: | = | $823,527 | |
| (–) Senior Exemption Loss: | – | $0 | |
| (–) Exemption Loss: | – | $0 | |
| | | -------------------------- | |
| (=) Taxable Value: | = | $823,527 | |
Taxing Jurisdiction
| Owner: | STENBERG, DAVID R | | |
| % Ownership: | 100.0000000000% | | |
| Total Value: | $823,527 | | |
| Tax Area: | 712 - APPRAISER-S Whid Schl Dist, outside Langley, improved, greater than 1 acre |
| CF | Conservation Futures | 0.0316035091 | $823,527 | $823,527 | $26.03 | | |
| FIRE3 | Fire & Rescue Dist #3 S Whidbey GEN | 1.2004855531 | $823,527 | $823,527 | $988.63 | | |
| HOBOND | Hospital BOND | 0.1910887512 | $823,527 | $823,527 | $157.37 | | |
| HOGEN | Hospital GEN | 0.3902502903 | $823,527 | $823,527 | $321.38 | | |
| CE | County Current Expense | 0.3708482477 | $823,527 | $823,527 | $305.40 | | |
| CR | County Roads | 0.4584763726 | $823,527 | $823,527 | $377.57 | | |
| ISLANDEMS | Hospital GEN (EMS) | 0.5000000000 | $823,527 | $823,527 | $411.76 | | |
| LIB | Library Sno-Isle GEN | 0.3153421757 | $823,527 | $823,527 | $259.69 | | |
| PORTWHID | Port of S Whidbey GEN | 0.1094540357 | $823,527 | $823,527 | $90.14 | | |
| SCH206BOND | School 206 BOND | 0.3161759235 | $823,527 | $823,527 | $260.38 | | |
| SCH206MO | School 206 Enrichment | 0.4547169547 | $823,527 | $823,527 | $374.47 | | |
| ST | State School | 1.3035497053 | $823,527 | $823,527 | $1,073.51 | | |
| ST2 | State School Part 2 | 0.8169543533 | $823,527 | $823,527 | $672.78 | | |
| SWHIDPRBD | P & R S Whidbey BOND | 0.0152817568 | $823,527 | $823,527 | $12.58 | | |
| SWHIDPRBD2 | P & R S Whidbey BOND2 | 0.0138911264 | $823,527 | $823,527 | $11.44 | | |
| SWHIDPRMT | P & R S Whidbey GEN | 0.2053334452 | $823,527 | $823,527 | $169.10 | | |
| | Total Tax Rate: | 6.6934522006 | | | | | |
| | | | | Taxes w/Current Exemptions: | $5,512.23 | | |
| | | | | Taxes w/o Exemptions: | $5,512.23 | | |
Improvement / Building
| Improvement #1: | RESIDENTIAL | State Code: | Y | 2106.0 sqft | Value: | $443,527 |
| Bathrooms: | 3 | Bedrooms: | 4 | | Ceiling: | DRYWALL PAINTED | Exterior Wall/Cover: | WOOD SIDING | | Floor Covering: | CARPET/VINYL 80-20 | Floor Structure: | WOOD W/SUBFLOOR | | Foundation: | CONCRETE | Heating: | FHA GAS | | Interior Finish: | DRYWALL PAINT | Plumbing Fixture Cnt: | 14 | | Roof Slope: | 5" IN 12" | Roof Structure/Cover: | CJ ASPHALT |
|
| | Type | Description | Class CD | Sub Class CD | Year Built | Area |
| | BAS | BASE/MAIN FLOOR | 4 | 0 | 1996 | 2106.0 |
| | OP4 | OPEN PORCH W/CEILING-ROOF | 4 | 0 | 1996 | 88.0 |
| | AGR | ATTACHED GARAGE | 4 | 0 | 1996 | 418.0 |
| | ENP | ENCLOSED PORCH | 4 | 0 | 1996 | 228.0 |
Sketch
Property Image
Land
| 1 | 32 | AC (03.01-09.99) | 3.8300 | 0.00 | 0.00 | 0.00 | 1.00 | $380,000 | $0 |
Roll Value History
| 2026 | N/A | N/A | N/A | N/A | N/A |
| 2025 | $443,527 | $380,000 | $0 | $823,527 | $823,527 |
| 2024 | $448,855 | $350,000 | $0 | $798,855 | $798,855 |
| 2023 | $454,182 | $330,000 | $0 | $784,182 | $784,182 |
| 2022 | $416,098 | $290,000 | $0 | $706,098 | $706,098 |
| 2021 | $366,025 | $230,000 | $0 | $596,025 | $596,025 |
| 2020 | $339,799 | $190,000 | $0 | $529,799 | $529,799 |
| 2019 | $252,036 | $250,000 | $0 | $502,036 | $502,036 |
| 2018 | $252,774 | $210,000 | $0 | $462,774 | $462,774 |
| 2017 | $254,253 | $190,000 | $0 | $444,253 | $444,253 |
| 2016 | $257,209 | $135,000 | $0 | $392,209 | $392,209 |
| 2015 | $260,166 | $135,000 | $0 | $395,166 | $395,166 |
| 2014 | $236,558 | $103,410 | $0 | $339,968 | $339,968 |
| 2013 | $239,477 | $103,410 | $0 | $342,887 | $342,887 |
| 2012 | $242,398 | $103,410 | $0 | $345,808 | $345,808 |
| 2011 | $245,318 | $103,410 | $0 | $348,728 | $348,728 |
| 2010 | $255,054 | $103,410 | $0 | $358,464 | $358,464 |
| 2009 | $266,086 | $168,520 | $0 | $434,606 | $434,606 |
| 2008 | $291,983 | $192,113 | $0 | $484,096 | $484,096 |
| 2007 | $295,531 | $192,113 | $0 | $487,644 | $487,644 |
Deed and Sales History
| 1 | 05/27/2015 | WD | Warranty Deed | BROOKES, EDWARD A | STENBERG, DAVID R | | | $488,800.00 | 19748 | 4379191 |
| 2 | 03/16/1999 | WD | Warranty Deed | VASQUENZA, JAMES V | BROOKES, EDWARD A | | | $277,500.00 | 91073 | 99007331 |
| 3 | 05/01/1997 | WD | Warranty Deed | VANDYKE, WILLIAM L | VASQUENZA, JAMES V | | | $239,000.00 | 71828 | 97008298 |
| 4 | 06/01/1996 | WD | Warranty Deed | SHURTZ, JOHN D | VANDYKE, WILLIAM L | | | $53,750.00 | 62142 | 96010607 |
| 5 | 06/01/1996 | QCD | Quit Claim Deed | VANDYKE, WILLIAM L | VANDYKE, WILLIAM L | | | $0.00 | 62141 | 96010606 |
| 6 | 06/01/1996 | QCD | Quit Claim Deed | VANDYKE, WILLIAM L | VANDYKE, WILLIAM L | | | $0.00 | 62140 | 96010605 |
| 7 | 04/01/1983 | EZ | Easement | SHURTZ, JOHN D | SHURTZ, JOHN D | | | $0.00 | 31765 | 411480 |
| 8 | 07/01/1981 | EXECUTORD | Executor Deed | SMITH, DENNIS E | SHURTZ, JOHN D | | | $28,000.00 | 12631 | 387152 |
| 9 | 07/01/1981 | CD | DNU - Correction Deed | SMITH, DENNIS E | SMITH, DENNIS E | | | $1.00 | 12630 | 387151 |
| 10 | 06/01/1980 | CD | DNU - Correction Deed | Unknown | SMITH, DENNIS E | | | $0.00 | 1823 | 369299 |
Payout Agreement
| No payout information available.. |